Votre e-mail a été envoyé.
Certaines informations ont été traduites automatiquement.
Informations principales
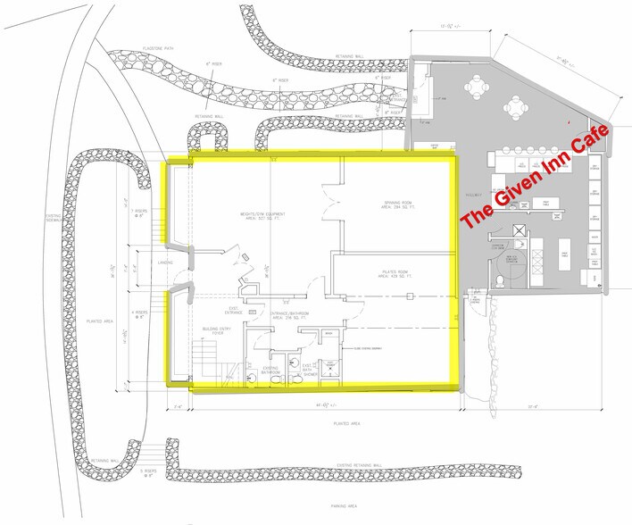
- Espace commercial (fitness) unique avec café attenant situé dans le charmant quartier des affaires de Georgetown.
- Grands espaces commerciaux séparés avec deux toilettes, dont une avec douche. Une passerelle latérale mène au café avec les troisièmes toilettes ADA.
- Flexibilité en matière de SF/Demising ; ouvert à une éventuelle utilisation de bureau.
Tous les espace disponibles(1)
Afficher les loyers en
- Espace
- Surface
- Durée
- Loyer
- Type de bien
- Aménagement
- Disponible
-Unique retail (fitness) space located in the charming Georgetown business district. -Flexibility in SF/demising; open to possible office use,. Join newly signed, neighboring café’ The Given Inn Café’. -Visible corner location on CT-57 and Old Mill Road; private parking lot (40+ vehicles). -Large separate retail areas with two restrooms—one with shower. -Less that 1/2 mile to Caraluzzi’s, walking distance to Georgetown School of Arts and local restaurants. -Average HHI $250,000+ one-mile radius
- Partiellement aménagé comme un espace de restaurant ou café
- Less than 1/2 mile to Caraluzzi’s.
- Espace en excellent état
- Walking distance to Georgetown School of Arts.
| Espace | Surface | Durée | Loyer | Type de bien | Aménagement | Disponible |
| 1er étage | 147 m² | Négociable | Sur demande Sur demande Sur demande Sur demande | Local commercial | Construction partielle | 30 jours |
1er étage
| Surface |
| 147 m² |
| Durée |
| Négociable |
| Loyer |
| Sur demande Sur demande Sur demande Sur demande |
| Type de bien |
| Local commercial |
| Aménagement |
| Construction partielle |
| Disponible |
| 30 jours |
1er étage
| Surface | 147 m² |
| Durée | Négociable |
| Loyer | Sur demande |
| Type de bien | Local commercial |
| Aménagement | Construction partielle |
| Disponible | 30 jours |
-Unique retail (fitness) space located in the charming Georgetown business district. -Flexibility in SF/demising; open to possible office use,. Join newly signed, neighboring café’ The Given Inn Café’. -Visible corner location on CT-57 and Old Mill Road; private parking lot (40+ vehicles). -Large separate retail areas with two restrooms—one with shower. -Less that 1/2 mile to Caraluzzi’s, walking distance to Georgetown School of Arts and local restaurants. -Average HHI $250,000+ one-mile radius
- Partiellement aménagé comme un espace de restaurant ou café
- Espace en excellent état
- Less than 1/2 mile to Caraluzzi’s.
- Walking distance to Georgetown School of Arts.
Occupants
- Étage
- Nom de l’occupant
- Secteur d’activité
- Inconnu
- Conlon Daniel P Architects
- Services professionnels, scientifiques et techniques
- 1er
- Elevation Spinning & Pt
- Santé et assistance sociale
- Inconnu
- Emi Specialty Papers
- Manufacture
- Inconnu
- Esten McGee Inc
- Grossiste
Informations sur l’immeuble
Aperçu du bien
• Espace commercial (fitness) unique avec café attenant situé dans le charmant quartier des affaires de Georgetown. • Flexibilité en matière de SF/Demising ; ouvert à une éventuelle utilisation de bureau. • Emplacement visible à l'angle de la route CT-57 et du chemin Old Mill ; stationnement privé (plus de 40 véhicules). • Grands espaces commerciaux séparés avec deux toilettes, dont une avec douche. Une passerelle latérale mène au café avec les troisièmes toilettes ADA. • À moins d'un kilomètre de Caraluzzi, à quelques pas de la Georgetown School of Arts et des restaurants locaux. • Rayon moyen de 250 000$ et plus d'un mile pour le HHI
Principaux commerces à proximité
Présenté par
4 Old Mill Rd
Hum, une erreur s’est produite lors de l’envoi de votre message. Veuillez réessayer.
Merci ! Votre message a été envoyé.





