Connectez-vous/S’inscrire
Votre e-mail a été envoyé.
Certaines informations ont été traduites automatiquement.
Informations principales
- Southpointe amenities include many restaurants, a golf course, walking trails, a health club, and many other retail shops.
Tous les espace disponibles(1)
Afficher les loyers en
- Espace
- Surface
- Durée
- Loyer
- Type de bien
- Aménagement
- Disponible
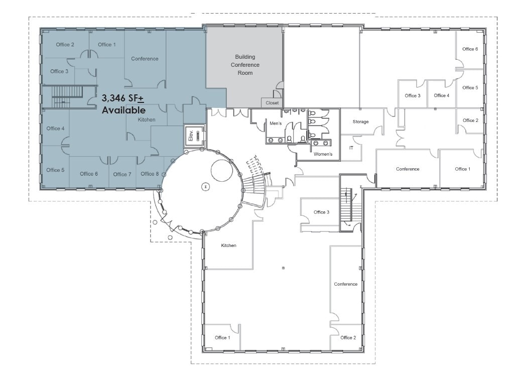
3,346 square foot second floor office space available for lease with 8 private offices, a kitchen, and a conference room.
- Le loyer comprend les services publics, les services de l’immeuble et les frais immobiliers.
- 8 bureaux privés
- Abondant parking gratuit.
- Partiellement aménagé comme Bureau standard
- 1 salle de conférence
| Espace | Surface | Durée | Loyer | Type de bien | Aménagement | Disponible |
| 2e étage | 311 m² | 1-10 Ans | 169,84 € /m²/an 14,15 € /m²/mois 52 795 € /an 4 400 € /mois | Bureau | Construction partielle | Maintenant |
2e étage
| Surface |
| 311 m² |
| Durée |
| 1-10 Ans |
| Loyer |
| 169,84 € /m²/an 14,15 € /m²/mois 52 795 € /an 4 400 € /mois |
| Type de bien |
| Bureau |
| Aménagement |
| Construction partielle |
| Disponible |
| Maintenant |
1 sur 1
Vidéos
Visite extérieure 3D Matterport
Visite 3D
Photos
Street view
Rue
Carte
2e étage
| Surface | 311 m² |
| Durée | 1-10 Ans |
| Loyer | 169,84 € /m²/an |
| Type de bien | Bureau |
| Aménagement | Construction partielle |
| Disponible | Maintenant |
3,346 square foot second floor office space available for lease with 8 private offices, a kitchen, and a conference room.
- Le loyer comprend les services publics, les services de l’immeuble et les frais immobiliers.
- Partiellement aménagé comme Bureau standard
- 8 bureaux privés
- 1 salle de conférence
- Abondant parking gratuit.
Aperçu du bien
4 Grandview Circle is a multi-tenant, two-story office building located in Canonsburg. The property offers an abundance of free parking.
- Biotech/Laboratoire
Informations sur l’immeuble
Type d’immeuble
Bureau
Année de construction
2002
Hauteur du bâtiment
2 étages
Surface de l’immeuble
2 349 m²
Classe d’immeuble
B
Surface type par étage
1 174 m²
Hauteur du plafond non fini
3,35 m
Stationnement
170 places de stationnement extérieur
Stationnement Couvert
1 1
Somewhat walkable
20/100
Exceptionally drivable
90/100
Somewhat bikeable
20/100
1 sur 12
Vidéos
Visite extérieure 3D Matterport
Visite 3D
Photos
Street view
Rue
Carte
1 sur 1
Présenté par
4 Grandview Cir
Vous êtes déjà membre ? Connectez-vous
Hum, une erreur s’est produite lors de l’envoi de votre message. Veuillez réessayer.
Merci ! Votre message a été envoyé.





