Votre e-mail a été envoyé.
3989 Henning Dr Local d’activités | 218 m² | 1 043 442 € | À vendre | Burnaby, BC V5C 6N5



Certaines informations ont été traduites automatiquement.
INFORMATIONS PRINCIPALES SUR L'INVESTISSEMENT
- Located in Bridge Business Centre near Gilmore Station.
- Three designated parking stalls included.
- Immediate vacant possession available.
- Grade-level loading with 22-foot clear warehouse height.
- Flexible CD (M-5) zoning supports diverse uses.
RÉSUMÉ ANALYTIQUE
Located just one block from Gilmore SkyTrain Station and minutes from the intersection of Boundary Road and Lougheed Highway, this property provides exceptional connectivity to Downtown Vancouver, the North Shore, and the Fraser Valley via Trans Canada Highway and major arterial routes. With strong infrastructure, flexible zoning, and proximity to transit and amenities, 3989 Henning Drive is well-positioned to support a wide range of business operations in one of Burnaby’s most accessible commercial hubs.
INFORMATIONS SUR L’IMMEUBLE
| Surface totale de l’immeuble | 6 033 m² | Surface type par étage | 3 017 m² |
| Type de bien | Local d'activités (Lot en copropriété) | Année de construction | 1996 |
| Sous-type de bien | Recherche et développement | Surface du lot | 0,93 ha |
| Classe d’immeuble | B | Ratio de stationnement | 0,1/1 000 m² |
| Étages | 2 | ||
| Zonage | M-5/CD - Industrial/Comprehensive Development | ||
| Surface totale de l’immeuble | 6 033 m² |
| Type de bien | Local d'activités (Lot en copropriété) |
| Sous-type de bien | Recherche et développement |
| Classe d’immeuble | B |
| Étages | 2 |
| Surface type par étage | 3 017 m² |
| Année de construction | 1996 |
| Surface du lot | 0,93 ha |
| Ratio de stationnement | 0,1/1 000 m² |
| Zonage | M-5/CD - Industrial/Comprehensive Development |
CARACTÉRISTIQUES
- Accès 24 h/24
- Système de sécurité
- Signalisation
- Climatisation
- Détecteur de fumée
SERVICES PUBLICS
- Éclairage - Fluorescent
- Eau - Ville
- Égout - Ville
1 LOT DISPONIBLE
Lot 121
| Surface du lot | 218 m² | Type de vente | Propriétaire occupant |
| Prix | 1 043 442 € | Nb de places de stationnement | 3 |
| Prix par m² | 4 785,48 € | Référence cadastrale/ID de parcelle | 023-718-986 |
| Usage du lot en coprop. | Local d’activités |
| Surface du lot | 218 m² |
| Prix | 1 043 442 € |
| Prix par m² | 4 785,48 € |
| Usage du lot en coprop. | Local d’activités |
| Type de vente | Propriétaire occupant |
| Nb de places de stationnement | 3 |
| Référence cadastrale/ID de parcelle | 023-718-986 |
DESCRIPTION
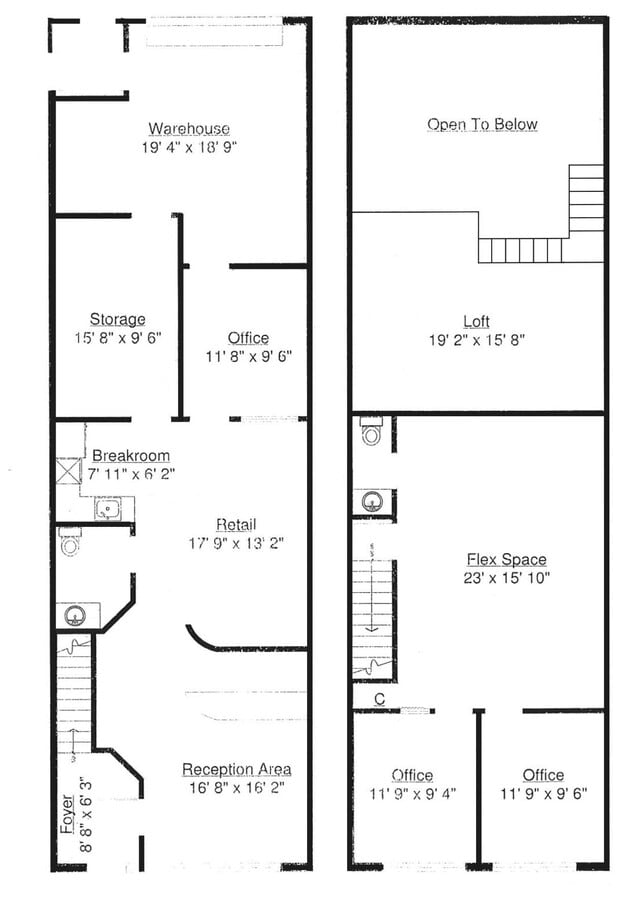
The unit spans 2,347 SF with mezzanine and features a versatile layout ideal for a range of business uses under CD (M-5) zoning. The ground floor includes a warehouse with 22-foot clear ceiling height, a 10’x12’ grade-level loading door, and a gas-fired unit heater. The second floor offers a mezzanine lunchroom, multiple private offices, and a reception area, all serviced by a rooftop HVAC unit. The space is air-conditioned and includes three designated parking stalls.
NOTES SUR LA VENTE
Unit 121 at 3989 Henning Drive offers a rare opportunity to acquire a high-quality office/flex strata unit in Burnaby’s prestigious Bridge Business Centre. This property is ideal for owner-users seeking a strategic location with immediate occupancy and minimal upfront investment.
Unit 121 Floor Plan
Office With Reception
Ready for Occupancy
Flex Space With Mezzanine
Interior Overhead Loading
Présenté par
3989 Henning Dr
Hum, une erreur s’est produite lors de l’envoi de votre message. Veuillez réessayer.
Merci ! Votre message a été envoyé.


