Votre e-mail a été envoyé.
Certaines informations ont été traduites automatiquement.
Informations principales
- Convenient access to Highways 101, 280, and 87 for regional connectivity
- Surrounded by major retail centers and amenities for workforce convenience
Caractéristiques
Tous les espace disponibles(1)
Afficher les loyers en
- Espace
- Surface
- Durée
- Loyer
- Type de bien
- Aménagement
- Disponible
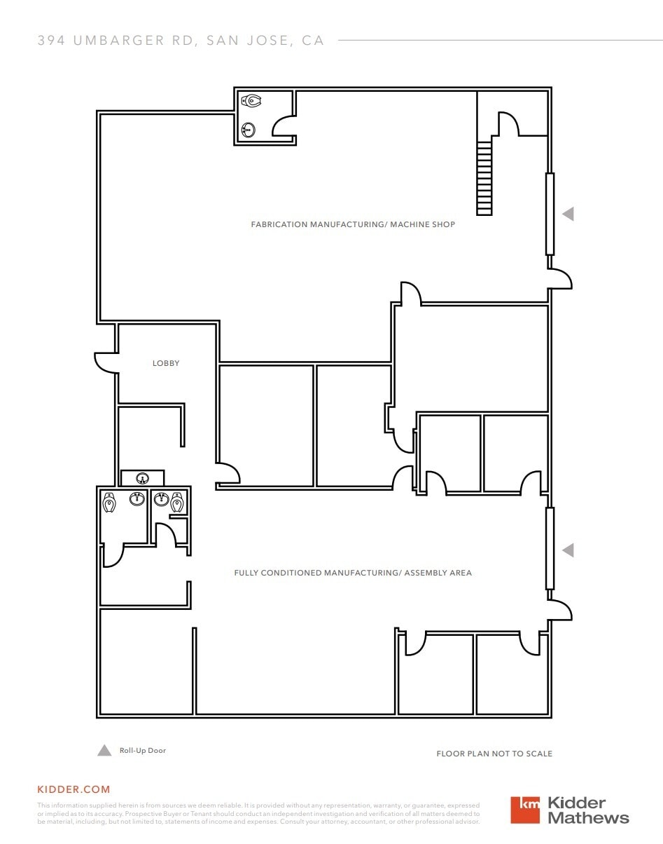
Positioned in the heart of Central San Jose, this versatile industrial property at 394 Umbarger Road offers a highly functional layout ideal for manufacturing, fabrication, and assembly operations. The building features a nicely appointed end-cap design with a large, fully conditioned manufacturing and assembly area, providing an efficient environment for production needs. Two grade-level doors measuring 12’x14’ allow for easy loading and unloading, while a clear height of approximately 13’9” supports a range of industrial uses. Call agents to tour.
- Il est possible que le loyer annoncé ne comprenne pas certains services publics, services d’immeuble et frais immobiliers.
- Climatisation centrale
- Fully conditioned production area
- 2 accès plain-pied
- End-cap industrial space with flexible layout
- 500 amps of power and full sprinkler system
| Espace | Surface | Durée | Loyer | Type de bien | Aménagement | Disponible |
| 1er étage | 268 – 583 m² | Négociable | 192,79 € /m²/an 16,07 € /m²/mois 112 480 € /an 9 373 € /mois | Industriel/Logistique | Construction achevée | Maintenant |
1er étage
| Surface |
| 268 – 583 m² |
| Durée |
| Négociable |
| Loyer |
| 192,79 € /m²/an 16,07 € /m²/mois 112 480 € /an 9 373 € /mois |
| Type de bien |
| Industriel/Logistique |
| Aménagement |
| Construction achevée |
| Disponible |
| Maintenant |
1er étage
| Surface | 268 – 583 m² |
| Durée | Négociable |
| Loyer | 192,79 € /m²/an |
| Type de bien | Industriel/Logistique |
| Aménagement | Construction achevée |
| Disponible | Maintenant |
Positioned in the heart of Central San Jose, this versatile industrial property at 394 Umbarger Road offers a highly functional layout ideal for manufacturing, fabrication, and assembly operations. The building features a nicely appointed end-cap design with a large, fully conditioned manufacturing and assembly area, providing an efficient environment for production needs. Two grade-level doors measuring 12’x14’ allow for easy loading and unloading, while a clear height of approximately 13’9” supports a range of industrial uses. Call agents to tour.
- Il est possible que le loyer annoncé ne comprenne pas certains services publics, services d’immeuble et frais immobiliers.
- 2 accès plain-pied
- Climatisation centrale
- End-cap industrial space with flexible layout
- Fully conditioned production area
- 500 amps of power and full sprinkler system
Aperçu du bien
The property is fully sprinklered and equipped with 500 amps of power distributed across two 200-amp panels and one 100-amp panel, ensuring ample electrical capacity for heavy equipment. A parking ratio of 1.84 per 1,000 square feet accommodates staff and visitors conveniently. Located near major transportation corridors, including Highways 101, 280, and 87, the site offers excellent connectivity to the broader Bay Area. Surrounding amenities include prominent retail centers such as The Plant and Eastridge Center, providing dining, shopping, and service options for employees and clients alike. This strategic location, combined with robust building infrastructure, makes 394 Umbarger Road an exceptional choice for businesses seeking a well-appointed industrial space in a prime San Jose location.
Faits sur l’installation entrepôt
Occupants
- Étage
- Nom de l’occupant
- Secteur d’activité
- 1er
- Shock N Awe Prints
- Grossiste
Présenté par
394 Umbarger Rd
Hum, une erreur s’est produite lors de l’envoi de votre message. Veuillez réessayer.
Merci ! Votre message a été envoyé.





