Votre e-mail a été envoyé.
Certaines informations ont été traduites automatiquement.
Informations principales
- Located 0.6 miles from Route 133 with direct access to the New Jersey Turnpike at Exit 8
- Cross-access and shared easements connecting directly to East Windsor Town Center and East Windsor Village
- Significant retail synergy with over 5.7 million combined annual visits to adjacent centers
- Positioned within a high-income trade area serving East Windsor, Cranbury, Plainsboro, Robbinsville, Monroe, and West Windsor
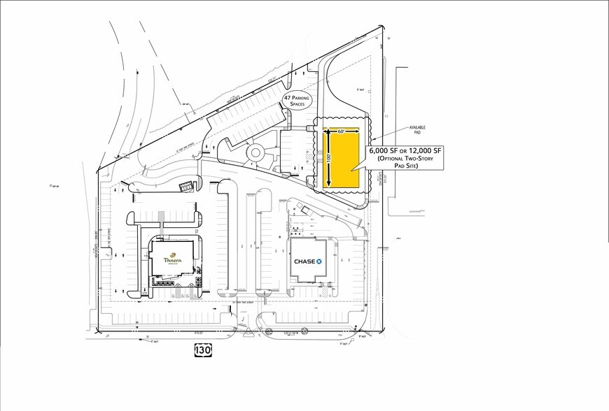
- Immediate adjacency to national retailers including Panera Bread, Chase Bank, Target, Sprouts, TJ Maxx, CVS, Burlington, Dollar Tree, and others
- More than half of site visitors also patronize East Windsor Town Center on the same day
Disponibilité de l’espace (1)
Afficher le tarif en
- Espace
- Surface
- Durée
- Loyer
- Type de loyer
| Espace | Surface | Durée | Loyer | Type de loyer | ||
| 1er étage | 557 – 1 115 m² | Négociable | Sur demande Sur demande Sur demande Sur demande | À déterminer |
1er étage
The subject pad site will include 6,000 SF-8,000 SF on the first floor, and there is an opportunity for a two-level building totaling 12,000 SF for a retail or office building.
- Prominent Route 130 frontage
- Strong daily traffic exposure
- Ample on-site parking provided
Types de loyers
Le montant et le type de loyer que l’occupant (locataire) est tenu de payer au propriétaire (bailleur) sur la durée du bail sont négociés avant la signature du bail par les deux parties. Le type de loyer varie selon les services fournis. Par exemple, le prix d’un loyer triple net est habituellement inférieur à celui d’un bail à service complet puisque l’occupant est tenu d’assumer des dépenses supplémentaires par rapport au loyer de base. Contacter le broker chargé de l’annonce pour bien comprendre les coûts associés ou les dépenses supplémentaires pour chaque type de loyer.
1. Service complet: Un loyer qui comprend des services d’immeuble standards normaux fournis par le propriétaire dans le cadre d’une location annuelle de base.
2. Double net (NN): L’occupant paie seulement deux des frais de l’immeuble. Le propriétaire et l’occupant déterminent ces frais spécifiques avant la signature du bail.
3. Triple net (NNN): Un bail selon lequel l’occupant est responsable de tous les frais liés à sa part proportionnelle d’occupation de l’immeuble.
4. Brut modifié: Le brut modifié est un type général de bail dans lequel l’occupant est en général responsable de sa part proportionnelle d’une ou de plusieurs dépenses. C’est le propriétaire qui paie les frais restants. Consultez la liste ci-dessous pour connaître les structures de loyers bruts modifiés les plus courantes : 4. Plus services publics: Un type de bail brut modifié, où l’occupant est responsable à hauteur de sa part proportionnelle des services publics en plus du loyer. 4. Plus nettoyage: Un type de bail brut modifié, où l’occupant est responsable à hauteur de sa part proportionnelle du nettoyage en plus du loyer. 4. Plus électricité: Un type de bail brut modifié, où l’occupant est responsable à hauteur de sa part proportionnelle du coût de la consommation électrique en plus du loyer. 4. Plus électricité et nettoyage: Un type de bail brut modifié, où l’occupant est responsable à hauteur de sa part proportionnelle du coût de la consommation électrique et du nettoyage en plus du loyer. 4. Plus services publics et charges: Un type de bail brut modifié où l’occupant est responsable à hauteur de sa part proportionnelle des services publics et du coût de nettoyage en plus du loyer. 4. Bail industriel brut: Un type de bail brut modifié dans lequel l’occupant paie un ou plusieurs des frais en plus du loyer. Le propriétaire et l’occupant déterminent ces frais spécifiques avant la signature du bail.
5. Électricité à la charge de l’occupant: Le propriétaire paie pour tous les services et l’occupant est responsable de sa propre utilisation de l’éclairage et des prises électriques dans l’espace qu’il occupe.
6. Négociable ou sur demande: Cette option est utilisée lorsque le contact de location n’indique pas le type de loyer ou de service.
7. À déterminer: À déterminer : utilisé pour les immeubles dont le type de services ou de loyer n’est pas connu, souvent quand l’immeuble n’est pas encore construit.
Informations sur l’immeuble
| Espace total disponible | 1 115 m² | Surface commerciale utile | 1 115 m² |
| Min. Divisible | 557 m² | Année de construction | 2027 |
| Type de bien | Local commercial | Statut de la construction | Avant-projet |
| Sous-type de bien | Immeuble de commerce |
| Espace total disponible | 1 115 m² |
| Min. Divisible | 557 m² |
| Type de bien | Local commercial |
| Sous-type de bien | Immeuble de commerce |
| Surface commerciale utile | 1 115 m² |
| Année de construction | 2027 |
| Statut de la construction | Avant-projet |
À propos du bien
392 Route 130 in East Windsor, New Jersey presents a highly visible retail and office pad opportunity along one of Central New Jersey’s most heavily traveled commercial corridors. The site is strategically located on Route 130 South, less than one mile from the Route 133 bypass, which provides seamless connectivity to the New Jersey Turnpike at Exit 8. This location places the property within a dense, affluent trade area supported by strong household incomes and consistent daytime population activity. The property benefits from exceptional retail synergy, with direct cross-access and shared circulation into both East Windsor Town Center and East Windsor Village. These neighboring centers are anchored by a mix of national and regional tenants and collectively generate millions of annual visits, driving sustained consumer traffic throughout the day. The subject site captures this flow, with data indicating that a majority of visitors also shop adjacent centers during the same trip. The pad allows for a flexible building configuration, including the potential for a two-level retail or office structure. Proposed pylon signage along Route 130 further enhances visibility and brand presence. Highway Commercial zoning supports a wide range of permitted uses including retail, medical, professional offices, restaurants, financial institutions, and hospitality-oriented tenants, making the site well suited for both service-driven and experiential concepts. Surrounding development, strong traffic counts, and established national co-tenancy position 392 Route 130 as a compelling opportunity for tenants seeking long-term visibility and access within a proven suburban retail node
Principaux commerces à proximité
Présenté par
392 Route 130
Hum, une erreur s’est produite lors de l’envoi de votre message. Veuillez réessayer.
Merci ! Votre message a été envoyé.



