Votre e-mail a été envoyé.
Tri-City Medical 3907 Waring Rd Bureaux/Médical | 202 m² | À louer | Oceanside, CA 92056



Certaines informations ont été traduites automatiquement.
Informations principales
- Prime medical office location adjacent to Tri-City Medical Center, offering strong referral potential and access to an established healthcare network.
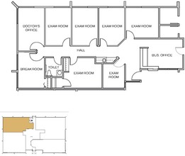
- Available suite includes six exam rooms, a doctor’s office, waiting area, in-suite restroom, breakroom, and reception space.
Tous les espace disponibles(1)
Afficher les loyers en
- Espace
- Surface
- Durée
- Loyer
- Type de bien
- Aménagement
- Disponible
Suite 3 • Space Available: 2,172 SF • Lease Rate: Call for details • Lease Type: Call for details • Suite Description: 6 Exam Rooms. Doctor’s Office. Waiting Room. In-Suite Bathroom. Breakroom. Reception. Floor Plan: https://medwestrealty.com/wp-content/uploads/2024/05/Suite-3.png Virtual Tour: https://my.matterport.com/show/?m=EFPVKEzdpwj
- Entièrement aménagé comme Cabinet médical standard
- Espace en excellent état
- Toilettes privées
- Des finitions améliorées qui sont facilement réutilisées
- 6 bureaux privés
- Aire de réception
- Lumière naturelle abondante
| Espace | Surface | Durée | Loyer | Type de bien | Aménagement | Disponible |
| 1er étage, bureau 3 | 202 m² | Négociable | Sur demande Sur demande Sur demande Sur demande | Bureaux/Médical | Construction achevée | Maintenant |
1er étage, bureau 3
| Surface |
| 202 m² |
| Durée |
| Négociable |
| Loyer |
| Sur demande Sur demande Sur demande Sur demande |
| Type de bien |
| Bureaux/Médical |
| Aménagement |
| Construction achevée |
| Disponible |
| Maintenant |
1er étage, bureau 3
| Surface | 202 m² |
| Durée | Négociable |
| Loyer | Sur demande |
| Type de bien | Bureaux/Médical |
| Aménagement | Construction achevée |
| Disponible | Maintenant |
Suite 3 • Space Available: 2,172 SF • Lease Rate: Call for details • Lease Type: Call for details • Suite Description: 6 Exam Rooms. Doctor’s Office. Waiting Room. In-Suite Bathroom. Breakroom. Reception. Floor Plan: https://medwestrealty.com/wp-content/uploads/2024/05/Suite-3.png Virtual Tour: https://my.matterport.com/show/?m=EFPVKEzdpwj
- Entièrement aménagé comme Cabinet médical standard
- 6 bureaux privés
- Espace en excellent état
- Aire de réception
- Toilettes privées
- Lumière naturelle abondante
- Des finitions améliorées qui sont facilement réutilisées
Aperçu du bien
Caractéristiques de la propriété : ÉQUIPEMENTS DE LA SUITE • Suite de cabinet médical à un étage • Lumière naturelle abondante dans la suite grâce aux grandes fenêtres et aux lucarnes • Finitions améliorées faciles à réutiliser LOBBY PARTAGÉ • Le bâtiment possède de solides écosystèmes de prestataires de soins de santé avec un solide réseau de référence • Le grand hall d'entrée commun favorise les recommandations et permet aux patients d'attendre dans un endroit confortable avant leur rendez-vous FACILITÉ D'ACCÈS • Le bâtiment est situé à côté du centre médical Tri-City • Accès facile à l'autoroute 78 • Les sous-marchés Vista, Oceanside et San Marcos sont facilement accessibles
- Signalisation
Informations sur l’immeuble
Présenté par
Tri-City Medical | 3907 Waring Rd
Hum, une erreur s’est produite lors de l’envoi de votre message. Veuillez réessayer.
Merci ! Votre message a été envoyé.


