Votre e-mail a été envoyé.
Certaines informations ont été traduites automatiquement.
Informations principales
- Convenient access to the 110 Freeway for efficient transportation and distribution.
- Air-conditioned office space with LED lighting for improved work environment.
- Two ground-level roll-up loading doors for streamlined loading and unloading.
- Clear span warehouse with 12 to 14-foot clear heights for flexible operations.
- Distributed power infrastructure to support various industrial uses.
- Six on-site parking spaces to accommodate staff and visitors.
Caractéristiques
Tous les espace disponibles(1)
Afficher les loyers en
- Espace
- Surface
- Durée
- Loyer
- Type de bien
- Aménagement
- Disponible
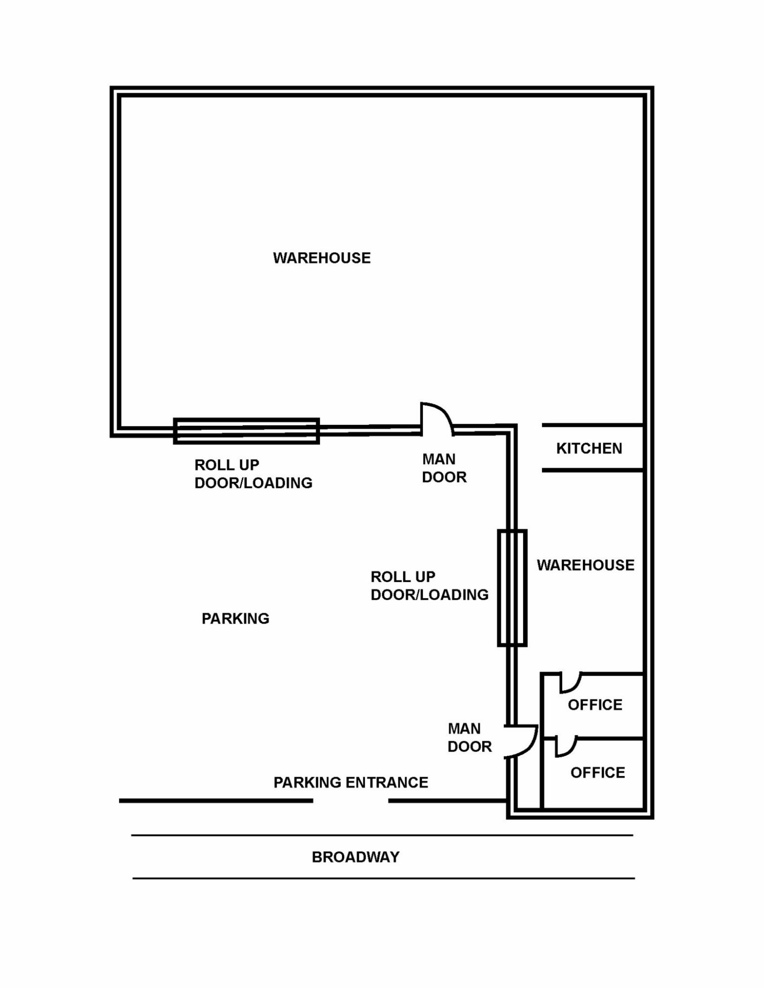
This industrial property offers 5,320 square feet of functional space in a highly accessible Los Angeles location. Positioned near the 110 Freeway, the site provides excellent connectivity for distribution and logistics operations. The building includes approximately 450 square feet of office space, creating a balanced layout for administrative and operational needs. The property features two ground-level roll-up loading doors, clear heights ranging from 12 to 14 feet, and a clear span warehouse design that maximizes usable space. Additional amenities include LED lighting, distributed power, and air-conditioned offices for enhanced comfort. Six on-site parking spaces support employee and visitor convenience. Available immediately, this property is well-suited for businesses seeking efficient warehouse functionality with office integration in a central Los Angeles location.
- Il est possible que le loyer annoncé ne comprenne pas certains services publics, services d’immeuble et frais immobiliers.
- 2 accès plain-pied
- Two ground-level roll-up loading doors
- Stand Alone Building
- Comprend 42 m² d’espace de bureau dédié
- Air-conditioned offices with LED lighting
- Close access to 110 Freeway for easy distribution
- Gated Secure Parking
| Espace | Surface | Durée | Loyer | Type de bien | Aménagement | Disponible |
| 1er étage | 494 m² | 3-5 Ans | 165,83 € /m²/an 13,82 € /m²/mois 81 958 € /an 6 830 € /mois | Industriel/Logistique | Construction achevée | Maintenant |
1er étage
| Surface |
| 494 m² |
| Durée |
| 3-5 Ans |
| Loyer |
| 165,83 € /m²/an 13,82 € /m²/mois 81 958 € /an 6 830 € /mois |
| Type de bien |
| Industriel/Logistique |
| Aménagement |
| Construction achevée |
| Disponible |
| Maintenant |
1er étage
| Surface | 494 m² |
| Durée | 3-5 Ans |
| Loyer | 165,83 € /m²/an |
| Type de bien | Industriel/Logistique |
| Aménagement | Construction achevée |
| Disponible | Maintenant |
This industrial property offers 5,320 square feet of functional space in a highly accessible Los Angeles location. Positioned near the 110 Freeway, the site provides excellent connectivity for distribution and logistics operations. The building includes approximately 450 square feet of office space, creating a balanced layout for administrative and operational needs. The property features two ground-level roll-up loading doors, clear heights ranging from 12 to 14 feet, and a clear span warehouse design that maximizes usable space. Additional amenities include LED lighting, distributed power, and air-conditioned offices for enhanced comfort. Six on-site parking spaces support employee and visitor convenience. Available immediately, this property is well-suited for businesses seeking efficient warehouse functionality with office integration in a central Los Angeles location.
- Il est possible que le loyer annoncé ne comprenne pas certains services publics, services d’immeuble et frais immobiliers.
- Comprend 42 m² d’espace de bureau dédié
- 2 accès plain-pied
- Air-conditioned offices with LED lighting
- Two ground-level roll-up loading doors
- Close access to 110 Freeway for easy distribution
- Stand Alone Building
- Gated Secure Parking
Aperçu du bien
The property is located on South Broadway in Los Angeles, California, with proximity to the 110 Freeway. It consists of an industrial building with warehouse and office components. The site includes two ground-level loading doors, on-site parking, and a clear span interior. The building has distributed power and air-conditioned office areas.
Faits sur l’installation entrepôt
Occupants
- Étage
- Nom de l’occupant
- Secteur d’activité
- 1er
- Angel City Woodshop
- Manufacture
- 1er
- M & T Apparel Inc
- Enseigne
Présenté par
3904 S Broadway
Hum, une erreur s’est produite lors de l’envoi de votre message. Veuillez réessayer.
Merci ! Votre message a été envoyé.






