Votre e-mail a été envoyé.
Certaines informations ont été traduites automatiquement.
Informations principales
- Surrounded by regional amenities and labor pool
- Renovated industrial site with secured fenced yard
- Direct access to Highway 76 and I-5 freeway
Caractéristiques
Tous les espaces disponibles(3)
Afficher les loyers en
- Espace
- Surface
- Durée
- Loyer
- Type de bien
- Aménagement
- Disponible
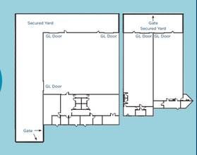
1 GL Roll-Up Door, Private Office, Reception, & Secured Yard Lease Rate: Negotiable + *Est. NNN
- Le loyer ne comprend pas les services publics, les frais immobiliers ou les services de l’immeuble.
- Peut être associé à un ou plusieurs espaces supplémentaires pour obtenir jusqu’à 1 911 m² d’espace adjacent.
- Secured Yard
- 1 accès plain-pied
- Cour
1 GL Roll-Up Door, Private Offices, Reception, & Secured Yard Lease Rate: Negotiable + *Est. NNN
- Le loyer ne comprend pas les services publics, les frais immobiliers ou les services de l’immeuble.
- Peut être associé à un ou plusieurs espaces supplémentaires pour obtenir jusqu’à 1 911 m² d’espace adjacent.
- Cour
- Direct access to Highway 76 and I-5 freeway
- 1 accès plain-pied
- Aire de réception
- Renovated industrial site with secured fenced yard
3 GL Roll-Up Doors, Private Offices, Open Office, Reception, & Secured Yard Lease Rate: Negotiable + *Est. NNN
- Le loyer ne comprend pas les services publics, les frais immobiliers ou les services de l’immeuble.
- Peut être associé à un ou plusieurs espaces supplémentaires pour obtenir jusqu’à 1 911 m² d’espace adjacent.
- Cour
- 3 accès plain-pied
- Aire de réception
- Secured Yard
| Espace | Surface | Durée | Loyer | Type de bien | Aménagement | Disponible |
| 1er étage – 392 | 386 m² | Négociable | Sur demande Sur demande Sur demande Sur demande | Industriel/Logistique | Construction partielle | 01/06/2026 |
| 1er étage – 394 | 410 m² | Négociable | Sur demande Sur demande Sur demande Sur demande | Industriel/Logistique | Construction partielle | Maintenant |
| 1er étage – 398 | 1 115 m² | Négociable | Sur demande Sur demande Sur demande Sur demande | Industriel/Logistique | Construction partielle | 01/06/2026 |
1er étage – 392
| Surface |
| 386 m² |
| Durée |
| Négociable |
| Loyer |
| Sur demande Sur demande Sur demande Sur demande |
| Type de bien |
| Industriel/Logistique |
| Aménagement |
| Construction partielle |
| Disponible |
| 01/06/2026 |
1er étage – 394
| Surface |
| 410 m² |
| Durée |
| Négociable |
| Loyer |
| Sur demande Sur demande Sur demande Sur demande |
| Type de bien |
| Industriel/Logistique |
| Aménagement |
| Construction partielle |
| Disponible |
| Maintenant |
1er étage – 398
| Surface |
| 1 115 m² |
| Durée |
| Négociable |
| Loyer |
| Sur demande Sur demande Sur demande Sur demande |
| Type de bien |
| Industriel/Logistique |
| Aménagement |
| Construction partielle |
| Disponible |
| 01/06/2026 |
1er étage – 392
| Surface | 386 m² |
| Durée | Négociable |
| Loyer | Sur demande |
| Type de bien | Industriel/Logistique |
| Aménagement | Construction partielle |
| Disponible | 01/06/2026 |
1 GL Roll-Up Door, Private Office, Reception, & Secured Yard Lease Rate: Negotiable + *Est. NNN
- Le loyer ne comprend pas les services publics, les frais immobiliers ou les services de l’immeuble.
- 1 accès plain-pied
- Peut être associé à un ou plusieurs espaces supplémentaires pour obtenir jusqu’à 1 911 m² d’espace adjacent.
- Cour
- Secured Yard
1er étage – 394
| Surface | 410 m² |
| Durée | Négociable |
| Loyer | Sur demande |
| Type de bien | Industriel/Logistique |
| Aménagement | Construction partielle |
| Disponible | Maintenant |
1 GL Roll-Up Door, Private Offices, Reception, & Secured Yard Lease Rate: Negotiable + *Est. NNN
- Le loyer ne comprend pas les services publics, les frais immobiliers ou les services de l’immeuble.
- 1 accès plain-pied
- Peut être associé à un ou plusieurs espaces supplémentaires pour obtenir jusqu’à 1 911 m² d’espace adjacent.
- Aire de réception
- Cour
- Renovated industrial site with secured fenced yard
- Direct access to Highway 76 and I-5 freeway
1er étage – 398
| Surface | 1 115 m² |
| Durée | Négociable |
| Loyer | Sur demande |
| Type de bien | Industriel/Logistique |
| Aménagement | Construction partielle |
| Disponible | 01/06/2026 |
3 GL Roll-Up Doors, Private Offices, Open Office, Reception, & Secured Yard Lease Rate: Negotiable + *Est. NNN
- Le loyer ne comprend pas les services publics, les frais immobiliers ou les services de l’immeuble.
- 3 accès plain-pied
- Peut être associé à un ou plusieurs espaces supplémentaires pour obtenir jusqu’à 1 911 m² d’espace adjacent.
- Aire de réception
- Cour
- Secured Yard
Faits sur l’installation manufacture
Occupants
- Étage
- Nom de l’occupant
- Secteur d’activité
- 1er
- Bio Clean Environmental
- Manufacture
- 1er
- Buggy whip
- -
- 1er
- Cartel On-line Board & Gear Shop
- Enseigne
- 1er
- Modular Wetlands
- -
- 1er
- Superior Foam Products, Inc
- Manufacture
Présenté par
390-398 Via El Centro
Hum, une erreur s’est produite lors de l’envoi de votre message. Veuillez réessayer.
Merci ! Votre message a été envoyé.








