Votre e-mail a été envoyé.
Certaines informations ont été traduites automatiquement.
INFORMATIONS PRINCIPALES
- LE PREMIER NOUVEAU DÉVELOPPEMENT DU CENTRE-VILLE DE FLUSHING
- TROISIÈME VILLE LA PLUS FRÉQUENTÉE PAR LES PIÉTONS À NEW YORK
- STATIONNEMENT SOUTERRAIN ET HORS SOL
- TRAFIC PIÉTONNIER DENSE
- ACCESSIBLE EN MÉTRO ET EN BUS
TOUS LES ESPACES DISPONIBLES(3)
Afficher les loyers en
- ESPACE
- SURFACE
- DURÉE
- LOYER
- TYPE DE BIEN
- ÉTAT
- DISPONIBLE
Ground level retail space for lease. Build to suit.
- Espace en extrémité très recherché
- Espace d’angle
- Vitrine
- Le locataire peut utiliser les panneaux de signalisation sur la 39e Avenue et la rue Union
- High-Visibility Corner Retail Space
- Ventilation et chauffage centraux
- Hauts plafonds
- Espace en ligne avec façade
- Last Space Available in Flushing Commons
Ground level retail space for lease. Build to suit.
- Contigu et aligné avec d’autres locaux commerciaux
- Hauts plafonds
- Le locataire peut utiliser les panneaux de signalisation sur la 39e Avenue et la rue Union
- Ventilation et chauffage centraux
- Vitrine
Ground level retail space for lease. Build to suit.
- Espace en extrémité très recherché
- Espace d’angle
- Vitrine
- Ventilation et chauffage centraux
- Hauts plafonds
- Le locataire peut utiliser les panneaux de signalisation sur la 39e Avenue et la rue Union
| Espace | Surface | Durée | Loyer | Type de bien | État | Disponible |
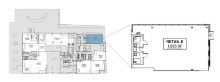
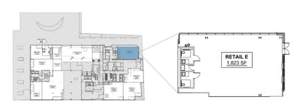
| 1er étage, bureau Retail E | 169 m² | Négociable | Sur demande Sur demande Sur demande Sur demande | Local commercial | Espace brut | Maintenant |
| 1er étage, bureau Retail E- Division 1 | 56 m² | Négociable | Sur demande Sur demande Sur demande Sur demande | Local commercial | Espace brut | Maintenant |
| 1er étage, bureau Retail E- Division 2 | 114 m² | Négociable | Sur demande Sur demande Sur demande Sur demande | Local commercial | Espace brut | Maintenant |
1er étage, bureau Retail E
| Surface |
| 169 m² |
| Durée |
| Négociable |
| Loyer |
| Sur demande Sur demande Sur demande Sur demande |
| Type de bien |
| Local commercial |
| État |
| Espace brut |
| Disponible |
| Maintenant |
1er étage, bureau Retail E- Division 1
| Surface |
| 56 m² |
| Durée |
| Négociable |
| Loyer |
| Sur demande Sur demande Sur demande Sur demande |
| Type de bien |
| Local commercial |
| État |
| Espace brut |
| Disponible |
| Maintenant |
1er étage, bureau Retail E- Division 2
| Surface |
| 114 m² |
| Durée |
| Négociable |
| Loyer |
| Sur demande Sur demande Sur demande Sur demande |
| Type de bien |
| Local commercial |
| État |
| Espace brut |
| Disponible |
| Maintenant |
1er étage, bureau Retail E
| Surface | 169 m² |
| Durée | Négociable |
| Loyer | Sur demande |
| Type de bien | Local commercial |
| État | Espace brut |
| Disponible | Maintenant |
Ground level retail space for lease. Build to suit.
- Espace en extrémité très recherché
- Ventilation et chauffage centraux
- Espace d’angle
- Hauts plafonds
- Vitrine
- Espace en ligne avec façade
- Le locataire peut utiliser les panneaux de signalisation sur la 39e Avenue et la rue Union
- Last Space Available in Flushing Commons
- High-Visibility Corner Retail Space
1er étage, bureau Retail E- Division 1
| Surface | 56 m² |
| Durée | Négociable |
| Loyer | Sur demande |
| Type de bien | Local commercial |
| État | Espace brut |
| Disponible | Maintenant |
Ground level retail space for lease. Build to suit.
- Contigu et aligné avec d’autres locaux commerciaux
- Ventilation et chauffage centraux
- Hauts plafonds
- Vitrine
- Le locataire peut utiliser les panneaux de signalisation sur la 39e Avenue et la rue Union
1er étage, bureau Retail E- Division 2
| Surface | 114 m² |
| Durée | Négociable |
| Loyer | Sur demande |
| Type de bien | Local commercial |
| État | Espace brut |
| Disponible | Maintenant |
Ground level retail space for lease. Build to suit.
- Espace en extrémité très recherché
- Ventilation et chauffage centraux
- Espace d’angle
- Hauts plafonds
- Vitrine
- Le locataire peut utiliser les panneaux de signalisation sur la 39e Avenue et la rue Union
OCCUPANTS
- ÉTAGE
- NOM DE L’OCCUPANT
- SECTEUR D’ACTIVITÉ
- 1er
- Atelier New York
- Enseigne
- 1er
- Elements Pharmacy
- Santé et assistance sociale
- 1er
- Emblem Health
- Santé et assistance sociale
- 1er
- Empire Blue Cross Blue Shield
- Santé et assistance sociale
- 2e
- Haidilao Hotpot
- Hébergement et restauration
- 1er
- Hanover Bank
- Finance et assurances
- 1er
- Metro City Bank
- Finance et assurances
INFORMATIONS SUR L’IMMEUBLE
APERÇU DU BIEN
Situé dans le centre-ville de Flushing, Flushing Commons est le nouveau développement phare du quartier. Il comprend 53 000 pieds carrés d'espace commercial de premier ordre, 164 000 pieds carrés de bureaux médicaux et professionnels de premier ordre, un projet de 598 unités de résidences haut de gamme, 1 600 places de stationnement et une place publique en plein air de 1,5 acre avec des cafés en plein air, des restaurants et des boutiques. Un lieu de rassemblement central, idéal pour les familles et les amis qui souhaitent se rencontrer et profiter de la communauté. Le centre-ville de Flushing est le centre de transport en commun le plus fréquenté de l'arrondissement de Queens en termes de fréquentation et de circulation piétonnière. Il s'agit du dernier arrêt de la ligne 7 du métro, où elle est reliée à plus de 20 lignes de bus.
- Accès 24 h/24
- Banque
- Ligne d’autobus
- Trains de banlieue
- Concierge
- Cour
- Métro
- Property Manager sur place
- Restaurant
- Signalisation
- Classe de performance énergétique –A
- Réception
- Terrasse sur le toit
- Station de recharge de voitures
- Local à vélos
- Toilettes incluses dans le bail
- Hauts plafonds
- Open space
- Sièges extérieurs
- Climatisation
PRINCIPAUX COMMERCES À PROXIMITÉ
Présenté par
3808 Union St
Hum, une erreur s’est produite lors de l’envoi de votre message. Veuillez réessayer.
Merci ! Votre message a été envoyé.












