Connectez-vous/S’inscrire
Votre e-mail a été envoyé.
Certaines informations ont été traduites automatiquement.
Tous les espace disponibles(1)
Afficher les loyers en
- Espace
- Surface
- Durée
- Loyer
- Type de bien
- État
- Disponible
New Development. ADA compliant with ramp. Situated at the base of 184-unit residential building.
- Contigu et aligné avec d’autres locaux commerciaux
- Plafonds finis: 4,27 mètres
- Espace nécessitant des rénovations
- 65' of frontage
| Espace | Surface | Durée | Loyer | Type de bien | État | Disponible |
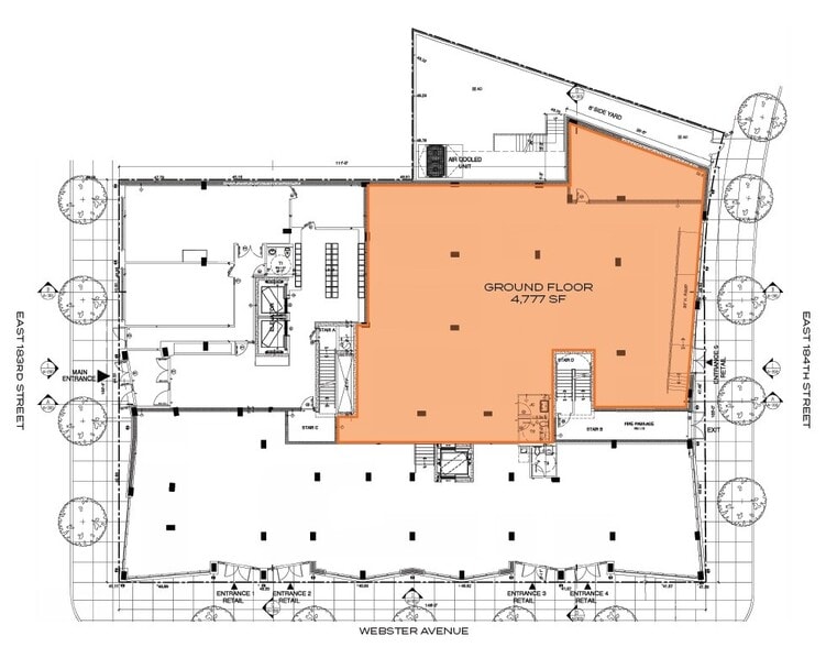
| RDC | 444 m² | Négociable | Sur demande Sur demande Sur demande Sur demande | Local commercial | Espace brut | Maintenant |
RDC
| Surface |
| 444 m² |
| Durée |
| Négociable |
| Loyer |
| Sur demande Sur demande Sur demande Sur demande |
| Type de bien |
| Local commercial |
| État |
| Espace brut |
| Disponible |
| Maintenant |
1 sur 2
Vidéos
Visite extérieure 3D Matterport
Visite 3D
Photos
Street view
Rue
Carte
RDC
| Surface | 444 m² |
| Durée | Négociable |
| Loyer | Sur demande |
| Type de bien | Local commercial |
| État | Espace brut |
| Disponible | Maintenant |
New Development. ADA compliant with ramp. Situated at the base of 184-unit residential building.
- Contigu et aligné avec d’autres locaux commerciaux
- Espace nécessitant des rénovations
- Plafonds finis: 4,27 mètres
- 65' of frontage
Informations sur l’immeuble
| Espace total disponible | 444 m² | Style d’appartement | De hauteur moyenne |
| Nb de lots | 182 | Surface de l’immeuble | 15 272 m² |
| Type de bien | Immeuble residentiel | Année de construction | 2023 |
| Sous-type de bien | Appartement |
| Espace total disponible | 444 m² |
| Nb de lots | 182 |
| Type de bien | Immeuble residentiel |
| Sous-type de bien | Appartement |
| Style d’appartement | De hauteur moyenne |
| Surface de l’immeuble | 15 272 m² |
| Année de construction | 2023 |
À propos du bien
• New Development • ADA compliant with ramp • Situated at the base of 184 unit residential building • Dense commercial/residential area
1 1
Walk Score®
Idéal pour les promeneurs (94)
Transit Score®
Un paradis pour l’usager (100)
Principaux commerces à proximité
1 sur 8
Vidéos
Visite extérieure 3D Matterport
Visite 3D
Photos
Street view
Rue
Carte
1 sur 1
Présenté par
Twin Parks Terrace | 373 E 183rd St
Vous êtes déjà membre ? Connectez-vous
Hum, une erreur s’est produite lors de l’envoi de votre message. Veuillez réessayer.
Merci ! Votre message a été envoyé.






