Connectez-vous/S’inscrire
Votre e-mail a été envoyé.
Certaines informations ont été traduites automatiquement.
Informations principales
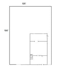
- ±2,050 SF HVAC Showroom.
- Power 400 Amps 3 phase.
- 1 Grade Level Door.
- ±5,132 SF of Storage.
- ±125’ of Street Frontage.
Caractéristiques
Accès plain-pied
1
Places de stationnement standard
11
Tous les espace disponibles(1)
Afficher les loyers en
- Espace
- Surface
- Durée
- Loyer
- Type de bien
- Aménagement
- Disponible
±7,182 SF Free Standing Building ±2,050 SF Showroom ±5,132 SF of Storage Power 400 Amps 3 phase ±23,750 SF Fenced and Paved lot ±125’ of Street Frontage 1 Grade Level Door
- 1 accès plain-pied
| Espace | Surface | Durée | Loyer | Type de bien | Aménagement | Disponible |
| 1er étage | 667 m² | Négociable | Sur demande Sur demande Sur demande Sur demande | Industriel/Logistique | Construction achevée | Maintenant |
1er étage
| Surface |
| 667 m² |
| Durée |
| Négociable |
| Loyer |
| Sur demande Sur demande Sur demande Sur demande |
| Type de bien |
| Industriel/Logistique |
| Aménagement |
| Construction achevée |
| Disponible |
| Maintenant |
1 sur 1
Vidéos
Visite extérieure 3D Matterport
Visite 3D
Photos
Street view
Rue
Carte
1er étage
| Surface | 667 m² |
| Durée | Négociable |
| Loyer | Sur demande |
| Type de bien | Industriel/Logistique |
| Aménagement | Construction achevée |
| Disponible | Maintenant |
±7,182 SF Free Standing Building ±2,050 SF Showroom ±5,132 SF of Storage Power 400 Amps 3 phase ±23,750 SF Fenced and Paved lot ±125’ of Street Frontage 1 Grade Level Door
- 1 accès plain-pied
Aperçu du bien
±7,182 SF Free Standing Building. ±23,750 SF Fenced and Paved lot.
Faits sur l’installation Industriel/Logistique
Surface de l’immeuble
667 m²
Surface du lot
0,23 ha
Année de construction
1955
Développement et livraisons
Béton armé
Zonage
CC, Fremont
Occupants
- Étage
- Nom de l’occupant
- Secteur d’activité
- 1er
- Best Tile Inc
- Grossiste
- 1er
- Centerville Saw & Tool
- Enseigne
1 1
Fairly walkable
50/100
Exceptionally drivable
100/100
Good public transit
70/100
Moderately bikeable
60/100
1 sur 12
Vidéos
Visite extérieure 3D Matterport
Visite 3D
Photos
Street view
Rue
Carte
1 sur 1
Présenté par
3674-3684 Peralta Blvd
Vous êtes déjà membre ? Connectez-vous
Hum, une erreur s’est produite lors de l’envoi de votre message. Veuillez réessayer.
Merci ! Votre message a été envoyé.





