Votre e-mail a été envoyé.
Certaines informations ont été traduites automatiquement.
Informations principales
- Nouvelle façade à installer et adaptée à une variété d'utilisations
- Bâtiment mitoyen d'un étage
- Fait partie d'un défilé commercial bondé et entièrement occupé
Tous les espaces disponibles(3)
Afficher les loyers en
- Espace
- Surface
- Durée
- Loyer
- Type de bien
- Aménagement
- Disponible
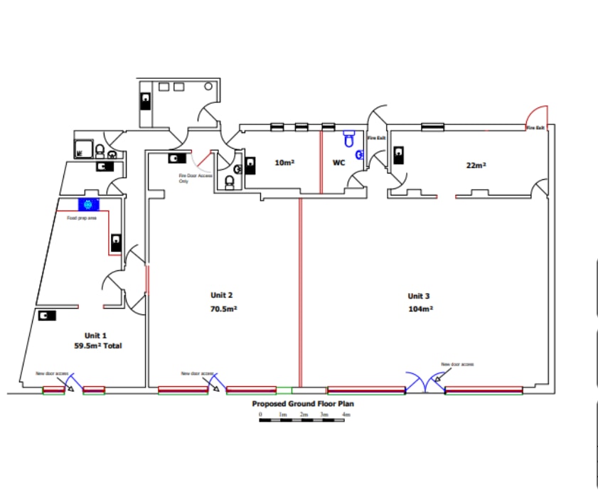
3 individual units will be formed and suitable for office, retail and hot food take-away uses. The units will be let in shell condition and ready for the ingoing tenants fit out.
- Classe d’utilisation : Classe 5
- Peut être associé à un ou plusieurs espaces supplémentaires pour obtenir jusqu’à 296 m² d’espace adjacent.
- Prêt pour l'aménagement des locataires entrants.
- Convient pour 2 à 6 personnes
- État de la coque
- Unités subdivisées
3 individual units will be formed and suitable for office, retail and hot food take-away uses. The units will be let in shell condition and ready for the ingoing tenants fit out.
- Classe d’utilisation : Classe 5
- Peut être associé à un ou plusieurs espaces supplémentaires pour obtenir jusqu’à 296 m² d’espace adjacent.
- Prêt pour l'aménagement des locataires entrants.
- Convient pour 3 à 8 personnes
- État de la coque
- Unités subdivisées
3 individual units will be formed and suitable for office, retail and hot food take-away uses. The units will be let in shell condition and ready for the ingoing tenants fit out.
- Classe d’utilisation : Classe 5
- Peut être associé à un ou plusieurs espaces supplémentaires pour obtenir jusqu’à 296 m² d’espace adjacent.
- Prêt pour l'aménagement des locataires entrants.
- Convient pour 4 à 12 personnes
- État de la coque
- Unités subdivisées
| Espace | Surface | Durée | Loyer | Type de bien | Aménagement | Disponible |
| RDC, bureau 1 | 65 m² | 10-30 Ans | Sur demande Sur demande Sur demande Sur demande | Bureau | Espace brut | Maintenant |
| RDC, bureau 2 | 92 m² | 10-30 Ans | Sur demande Sur demande Sur demande Sur demande | Bureau | Espace brut | Maintenant |
| RDC, bureau 3 | 139 m² | 10-30 Ans | Sur demande Sur demande Sur demande Sur demande | Bureau | Espace brut | Maintenant |
RDC, bureau 1
| Surface |
| 65 m² |
| Durée |
| 10-30 Ans |
| Loyer |
| Sur demande Sur demande Sur demande Sur demande |
| Type de bien |
| Bureau |
| Aménagement |
| Espace brut |
| Disponible |
| Maintenant |
RDC, bureau 2
| Surface |
| 92 m² |
| Durée |
| 10-30 Ans |
| Loyer |
| Sur demande Sur demande Sur demande Sur demande |
| Type de bien |
| Bureau |
| Aménagement |
| Espace brut |
| Disponible |
| Maintenant |
RDC, bureau 3
| Surface |
| 139 m² |
| Durée |
| 10-30 Ans |
| Loyer |
| Sur demande Sur demande Sur demande Sur demande |
| Type de bien |
| Bureau |
| Aménagement |
| Espace brut |
| Disponible |
| Maintenant |
RDC, bureau 1
| Surface | 65 m² |
| Durée | 10-30 Ans |
| Loyer | Sur demande |
| Type de bien | Bureau |
| Aménagement | Espace brut |
| Disponible | Maintenant |
3 individual units will be formed and suitable for office, retail and hot food take-away uses. The units will be let in shell condition and ready for the ingoing tenants fit out.
- Classe d’utilisation : Classe 5
- Convient pour 2 à 6 personnes
- Peut être associé à un ou plusieurs espaces supplémentaires pour obtenir jusqu’à 296 m² d’espace adjacent.
- État de la coque
- Prêt pour l'aménagement des locataires entrants.
- Unités subdivisées
RDC, bureau 2
| Surface | 92 m² |
| Durée | 10-30 Ans |
| Loyer | Sur demande |
| Type de bien | Bureau |
| Aménagement | Espace brut |
| Disponible | Maintenant |
3 individual units will be formed and suitable for office, retail and hot food take-away uses. The units will be let in shell condition and ready for the ingoing tenants fit out.
- Classe d’utilisation : Classe 5
- Convient pour 3 à 8 personnes
- Peut être associé à un ou plusieurs espaces supplémentaires pour obtenir jusqu’à 296 m² d’espace adjacent.
- État de la coque
- Prêt pour l'aménagement des locataires entrants.
- Unités subdivisées
RDC, bureau 3
| Surface | 139 m² |
| Durée | 10-30 Ans |
| Loyer | Sur demande |
| Type de bien | Bureau |
| Aménagement | Espace brut |
| Disponible | Maintenant |
3 individual units will be formed and suitable for office, retail and hot food take-away uses. The units will be let in shell condition and ready for the ingoing tenants fit out.
- Classe d’utilisation : Classe 5
- Convient pour 4 à 12 personnes
- Peut être associé à un ou plusieurs espaces supplémentaires pour obtenir jusqu’à 296 m² d’espace adjacent.
- État de la coque
- Prêt pour l'aménagement des locataires entrants.
- Unités subdivisées
Aperçu du bien
Les sujets concernent un bâtiment en terrasses d'un étage qui, jusqu'à récemment, était occupé comme cabinet médical. chirurgie.
- Réception
- WC à usage exclusif de l’occupant
Informations sur l’immeuble
Présenté par
361 Methilhaven Rd
Hum, une erreur s’est produite lors de l’envoi de votre message. Veuillez réessayer.
Merci ! Votre message a été envoyé.





