Votre e-mail a été envoyé.
36 Toronto St Bureau | 222 m² | 4 étoiles | À louer | Toronto, ON M5C 1J4



Certaines informations ont été traduites automatiquement.
Informations principales sur la sous-location
- Fully built-out professional office space, move-in ready
- Expansive perimeter windows delivering abundant natural light
- Mix of private offices, large boardroom, and open workspace
- Efficient layout combining individual offices and collaborative work areas
Tous les espace disponibles(1)
Afficher les loyers en
- Espace
- Surface
- Durée
- Loyer
- Type de bien
- Aménagement
- Disponible
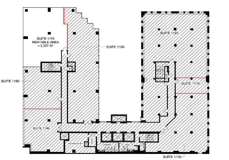
36 Toronto Street offers a 2,397-square-foot office suite available for sublease in downtown Toronto. The sublease term extends to November 29, 2027. The suite includes private offices, a boardroom, open work areas, and a kitchenette. Additional rent is estimated at $27.73 PSF for 2026. Availability is immediate.
- Espace en sous-location disponible auprès de l’occupant actuel
- Principalement open space
- Entièrement aménagé comme Bureau standard
- Convient pour 6 à 20 personnes
| Espace | Surface | Durée | Loyer | Type de bien | Aménagement | Disponible |
| 11e étage, bureau 1170 | 222 m² | Nov. 2027 | Sur demande Sur demande Sur demande Sur demande | Bureau | Construction achevée | 30 jours |
11e étage, bureau 1170
| Surface |
| 222 m² |
| Durée |
| Nov. 2027 |
| Loyer |
| Sur demande Sur demande Sur demande Sur demande |
| Type de bien |
| Bureau |
| Aménagement |
| Construction achevée |
| Disponible |
| 30 jours |
11e étage, bureau 1170
| Surface | 222 m² |
| Durée | Nov. 2027 |
| Loyer | Sur demande |
| Type de bien | Bureau |
| Aménagement | Construction achevée |
| Disponible | 30 jours |
36 Toronto Street offers a 2,397-square-foot office suite available for sublease in downtown Toronto. The sublease term extends to November 29, 2027. The suite includes private offices, a boardroom, open work areas, and a kitchenette. Additional rent is estimated at $27.73 PSF for 2026. Availability is immediate.
- Espace en sous-location disponible auprès de l’occupant actuel
- Entièrement aménagé comme Bureau standard
- Principalement open space
- Convient pour 6 à 20 personnes
Aperçu du bien
Positioned for accessibility and convenience, 36 Toronto Street places tenants within close reach of major financial institutions, transit options, and surrounding amenities in Toronto’s vibrant core.
- Atrium
- Ligne d’autobus
- Trains de banlieue
- Pressing
- Service de restauration
- Métro
- Système de sécurité
Informations sur l’immeuble
Occupants
- Étage
- Nom de l’occupant
- Secteur d’activité
- 1er
- Bar Goa
- Hébergement et restauration
- 2e
- BSäR Management Group Inc.
- Construction
- 1er
- Canada Post
- Transport et entreposage
- 9e
- Clarke Child & Family Law
- Services professionnels, scientifiques et techniques
- 10e
- FCA Insurance Brokers
- Finance et assurances
- 5e
- Harbour Equity
- Finance et assurances
- 8e
- Regus
- Immobilier
- 9e
- Robinsons Law
- Services professionnels, scientifiques et techniques
- 4e
- Veeva Systems Inc.
- Information
- 10e
- Welch LLP
- Services professionnels, scientifiques et techniques
Présenté par
36 Toronto St
Hum, une erreur s’est produite lors de l’envoi de votre message. Veuillez réessayer.
Merci ! Votre message a été envoyé.



