Votre e-mail a été envoyé.
Certaines informations ont été traduites automatiquement.
Informations principales sur le parc
- Two, four-story buildings with 198K SF of Class A office space featuring functional balconies, patios and expansive views.
- Prominent signage opportunities with I-5 freeway visibility.
- On-site amenities include a cafe, outdoor workspace and fitness center, and a quick drive to dining and retail at Del Mar Highlands Town Center.
- Flex+ move-in ready spaces are meticulously designed with the highest quality finishes and impeccable attention to detail.
- Optimally located with direct access to the I-5 and I-805 freeways and 56 freeway bypass and 20 minutes from San Diego International Airport.
- Nearby luxury residential communities including Del Mar, Carmel Valley and Rancho Santa Fe.
Faits sur le parc
| Espace total disponible | 5 321 m² | Type de parc | Parc de bureaux |
| Max. Contigu | 2 436 m² |
| Espace total disponible | 5 321 m² |
| Max. Contigu | 2 436 m² |
| Type de parc | Parc de bureaux |
Tous les espaces disponibles(6)
Afficher les loyers en
- Espace
- Surface
- Durée
- Loyer
- Type de bien
- Aménagement
- Disponible
- Loyer annoncé plus part proportionnelle des coûts de la consommation électrique
- Principalement open space
- 4 bureaux privés
- Espace en excellent état
- Beaucoup de lumière naturelle
- Entièrement aménagé comme Bureau standard
- Convient pour 13 à 42 personnes
- 2 salles de conférence
- Climatisation centrale
This is a Flex Workspace+tm suite : Yes Call to Show/Under Construction
- Loyer annoncé plus part proportionnelle des coûts de la consommation électrique
- Convient pour 15 à 48 personnes
- Espace en excellent état
- Principalement open space
- 2 salles de conférence
This is a Flex+ Workspace This space comes furnished
- Loyer annoncé plus part proportionnelle des coûts de la consommation électrique
- Principalement open space
- 11 bureaux privés
- Espace en excellent état
- Entièrement aménagé comme Bureau standard
- Convient pour 35 à 110 personnes
- 4 salles de conférence
- Climatisation centrale
| Espace | Surface | Durée | Loyer | Type de bien | Aménagement | Disponible |
| 1er étage, bureau 100 | 478 m² | Négociable | 462,70 € /m²/an 38,56 € /m²/mois 220 992 € /an 18 416 € /mois | Bureau | Construction achevée | Maintenant |
| 1er étage, bureau 140 | 552 m² | Négociable | 479,22 € /m²/an 39,94 € /m²/mois 264 502 € /an 22 042 € /mois | Bureau | Meublé et équipé | Maintenant |
| 2e étage, bureau 250 | 1 276 m² | Négociable | 462,70 € /m²/an 38,56 € /m²/mois 590 501 € /an 49 208 € /mois | Bureau | Construction achevée | Maintenant |
3580 Carmel Mountain Rd - 1er étage – Bureau 100
3580 Carmel Mountain Rd - 1er étage – Bureau 140
3580 Carmel Mountain Rd - 2e étage – Bureau 250
- Espace
- Surface
- Durée
- Loyer
- Type de bien
- Aménagement
- Disponible
- Loyer annoncé plus part proportionnelle des coûts de la consommation électrique
- Disposition open space
- 4 bureaux privés
- Espace en excellent état
- Entièrement aménagé comme Bureau standard
- Convient pour 16 à 50 personnes
- 1 salle de conférence
- Climatisation centrale
This is a Flex Workspace+tm suite : Yes Call to Show/Under Construction
- Loyer annoncé plus part proportionnelle des coûts de la consommation électrique
- Disposition open space
- 7 bureaux privés
- Espace en excellent état
- Climatisation centrale
- Entièrement aménagé comme Bureau standard
- Convient pour 48 à 153 personnes
- 2 salles de conférence
- Peut être associé à un ou plusieurs espaces supplémentaires pour obtenir jusqu’à 2 436 m² d’espace adjacent.
This is a Flex Workspace+tm suite : Yes Call to Show/Under Construction
- Loyer annoncé plus part proportionnelle des coûts de la consommation électrique
- Disposition open space
- 7 bureaux privés
- Espace en excellent état
- Climatisation centrale
- Entièrement aménagé comme Bureau standard
- Convient pour 18 à 57 personnes
- 2 salles de conférence
- Peut être associé à un ou plusieurs espaces supplémentaires pour obtenir jusqu’à 2 436 m² d’espace adjacent.
| Espace | Surface | Durée | Loyer | Type de bien | Aménagement | Disponible |
| 1er étage, bureau 180 | 580 m² | Négociable | 462,70 € /m²/an 38,56 € /m²/mois 268 148 € /an 22 346 € /mois | Bureau | Construction achevée | Maintenant |
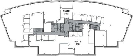
| 3e étage, bureau 300 | 1 775 m² | Négociable | 473,72 € /m²/an 39,48 € /m²/mois 840 804 € /an 70 067 € /mois | Bureau | Construction achevée | Maintenant |
| 3e étage, bureau 310 | 661 m² | Négociable | 473,72 € /m²/an 39,48 € /m²/mois 313 085 € /an 26 090 € /mois | Bureau | Construction achevée | Maintenant |
3570 Carmel Mountain Rd - 1er étage – Bureau 180
3570 Carmel Mountain Rd - 3e étage – Bureau 300
3570 Carmel Mountain Rd - 3e étage – Bureau 310
3580 Carmel Mountain Rd - 1er étage – Bureau 100
| Surface | 478 m² |
| Durée | Négociable |
| Loyer | 462,70 € /m²/an |
| Type de bien | Bureau |
| Aménagement | Construction achevée |
| Disponible | Maintenant |
- Loyer annoncé plus part proportionnelle des coûts de la consommation électrique
- Entièrement aménagé comme Bureau standard
- Principalement open space
- Convient pour 13 à 42 personnes
- 4 bureaux privés
- 2 salles de conférence
- Espace en excellent état
- Climatisation centrale
- Beaucoup de lumière naturelle
3580 Carmel Mountain Rd - 1er étage – Bureau 140
| Surface | 552 m² |
| Durée | Négociable |
| Loyer | 479,22 € /m²/an |
| Type de bien | Bureau |
| Aménagement | Meublé et équipé |
| Disponible | Maintenant |
This is a Flex Workspace+tm suite : Yes Call to Show/Under Construction
- Loyer annoncé plus part proportionnelle des coûts de la consommation électrique
- Principalement open space
- Convient pour 15 à 48 personnes
- 2 salles de conférence
- Espace en excellent état
3580 Carmel Mountain Rd - 2e étage – Bureau 250
| Surface | 1 276 m² |
| Durée | Négociable |
| Loyer | 462,70 € /m²/an |
| Type de bien | Bureau |
| Aménagement | Construction achevée |
| Disponible | Maintenant |
This is a Flex+ Workspace This space comes furnished
- Loyer annoncé plus part proportionnelle des coûts de la consommation électrique
- Entièrement aménagé comme Bureau standard
- Principalement open space
- Convient pour 35 à 110 personnes
- 11 bureaux privés
- 4 salles de conférence
- Espace en excellent état
- Climatisation centrale
3570 Carmel Mountain Rd - 1er étage – Bureau 180
| Surface | 580 m² |
| Durée | Négociable |
| Loyer | 462,70 € /m²/an |
| Type de bien | Bureau |
| Aménagement | Construction achevée |
| Disponible | Maintenant |
- Loyer annoncé plus part proportionnelle des coûts de la consommation électrique
- Entièrement aménagé comme Bureau standard
- Disposition open space
- Convient pour 16 à 50 personnes
- 4 bureaux privés
- 1 salle de conférence
- Espace en excellent état
- Climatisation centrale
3570 Carmel Mountain Rd - 3e étage – Bureau 300
| Surface | 1 775 m² |
| Durée | Négociable |
| Loyer | 473,72 € /m²/an |
| Type de bien | Bureau |
| Aménagement | Construction achevée |
| Disponible | Maintenant |
This is a Flex Workspace+tm suite : Yes Call to Show/Under Construction
- Loyer annoncé plus part proportionnelle des coûts de la consommation électrique
- Entièrement aménagé comme Bureau standard
- Disposition open space
- Convient pour 48 à 153 personnes
- 7 bureaux privés
- 2 salles de conférence
- Espace en excellent état
- Peut être associé à un ou plusieurs espaces supplémentaires pour obtenir jusqu’à 2 436 m² d’espace adjacent.
- Climatisation centrale
3570 Carmel Mountain Rd - 3e étage – Bureau 310
| Surface | 661 m² |
| Durée | Négociable |
| Loyer | 473,72 € /m²/an |
| Type de bien | Bureau |
| Aménagement | Construction achevée |
| Disponible | Maintenant |
This is a Flex Workspace+tm suite : Yes Call to Show/Under Construction
- Loyer annoncé plus part proportionnelle des coûts de la consommation électrique
- Entièrement aménagé comme Bureau standard
- Disposition open space
- Convient pour 18 à 57 personnes
- 7 bureaux privés
- 2 salles de conférence
- Espace en excellent état
- Peut être associé à un ou plusieurs espaces supplémentaires pour obtenir jusqu’à 2 436 m² d’espace adjacent.
- Climatisation centrale
Sélectionner des occupants à ce bien
- Étage
- Nom de l’occupant
- Secteur d’activité
- 4e
- BDO
- Services professionnels, scientifiques et techniques
- 1er
- CIT Bank
- Finance et assurances
- 1er
- Cresa - San Diego
- Immobilier
- 4e
- Edelman Financial Engines
- Finance et assurances
- 2e
- Gunderson Dettmer Stough
- Services professionnels, scientifiques et techniques
- 1er
- InnoPeak Technology, Inc.
- Services professionnels, scientifiques et techniques
- 1er
- Kestra Financial, Inc.
- -
- Multi
- Mintz
- Services professionnels, scientifiques et techniques
- 1er
- Synopsys
- Information
- 1er
- Td Ameritrade
- Finance et assurances
Vue d’ensemble du parc
Gateway at Torrey Hills offers a premier Class A office experience in coastal Del Mar Heights, designed to elevate the work day. Two four-story buildings totaling 198,000 square feet, provide engaging on-site amenities and impressive outdoor spaces offering expansive views. The high-end Flex+ move-in ready spaces are meticulously designed with the highest quality finishes and impeccable attention to detail, setting a new standard beyond traditional spec suites. Companies benefit from prominent signage opportunities with exceptional visibility from the I-5 freeway. The workplace experience is complemented by a comprehensive suite of on-site amenities, including a Pinpoint Cafe, dedicated outdoor workspace for collaboration and a private fitness center. Teams benefit from seamless commutes with direct access to the I-5 and I-805 freeways, as well as the 56 freeway bypass, and 20 minutes to San Diego International Airport. Unlock San Diego’s sought-after coastal lifestyle with a quick drive to a wealth of nearby dining and shopping options at Del Mar Highlands Town Center and Torrey Hills Center, and easy access to Torrey Pines Golf Course and Del Mar Fairgrounds. Executives and employees also benefit from the proximity to some of San Diego’s most sought-after luxury residential communities, including Del Mar, Carmel Valley, and Rancho Santa Fe. Gateway at Torrey Hills provides the ideal blend of high-end, flexible office space and an amenity-rich coastal location – all part of your business address.
Présenté par
Gateway at Torrey Hills | San Diego, CA 92130
Hum, une erreur s’est produite lors de l’envoi de votre message. Veuillez réessayer.
Merci ! Votre message a été envoyé.





















