Votre e-mail a été envoyé.
Certaines informations ont été traduites automatiquement.
Tous les espaces disponibles(2)
Afficher les loyers en
- Espace
- Surface
- Durée
- Loyer
- Type de bien
- Aménagement
- Disponible
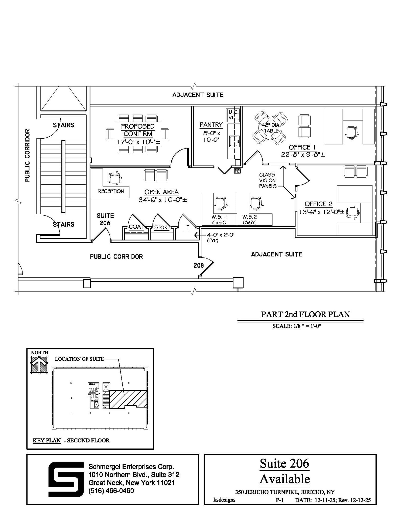
2nd floor suite with 2 private windowed offices and open area (great for reception/waiting room, workstations, conference room), pantry, closets for IT, coats and storage. Proposed and as built floor plans attached. Location has great parking, nearby restaurants, shopping, all major local roadways.
- Il est possible que le loyer annoncé ne comprenne pas certains services publics, services d’immeuble et frais immobiliers.
- Bureaux cloisonnés
- Aire de réception
- Open space
- Entièrement aménagé comme Bureau standard
- Salles de conférence
- Climatisation centrale
Beautiful top floor corner suite. High-end finishes. 5 windowed private offices, or use one as conference room, plus large open area, perfect for workstations. Reception/waiting area, kitchenette, copy/print room and file room. Close proximity to elevator. Plus $3.75 per sq. ft. electric.
- Il est possible que le loyer annoncé ne comprenne pas certains services publics, services d’immeuble et frais immobiliers.
- 5 bureaux privés
- Climatisation centrale
- Salle d’impression/photocopie
- Lumière naturelle
- Entièrement aménagé comme Bureau de services financiers
- Espace en excellent état
- Aire de réception
- Espace d’angle
| Espace | Surface | Durée | Loyer | Type de bien | Aménagement | Disponible |
| 2e étage | 127 m² | Négociable | 298,37 € /m²/an 24,86 € /m²/mois 37 837 € /an 3 153 € /mois | Bureaux/Médical | Construction achevée | Maintenant |
| 3e étage, bureau 306 | 223 m² | 5-10 Ans | 298,37 € /m²/an 24,86 € /m²/mois 66 526 € /an 5 544 € /mois | Bureau | Construction achevée | Maintenant |
2e étage
| Surface |
| 127 m² |
| Durée |
| Négociable |
| Loyer |
| 298,37 € /m²/an 24,86 € /m²/mois 37 837 € /an 3 153 € /mois |
| Type de bien |
| Bureaux/Médical |
| Aménagement |
| Construction achevée |
| Disponible |
| Maintenant |
3e étage, bureau 306
| Surface |
| 223 m² |
| Durée |
| 5-10 Ans |
| Loyer |
| 298,37 € /m²/an 24,86 € /m²/mois 66 526 € /an 5 544 € /mois |
| Type de bien |
| Bureau |
| Aménagement |
| Construction achevée |
| Disponible |
| Maintenant |
2e étage
| Surface | 127 m² |
| Durée | Négociable |
| Loyer | 298,37 € /m²/an |
| Type de bien | Bureaux/Médical |
| Aménagement | Construction achevée |
| Disponible | Maintenant |
2nd floor suite with 2 private windowed offices and open area (great for reception/waiting room, workstations, conference room), pantry, closets for IT, coats and storage. Proposed and as built floor plans attached. Location has great parking, nearby restaurants, shopping, all major local roadways.
- Il est possible que le loyer annoncé ne comprenne pas certains services publics, services d’immeuble et frais immobiliers.
- Entièrement aménagé comme Bureau standard
- Bureaux cloisonnés
- Salles de conférence
- Aire de réception
- Climatisation centrale
- Open space
3e étage, bureau 306
| Surface | 223 m² |
| Durée | 5-10 Ans |
| Loyer | 298,37 € /m²/an |
| Type de bien | Bureau |
| Aménagement | Construction achevée |
| Disponible | Maintenant |
Beautiful top floor corner suite. High-end finishes. 5 windowed private offices, or use one as conference room, plus large open area, perfect for workstations. Reception/waiting area, kitchenette, copy/print room and file room. Close proximity to elevator. Plus $3.75 per sq. ft. electric.
- Il est possible que le loyer annoncé ne comprenne pas certains services publics, services d’immeuble et frais immobiliers.
- Entièrement aménagé comme Bureau de services financiers
- 5 bureaux privés
- Espace en excellent état
- Climatisation centrale
- Aire de réception
- Salle d’impression/photocopie
- Espace d’angle
- Lumière naturelle
Aperçu du bien
Immeuble de luxe prestigieux situé à Jericho Turnpike, à l'intersection de la Route 106/107 À un pâté de maisons de l'autoroute Long Island et de la Northern State Parkway, il dispose d'immenses parkings, d'un propriétaire/directeur professionnel, d'un cadre bucolique et de vues, de restaurants et de boutiques à proximité.
- Signalisation
- Lumière naturelle
- Bureaux cloisonnés
- Climatisation
Informations sur l’immeuble
Occupants
- Étage
- Nom de l’occupant
- Secteur d’activité
- 1er
- Atlantic Tomorrows office
- Services professionnels, scientifiques et techniques
- 3e
- Bankers Conseco Life Insurance Co
- -
- 2e
- Emigrant Mortgage Co Inc
- Finance et assurances
- 2e
- Fregenti R J Associates Inc
- Finance et assurances
- RDC
- Intergrated Healthcare Resources Ltd.
- Services administratifs et de soutien
- 1er
- Moomjian, Waite & Coleman LLP
- Services professionnels, scientifiques et techniques
- 2e
- Ren-Pharm International Ltd
- Grossiste
- 3e
- Resnick & Oppenhein CPA LLC
- Services professionnels, scientifiques et techniques
- 1er
- The Pollack Law Firm PC
- Services professionnels, scientifiques et techniques
- 2e
- Visionary Solutions Corp
- -
Présenté par
350 Jericho Tpke
Hum, une erreur s’est produite lors de l’envoi de votre message. Veuillez réessayer.
Merci ! Votre message a été envoyé.








