Votre e-mail a été envoyé.
Certaines informations ont été traduites automatiquement.
Informations principales
- Security
- Private Yard
- Oversized Grade-Level Doors
- Security Patrols
- On-Site Manager
Caractéristiques
Tous les espaces disponibles(3)
Afficher les loyers en
- Espace
- Surface
- Durée
- Loyer
- Type de bien
- Aménagement
- Disponible
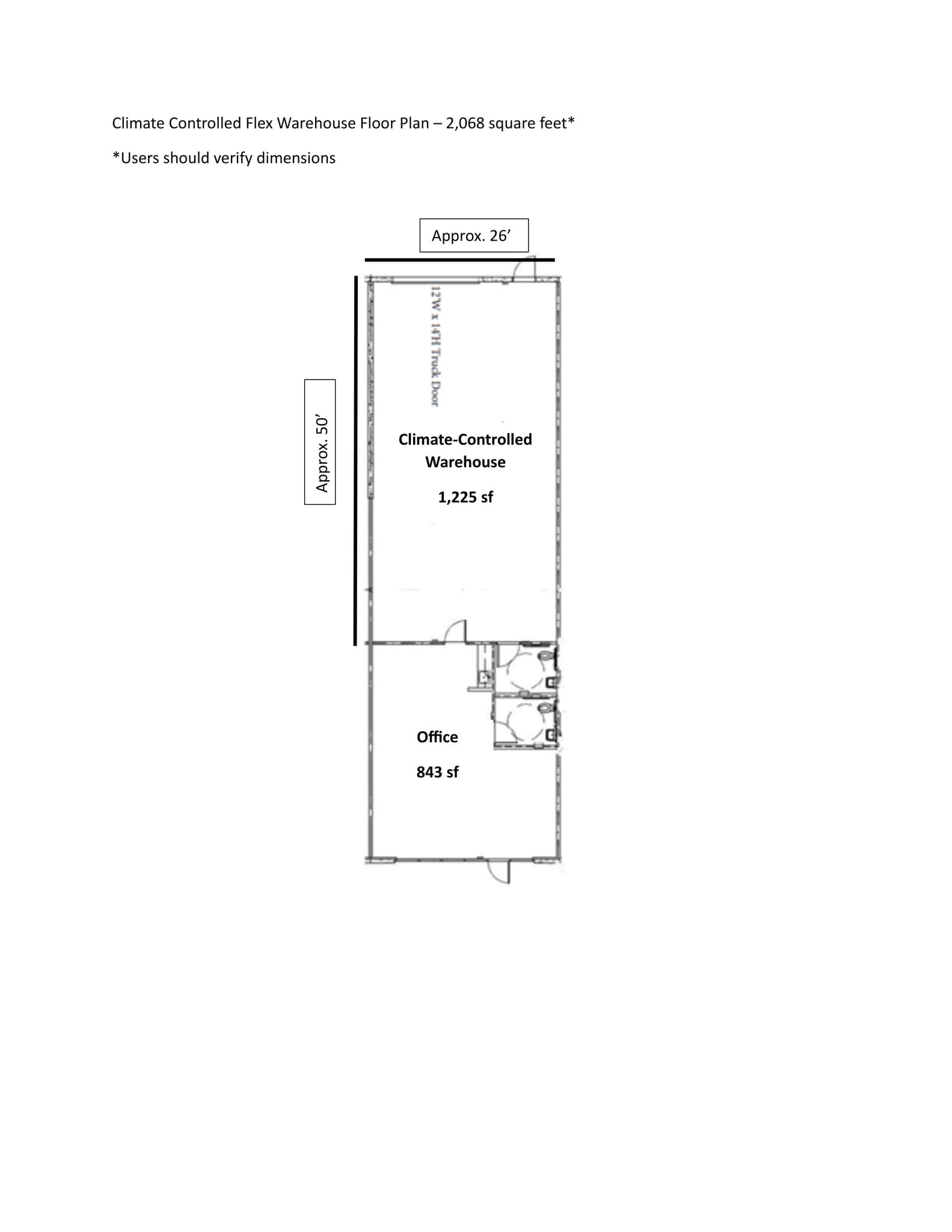
Welcome to the Waterman Business Center, The best flex product in the Inland Empire. Join a High Quality, Professional Business Park for your business to grow or expand. Unique Features of the Project are: -Project has a gated parking court with private reserved parking spaces for you and your employees. Simply enter a unique access code and park your vehicle in your private area. This unit has room for 3 private spaces. -Your operating expenses include water usage, trash disposal, fire alarm monitoring, fire sprinkler inspections, and landscape maintenance. Part of a 12-building 200,000 sf master-planned business park that provides amenities like 3X per night security patrols that others don’t offer. -We can offer you fiber optic internet from either Frontier or Spectrum. Internet can be installed easily and quickly. - 1 Private Restroom with one located in the office area and the second located in the warehouse/flex area. - Fully insulated (R19) ceiling at rear of the space to keep you and your products cool and one over-sized Grade-Level Doors 12 ft. Wide by 14 ft. High. Clear Height: 13.5-16.5 Feet with fire sprinklers. -You may have 24/7 Access to your space to work any hours of your choosing. -We are parked 4:1000 and ensure you and your employees, and customers have ample space to park including spaces right in front of your door. -Owned and managed by Seventh Street Development who offices at the project. We are already at the project if you ever have questions or need assistance. We also provide a hands-on approach to help you get your business license in the business-friendly City of San Bernardino.
- Il est possible que le loyer annoncé ne comprenne pas certains services publics, services d’immeuble et frais immobiliers.
- Connectivité Wi-Fi
- Hauts plafonds
- 1 accès plain-pied
- Entreposage sécurisé
- Cour
Welcome to the Waterman Business Center, The best flex product in the Inland Empire. Join a High Quality, Professional Business Park for your business to grow or expand. Video of Units: https://youtu.be/nWzFAmtkHS0 Unique Features of the Project are: -Project has a gated parking court with private reserved parking spaces for you and your employees. Simply enter a unique access code and park your vehicle in your private area. This unit has room for 3 private spaces. -Your operating expenses include water usage, trash disposal, fire alarm monitoring, fire sprinkler inspections, and landscape maintenance. Part of a 12-building 200,000 sf master-planned business park that provides amenities like 3X per night security patrols that others don’t offer. -Air-Conditioned Office Space with Luxury Vinyl Plank Flooring and Coffee Bar with Disposal. -We can offer you fiber optic internet from either Frontier or Spectrum. Internet can be installed easily and quickly. - 2 Private Restrooms with one located in the office area and the second located in the warehouse/flex area. - Fully insulated (R19) ceiling at rear of the space to keep you and your products cool and an over-sized Grade-Level Door 12 ft. Wide by 14 ft. High. Clear Height: 13.5-16.5 Feet with fire sprinklers. - Modern LED lighting throughout space to save energy. -You may have 24/7 Access to your space to work any hours of your choosing. -We are parked 4:1000 and ensure you and your employees, and customers have ample space to park including spaces right in front of your door. -Your new unit includes signage rights over your door to provide a professional image to any guests to your space. -Owned and managed by Seventh Street Development who offices at the project. We are already at the project if you ever have questions or need assistance. We also provide a hands-on approach to help you get your business license in the business-friendly City of San Bernardino.
- Il est possible que le loyer annoncé ne comprenne pas certains services publics, services d’immeuble et frais immobiliers.
- Espace en excellent état
- Climatisation centrale
- Plug & Play
- CVC disponible en-dehors des heures ouvrables
- Comprend 73 m² d’espace de bureau dédié
- 1 accès plain-pied
- Aire de réception
- Cour
Welcome to the Waterman Business Center, The best flex product in the Inland Empire. Join a High Quality, Professional Business Park for your business to grow or expand. -This is a unique find with Air-Conditioned Warehouse Space in addition to Air-Conditioned Office. Stay cool in the hot Inland Empire Summers with a 5-ton HVAC Unit in the rear of the space to keep you cool year-round. -Project has a gated parking court with private reserved parking spaces for you and your employees. Simply enter a unique access code and park your vehicle in your private area. This unit has room for 3 private spaces. -Your operating expenses include water usage, trash disposal, fire alarm monitoring, fire sprinkler inspections, and landscape maintenance. Part of a 12-building 200,000 sf master-planned business park that provides amenities like 3X per night security patrols that others don’t offer. -Air-Conditioned Office Space with Luxury Vinyl Plank Flooring and Coffee Bar with Disposal. -We can offer you fiber optic internet from either Frontier or Spectrum. Internet can be installed easily and quickly. - 2 Private Restrooms with one located in the office area and the second located in the warehouse/flex area. - Fully insulated (R19) ceiling at rear of the space to keep you and your products cool and an over-sized Grade-Level Door 12 ft. Wide by 14 ft. High. Clear Height: 13.5-16.5 Feet with fire sprinklers. - Modern LED lighting throughout space to save energy. -You may have 24/7 Access to your space to work any hours of your choosing. -We are parked 4:1000 and ensure you and your employees, and customers have ample space to park including spaces right in front of your door. -Your new unit includes signage rights over your door to provide a professional image to any guests to your space. -Owned and managed by Seventh Street Development who offices at the project. We are already at the project if you ever have questions or need assistance. We also provide a hands-on approach to help you get your business license in the business-friendly City of San Bernardino.
- Il est possible que le loyer annoncé ne comprenne pas certains services publics, services d’immeuble et frais immobiliers.
- Espace en excellent état
- Climatisation centrale
- Connectivité Wi-Fi
- Cour
- Comprend 78 m² d’espace de bureau dédié
- 1 accès plain-pied
- Aire de réception
- Plug & Play
- CVC disponible en-dehors des heures ouvrables
| Espace | Surface | Durée | Loyer | Type de bien | Aménagement | Disponible |
| 1er étage – 104W | 131 m² | 3-5 Ans | 181,77 € /m²/an 15,15 € /m²/mois 23 727 € /an 1 977 € /mois | Local d’activités | Espace brut | Maintenant |
| 1er étage – B110 | 198 m² | 3-5 Ans | 185,08 € /m²/an 15,42 € /m²/mois 36 607 € /an 3 051 € /mois | Local d’activités | Construction achevée | Maintenant |
| 1er étage – B210 | 192 m² | 3-5 Ans | 200,50 € /m²/an 16,71 € /m²/mois 38 521 € /an 3 210 € /mois | Local d’activités | Construction partielle | Maintenant |
1er étage – 104W
| Surface |
| 131 m² |
| Durée |
| 3-5 Ans |
| Loyer |
| 181,77 € /m²/an 15,15 € /m²/mois 23 727 € /an 1 977 € /mois |
| Type de bien |
| Local d’activités |
| Aménagement |
| Espace brut |
| Disponible |
| Maintenant |
1er étage – B110
| Surface |
| 198 m² |
| Durée |
| 3-5 Ans |
| Loyer |
| 185,08 € /m²/an 15,42 € /m²/mois 36 607 € /an 3 051 € /mois |
| Type de bien |
| Local d’activités |
| Aménagement |
| Construction achevée |
| Disponible |
| Maintenant |
1er étage – B210
| Surface |
| 192 m² |
| Durée |
| 3-5 Ans |
| Loyer |
| 200,50 € /m²/an 16,71 € /m²/mois 38 521 € /an 3 210 € /mois |
| Type de bien |
| Local d’activités |
| Aménagement |
| Construction partielle |
| Disponible |
| Maintenant |
1er étage – 104W
| Surface | 131 m² |
| Durée | 3-5 Ans |
| Loyer | 181,77 € /m²/an |
| Type de bien | Local d’activités |
| Aménagement | Espace brut |
| Disponible | Maintenant |
Welcome to the Waterman Business Center, The best flex product in the Inland Empire. Join a High Quality, Professional Business Park for your business to grow or expand. Unique Features of the Project are: -Project has a gated parking court with private reserved parking spaces for you and your employees. Simply enter a unique access code and park your vehicle in your private area. This unit has room for 3 private spaces. -Your operating expenses include water usage, trash disposal, fire alarm monitoring, fire sprinkler inspections, and landscape maintenance. Part of a 12-building 200,000 sf master-planned business park that provides amenities like 3X per night security patrols that others don’t offer. -We can offer you fiber optic internet from either Frontier or Spectrum. Internet can be installed easily and quickly. - 1 Private Restroom with one located in the office area and the second located in the warehouse/flex area. - Fully insulated (R19) ceiling at rear of the space to keep you and your products cool and one over-sized Grade-Level Doors 12 ft. Wide by 14 ft. High. Clear Height: 13.5-16.5 Feet with fire sprinklers. -You may have 24/7 Access to your space to work any hours of your choosing. -We are parked 4:1000 and ensure you and your employees, and customers have ample space to park including spaces right in front of your door. -Owned and managed by Seventh Street Development who offices at the project. We are already at the project if you ever have questions or need assistance. We also provide a hands-on approach to help you get your business license in the business-friendly City of San Bernardino.
- Il est possible que le loyer annoncé ne comprenne pas certains services publics, services d’immeuble et frais immobiliers.
- 1 accès plain-pied
- Connectivité Wi-Fi
- Entreposage sécurisé
- Hauts plafonds
- Cour
1er étage – B110
| Surface | 198 m² |
| Durée | 3-5 Ans |
| Loyer | 185,08 € /m²/an |
| Type de bien | Local d’activités |
| Aménagement | Construction achevée |
| Disponible | Maintenant |
Welcome to the Waterman Business Center, The best flex product in the Inland Empire. Join a High Quality, Professional Business Park for your business to grow or expand. Video of Units: https://youtu.be/nWzFAmtkHS0 Unique Features of the Project are: -Project has a gated parking court with private reserved parking spaces for you and your employees. Simply enter a unique access code and park your vehicle in your private area. This unit has room for 3 private spaces. -Your operating expenses include water usage, trash disposal, fire alarm monitoring, fire sprinkler inspections, and landscape maintenance. Part of a 12-building 200,000 sf master-planned business park that provides amenities like 3X per night security patrols that others don’t offer. -Air-Conditioned Office Space with Luxury Vinyl Plank Flooring and Coffee Bar with Disposal. -We can offer you fiber optic internet from either Frontier or Spectrum. Internet can be installed easily and quickly. - 2 Private Restrooms with one located in the office area and the second located in the warehouse/flex area. - Fully insulated (R19) ceiling at rear of the space to keep you and your products cool and an over-sized Grade-Level Door 12 ft. Wide by 14 ft. High. Clear Height: 13.5-16.5 Feet with fire sprinklers. - Modern LED lighting throughout space to save energy. -You may have 24/7 Access to your space to work any hours of your choosing. -We are parked 4:1000 and ensure you and your employees, and customers have ample space to park including spaces right in front of your door. -Your new unit includes signage rights over your door to provide a professional image to any guests to your space. -Owned and managed by Seventh Street Development who offices at the project. We are already at the project if you ever have questions or need assistance. We also provide a hands-on approach to help you get your business license in the business-friendly City of San Bernardino.
- Il est possible que le loyer annoncé ne comprenne pas certains services publics, services d’immeuble et frais immobiliers.
- Comprend 73 m² d’espace de bureau dédié
- Espace en excellent état
- 1 accès plain-pied
- Climatisation centrale
- Aire de réception
- Plug & Play
- Cour
- CVC disponible en-dehors des heures ouvrables
1er étage – B210
| Surface | 192 m² |
| Durée | 3-5 Ans |
| Loyer | 200,50 € /m²/an |
| Type de bien | Local d’activités |
| Aménagement | Construction partielle |
| Disponible | Maintenant |
Welcome to the Waterman Business Center, The best flex product in the Inland Empire. Join a High Quality, Professional Business Park for your business to grow or expand. -This is a unique find with Air-Conditioned Warehouse Space in addition to Air-Conditioned Office. Stay cool in the hot Inland Empire Summers with a 5-ton HVAC Unit in the rear of the space to keep you cool year-round. -Project has a gated parking court with private reserved parking spaces for you and your employees. Simply enter a unique access code and park your vehicle in your private area. This unit has room for 3 private spaces. -Your operating expenses include water usage, trash disposal, fire alarm monitoring, fire sprinkler inspections, and landscape maintenance. Part of a 12-building 200,000 sf master-planned business park that provides amenities like 3X per night security patrols that others don’t offer. -Air-Conditioned Office Space with Luxury Vinyl Plank Flooring and Coffee Bar with Disposal. -We can offer you fiber optic internet from either Frontier or Spectrum. Internet can be installed easily and quickly. - 2 Private Restrooms with one located in the office area and the second located in the warehouse/flex area. - Fully insulated (R19) ceiling at rear of the space to keep you and your products cool and an over-sized Grade-Level Door 12 ft. Wide by 14 ft. High. Clear Height: 13.5-16.5 Feet with fire sprinklers. - Modern LED lighting throughout space to save energy. -You may have 24/7 Access to your space to work any hours of your choosing. -We are parked 4:1000 and ensure you and your employees, and customers have ample space to park including spaces right in front of your door. -Your new unit includes signage rights over your door to provide a professional image to any guests to your space. -Owned and managed by Seventh Street Development who offices at the project. We are already at the project if you ever have questions or need assistance. We also provide a hands-on approach to help you get your business license in the business-friendly City of San Bernardino.
- Il est possible que le loyer annoncé ne comprenne pas certains services publics, services d’immeuble et frais immobiliers.
- Comprend 78 m² d’espace de bureau dédié
- Espace en excellent état
- 1 accès plain-pied
- Climatisation centrale
- Aire de réception
- Connectivité Wi-Fi
- Plug & Play
- Cour
- CVC disponible en-dehors des heures ouvrables
Aperçu du bien
Espace climatisé à 100 % pour certaines unités. Waterman Business Center - Flex Suites À LOUER - Aucune utilisation liée au cannabis n'est autorisée CENTRE D'AFFAIRES WATERMAN ! Parc d'affaires haut de gamme situé dans une zone d'opportunités qualifiées à la frontière entre San Bernardino et Loma Linda, à moins d'un kilomètre du centre médical universitaire de Loma Linda. Le projet bénéficie d'une façade sur Waterman Avenue (trafic quotidien moyen de 25 000) avec un accès direct aux autoroutes I-10 (0,4 miles) et I-215 (2 miles). Les établissements de soins de santé de l'université de Loma Linda, Amber Pharmacy, Avid Physical Therapy et le Dr James Jesse DDS sont locataires. Les locataires du Waterman Business Center peuvent utiliser l'adresse d'un bureau de poste de Loma Linda ou de San Bernardino. Les équipements incluent une jolie entrée en pierres empilées, une connexion Internet par fibre optique FIOS, des patrouilles de sécurité nocturnes et un parking jusqu'à 4 pour 1 directement devant votre unité. Les suites prêtes à emménager mesurent 2 200 pieds carrés et plus et comprennent deux toilettes privées et un café-bar. * Projet facile à localiser situé en face de Waterman Avenue, juste au sud de l'autoroute I-10 * Accès direct à l'autoroute I-10 (0,4 km) et à l'I-215 (2 miles) * Près des commodités de Hospitality Lane * À moins d'un kilomètre du centre médical universitaire de Loma Linda * Adresse du bureau de poste de Loma Linda ou San Bernardino
Informations sur l’immeuble
Présenté par
Bldg B | 350 E Commercial Rd
Hum, une erreur s’est produite lors de l’envoi de votre message. Veuillez réessayer.
Merci ! Votre message a été envoyé.










