Votre e-mail a été envoyé.
Certaines informations ont été traduites automatiquement.
Caractéristiques
Tous les espaces disponibles(2)
Afficher les loyers en
- Espace
- Surface
- Durée
- Loyer
- Type de bien
- État
- Disponible
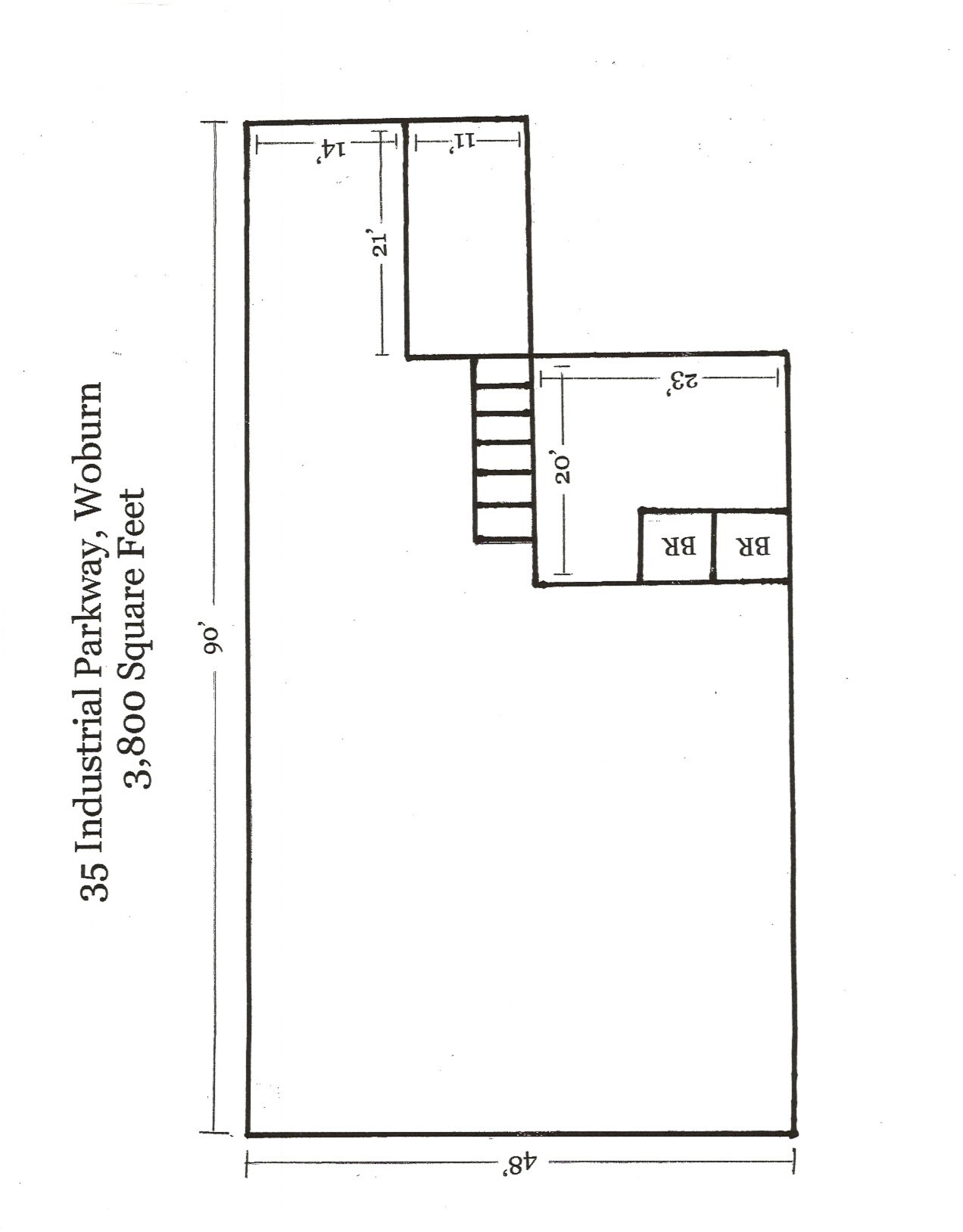
Industrial Space Available | 3,800 SF | Available March 1, 2026 3,800 square feet of well-located industrial space, available March 1, 2026, in a prime location with excellent access to major highways, retail, and restaurants. This functional space offers 18-foot clear stud height, providing excellent vertical capacity for storage or operations. The layout includes mezzanine office space, allowing for efficient separation of office and warehouse functions. The building is fully sprinklered and equipped with tailboard-height shipping doors, making it suitable for a wide range of industrial uses. Convenient access, strong visibility, and proximity to amenities make this an ideal opportunity for growing or established businesses. Key Features: 3,800 SF industrial space Available March 1, 2026 18 ft clear stud height Mezzanine office space Tailboard-height shipping doors Fully sprinklered Prime location near highways, stores, and restaurants
- Il est possible que le loyer annoncé ne comprenne pas certains services publics, services d’immeuble et frais immobiliers.
- Comprend 56 m² d’espace de bureau dédié
6,600 SF Industrial Space – Prime High-Demand Location Exceptional opportunity to lease a 6,300 square foot industrial property in a highly sought-after industrial area. This versatile space features warehouse space with 18’ clear ceiling height, ideal for storage, distribution, manufacturing, or light industrial use. The warehouse is equipped with two tailboard loading doors, providing efficient shipping and receiving capabilities. The remaining square footage offers office and/or showroom space, creating a professional environment for administrative operations, customer interaction, or product display. This space also offers 1,050 of finished mezzanine area. Property Highlights: Total: 6,300 SF 18’ clear height 2 tailboard loading doors Office and/or showroom space Flexible layout to suit a variety of business needs Located in a high-demand industrial area Convenient access to all major highways Close proximity to shopping and restaurants Ideal for contractors, distributors, service businesses, and growing companies This property offers the perfect combination of functionality, accessibility, and strategic location. For additional details or to schedule a private showing, contact us today.
| Espace | Surface | Durée | Loyer | Type de bien | État | Disponible |
| 1er étage | 353 m² | Négociable | Sur demande Sur demande Sur demande Sur demande | Industriel/Logistique | - | 01/03/2026 |
| 1er étage | 585 m² | Négociable | Sur demande Sur demande Sur demande Sur demande | Industriel/Logistique | - | 01/05/2026 |
1er étage
| Surface |
| 353 m² |
| Durée |
| Négociable |
| Loyer |
| Sur demande Sur demande Sur demande Sur demande |
| Type de bien |
| Industriel/Logistique |
| État |
| - |
| Disponible |
| 01/03/2026 |
1er étage
| Surface |
| 585 m² |
| Durée |
| Négociable |
| Loyer |
| Sur demande Sur demande Sur demande Sur demande |
| Type de bien |
| Industriel/Logistique |
| État |
| - |
| Disponible |
| 01/05/2026 |
1er étage
| Surface | 353 m² |
| Durée | Négociable |
| Loyer | Sur demande |
| Type de bien | Industriel/Logistique |
| État | - |
| Disponible | 01/03/2026 |
Industrial Space Available | 3,800 SF | Available March 1, 2026 3,800 square feet of well-located industrial space, available March 1, 2026, in a prime location with excellent access to major highways, retail, and restaurants. This functional space offers 18-foot clear stud height, providing excellent vertical capacity for storage or operations. The layout includes mezzanine office space, allowing for efficient separation of office and warehouse functions. The building is fully sprinklered and equipped with tailboard-height shipping doors, making it suitable for a wide range of industrial uses. Convenient access, strong visibility, and proximity to amenities make this an ideal opportunity for growing or established businesses. Key Features: 3,800 SF industrial space Available March 1, 2026 18 ft clear stud height Mezzanine office space Tailboard-height shipping doors Fully sprinklered Prime location near highways, stores, and restaurants
- Il est possible que le loyer annoncé ne comprenne pas certains services publics, services d’immeuble et frais immobiliers.
- Comprend 56 m² d’espace de bureau dédié
1er étage
| Surface | 585 m² |
| Durée | Négociable |
| Loyer | Sur demande |
| Type de bien | Industriel/Logistique |
| État | - |
| Disponible | 01/05/2026 |
6,600 SF Industrial Space – Prime High-Demand Location Exceptional opportunity to lease a 6,300 square foot industrial property in a highly sought-after industrial area. This versatile space features warehouse space with 18’ clear ceiling height, ideal for storage, distribution, manufacturing, or light industrial use. The warehouse is equipped with two tailboard loading doors, providing efficient shipping and receiving capabilities. The remaining square footage offers office and/or showroom space, creating a professional environment for administrative operations, customer interaction, or product display. This space also offers 1,050 of finished mezzanine area. Property Highlights: Total: 6,300 SF 18’ clear height 2 tailboard loading doors Office and/or showroom space Flexible layout to suit a variety of business needs Located in a high-demand industrial area Convenient access to all major highways Close proximity to shopping and restaurants Ideal for contractors, distributors, service businesses, and growing companies This property offers the perfect combination of functionality, accessibility, and strategic location. For additional details or to schedule a private showing, contact us today.
Faits sur l’installation entrepôt
Occupants
- Étage
- Nom de l’occupant
- Secteur d’activité
- 1er
- Brian Smillie Candy
- Enseigne
- 1er
- Chowdheadz.com
- Services professionnels, scientifiques et techniques
- 1er
- Grosvenor W J
- Enseigne
- 1er
- HTS Parts & Aftermarket Store
- Grossiste
- 1er
- Johnstone Supply
- Grossiste
- 1er
- Motion Industries
- Manufacture
- 1er
- Nemo Tile & Stone
- Construction
- 1er
- PPG Paints
- Manufacture
- 1er
- Tozi Imports
- Manufacture
- 1er
- World Spa
- Enseigne
Présenté par
35 Industrial Pky
Hum, une erreur s’est produite lors de l’envoi de votre message. Veuillez réessayer.
Merci ! Votre message a été envoyé.







