Votre e-mail a été envoyé.
Certaines informations ont été traduites automatiquement.
Informations principales sur le parc
- Choisissez parmi des suites entièrement meublées clé en main, des bureaux créatifs, des galeries d'art, des espaces de bureaux traditionnels, des espaces sur mesure et des espaces de création.
- Campus où vivre et travailler regorge d'activités grâce aux résidences multifamiliales, aux lieux de travail, aux studios d'art, aux établissements de restauration et plus encore.
- Accès facile avec de nombreux parkings gratuits et un emplacement qui évite la congestion du centre-ville grâce à un accès direct à l'autoroute.
- Trouvez des équipements tels qu'un nouveau centre de remise en forme, une garderie, un café, un bar, un parc pour chiens, une piscine, un salon, un terrain de volley-ball et de basket-ball, des restaurants et des espaces verts extérieurs.
- Des solutions créatives pour les architectes, les concepteurs, les ingénieurs, les développeurs, les entrepreneurs généraux, les entreprises technologiques, les entreprises de soins de santé avancés et les utilisateurs de bureau.
- Profitez de la tranquillité d'esprit grâce à la sécurité sur site et à la gestion immobilière 24h/24 et 7j/7, ainsi que des services de construction sur mesure disponibles.
Faits sur le parc
Tous les espaces disponibles(16)
Afficher les loyers en
- Espace
- Surface
- Durée
- Loyer
- Type de bien
- État
- Disponible
This is a light filled office that spans two levels by having an upstairs mezzanine level. The main level has a very functional open plan and the mezzanine is fully enclosed, making for a great conference room, office or private team space. Abundant parking, fiber wifi and furniture is included in the rent.
- Le loyer comprend les services publics, les services de l’immeuble et les frais immobiliers.
- 1 bureau privé
- Ventilation et chauffage centraux
- Hauts plafonds
- Lumière naturelle
- Éclairage d’urgence
- Éclairage d’appoint
- Principalement open space
- Salles de conférence
- Connectivité Wi-Fi
- Plafond apparent
- CVC disponible en-dehors des heures ouvrables
- Douches
- Atrium
Highly functional ground floor office space in the Taxi 1 building, the building where the Taxi campus all began! This unit has 1 enclosed conference room, lots of functional work space and a garage door that opens up to a private patio.
- Le loyer ne comprend pas les services publics, les frais immobiliers ou les services de l’immeuble.
- 1 salle de conférence
- Principalement open space
Highly functional open work space layout with tall ceilings and great natural light. Enjoy convenient access to one of the building's entrances and shared common areas. Full service lease for $2,850/month, which includes fiber wifi, parking and access to all of the amenities within the Taxi campus.
- Le loyer comprend les services publics, les services de l’immeuble et les frais immobiliers.
- Ventilation et chauffage centraux
- Hauts plafonds
- Lumière naturelle
- Éclairage d’urgence
- Service de restauration
- Accessible fauteuils roulants
- Salles de conférence
- Connectivité Wi-Fi
- Plafond apparent
- CVC disponible en-dehors des heures ouvrables
- Douches
- Open space
This space works great for traditional office but it's even better if you have shipping/receiving requirements as there is an at-grade glass garage door. This is a corner unit with great natural light and a mostly open floor plan. There are 2 private spaces and a kitchen built out and lots of highly functional open space for work stations.
- Le loyer ne comprend pas les services publics, les frais immobiliers ou les services de l’immeuble.
- 1 salle de conférence
- Ventilation et chauffage centraux
- Hauts plafonds
- Lumière naturelle
- Éclairage d’urgence
- Éclairage d’appoint
- 1 bureau privé
- Espace en excellent état
- Espace d’angle
- Plafond apparent
- CVC disponible en-dehors des heures ouvrables
- Douches
- Open space
| Espace | Surface | Durée | Loyer | Type de bien | État | Disponible |
| 1er étage, bureau #141 | 84 m² | Négociable | Sur demande Sur demande Sur demande Sur demande | Bureau | - | Maintenant |
| 1er étage, bureau 106 | 143 m² | Négociable | Sur demande Sur demande Sur demande Sur demande | Bureau | - | Maintenant |
| 1er étage, bureau 112 | 69 m² | Négociable | Sur demande Sur demande Sur demande Sur demande | Bureau | - | Maintenant |
| 1er étage, bureau 94 | 206 m² | Négociable | Sur demande Sur demande Sur demande Sur demande | Bureau | - | Maintenant |
3455 Ringsby Ct - 1er étage – Bureau #141
3455 Ringsby Ct - 1er étage – Bureau 106
3455 Ringsby Ct - 1er étage – Bureau 112
3455 Ringsby Ct - 1er étage – Bureau 94
- Espace
- Surface
- Durée
- Loyer
- Type de bien
- État
- Disponible
Unique opportunity for a creative office user. A private ground floor entrance with floor to ceiling windows opens into a large open area, one conference room, and 2 private office. Upstairs mezzanine is an open floor plan with an IT closet. The space currently shares access with one other tenant to two private bathrooms. Access to all of the Taxi Campus Amenities, which include; 24/7 on-site security and property management, abundant surface parking (no downtown parking hassle!), a brand new 7,100sf Fitness Center, 2 Restaurants, Coffee Shop, Community Gardens, Onsite Early Childhood Education, shared conference rooms, plus many more.
- Le loyer ne comprend pas les services publics, les frais immobiliers ou les services de l’immeuble.
- Principalement open space
- 1 salle de conférence
- Ventilation et chauffage centraux
- Espace d’angle
- Plafond apparent
- CVC disponible en-dehors des heures ouvrables
- Éclairage d’appoint
- Entièrement aménagé comme Bureau standard
- 2 bureaux privés
- Espace en excellent état
- Cuisine
- Hauts plafonds
- Lumière naturelle
- Douches
Take a virtual 3D tour https://my.matterport.com/show/?m=uucBRYZEUcZ Located on the second floor of the Taxi II Building at Zeppelin's amenity rich Taxi Campus, this Class A 12,470sf flexible office space is ideal for a wide variety of tenants ranging from 1,700 to 12,470 square feet - the space can be demised to create the perfect square footage and layout for your office needs. The larger 12,470sf consists of several open bullpen spaces, multiple private offices and conference rooms, a kitchenette, expansive window lines allowing in natural light, city views and mountain views. Access to all of the Taxi Campus Amenities, which include; 24/7 on-site security and property management, abundant surface parking (no downtown parking hassle!), a brand new 7,100sf Fitness Center, 2 Restaurants, Coffee Shop, Community Gardens, Onsite Early Childhood Education, shared conference rooms, plus many more.
- Le loyer ne comprend pas les services publics, les frais immobiliers ou les services de l’immeuble.
- Principalement open space
- Salles de conférence
- Espace en excellent état
- Aire de réception
- Toilettes privées
- Hauts plafonds
- Entreposage sécurisé
- Lumière naturelle
- Local à vélos
- Douches
- Entièrement aménagé comme Bureau standard
- Bureaux cloisonnés
- Plafonds finis: 3,05 mètres - 5,51 mètres
- Ventilation et chauffage centraux
- Cuisine
- Espace d’angle
- Plafond apparent
- Éclairage encastré
- CVC disponible en-dehors des heures ouvrables
- Éclairage d’urgence
| Espace | Surface | Durée | Loyer | Type de bien | État | Disponible |
| 1er étage, bureau 100-B | 218 m² | Négociable | Sur demande Sur demande Sur demande Sur demande | Bureau | Construction achevée | Maintenant |
| 2e étage, bureau 202 | 158 – 1 159 m² | Négociable | Sur demande Sur demande Sur demande Sur demande | Bureau | Construction achevée | Maintenant |
3457 Ringsby Ct - 1er étage – Bureau 100-B
3457 Ringsby Ct - 2e étage – Bureau 202
- Espace
- Surface
- Durée
- Loyer
- Type de bien
- État
- Disponible
Take a virtual tour at https://listings.snaplyphoto.com/sites/nxpgjqn/unbranded Amazing space with 2 offices, a large open area and a kitchen. There are also 4 large, operable glass garage doors, that open up to lush native landscape, which provide fresh air and great natural light. Access to all of the Taxi Campus Amenities, which include; 24/7 on-site security and property management, abundant surface parking (no downtown parking hassle!), a brand new 7,100sf Fitness Center, 2 Restaurants, Coffee Shop, Community Gardens, Onsite Early Childhood Education, shared conference rooms, plus many more.
- Le loyer ne comprend pas les services publics, les frais immobiliers ou les services de l’immeuble.
- Principalement open space
- 1 salle de conférence
- Ventilation et chauffage centraux
- Connectivité Wi-Fi
- Hauts plafonds
- Lumière naturelle
- Local à vélos
- Douches
- Service de restauration
- Entièrement aménagé comme Bureau standard
- 4 bureaux privés
- Espace en excellent état
- Cuisine
- Espace d’angle
- Plafond apparent
- CVC disponible en-dehors des heures ouvrables
- Éclairage d’urgence
- Éclairage d’appoint
- Accessible fauteuils roulants
Amazing space with 1 private office, 1 "phone booth" office, and open area. There is also a large, operable glass garage door which provides fresh air and great natural light. There are floor to ceilings windows as well, so the unobstructed mountain views are unmatched. Access to all of the Taxi Campus Amenities, which include; 24/7 on-site security and property management, abundant surface parking (no downtown parking hassle!), a brand new 7,100sf Fitness Center, 2 Restaurants, Coffee Shop, Community Gardens, Onsite Early Childhood Education, shared conference rooms, plus many more.
- Le loyer ne comprend pas les services publics, les frais immobiliers ou les services de l’immeuble.
- Principalement open space
- Salles de conférence
- Ventilation et chauffage centraux
- Connectivité Wi-Fi
- Hauts plafonds
- Lumière naturelle
- Éclairage d’urgence
- Éclairage d’appoint
- Entièrement aménagé comme Bureau standard
- 1 bureau privé
- Espace en excellent état
- Cuisine
- Espace d’angle
- Plafond apparent
- CVC disponible en-dehors des heures ouvrables
- Douches
- Service de restauration
This is a premium office for a smaller team. The office comes with one interior private office, an operable glass garage door and highly functional open workspace.
- Le loyer ne comprend pas les services publics, les frais immobiliers ou les services de l’immeuble.
- Salles de conférence
- Connectivité Wi-Fi
- Espace d’angle
- Plafond apparent
- CVC disponible en-dehors des heures ouvrables
- Douches
- Accessible fauteuils roulants
- 1 bureau privé
- Ventilation et chauffage centraux
- Système de sécurité
- Hauts plafonds
- Lumière naturelle
- Éclairage d’urgence
- Éclairage d’appoint
See virtual tour and photos at: https://listings.snaplyphoto.com/sites/ymbkbra/unbranded This unit includes 2 enclosed offices/private spaces/conference rooms. The floor plan allowing for separation of open spaces and a flexible workstation layout. There are 5 large operable glass garage doors and many floor to ceilings windows, providing fresh air, abundant natural light and unobstructed mountain views. Access to all of the Taxi Campus Amenities, which include; 24/7 on-site security and property management, abundant surface parking (no downtown parking hassle!), a brand new 7,100sf Fitness Center, 2 Restaurants, Coffee Shop, Community Gardens, Onsite Early Childhood Education, shared conference rooms, plus many more.
- Le loyer ne comprend pas les services publics, les frais immobiliers ou les services de l’immeuble.
- Principalement open space
- Salles de conférence
- Ventilation et chauffage centraux
- Espace d’angle
- Éclairage d’appoint
- Entièrement aménagé comme Bureau standard
- 3 bureaux privés
- Espace haut de gamme
- Connectivité Wi-Fi
- Hauts plafonds
| Espace | Surface | Durée | Loyer | Type de bien | État | Disponible |
| 1er étage, bureau 108 | 205 m² | Négociable | Sur demande Sur demande Sur demande Sur demande | Bureau | Construction achevée | Maintenant |
| 2e étage, bureau #203 | 122 m² | Négociable | Sur demande Sur demande Sur demande Sur demande | Bureau | Construction achevée | Maintenant |
| 3e étage, bureau 306 | 70 m² | Négociable | Sur demande Sur demande Sur demande Sur demande | Bureau | - | Maintenant |
| 4e étage, bureau 407 | 337 m² | Négociable | Sur demande Sur demande Sur demande Sur demande | Bureau | Construction achevée | Maintenant |
3459 Ringsby Ct - 1er étage – Bureau 108
3459 Ringsby Ct - 2e étage – Bureau #203
3459 Ringsby Ct - 3e étage – Bureau 306
3459 Ringsby Ct - 4e étage – Bureau 407
- Espace
- Surface
- Durée
- Loyer
- Type de bien
- État
- Disponible
Take a virtual tour here: https://my.matterport.com/show/?m=c8WkfgMRZEd&play=1 Amazing office with a great balance of buildout and function open work space. This space already has 2 offices, 1 large office/conference room, and 2 open seating areas. There are great window lines and 2 large, operable glass garage doors that open up to lush native landscape, which provide fresh air and great natural light. Access to all of the Taxi Campus Amenities, which include; 24/7 on-site security and property management, abundant surface parking (no downtown parking hassle!), a brand new 7,100sf Fitness Center, 2 Restaurants, Coffee Shop, Community Gardens, Onsite Early Childhood Education, shared conference rooms, plus many more.
- Le loyer ne comprend pas les services publics, les frais immobiliers ou les services de l’immeuble.
- Principalement open space
- 1 salle de conférence
- Ventilation et chauffage centraux
- Hauts plafonds
- Lumière naturelle
- Éclairage d’urgence
- Éclairage d’appoint
- Entièrement aménagé comme Bureau standard
- 4 bureaux privés
- Espace en excellent état
- Système de sécurité
- Plafond apparent
- CVC disponible en-dehors des heures ouvrables
- Douches
- Accessible fauteuils roulants
This space strikes a great blend of enclosed offices with highly functional open work space. There are 3 private offices, plenty of open floor, floor to ceiling windows and a large glass garage door that has a laptop bar in front of it.
- Le loyer ne comprend pas les services publics, les frais immobiliers ou les services de l’immeuble.
- Salles de conférence
- Ventilation et chauffage centraux
- Plafond apparent
- CVC disponible en-dehors des heures ouvrables
- Douches
- Accessible fauteuils roulants
- 3 bureaux privés
- Espace en excellent état
- Hauts plafonds
- Lumière naturelle
- Éclairage d’urgence
- Éclairage d’appoint
Signature corner office suite with a great balance of buildout and functional open work space. This suite will have 3 offices and 1 conference room built out. There are also 4 large, operable glass garage doors, which provide fresh air and great natural light, and one of the garage doors opens up to a private outdoor patio. There are floor to ceilings windows as well, so the unobstructed mountain views are unmatched. Access to all of the Taxi Campus Amenities, which include; 24/7 on-site security and property management, abundant surface parking (no downtown parking hassle!), a brand new 7,100sf Fitness Center, 2 Restaurants, Coffee Shop, Community Gardens, Onsite Early Childhood Education, shared conference rooms, plus many more.
- Le loyer ne comprend pas les services publics, les frais immobiliers ou les services de l’immeuble.
- Principalement open space
- 1 salle de conférence
- Ventilation et chauffage centraux
- Espace d’angle
- Plafond apparent
- CVC disponible en-dehors des heures ouvrables
- Douches
- Détecteur de fumée
- Entièrement aménagé comme Bureau standard
- 3 bureaux privés
- Espace en excellent état
- Cuisine
- Hauts plafonds
- Lumière naturelle
- Éclairage d’urgence
- Service de restauration
- Accessible fauteuils roulants
| Espace | Surface | Durée | Loyer | Type de bien | État | Disponible |
| 1er étage, bureau 140 | 228 m² | Négociable | Sur demande Sur demande Sur demande Sur demande | Bureau | Construction achevée | Maintenant |
| 3e étage, bureau #345 | 156 m² | Négociable | Sur demande Sur demande Sur demande Sur demande | Bureau | - | Maintenant |
| 4e étage, bureau #460 | 227 m² | Négociable | Sur demande Sur demande Sur demande Sur demande | Bureau | Construction achevée | Maintenant |
3461 Ringsby Ct - 1er étage – Bureau 140
3461 Ringsby Ct - 3e étage – Bureau #345
3461 Ringsby Ct - 4e étage – Bureau #460
- Espace
- Surface
- Durée
- Loyer
- Type de bien
- État
- Disponible
Full-Service Gross Lease for $5,350/month. Occupancy Agreement for a fully furnished plug and play suite. Includes the following: 1 Private Conference Room or Office, operable glass garage door with laptop bar, Sit Stand Desks by Open Desk, Herman Miller chairs, Private Wifi network. 24/7 building access, Operable Windows. Access to all of the Taxi Campus Amenities, which include; 24/7 on-site security and property management, abundant surface parking (no downtown parking hassle!), a brand new 7,100sf Fitness Center, 2 Restaurants, Coffee Shop, Community Gardens, Onsite Early Childhood Education, shared conference rooms, plus many more.
- Le loyer comprend les services publics, les services de l’immeuble et les frais immobiliers.
- Principalement open space
- Salles de conférence
- Plug & Play
- Cuisine
- Accès aux ascenseurs
- Hauts plafonds
- Lumière naturelle
- Éclairage d’urgence
- Éclairage d’appoint
- Entièrement aménagé comme Bureau standard
- 1 bureau privé
- Espace en excellent état
- Ventilation et chauffage centraux
- Connectivité Wi-Fi
- Espace d’angle
- Plafond apparent
- CVC disponible en-dehors des heures ouvrables
- Douches
- Accessible fauteuils roulants
Full-Service Gross Lease for $2,600/month. Occupancy Agreement for a fully furnished plug and play suite. Includes the following: Private Conference Room or Office, 4 Sit Stand Desks by Open Desk, 4 Herman Miller chairs, Private Wifi network. 24/7 building access, Operable Windows. Access to all of the Taxi Campus Amenities, which include; 24/7 on-site security and property management, abundant surface parking (no downtown parking hassle!), a brand new 7,100sf Fitness Center, 2 Restaurants, Coffee Shop, Community Gardens, Onsite Early Childhood Education, shared conference rooms, plus many more.*Suites either have glass garage door and patio or large operable windows*
- Le loyer comprend les services publics, les services de l’immeuble et les frais immobiliers.
- Principalement open space
- Salles de conférence
- Ventilation et chauffage centraux
- Connectivité Wi-Fi
- Plafond apparent
- CVC disponible en-dehors des heures ouvrables
- Douches
- Entièrement aménagé comme Bureau standard
- 1 bureau privé
- Espace en excellent état
- Cuisine
- Hauts plafonds
- Lumière naturelle
- Éclairage d’urgence
- Éclairage d’appoint
Full-Service Gross Lease for $2,80/month. Occupancy Agreement for a fully furnished plug and play suite with a operable glass garage door that opens to a private patio. Includes the following: Private Conference Room or Office, 4 Sit Stand Desks by Open Desk, 4 Herman Miller chairs, Private Wifi network. 24/7 building access, Operable Windows. Access to all of the Taxi Campus Amenities, which include; 24/7 on-site security and property management, abundant surface parking (no downtown parking hassle!), a brand new 7,100sf Fitness Center, 2 Restaurants, Coffee Shop, Community Gardens, Onsite Early Childhood Education, shared conference rooms, plus many more.*Suites either have glass garage door and patio or large operable windows*0
- Entièrement aménagé comme Bureau standard
- 1 bureau privé
- Espace en excellent état
- Cuisine
- Hauts plafonds
- Lumière naturelle
- Éclairage d’urgence
- Éclairage d’appoint
- Principalement open space
- Salles de conférence
- Ventilation et chauffage centraux
- Connectivité Wi-Fi
- Plafond apparent
- CVC disponible en-dehors des heures ouvrables
- Douches
| Espace | Surface | Durée | Loyer | Type de bien | État | Disponible |
| 3e étage, bureau #300B | 115 m² | Négociable | Sur demande Sur demande Sur demande Sur demande | Bureau | Construction achevée | Maintenant |
| 3e étage, bureau #313 | 56 m² | Négociable | Sur demande Sur demande Sur demande Sur demande | Bureau | Construction achevée | Maintenant |
| 3e étage, bureau 308 | 56 m² | Négociable | Sur demande Sur demande Sur demande Sur demande | Bureau | Construction achevée | Maintenant |
3575 Ringsby Ct - 3e étage – Bureau #300B
3575 Ringsby Ct - 3e étage – Bureau #313
3575 Ringsby Ct - 3e étage – Bureau 308
3455 Ringsby Ct - 1er étage – Bureau #141
| Surface | 84 m² |
| Durée | Négociable |
| Loyer | Sur demande |
| Type de bien | Bureau |
| État | - |
| Disponible | Maintenant |
This is a light filled office that spans two levels by having an upstairs mezzanine level. The main level has a very functional open plan and the mezzanine is fully enclosed, making for a great conference room, office or private team space. Abundant parking, fiber wifi and furniture is included in the rent.
- Le loyer comprend les services publics, les services de l’immeuble et les frais immobiliers.
- Principalement open space
- 1 bureau privé
- Salles de conférence
- Ventilation et chauffage centraux
- Connectivité Wi-Fi
- Hauts plafonds
- Plafond apparent
- Lumière naturelle
- CVC disponible en-dehors des heures ouvrables
- Éclairage d’urgence
- Douches
- Éclairage d’appoint
- Atrium
3455 Ringsby Ct - 1er étage – Bureau 106
| Surface | 143 m² |
| Durée | Négociable |
| Loyer | Sur demande |
| Type de bien | Bureau |
| État | - |
| Disponible | Maintenant |
Highly functional ground floor office space in the Taxi 1 building, the building where the Taxi campus all began! This unit has 1 enclosed conference room, lots of functional work space and a garage door that opens up to a private patio.
- Le loyer ne comprend pas les services publics, les frais immobiliers ou les services de l’immeuble.
- Principalement open space
- 1 salle de conférence
3455 Ringsby Ct - 1er étage – Bureau 112
| Surface | 69 m² |
| Durée | Négociable |
| Loyer | Sur demande |
| Type de bien | Bureau |
| État | - |
| Disponible | Maintenant |
Highly functional open work space layout with tall ceilings and great natural light. Enjoy convenient access to one of the building's entrances and shared common areas. Full service lease for $2,850/month, which includes fiber wifi, parking and access to all of the amenities within the Taxi campus.
- Le loyer comprend les services publics, les services de l’immeuble et les frais immobiliers.
- Salles de conférence
- Ventilation et chauffage centraux
- Connectivité Wi-Fi
- Hauts plafonds
- Plafond apparent
- Lumière naturelle
- CVC disponible en-dehors des heures ouvrables
- Éclairage d’urgence
- Douches
- Service de restauration
- Open space
- Accessible fauteuils roulants
3455 Ringsby Ct - 1er étage – Bureau 94
| Surface | 206 m² |
| Durée | Négociable |
| Loyer | Sur demande |
| Type de bien | Bureau |
| État | - |
| Disponible | Maintenant |
This space works great for traditional office but it's even better if you have shipping/receiving requirements as there is an at-grade glass garage door. This is a corner unit with great natural light and a mostly open floor plan. There are 2 private spaces and a kitchen built out and lots of highly functional open space for work stations.
- Le loyer ne comprend pas les services publics, les frais immobiliers ou les services de l’immeuble.
- 1 bureau privé
- 1 salle de conférence
- Espace en excellent état
- Ventilation et chauffage centraux
- Espace d’angle
- Hauts plafonds
- Plafond apparent
- Lumière naturelle
- CVC disponible en-dehors des heures ouvrables
- Éclairage d’urgence
- Douches
- Éclairage d’appoint
- Open space
3457 Ringsby Ct - 1er étage – Bureau 100-B
| Surface | 218 m² |
| Durée | Négociable |
| Loyer | Sur demande |
| Type de bien | Bureau |
| État | Construction achevée |
| Disponible | Maintenant |
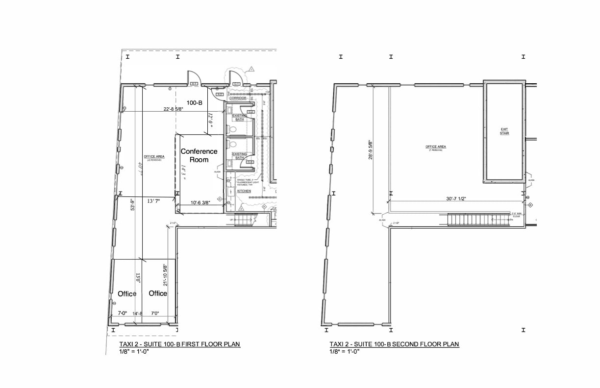
Unique opportunity for a creative office user. A private ground floor entrance with floor to ceiling windows opens into a large open area, one conference room, and 2 private office. Upstairs mezzanine is an open floor plan with an IT closet. The space currently shares access with one other tenant to two private bathrooms. Access to all of the Taxi Campus Amenities, which include; 24/7 on-site security and property management, abundant surface parking (no downtown parking hassle!), a brand new 7,100sf Fitness Center, 2 Restaurants, Coffee Shop, Community Gardens, Onsite Early Childhood Education, shared conference rooms, plus many more.
- Le loyer ne comprend pas les services publics, les frais immobiliers ou les services de l’immeuble.
- Entièrement aménagé comme Bureau standard
- Principalement open space
- 2 bureaux privés
- 1 salle de conférence
- Espace en excellent état
- Ventilation et chauffage centraux
- Cuisine
- Espace d’angle
- Hauts plafonds
- Plafond apparent
- Lumière naturelle
- CVC disponible en-dehors des heures ouvrables
- Douches
- Éclairage d’appoint
3457 Ringsby Ct - 2e étage – Bureau 202
| Surface | 158 – 1 159 m² |
| Durée | Négociable |
| Loyer | Sur demande |
| Type de bien | Bureau |
| État | Construction achevée |
| Disponible | Maintenant |
Take a virtual 3D tour https://my.matterport.com/show/?m=uucBRYZEUcZ Located on the second floor of the Taxi II Building at Zeppelin's amenity rich Taxi Campus, this Class A 12,470sf flexible office space is ideal for a wide variety of tenants ranging from 1,700 to 12,470 square feet - the space can be demised to create the perfect square footage and layout for your office needs. The larger 12,470sf consists of several open bullpen spaces, multiple private offices and conference rooms, a kitchenette, expansive window lines allowing in natural light, city views and mountain views. Access to all of the Taxi Campus Amenities, which include; 24/7 on-site security and property management, abundant surface parking (no downtown parking hassle!), a brand new 7,100sf Fitness Center, 2 Restaurants, Coffee Shop, Community Gardens, Onsite Early Childhood Education, shared conference rooms, plus many more.
- Le loyer ne comprend pas les services publics, les frais immobiliers ou les services de l’immeuble.
- Entièrement aménagé comme Bureau standard
- Principalement open space
- Bureaux cloisonnés
- Salles de conférence
- Plafonds finis: 3,05 mètres - 5,51 mètres
- Espace en excellent état
- Ventilation et chauffage centraux
- Aire de réception
- Cuisine
- Toilettes privées
- Espace d’angle
- Hauts plafonds
- Plafond apparent
- Entreposage sécurisé
- Éclairage encastré
- Lumière naturelle
- CVC disponible en-dehors des heures ouvrables
- Local à vélos
- Éclairage d’urgence
- Douches
3459 Ringsby Ct - 1er étage – Bureau 108
| Surface | 205 m² |
| Durée | Négociable |
| Loyer | Sur demande |
| Type de bien | Bureau |
| État | Construction achevée |
| Disponible | Maintenant |
Take a virtual tour at https://listings.snaplyphoto.com/sites/nxpgjqn/unbranded Amazing space with 2 offices, a large open area and a kitchen. There are also 4 large, operable glass garage doors, that open up to lush native landscape, which provide fresh air and great natural light. Access to all of the Taxi Campus Amenities, which include; 24/7 on-site security and property management, abundant surface parking (no downtown parking hassle!), a brand new 7,100sf Fitness Center, 2 Restaurants, Coffee Shop, Community Gardens, Onsite Early Childhood Education, shared conference rooms, plus many more.
- Le loyer ne comprend pas les services publics, les frais immobiliers ou les services de l’immeuble.
- Entièrement aménagé comme Bureau standard
- Principalement open space
- 4 bureaux privés
- 1 salle de conférence
- Espace en excellent état
- Ventilation et chauffage centraux
- Cuisine
- Connectivité Wi-Fi
- Espace d’angle
- Hauts plafonds
- Plafond apparent
- Lumière naturelle
- CVC disponible en-dehors des heures ouvrables
- Local à vélos
- Éclairage d’urgence
- Douches
- Éclairage d’appoint
- Service de restauration
- Accessible fauteuils roulants
3459 Ringsby Ct - 2e étage – Bureau #203
| Surface | 122 m² |
| Durée | Négociable |
| Loyer | Sur demande |
| Type de bien | Bureau |
| État | Construction achevée |
| Disponible | Maintenant |
Amazing space with 1 private office, 1 "phone booth" office, and open area. There is also a large, operable glass garage door which provides fresh air and great natural light. There are floor to ceilings windows as well, so the unobstructed mountain views are unmatched. Access to all of the Taxi Campus Amenities, which include; 24/7 on-site security and property management, abundant surface parking (no downtown parking hassle!), a brand new 7,100sf Fitness Center, 2 Restaurants, Coffee Shop, Community Gardens, Onsite Early Childhood Education, shared conference rooms, plus many more.
- Le loyer ne comprend pas les services publics, les frais immobiliers ou les services de l’immeuble.
- Entièrement aménagé comme Bureau standard
- Principalement open space
- 1 bureau privé
- Salles de conférence
- Espace en excellent état
- Ventilation et chauffage centraux
- Cuisine
- Connectivité Wi-Fi
- Espace d’angle
- Hauts plafonds
- Plafond apparent
- Lumière naturelle
- CVC disponible en-dehors des heures ouvrables
- Éclairage d’urgence
- Douches
- Éclairage d’appoint
- Service de restauration
3459 Ringsby Ct - 3e étage – Bureau 306
| Surface | 70 m² |
| Durée | Négociable |
| Loyer | Sur demande |
| Type de bien | Bureau |
| État | - |
| Disponible | Maintenant |
This is a premium office for a smaller team. The office comes with one interior private office, an operable glass garage door and highly functional open workspace.
- Le loyer ne comprend pas les services publics, les frais immobiliers ou les services de l’immeuble.
- 1 bureau privé
- Salles de conférence
- Ventilation et chauffage centraux
- Connectivité Wi-Fi
- Système de sécurité
- Espace d’angle
- Hauts plafonds
- Plafond apparent
- Lumière naturelle
- CVC disponible en-dehors des heures ouvrables
- Éclairage d’urgence
- Douches
- Éclairage d’appoint
- Accessible fauteuils roulants
3459 Ringsby Ct - 4e étage – Bureau 407
| Surface | 337 m² |
| Durée | Négociable |
| Loyer | Sur demande |
| Type de bien | Bureau |
| État | Construction achevée |
| Disponible | Maintenant |
See virtual tour and photos at: https://listings.snaplyphoto.com/sites/ymbkbra/unbranded This unit includes 2 enclosed offices/private spaces/conference rooms. The floor plan allowing for separation of open spaces and a flexible workstation layout. There are 5 large operable glass garage doors and many floor to ceilings windows, providing fresh air, abundant natural light and unobstructed mountain views. Access to all of the Taxi Campus Amenities, which include; 24/7 on-site security and property management, abundant surface parking (no downtown parking hassle!), a brand new 7,100sf Fitness Center, 2 Restaurants, Coffee Shop, Community Gardens, Onsite Early Childhood Education, shared conference rooms, plus many more.
- Le loyer ne comprend pas les services publics, les frais immobiliers ou les services de l’immeuble.
- Entièrement aménagé comme Bureau standard
- Principalement open space
- 3 bureaux privés
- Salles de conférence
- Espace haut de gamme
- Ventilation et chauffage centraux
- Connectivité Wi-Fi
- Espace d’angle
- Hauts plafonds
- Éclairage d’appoint
3461 Ringsby Ct - 1er étage – Bureau 140
| Surface | 228 m² |
| Durée | Négociable |
| Loyer | Sur demande |
| Type de bien | Bureau |
| État | Construction achevée |
| Disponible | Maintenant |
Take a virtual tour here: https://my.matterport.com/show/?m=c8WkfgMRZEd&play=1 Amazing office with a great balance of buildout and function open work space. This space already has 2 offices, 1 large office/conference room, and 2 open seating areas. There are great window lines and 2 large, operable glass garage doors that open up to lush native landscape, which provide fresh air and great natural light. Access to all of the Taxi Campus Amenities, which include; 24/7 on-site security and property management, abundant surface parking (no downtown parking hassle!), a brand new 7,100sf Fitness Center, 2 Restaurants, Coffee Shop, Community Gardens, Onsite Early Childhood Education, shared conference rooms, plus many more.
- Le loyer ne comprend pas les services publics, les frais immobiliers ou les services de l’immeuble.
- Entièrement aménagé comme Bureau standard
- Principalement open space
- 4 bureaux privés
- 1 salle de conférence
- Espace en excellent état
- Ventilation et chauffage centraux
- Système de sécurité
- Hauts plafonds
- Plafond apparent
- Lumière naturelle
- CVC disponible en-dehors des heures ouvrables
- Éclairage d’urgence
- Douches
- Éclairage d’appoint
- Accessible fauteuils roulants
3461 Ringsby Ct - 3e étage – Bureau #345
| Surface | 156 m² |
| Durée | Négociable |
| Loyer | Sur demande |
| Type de bien | Bureau |
| État | - |
| Disponible | Maintenant |
This space strikes a great blend of enclosed offices with highly functional open work space. There are 3 private offices, plenty of open floor, floor to ceiling windows and a large glass garage door that has a laptop bar in front of it.
- Le loyer ne comprend pas les services publics, les frais immobiliers ou les services de l’immeuble.
- 3 bureaux privés
- Salles de conférence
- Espace en excellent état
- Ventilation et chauffage centraux
- Hauts plafonds
- Plafond apparent
- Lumière naturelle
- CVC disponible en-dehors des heures ouvrables
- Éclairage d’urgence
- Douches
- Éclairage d’appoint
- Accessible fauteuils roulants
3461 Ringsby Ct - 4e étage – Bureau #460
| Surface | 227 m² |
| Durée | Négociable |
| Loyer | Sur demande |
| Type de bien | Bureau |
| État | Construction achevée |
| Disponible | Maintenant |
Signature corner office suite with a great balance of buildout and functional open work space. This suite will have 3 offices and 1 conference room built out. There are also 4 large, operable glass garage doors, which provide fresh air and great natural light, and one of the garage doors opens up to a private outdoor patio. There are floor to ceilings windows as well, so the unobstructed mountain views are unmatched. Access to all of the Taxi Campus Amenities, which include; 24/7 on-site security and property management, abundant surface parking (no downtown parking hassle!), a brand new 7,100sf Fitness Center, 2 Restaurants, Coffee Shop, Community Gardens, Onsite Early Childhood Education, shared conference rooms, plus many more.
- Le loyer ne comprend pas les services publics, les frais immobiliers ou les services de l’immeuble.
- Entièrement aménagé comme Bureau standard
- Principalement open space
- 3 bureaux privés
- 1 salle de conférence
- Espace en excellent état
- Ventilation et chauffage centraux
- Cuisine
- Espace d’angle
- Hauts plafonds
- Plafond apparent
- Lumière naturelle
- CVC disponible en-dehors des heures ouvrables
- Éclairage d’urgence
- Douches
- Service de restauration
- Détecteur de fumée
- Accessible fauteuils roulants
3575 Ringsby Ct - 3e étage – Bureau #300B
| Surface | 115 m² |
| Durée | Négociable |
| Loyer | Sur demande |
| Type de bien | Bureau |
| État | Construction achevée |
| Disponible | Maintenant |
Full-Service Gross Lease for $5,350/month. Occupancy Agreement for a fully furnished plug and play suite. Includes the following: 1 Private Conference Room or Office, operable glass garage door with laptop bar, Sit Stand Desks by Open Desk, Herman Miller chairs, Private Wifi network. 24/7 building access, Operable Windows. Access to all of the Taxi Campus Amenities, which include; 24/7 on-site security and property management, abundant surface parking (no downtown parking hassle!), a brand new 7,100sf Fitness Center, 2 Restaurants, Coffee Shop, Community Gardens, Onsite Early Childhood Education, shared conference rooms, plus many more.
- Le loyer comprend les services publics, les services de l’immeuble et les frais immobiliers.
- Entièrement aménagé comme Bureau standard
- Principalement open space
- 1 bureau privé
- Salles de conférence
- Espace en excellent état
- Plug & Play
- Ventilation et chauffage centraux
- Cuisine
- Connectivité Wi-Fi
- Accès aux ascenseurs
- Espace d’angle
- Hauts plafonds
- Plafond apparent
- Lumière naturelle
- CVC disponible en-dehors des heures ouvrables
- Éclairage d’urgence
- Douches
- Éclairage d’appoint
- Accessible fauteuils roulants
3575 Ringsby Ct - 3e étage – Bureau #313
| Surface | 56 m² |
| Durée | Négociable |
| Loyer | Sur demande |
| Type de bien | Bureau |
| État | Construction achevée |
| Disponible | Maintenant |
Full-Service Gross Lease for $2,600/month. Occupancy Agreement for a fully furnished plug and play suite. Includes the following: Private Conference Room or Office, 4 Sit Stand Desks by Open Desk, 4 Herman Miller chairs, Private Wifi network. 24/7 building access, Operable Windows. Access to all of the Taxi Campus Amenities, which include; 24/7 on-site security and property management, abundant surface parking (no downtown parking hassle!), a brand new 7,100sf Fitness Center, 2 Restaurants, Coffee Shop, Community Gardens, Onsite Early Childhood Education, shared conference rooms, plus many more.*Suites either have glass garage door and patio or large operable windows*
- Le loyer comprend les services publics, les services de l’immeuble et les frais immobiliers.
- Entièrement aménagé comme Bureau standard
- Principalement open space
- 1 bureau privé
- Salles de conférence
- Espace en excellent état
- Ventilation et chauffage centraux
- Cuisine
- Connectivité Wi-Fi
- Hauts plafonds
- Plafond apparent
- Lumière naturelle
- CVC disponible en-dehors des heures ouvrables
- Éclairage d’urgence
- Douches
- Éclairage d’appoint
3575 Ringsby Ct - 3e étage – Bureau 308
| Surface | 56 m² |
| Durée | Négociable |
| Loyer | Sur demande |
| Type de bien | Bureau |
| État | Construction achevée |
| Disponible | Maintenant |
Full-Service Gross Lease for $2,80/month. Occupancy Agreement for a fully furnished plug and play suite with a operable glass garage door that opens to a private patio. Includes the following: Private Conference Room or Office, 4 Sit Stand Desks by Open Desk, 4 Herman Miller chairs, Private Wifi network. 24/7 building access, Operable Windows. Access to all of the Taxi Campus Amenities, which include; 24/7 on-site security and property management, abundant surface parking (no downtown parking hassle!), a brand new 7,100sf Fitness Center, 2 Restaurants, Coffee Shop, Community Gardens, Onsite Early Childhood Education, shared conference rooms, plus many more.*Suites either have glass garage door and patio or large operable windows*0
- Entièrement aménagé comme Bureau standard
- Principalement open space
- 1 bureau privé
- Salles de conférence
- Espace en excellent état
- Ventilation et chauffage centraux
- Cuisine
- Connectivité Wi-Fi
- Hauts plafonds
- Plafond apparent
- Lumière naturelle
- CVC disponible en-dehors des heures ouvrables
- Éclairage d’urgence
- Douches
- Éclairage d’appoint
Vue d’ensemble du parc
Autrefois siège du Yellow Cab Depot, Zeppelin Development a transformé le campus historique de TAXI pour lui redonner son aspect florissant actuel avec dix bâtiments, 150 entreprises et 400 résidents à temps plein. La communauté riveraine diversifiée continue de croître, en mettant l'accent sur de nouvelles structures et des équipements de travail en direct qui facilitent les relations et la collaboration et favorisent l'innovation. Les équipements sur le campus et les entreprises coactives comprennent des appartements multifamiliaux, une piscine, un terrain de volley-ball, un restaurant, une garderie, une salle de sport flambant neuve, des salles de conférence et de réunion partagées, un café/café, un bar, un salon, un studio/galerie d'art, une aire de jeux, un terrain de basket, des terrasses, un jardin communautaire et bien plus encore. Les locataires peuvent s'attendre à une expérience hors pair grâce à l'attention attentionnée de l'équipe sur place d'Habitat Property Management. Le développement à usage mixte comprend un large éventail d'espaces permettant aux entreprises pionnières de trouver une place dans le quartier de RiNo. Il s'agit notamment de suites entièrement meublées, de bureaux créatifs, de galeries d'art, d'espaces de bureaux traditionnels, d'espaces sur mesure et d'espaces de création. TAXI est préféré par les entreprises d'avenir dans des secteurs tels que l'architecture, le design d'intérieur, l'ingénierie, le développement, les sciences de la vie, la recherche en laboratoire médical et la technologie. Avec un accès facile aux principales autoroutes telles que l'I-25 et l'I-70, ainsi que la proximité du centre-ville de Denver et de l'aéroport, RiNo offre une excellente connectivité. La réputation croissante de RiNo en tant que plaque tournante pour les industries créatives, les startups technologiques et les entreprises innovantes en fait un lieu idéal pour les entreprises qui souhaitent se positionner à l'avant-garde du paysage commercial en évolution de Denver. En outre, l'afflux de projets de bureaux et résidentiels est le signe d'une croissance à long terme, renforçant ainsi le potentiel illimité du quartier. Renseignez-vous dès maintenant pour en savoir plus.
- Accès 24 h/24
- Installations de conférences
- Piscine
- Property Manager sur place
- Restaurant
- Système de sécurité
- Signalisation
- CVC contrôlé par l’occupant
- Bord de l’eau
- Terrasse sur le toit
- Station de recharge de voitures
- Climatisation
- Balcon
- Internet par fibre optique
- Détecteur de fumée
Présenté par
Taxi | Denver, CO 80216
Hum, une erreur s’est produite lors de l’envoi de votre message. Veuillez réessayer.
Merci ! Votre message a été envoyé.









































