Votre e-mail a été envoyé.
Certaines informations ont été traduites automatiquement.
Informations principales
- À distance de marche du complexe hospitalier de Montefiore.
- Rejoignez Walgreens, la poste des États-Unis, Burger King, Citibank, Chipotle, The Children's Place, Bank of America et bien d'autres
Disponibilité de l’espace (1)
Afficher le tarif en
- Espace
- Surface
- Durée
- Loyer
- Type de loyer
| Espace | Surface | Durée | Loyer | Type de loyer | ||
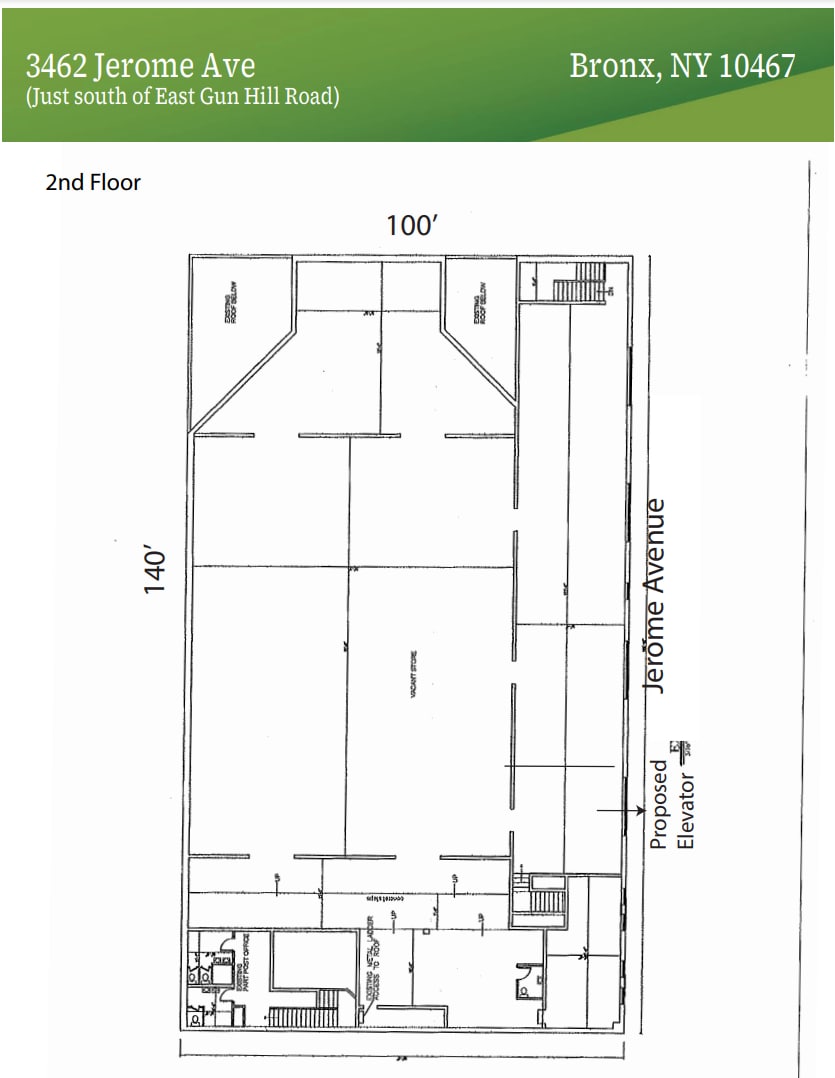
| 2e étage | 1 301 m² | Négociable | 230,31 € /m²/an 19,19 € /m²/mois 299 555 € /an 24 963 € /mois | Brut modifié |
2e étage
Ideal space for office medical use as well as schooling, such as nursery or college classroom. Elevator to installed for credit tenant.
- Il est possible que le loyer annoncé ne comprenne pas certains services publics, services d’immeuble et frais immobiliers.
- Partiellement aménagé comme Bureau standard
- Principalement open space
- Convient pour 35 à 112 personnes
- Climatisation centrale
- Toilettes privées
- Contigu et aligné avec d’autres locaux commerciaux
- Le locataire aura accès à la totalité de l'étage
Types de loyers
Le montant et le type de loyer que l’occupant (locataire) est tenu de payer au propriétaire (bailleur) sur la durée du bail sont négociés avant la signature du bail par les deux parties. Le type de loyer varie selon les services fournis. Par exemple, le prix d’un loyer triple net est habituellement inférieur à celui d’un bail à service complet puisque l’occupant est tenu d’assumer des dépenses supplémentaires par rapport au loyer de base. Contacter le broker chargé de l’annonce pour bien comprendre les coûts associés ou les dépenses supplémentaires pour chaque type de loyer.
1. Service complet: Un loyer qui comprend des services d’immeuble standards normaux fournis par le propriétaire dans le cadre d’une location annuelle de base.
2. Double net (NN): L’occupant paie seulement deux des frais de l’immeuble. Le propriétaire et l’occupant déterminent ces frais spécifiques avant la signature du bail.
3. Triple net (NNN): Un bail selon lequel l’occupant est responsable de tous les frais liés à sa part proportionnelle d’occupation de l’immeuble.
4. Brut modifié: Le brut modifié est un type général de bail dans lequel l’occupant est en général responsable de sa part proportionnelle d’une ou de plusieurs dépenses. C’est le propriétaire qui paie les frais restants. Consultez la liste ci-dessous pour connaître les structures de loyers bruts modifiés les plus courantes : 4. Plus services publics: Un type de bail brut modifié, où l’occupant est responsable à hauteur de sa part proportionnelle des services publics en plus du loyer. 4. Plus nettoyage: Un type de bail brut modifié, où l’occupant est responsable à hauteur de sa part proportionnelle du nettoyage en plus du loyer. 4. Plus électricité: Un type de bail brut modifié, où l’occupant est responsable à hauteur de sa part proportionnelle du coût de la consommation électrique en plus du loyer. 4. Plus électricité et nettoyage: Un type de bail brut modifié, où l’occupant est responsable à hauteur de sa part proportionnelle du coût de la consommation électrique et du nettoyage en plus du loyer. 4. Plus services publics et charges: Un type de bail brut modifié où l’occupant est responsable à hauteur de sa part proportionnelle des services publics et du coût de nettoyage en plus du loyer. 4. Bail industriel brut: Un type de bail brut modifié dans lequel l’occupant paie un ou plusieurs des frais en plus du loyer. Le propriétaire et l’occupant déterminent ces frais spécifiques avant la signature du bail.
5. Électricité à la charge de l’occupant: Le propriétaire paie pour tous les services et l’occupant est responsable de sa propre utilisation de l’éclairage et des prises électriques dans l’espace qu’il occupe.
6. Négociable ou sur demande: Cette option est utilisée lorsque le contact de location n’indique pas le type de loyer ou de service.
7. À déterminer: À déterminer : utilisé pour les immeubles dont le type de services ou de loyer n’est pas connu, souvent quand l’immeuble n’est pas encore construit.
Informations sur l’immeuble
| Espace total disponible | 1 301 m² | Surface commerciale utile | 2 369 m² |
| Type de bien | Local commercial | Année de construction | 1927 |
| Sous-type de bien | Bien à usage mixte |
| Espace total disponible | 1 301 m² |
| Type de bien | Local commercial |
| Sous-type de bien | Bien à usage mixte |
| Surface commerciale utile | 2 369 m² |
| Année de construction | 1927 |
À propos du bien
Situé du côté le plus fréquenté de l'avenue Jerome, au sud d'East Gun Hill Road. Idéal pour les églises, les établissements médicaux, les écoles, les commerces ou les bureaux. L'espace est équipé de gicleurs et de chauffage. L'espace est équipé de l'électricité et le boîtier de panneaux se trouve au sous-sol du bâtiment. L'espace a de l'eau et il y avait une salle de bain dans l'espace. Des fenêtres peuvent être installées à l'arrière du bâtiment. Le mur qui sépare la plus petite partie de l'espace de l'espace le plus grand est porteur. Des portes peuvent être fabriquées dans ce mur porteur.
- Ligne d’autobus
- Métro
- Signalisation
Principaux commerces à proximité
Présenté par
HIGHLY VISIBLE 2nd FLOOR SPACE | 3448-3464 Jerome Ave
Hum, une erreur s’est produite lors de l’envoi de votre message. Veuillez réessayer.
Merci ! Votre message a été envoyé.




