Votre e-mail a été envoyé.
340 Legget Dr 18–5 573 m² | À louer | Ottawa, ON K2K 1Y6



Certaines informations ont été traduites automatiquement.
INFORMATIONS PRINCIPALES
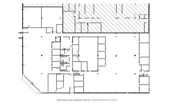
- Constructed in 1981, this 158,780 sq. ft. single-storey office and warehouse building sits at the corner of March Road and Carling Avenue.
- Amenities include barrier-free access, landscaped courtyard, freight elevator, and multiple loading areas.
- The steel-frame building features a brick façade, extensive glazing, and a 27-foot high-bay warehouse with mezzanine.
- The property is fully air-conditioned and sprinklered, with central building automation and 24/7 monitored security.
CARACTÉRISTIQUES
TOUS LES ESPACES DISPONIBLES(6)
Afficher les loyers en
- ESPACE
- SURFACE
- DURÉE
- LOYER
- TYPE DE BIEN
- ÉTAT
- DISPONIBLE
Fully built-out open concept office space featuring multiple boardrooms and private offices. The suite includes access to on-site shower facilities, an EV charging station, and is eligible for pylon signage exposure.
- Entièrement aménagé comme Bureau standard
- Convient pour 69 à 220 personnes
- 3 salles de conférence
- Cuisine
- Principalement open space
- 22 bureaux privés
- Aire de réception
- Douches
- Entièrement aménagé comme Bureau standard
- Convient pour 1 à 2 personnes
- Principalement open space
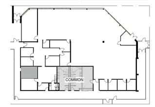
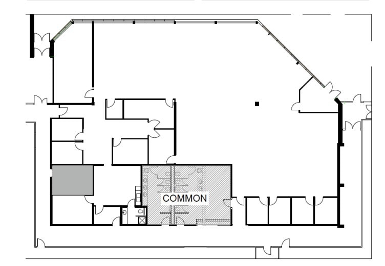
This 5,646 sq. ft. suite offers a blend of open workspaces and private offices, complete with an insuite kitchen and dining area, secured 24/7 access, and ample free onsite parking. Located in the heart of Kanata North, it’s steps from Hub350 and community amenities.
- Entièrement aménagé comme Bureau standard
- Convient pour 15 à 46 personnes
- 1 salle de conférence
- Principalement open space
- 4 bureaux privés
- Entièrement aménagé comme Bureau standard
- Convient pour 40 à 127 personnes
- Principalement open space
This bright and functional 8,091 sq. ft. suite includes several offices, a spacious kitchen, 24/7 access, EV charging stations, free parking, and nearby showers and cafeteria..
- Entièrement aménagé comme Bureau standard
- Convient pour 21 à 65 personnes
- 1 salle de conférence
- Cuisine
- Principalement open space
- 11 bureaux privés
- Aire de réception
- Douches
- 1er étage – 190
- 269 m²
- 1-10 Ans
- Sur demande Sur demande Sur demande Sur demande
- Industriel/Logistique
- Construction achevée
- En attente
| Espace | Surface | Durée | Loyer | Type de bien | État | Disponible |
| 1er étage, bureau 100 | 2 545 m² | 1-10 Ans | Sur demande Sur demande Sur demande Sur demande | Bureau | Construction achevée | Maintenant |
| 1er étage, bureau 120A | 18 m² | 1-10 Ans | Sur demande Sur demande Sur demande Sur demande | Bureau | Construction achevée | En attente |
| 1er étage, bureau 125 | 525 m² | 1-10 Ans | Sur demande Sur demande Sur demande Sur demande | Bureau | Construction achevée | Maintenant |
| 1er étage, bureau 130 | 1 463 m² | 1-10 Ans | Sur demande Sur demande Sur demande Sur demande | Bureau | Construction achevée | En attente |
| 1er étage, bureau 140 | 752 m² | 1-10 Ans | Sur demande Sur demande Sur demande Sur demande | Bureau | Construction achevée | Maintenant |
| 1er étage – 190 | 269 m² | 1-10 Ans | Sur demande Sur demande Sur demande Sur demande | Industriel/Logistique | Construction achevée | En attente |
1er étage, bureau 100
| Surface |
| 2 545 m² |
| Durée |
| 1-10 Ans |
| Loyer |
| Sur demande Sur demande Sur demande Sur demande |
| Type de bien |
| Bureau |
| État |
| Construction achevée |
| Disponible |
| Maintenant |
1er étage, bureau 120A
| Surface |
| 18 m² |
| Durée |
| 1-10 Ans |
| Loyer |
| Sur demande Sur demande Sur demande Sur demande |
| Type de bien |
| Bureau |
| État |
| Construction achevée |
| Disponible |
| En attente |
1er étage, bureau 125
| Surface |
| 525 m² |
| Durée |
| 1-10 Ans |
| Loyer |
| Sur demande Sur demande Sur demande Sur demande |
| Type de bien |
| Bureau |
| État |
| Construction achevée |
| Disponible |
| Maintenant |
1er étage, bureau 130
| Surface |
| 1 463 m² |
| Durée |
| 1-10 Ans |
| Loyer |
| Sur demande Sur demande Sur demande Sur demande |
| Type de bien |
| Bureau |
| État |
| Construction achevée |
| Disponible |
| En attente |
1er étage, bureau 140
| Surface |
| 752 m² |
| Durée |
| 1-10 Ans |
| Loyer |
| Sur demande Sur demande Sur demande Sur demande |
| Type de bien |
| Bureau |
| État |
| Construction achevée |
| Disponible |
| Maintenant |
1er étage – 190
| Surface |
| 269 m² |
| Durée |
| 1-10 Ans |
| Loyer |
| Sur demande Sur demande Sur demande Sur demande |
| Type de bien |
| Industriel/Logistique |
| État |
| Construction achevée |
| Disponible |
| En attente |
1er étage, bureau 100
| Surface | 2 545 m² |
| Durée | 1-10 Ans |
| Loyer | Sur demande |
| Type de bien | Bureau |
| État | Construction achevée |
| Disponible | Maintenant |
Fully built-out open concept office space featuring multiple boardrooms and private offices. The suite includes access to on-site shower facilities, an EV charging station, and is eligible for pylon signage exposure.
- Entièrement aménagé comme Bureau standard
- Principalement open space
- Convient pour 69 à 220 personnes
- 22 bureaux privés
- 3 salles de conférence
- Aire de réception
- Cuisine
- Douches
1er étage, bureau 120A
| Surface | 18 m² |
| Durée | 1-10 Ans |
| Loyer | Sur demande |
| Type de bien | Bureau |
| État | Construction achevée |
| Disponible | En attente |
- Entièrement aménagé comme Bureau standard
- Principalement open space
- Convient pour 1 à 2 personnes
1er étage, bureau 125
| Surface | 525 m² |
| Durée | 1-10 Ans |
| Loyer | Sur demande |
| Type de bien | Bureau |
| État | Construction achevée |
| Disponible | Maintenant |
This 5,646 sq. ft. suite offers a blend of open workspaces and private offices, complete with an insuite kitchen and dining area, secured 24/7 access, and ample free onsite parking. Located in the heart of Kanata North, it’s steps from Hub350 and community amenities.
- Entièrement aménagé comme Bureau standard
- Principalement open space
- Convient pour 15 à 46 personnes
- 4 bureaux privés
- 1 salle de conférence
1er étage, bureau 130
| Surface | 1 463 m² |
| Durée | 1-10 Ans |
| Loyer | Sur demande |
| Type de bien | Bureau |
| État | Construction achevée |
| Disponible | En attente |
- Entièrement aménagé comme Bureau standard
- Principalement open space
- Convient pour 40 à 127 personnes
1er étage, bureau 140
| Surface | 752 m² |
| Durée | 1-10 Ans |
| Loyer | Sur demande |
| Type de bien | Bureau |
| État | Construction achevée |
| Disponible | Maintenant |
This bright and functional 8,091 sq. ft. suite includes several offices, a spacious kitchen, 24/7 access, EV charging stations, free parking, and nearby showers and cafeteria..
- Entièrement aménagé comme Bureau standard
- Principalement open space
- Convient pour 21 à 65 personnes
- 11 bureaux privés
- 1 salle de conférence
- Aire de réception
- Cuisine
- Douches
APERÇU DU BIEN
Construit en 1981, le 340 Legget Drive est situé à l'angle de March Road et de Carling Avenue. Cette structure d'un étage comprend 158 780 pieds carrés de bureaux et d'entrepôts donnant sur un aménagement paysager mature. Une structure à ossature d'acier avec façade en brique et revêtement en acier isolé ainsi qu'un vaste vitrage réfléchissant en bronze recouvrent 3 côtés de ce bâtiment, le 4e étant un entrepôt climatisé de 27 pieds de haut avec mezzanine et 4 quais de chargement. La conception du bâtiment comprend un accès sans obstacles, une cour paysagée sécurisée, un monte-charge hydraulique menant à la mezzanine de l'entrepôt et 4 quais de chargement avec une 5e aire de chargement au rez-de-chaussée. Le bâtiment est entièrement équipé de gicleurs et d'un système d'alarme incendie adressable avec surveillance sur place 24 heures sur 24, 7 jours sur 7. Le bâtiment est équipé d'un système d'accès par carte qui est surveillé et contrôlé par un centre de sécurité central. Ce bâtiment est relié au 350 Legget et au 390 March par des passerelles vitrées. Le bâtiment est entièrement climatisé à l'aide d'unités CVC montées sur le toit et chauffé par une combinaison de chauffages électriques à plénum et/ou d'une chaudière à eau chaude. Tout le chauffage, la climatisation et l'éclairage sont contrôlés par une automatisation centrale du bâtiment
FAITS SUR L’INSTALLATION ENTREPÔT
Présenté par
340 Legget Dr
Hum, une erreur s’est produite lors de l’envoi de votre message. Veuillez réessayer.
Merci ! Votre message a été envoyé.






