Votre e-mail a été envoyé.
Certaines informations ont été traduites automatiquement.
Informations principales
- Situé au cœur du centre-ville historique de Riverside, en Californie
- The building provides secure subterranean parking designed for daily tenant convenience.
- The tower is walking distance to key civic, legal, and government institutions.
- Accès immédiat à l'autoroute 91
- An enclosed outdoor terrace offers an inviting on-site amenity for occupant use.
- Numerous dining, retail, and service amenities surround the property.
Tous les espaces disponibles(5)
Afficher les loyers en
- Espace
- Surface
- Durée
- Loyer
- Type de bien
- Aménagement
- Disponible
Suite 125 offers a shell configuration suited for users seeking the flexibility to design a highly customized layout. Positioned on the first floor, the suite provides convenient access to the main lobby and building circulation paths. Its open condition allows incoming tenants to shape office, conference, or reception areas according to their operational needs while benefiting from the building’s Class A setting and downtown amenities.
- Le loyer comprend les services publics, les services de l’immeuble et les frais immobiliers.
- Accès aux ascenseurs
- Open space
- Accessible fauteuils roulants
- First-floor suite with access
- Ventilation et chauffage centraux
- CVC disponible en-dehors des heures ouvrables
- Détecteur de fumée
- Shell layout ready for build
- Flexible configuration for users
Suite 350 features a combination of multiple private offices and open work areas, offering a balanced environment for collaborative and heads-down tasks. The suite is well positioned within the building, creating a functional and efficient layout for a variety of operational needs. With its mix of enclosed and open workspace, this suite supports groups requiring departmental separation, meeting areas, or future growth capacity while maintaining connectivity to building amenities and downtown conveniences.
- Le loyer comprend les services publics, les services de l’immeuble et les frais immobiliers.
- Principalement open space
- Multiple offices with open space
- Ideal for blended operations
- Entièrement aménagé comme Bureau standard
- Open space
- Versatile layout for teams
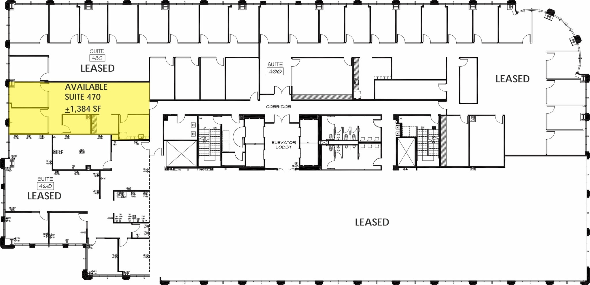
Suite 470 includes multiple private offices paired with open area space, delivering a functional footprint for professional users who value both privacy and collaboration. Located on the fourth floor, the suite offers efficient circulation and access to shared building features. This configuration accommodates small teams, consulting practices, or service-based operations seeking a manageable and polished workspace within a prominent downtown tower.
- Le loyer comprend les services publics, les services de l’immeuble et les frais immobiliers.
- Plan d’étage avec bureaux fermés
- Offices with open work zones
- Fourth-floor professional suite
- Entièrement aménagé comme Bureau standard
- Salle d’impression/photocopie
- Functional layout for small teams
Suite 620 is a built-out office suite featuring defined workspace elements suited for small professional groups. Located on the sixth floor, the suite benefits from a thoughtfully planned footprint that includes workstation or office separation opportunities. Its size and configuration make it ideal for boutique firms or service providers seeking an efficient and polished environment within a Class A setting surrounded by downtown amenities.
- Le loyer comprend les services publics, les services de l’immeuble et les frais immobiliers.
- Principalement open space
- Accès aux ascenseurs
- Détecteur de fumée
- Open area with kitchen and large conference room.
- Entièrement aménagé comme Bureau standard
- Ventilation et chauffage centraux
- CVC disponible en-dehors des heures ouvrables
- Accessible fauteuils roulants
- Can add a private office or two.
Suite 640 is a built-out sixth-floor suite that incorporates office space, conference room elements, reception features, and a coffee bar area as shown in the brochure’s plan. This configuration supports users seeking a turnkey environment with defined functional zones. The suite’s position and layout offer an elevated experience for tenants wanting a refined workspace within a well-amenitized downtown tower.
- Le loyer comprend les services publics, les services de l’immeuble et les frais immobiliers.
- 2 bureaux privés
- Aire de réception
- Conference and reception included
- Entièrement aménagé comme Bureau standard
- 1 salle de conférence
- Built-out suite with open area
- Two private offices
| Espace | Surface | Durée | Loyer | Type de bien | Aménagement | Disponible |
| 1er étage, bureau 125 | 166 m² | 5-10 Ans | 374,57 € /m²/an 31,21 € /m²/mois 62 115 € /an 5 176 € /mois | Bureau | Espace brut | Maintenant |
| 3e étage, bureau 350 | 1 294 m² | 5-10 Ans | 358,04 € /m²/an 29,84 € /m²/mois 463 455 € /an 38 621 € /mois | Bureau | Construction achevée | Maintenant |
| 4e étage, bureau 470 | 129 m² | 5-10 Ans | 374,57 € /m²/an 31,21 € /m²/mois 48 161 € /an 4 013 € /mois | Bureau | Construction achevée | 30 jours |
| 6e étage, bureau 620 | 84 m² | 5-10 Ans | 374,57 € /m²/an 31,21 € /m²/mois 31 492 € /an 2 624 € /mois | Bureau | Construction achevée | Maintenant |
| 6e étage, bureau 640 | 110 m² | 5-10 Ans | 374,57 € /m²/an 31,21 € /m²/mois 41 027 € /an 3 419 € /mois | Bureau | Construction achevée | 30 jours |
1er étage, bureau 125
| Surface |
| 166 m² |
| Durée |
| 5-10 Ans |
| Loyer |
| 374,57 € /m²/an 31,21 € /m²/mois 62 115 € /an 5 176 € /mois |
| Type de bien |
| Bureau |
| Aménagement |
| Espace brut |
| Disponible |
| Maintenant |
3e étage, bureau 350
| Surface |
| 1 294 m² |
| Durée |
| 5-10 Ans |
| Loyer |
| 358,04 € /m²/an 29,84 € /m²/mois 463 455 € /an 38 621 € /mois |
| Type de bien |
| Bureau |
| Aménagement |
| Construction achevée |
| Disponible |
| Maintenant |
4e étage, bureau 470
| Surface |
| 129 m² |
| Durée |
| 5-10 Ans |
| Loyer |
| 374,57 € /m²/an 31,21 € /m²/mois 48 161 € /an 4 013 € /mois |
| Type de bien |
| Bureau |
| Aménagement |
| Construction achevée |
| Disponible |
| 30 jours |
6e étage, bureau 620
| Surface |
| 84 m² |
| Durée |
| 5-10 Ans |
| Loyer |
| 374,57 € /m²/an 31,21 € /m²/mois 31 492 € /an 2 624 € /mois |
| Type de bien |
| Bureau |
| Aménagement |
| Construction achevée |
| Disponible |
| Maintenant |
6e étage, bureau 640
| Surface |
| 110 m² |
| Durée |
| 5-10 Ans |
| Loyer |
| 374,57 € /m²/an 31,21 € /m²/mois 41 027 € /an 3 419 € /mois |
| Type de bien |
| Bureau |
| Aménagement |
| Construction achevée |
| Disponible |
| 30 jours |
1er étage, bureau 125
| Surface | 166 m² |
| Durée | 5-10 Ans |
| Loyer | 374,57 € /m²/an |
| Type de bien | Bureau |
| Aménagement | Espace brut |
| Disponible | Maintenant |
Suite 125 offers a shell configuration suited for users seeking the flexibility to design a highly customized layout. Positioned on the first floor, the suite provides convenient access to the main lobby and building circulation paths. Its open condition allows incoming tenants to shape office, conference, or reception areas according to their operational needs while benefiting from the building’s Class A setting and downtown amenities.
- Le loyer comprend les services publics, les services de l’immeuble et les frais immobiliers.
- Ventilation et chauffage centraux
- Accès aux ascenseurs
- CVC disponible en-dehors des heures ouvrables
- Open space
- Détecteur de fumée
- Accessible fauteuils roulants
- Shell layout ready for build
- First-floor suite with access
- Flexible configuration for users
3e étage, bureau 350
| Surface | 1 294 m² |
| Durée | 5-10 Ans |
| Loyer | 358,04 € /m²/an |
| Type de bien | Bureau |
| Aménagement | Construction achevée |
| Disponible | Maintenant |
Suite 350 features a combination of multiple private offices and open work areas, offering a balanced environment for collaborative and heads-down tasks. The suite is well positioned within the building, creating a functional and efficient layout for a variety of operational needs. With its mix of enclosed and open workspace, this suite supports groups requiring departmental separation, meeting areas, or future growth capacity while maintaining connectivity to building amenities and downtown conveniences.
- Le loyer comprend les services publics, les services de l’immeuble et les frais immobiliers.
- Entièrement aménagé comme Bureau standard
- Principalement open space
- Open space
- Multiple offices with open space
- Versatile layout for teams
- Ideal for blended operations
4e étage, bureau 470
| Surface | 129 m² |
| Durée | 5-10 Ans |
| Loyer | 374,57 € /m²/an |
| Type de bien | Bureau |
| Aménagement | Construction achevée |
| Disponible | 30 jours |
Suite 470 includes multiple private offices paired with open area space, delivering a functional footprint for professional users who value both privacy and collaboration. Located on the fourth floor, the suite offers efficient circulation and access to shared building features. This configuration accommodates small teams, consulting practices, or service-based operations seeking a manageable and polished workspace within a prominent downtown tower.
- Le loyer comprend les services publics, les services de l’immeuble et les frais immobiliers.
- Entièrement aménagé comme Bureau standard
- Plan d’étage avec bureaux fermés
- Salle d’impression/photocopie
- Offices with open work zones
- Functional layout for small teams
- Fourth-floor professional suite
6e étage, bureau 620
| Surface | 84 m² |
| Durée | 5-10 Ans |
| Loyer | 374,57 € /m²/an |
| Type de bien | Bureau |
| Aménagement | Construction achevée |
| Disponible | Maintenant |
Suite 620 is a built-out office suite featuring defined workspace elements suited for small professional groups. Located on the sixth floor, the suite benefits from a thoughtfully planned footprint that includes workstation or office separation opportunities. Its size and configuration make it ideal for boutique firms or service providers seeking an efficient and polished environment within a Class A setting surrounded by downtown amenities.
- Le loyer comprend les services publics, les services de l’immeuble et les frais immobiliers.
- Entièrement aménagé comme Bureau standard
- Principalement open space
- Ventilation et chauffage centraux
- Accès aux ascenseurs
- CVC disponible en-dehors des heures ouvrables
- Détecteur de fumée
- Accessible fauteuils roulants
- Open area with kitchen and large conference room.
- Can add a private office or two.
6e étage, bureau 640
| Surface | 110 m² |
| Durée | 5-10 Ans |
| Loyer | 374,57 € /m²/an |
| Type de bien | Bureau |
| Aménagement | Construction achevée |
| Disponible | 30 jours |
Suite 640 is a built-out sixth-floor suite that incorporates office space, conference room elements, reception features, and a coffee bar area as shown in the brochure’s plan. This configuration supports users seeking a turnkey environment with defined functional zones. The suite’s position and layout offer an elevated experience for tenants wanting a refined workspace within a well-amenitized downtown tower.
- Le loyer comprend les services publics, les services de l’immeuble et les frais immobiliers.
- Entièrement aménagé comme Bureau standard
- 2 bureaux privés
- 1 salle de conférence
- Aire de réception
- Built-out suite with open area
- Conference and reception included
- Two private offices
Aperçu du bien
Immeuble de bureaux professionnel de classe A de 6 étages, situé au centre-ville de Riverside. À distance de marche des tribunaux d'État et fédéraux, du centre civique, du centre administratif du comté, du centre des congrès et de l'hôpital.
- Cour
- Signalisation
- Climatisation
Informations sur l’immeuble
Présenté par
Citrus Tower | 3390 University Ave
Hum, une erreur s’est produite lors de l’envoi de votre message. Veuillez réessayer.
Merci ! Votre message a été envoyé.












