Votre e-mail a été envoyé.
335 First Ave Local commercial | 153 m² | À louer | New York, NY 10003



Certaines informations ont été traduites automatiquement.
Informations principales
- High-traffic First Avenue location with strong daily pedestrian volume.
- Close proximity to NYU, Union Square, and Mount Sinai Beth Israel.
- Ideal corridor for neighborhood retail, medical, and service operators.
- Surrounded by major residential density near Stuyvesant Town and Gramercy.
- Reliable transit access via the First Avenue L train and multiple bus routes.
Tous les espace disponibles(1)
Afficher les loyers en
- Espace
- Surface
- Durée
- Loyer
- Type de bien
- Aménagement
- Disponible
Positioned in Gramercy Park along one of Manhattan’s busiest thoroughfares, this ground-floor location offers outstanding street exposure and consistent foot traffic in a multifamily mid-rise building built in 1920. Key Features Approximately 2000 SF of space with a basement Former medical office build-out with reception, exam rooms, and support spaces Excellent frontage and visibility on 1st Avenue Located steps from Mount Sinai Beth Israel and Bellevue Hospital—ideal for healthcare or wellness use Surrounded by dense residential buildings, boutique retail, cafes, and high pedestrian traffic High ceilings, bright and open layout with large display windows Space previously fitted with multiple exam/treatment rooms, a reception/waiting area, private office, and built-in plumbing and ventilation Zoned C1-6A, suitable for medical, retail, office, or wellness tenants Prior Setup Highlights Reception/Waiting Area oriented toward the storefront At least two exam or treatment rooms, with plumbing connections available A private office/back room or staff area Separate support space for storage or records Central HVAC and proper ventilation suitable for medical or wellness operations The layout facilitates a smooth transition for tenants seeking medical, dental, aesthetic, or therapy-related services Location Benefits Walking distance to Union Square, local parks, and dynamic East Village amenities—ensuring consistent visibility and foot traffic Public transit access includes nearby subway lines and multiple bus routes Surrounded by a vibrant residential and professional tenant base (e.g. NYU, Stuyvesant Town, hospitals) with above-average walk and transit scores This space represents a rare opportunity to occupy a fully built-out commercial suite in a highly trafficked, mixed-use mid-rise building. Previously outfitted for medical use with exam rooms, reception, private office, and infrastructure in place, it offers immediate potential for practitioners, wellness brands, or boutique services. Available Immediately for Lease. Contact today to schedule a tour, review floor plans, or learn about rent and terms.
- Le loyer ne comprend pas les services publics, les frais immobiliers ou les services de l’immeuble.
- Contigu et aligné avec d’autres locaux commerciaux
- Bureaux cloisonnés
- Sous-sol
- Built-out medical office
- Entièrement aménagé comme Espace spécialisé
- Ventilation et chauffage centraux
- Éclairage encastré
- Planchers en bois
| Espace | Surface | Durée | Loyer | Type de bien | Aménagement | Disponible |
| 1er étage | 153 m² | 5-15 Ans | 875,19 € /m²/an 72,93 € /m²/mois 134 158 € /an 11 180 € /mois | Local commercial | Construction achevée | Maintenant |
1er étage
| Surface |
| 153 m² |
| Durée |
| 5-15 Ans |
| Loyer |
| 875,19 € /m²/an 72,93 € /m²/mois 134 158 € /an 11 180 € /mois |
| Type de bien |
| Local commercial |
| Aménagement |
| Construction achevée |
| Disponible |
| Maintenant |
1er étage
| Surface | 153 m² |
| Durée | 5-15 Ans |
| Loyer | 875,19 € /m²/an |
| Type de bien | Local commercial |
| Aménagement | Construction achevée |
| Disponible | Maintenant |
Positioned in Gramercy Park along one of Manhattan’s busiest thoroughfares, this ground-floor location offers outstanding street exposure and consistent foot traffic in a multifamily mid-rise building built in 1920. Key Features Approximately 2000 SF of space with a basement Former medical office build-out with reception, exam rooms, and support spaces Excellent frontage and visibility on 1st Avenue Located steps from Mount Sinai Beth Israel and Bellevue Hospital—ideal for healthcare or wellness use Surrounded by dense residential buildings, boutique retail, cafes, and high pedestrian traffic High ceilings, bright and open layout with large display windows Space previously fitted with multiple exam/treatment rooms, a reception/waiting area, private office, and built-in plumbing and ventilation Zoned C1-6A, suitable for medical, retail, office, or wellness tenants Prior Setup Highlights Reception/Waiting Area oriented toward the storefront At least two exam or treatment rooms, with plumbing connections available A private office/back room or staff area Separate support space for storage or records Central HVAC and proper ventilation suitable for medical or wellness operations The layout facilitates a smooth transition for tenants seeking medical, dental, aesthetic, or therapy-related services Location Benefits Walking distance to Union Square, local parks, and dynamic East Village amenities—ensuring consistent visibility and foot traffic Public transit access includes nearby subway lines and multiple bus routes Surrounded by a vibrant residential and professional tenant base (e.g. NYU, Stuyvesant Town, hospitals) with above-average walk and transit scores This space represents a rare opportunity to occupy a fully built-out commercial suite in a highly trafficked, mixed-use mid-rise building. Previously outfitted for medical use with exam rooms, reception, private office, and infrastructure in place, it offers immediate potential for practitioners, wellness brands, or boutique services. Available Immediately for Lease. Contact today to schedule a tour, review floor plans, or learn about rent and terms.
- Le loyer ne comprend pas les services publics, les frais immobiliers ou les services de l’immeuble.
- Entièrement aménagé comme Espace spécialisé
- Contigu et aligné avec d’autres locaux commerciaux
- Ventilation et chauffage centraux
- Bureaux cloisonnés
- Éclairage encastré
- Sous-sol
- Planchers en bois
- Built-out medical office
Informations sur l’immeuble
| Espace total disponible | 153 m² | Style d’appartement | De hauteur moyenne |
| Nb de lots | 6 | Surface de l’immeuble | 469 m² |
| Type de bien | Immeuble residentiel | Année de construction | 1920 |
| Sous-type de bien | Appartement |
| Espace total disponible | 153 m² |
| Nb de lots | 6 |
| Type de bien | Immeuble residentiel |
| Sous-type de bien | Appartement |
| Style d’appartement | De hauteur moyenne |
| Surface de l’immeuble | 469 m² |
| Année de construction | 1920 |
À propos du bien
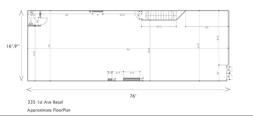
Exceptional ground-floor retail opportunity with expansive glass frontage in a high-visibility corner location at East 20th Street and First Avenue. Asking Rent: $13,500 For additional info please contact Sunny@AlphaNYC.com Or Tal at GrafiRealty@Gmail.com The Space: Approximately 76 ft x 17 ft (SEE FLOORPLAN) with a large basement, suitable for most dry uses. The unit can be delivered as-is including existing built-in offices OR be delivered vanilla box throughout offering flexibility for a variety of layouts and business types. Ideal Uses: Medical office, spa, nail salon, pet grooming, or other retail and service-oriented concepts. The Location: Situated in the heart of Manhattan’s vibrant East Village, this retail space at 335 First Avenue benefits from excellent foot traffic and strong neighborhood demand. Just steps from Stuyvesant Town and Union Square, the area is surrounded by dense residential buildings, medical offices, restaurants, cafés, and boutique retailers—making it an ideal destination for both local and commuter-driven clientele.
Principaux commerces à proximité
Présenté par
Grafi Realty
335 First Ave
Hum, une erreur s’est produite lors de l’envoi de votre message. Veuillez réessayer.
Merci ! Votre message a été envoyé.



