Votre e-mail a été envoyé.
Certaines informations ont été traduites automatiquement.
Informations principales sur le parc
- Prime Redwood City Location: Central access to major thoroughfares and public transit
- Surrounded by Amenities: Walkable to over 30 restaurants, retail stores, and automotive services, enhancing work-life balance.
- Prime Redwood City Location: Central access to major thoroughfares and public transit.
- Flexible Suite Sizes: Units range from ±1,713 SF to ±9,284 SF, with options to combine spaces for larger requirements.
- Call listing brokers for more information
- Call listing brokers for more information.
Faits sur le parc
| Espace total disponible | 1 601 m² | Type de parc | Parc industriel |
| Max. Contigu | 1 188 m² |
| Espace total disponible | 1 601 m² |
| Max. Contigu | 1 188 m² |
| Type de parc | Parc industriel |
Tous les espaces disponibles(5)
Afficher les loyers en
- Espace
- Surface
- Durée
- Loyer
- Type de bien
- Aménagement
- Disponible
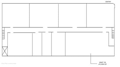
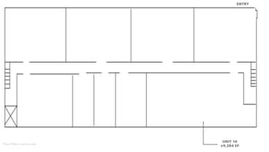
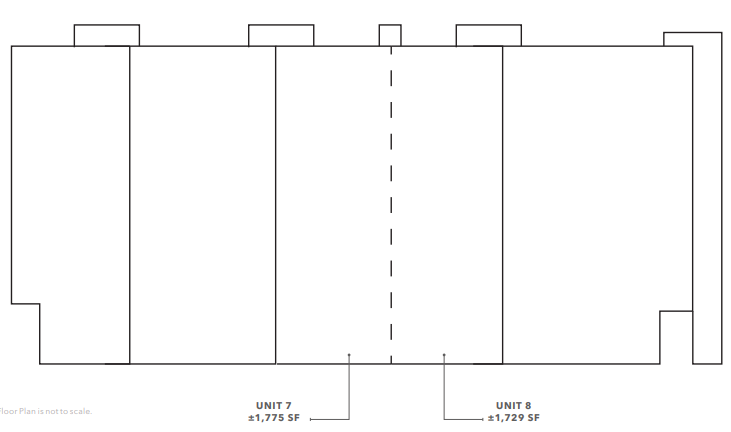
A first-floor unit with a practical layout, ideal for businesses seeking visibility and accessibility. Can be combined with Unit 8 or Unit 10 for larger requirements.
- Peut être associé à un ou plusieurs espaces supplémentaires pour obtenir jusqu’à 1 188 m² d’espace adjacent.
- Call listing brokers for more information
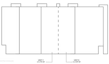
Unit 8 offers a similar configuration to Unit 7, with the option to combine for expanded space. Can be combined with Unit 7 or Unit 10 for larger requirements.
- Peut être associé à un ou plusieurs espaces supplémentaires pour obtenir jusqu’à 1 188 m² d’espace adjacent.
- Call listing brokers for more information
A substantial second-floor suite, perfect for those needing extensive open-plan space. Can be combined with Units 7 and 8 for a total of ±12,788 SF.
- Peut être associé à un ou plusieurs espaces supplémentaires pour obtenir jusqu’à 1 188 m² d’espace adjacent.
- Call listing brokers for more information
| Espace | Surface | Durée | Loyer | Type de bien | Aménagement | Disponible |
| 1er étage – 7 | 165 m² | Négociable | Sur demande Sur demande Sur demande Sur demande | Industriel/Logistique | Construction partielle | Maintenant |
| 1er étage – 8 | 161 m² | Négociable | Sur demande Sur demande Sur demande Sur demande | Industriel/Logistique | - | Maintenant |
| 2e étage – 10 | 863 m² | Négociable | Sur demande Sur demande Sur demande Sur demande | Industriel/Logistique | Construction partielle | Maintenant |
335 Convention Way - 1er étage – 7
335 Convention Way - 1er étage – 8
335 Convention Way - 2e étage – 10
- Espace
- Surface
- Durée
- Loyer
- Type de bien
- Aménagement
- Disponible
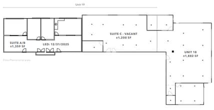
1,882 SF of Industrial/Office space available for lease
- Convient pour 5 à 16 personnes
- Call listing brokers for more information
Located on the second floor, this suite provides a generous open area suitable for collaborative work or flexible office configurations.
- Convient pour 7 à 21 personnes
- Call listing brokers for more information
- Bureaux cloisonnés
| Espace | Surface | Durée | Loyer | Type de bien | Aménagement | Disponible |
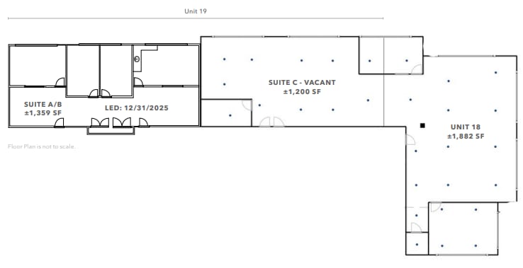
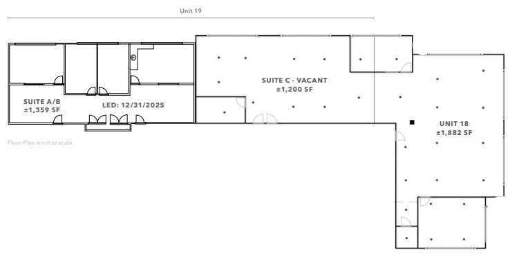
| 2e étage, bureau 18 | 175 m² | Négociable | Sur demande Sur demande Sur demande Sur demande | Bureau | - | Maintenant |
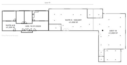
| 2e étage, bureau 19 | 238 m² | Négociable | Sur demande Sur demande Sur demande Sur demande | Bureau | - | Maintenant |
260 Main St - 2e étage – Bureau 18
260 Main St - 2e étage – Bureau 19
335 Convention Way - 1er étage – 7
| Surface | 165 m² |
| Durée | Négociable |
| Loyer | Sur demande |
| Type de bien | Industriel/Logistique |
| Aménagement | Construction partielle |
| Disponible | Maintenant |
A first-floor unit with a practical layout, ideal for businesses seeking visibility and accessibility. Can be combined with Unit 8 or Unit 10 for larger requirements.
- Peut être associé à un ou plusieurs espaces supplémentaires pour obtenir jusqu’à 1 188 m² d’espace adjacent.
- Call listing brokers for more information
335 Convention Way - 1er étage – 8
| Surface | 161 m² |
| Durée | Négociable |
| Loyer | Sur demande |
| Type de bien | Industriel/Logistique |
| Aménagement | - |
| Disponible | Maintenant |
Unit 8 offers a similar configuration to Unit 7, with the option to combine for expanded space. Can be combined with Unit 7 or Unit 10 for larger requirements.
- Peut être associé à un ou plusieurs espaces supplémentaires pour obtenir jusqu’à 1 188 m² d’espace adjacent.
- Call listing brokers for more information
335 Convention Way - 2e étage – 10
| Surface | 863 m² |
| Durée | Négociable |
| Loyer | Sur demande |
| Type de bien | Industriel/Logistique |
| Aménagement | Construction partielle |
| Disponible | Maintenant |
A substantial second-floor suite, perfect for those needing extensive open-plan space. Can be combined with Units 7 and 8 for a total of ±12,788 SF.
- Peut être associé à un ou plusieurs espaces supplémentaires pour obtenir jusqu’à 1 188 m² d’espace adjacent.
- Call listing brokers for more information
260 Main St - 2e étage – Bureau 18
| Surface | 175 m² |
| Durée | Négociable |
| Loyer | Sur demande |
| Type de bien | Bureau |
| Aménagement | - |
| Disponible | Maintenant |
1,882 SF of Industrial/Office space available for lease
- Convient pour 5 à 16 personnes
- Call listing brokers for more information
260 Main St - 2e étage – Bureau 19
| Surface | 238 m² |
| Durée | Négociable |
| Loyer | Sur demande |
| Type de bien | Bureau |
| Aménagement | - |
| Disponible | Maintenant |
Located on the second floor, this suite provides a generous open area suitable for collaborative work or flexible office configurations.
- Convient pour 7 à 21 personnes
- Bureaux cloisonnés
- Call listing brokers for more information
Sélectionner des occupants à ce bien
- Étage
- Nom de l’occupant
- Secteur d’activité
- 1er
- Ams Systems Inc
- Manufacture
- 1er
- California Consumer Lending
- Finance et assurances
- 2e
- Insurance By Castle
- Finance et assurances
- 2e
- Neo Horn
- Services professionnels, scientifiques et techniques
- 1er
- Open Canopy
- -
- 2e
- Peninsula Rsi Chiropractic Wellness Center
- Enseigne
- 1er
- Private Lender Link
- -
- 1er
- San Mateo County Firefighters IAFF Local 2400
- Administration publique
- 1er
- Studebaker's West
- Enseigne
- 2e
- Sumologic Inc.
- -
Vue d’ensemble du parc
Brugger Plaza offers a selection of industrial and office condos for lease in Redwood City, CA, located at 200 & 260 Main Street and 335 & 345 Convention Way. The property is surrounded by a vibrant mix of amenities, including restaurants, retail, and automotive services, making it an ideal location for businesses seeking convenience and accessibility.
Présenté par
Brugger Plaza | Redwood City, CA 94063
Hum, une erreur s’est produite lors de l’envoi de votre message. Veuillez réessayer.
Merci ! Votre message a été envoyé.














