Votre e-mail a été envoyé.
Suites 201 & 301 333 N Oxford Valley Rd Bureaux/Médical | 168–721 m² | À louer | Fairless Hills, PA 19030



Certaines informations ont été traduites automatiquement.
Informations principales
- Medical office condominium - 7,766 RSF± (divisible)
- Close proximity to several major medical systems
- Minutes to SEPTA Woodbourne train station and Yardley train station
- Highly accessible location
- Proximity to densely populated residential and trade areas
- Convenient access to US-1, US-1 Business, I-95, I-295 and PA / NJ Turnpikes
Tous les espaces disponibles(2)
Afficher les loyers en
- Espace
- Surface
- Durée
- Loyer
- Type de bien
- Aménagement
- Disponible
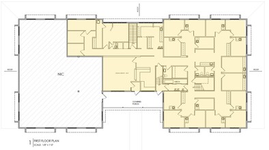
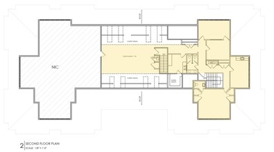
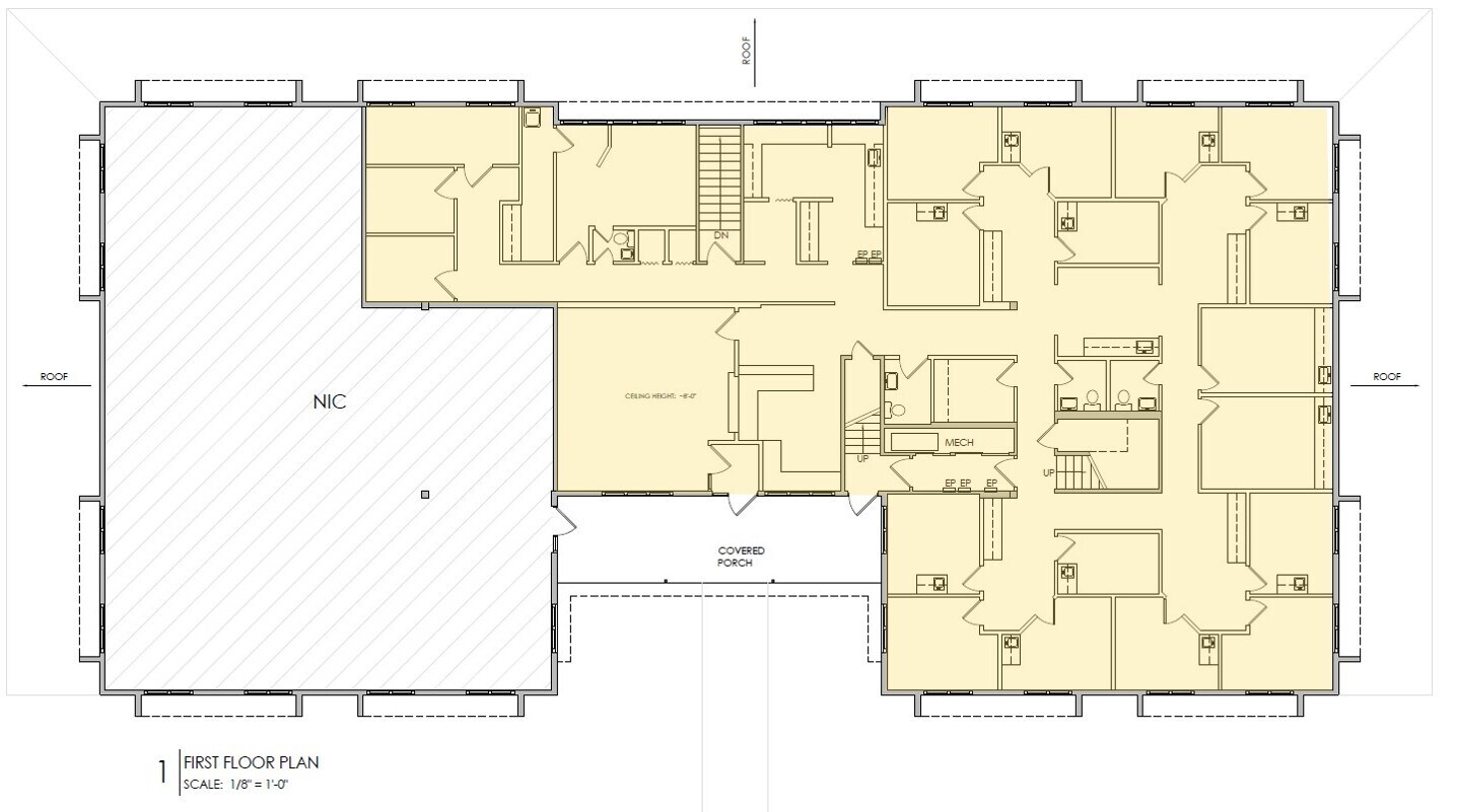
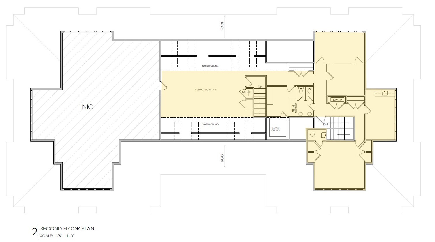
SVN is pleased to present an exceptional opportunity to lease a prime, turnkey medical space featuring 5,961 SF± on the first floor with a premium medical build-out, including generous waiting room, reception room, 14+ exam rooms, nursing stations, consultation rooms and lab areas. The second floor adds 1,805 SF± of flexible office/administrative space. The premises are ADA-accessible, offer ample on-site parking, and provide convenient access to public transportation in an amenity-rich location. Close proximity to the area’s major commuter routes. Ideal for medical, wellness, or other professional users seeking efficiency, visibility, and convenience.
- Il est possible que le loyer annoncé ne comprenne pas certains services publics, services d’immeuble et frais immobiliers.
- Peut être associé à un ou plusieurs espaces supplémentaires pour obtenir jusqu’à 721 m² d’espace adjacent.
- Entièrement aménagé comme Cabinet médical standard
SVN is pleased to present an exceptional opportunity to lease a prime, turnkey medical space featuring 5,961 SF± on the first floor with a premium medical build-out, including generous waiting room, reception room, 14+ exam rooms, nursing stations, consultation rooms and lab areas. The second floor adds 1,805 SF± of flexible office/administrative space. The premises are ADA-accessible, offer ample on-site parking, and provide convenient access to public transportation in an amenity-rich location. Close proximity to the area’s major commuter routes. Ideal for medical, wellness, or other professional users seeking efficiency, visibility, and convenience.
- Il est possible que le loyer annoncé ne comprenne pas certains services publics, services d’immeuble et frais immobiliers.
- Peut être associé à un ou plusieurs espaces supplémentaires pour obtenir jusqu’à 721 m² d’espace adjacent.
- Entièrement aménagé comme Cabinet médical standard
| Espace | Surface | Durée | Loyer | Type de bien | Aménagement | Disponible |
| 1er étage, bureau 201 | 554 m² | Négociable | 179,02 € /m²/an 14,92 € /m²/mois 99 141 € /an 8 262 € /mois | Bureaux/Médical | Construction achevée | Maintenant |
| 2e étage, bureau 301 | 168 m² | Négociable | 179,02 € /m²/an 14,92 € /m²/mois 30 020 € /an 2 502 € /mois | Bureaux/Médical | Construction achevée | Maintenant |
1er étage, bureau 201
| Surface |
| 554 m² |
| Durée |
| Négociable |
| Loyer |
| 179,02 € /m²/an 14,92 € /m²/mois 99 141 € /an 8 262 € /mois |
| Type de bien |
| Bureaux/Médical |
| Aménagement |
| Construction achevée |
| Disponible |
| Maintenant |
2e étage, bureau 301
| Surface |
| 168 m² |
| Durée |
| Négociable |
| Loyer |
| 179,02 € /m²/an 14,92 € /m²/mois 30 020 € /an 2 502 € /mois |
| Type de bien |
| Bureaux/Médical |
| Aménagement |
| Construction achevée |
| Disponible |
| Maintenant |
1er étage, bureau 201
| Surface | 554 m² |
| Durée | Négociable |
| Loyer | 179,02 € /m²/an |
| Type de bien | Bureaux/Médical |
| Aménagement | Construction achevée |
| Disponible | Maintenant |
SVN is pleased to present an exceptional opportunity to lease a prime, turnkey medical space featuring 5,961 SF± on the first floor with a premium medical build-out, including generous waiting room, reception room, 14+ exam rooms, nursing stations, consultation rooms and lab areas. The second floor adds 1,805 SF± of flexible office/administrative space. The premises are ADA-accessible, offer ample on-site parking, and provide convenient access to public transportation in an amenity-rich location. Close proximity to the area’s major commuter routes. Ideal for medical, wellness, or other professional users seeking efficiency, visibility, and convenience.
- Il est possible que le loyer annoncé ne comprenne pas certains services publics, services d’immeuble et frais immobiliers.
- Entièrement aménagé comme Cabinet médical standard
- Peut être associé à un ou plusieurs espaces supplémentaires pour obtenir jusqu’à 721 m² d’espace adjacent.
2e étage, bureau 301
| Surface | 168 m² |
| Durée | Négociable |
| Loyer | 179,02 € /m²/an |
| Type de bien | Bureaux/Médical |
| Aménagement | Construction achevée |
| Disponible | Maintenant |
SVN is pleased to present an exceptional opportunity to lease a prime, turnkey medical space featuring 5,961 SF± on the first floor with a premium medical build-out, including generous waiting room, reception room, 14+ exam rooms, nursing stations, consultation rooms and lab areas. The second floor adds 1,805 SF± of flexible office/administrative space. The premises are ADA-accessible, offer ample on-site parking, and provide convenient access to public transportation in an amenity-rich location. Close proximity to the area’s major commuter routes. Ideal for medical, wellness, or other professional users seeking efficiency, visibility, and convenience.
- Il est possible que le loyer annoncé ne comprenne pas certains services publics, services d’immeuble et frais immobiliers.
- Entièrement aménagé comme Cabinet médical standard
- Peut être associé à un ou plusieurs espaces supplémentaires pour obtenir jusqu’à 721 m² d’espace adjacent.
Aperçu du bien
SVN is pleased to present an exceptional opportunity to lease a prime, turnkey medical space featuring 5,961 SF± on the first floor with a premium medical build-out, including generous waiting room, reception room, 14+ exam rooms, nursing stations, consultation rooms and lab areas. The second floor adds 1,805 SF± of flexible office/administrative space. The premises are ADA-accessible, offer ample on-site parking, and provide convenient access to public transportation in an amenity-rich location. Close proximity to the area’s major commuter routes. Ideal for medical, wellness, or other professional users seeking efficiency, visibility, and convenience. The site is centrally situated in immediate proximity to/from the area’s major intersection of Lincoln Highway and Oxford Valley Rd which provides direct connection to Rt. 1, I-95, Rt. 413, PA and PA Turnpike. The site is in proximity to Oxford Valley Mall, Sesame Place, Aria-Jefferson Health regional hospital, numerous hotels, national chain restaurants and retailers. Centrally located between Philadelphia, Princeton and New Jersey markets.
Informations sur l’immeuble
Occupants
- Étage
- Nom de l’occupant
- Secteur d’activité
- 1er
- Bensalem Podiatry
- Santé et assistance sociale
- 1er
- Bonner Sports & Physical Medicine P.C.
- Santé et assistance sociale
- 2e
- Fairless Hills Medical Practice
- Santé et assistance sociale
- 2e
- Fairless Hills Psychological Associates
- Santé et assistance sociale
- 1er
- Makefield Dental Associates Llc
- Santé et assistance sociale
- 1er
- Net-Work Health Group, Inc., The
- Santé et assistance sociale
- 1er
- Oxford Crossing Family and Cosmetic Dentistry-Dr M
- Santé et assistance sociale
- 1er
- Premier Personal Care Inc
- Santé et assistance sociale
- 2e
- Richard T Suro & Associates Inc
- Finance et assurances
Présenté par
Suites 201 & 301 | 333 N Oxford Valley Rd
Hum, une erreur s’est produite lors de l’envoi de votre message. Veuillez réessayer.
Merci ! Votre message a été envoyé.





