Connectez-vous/S’inscrire
Votre e-mail a été envoyé.
Monarch Dairy Building 331 H St Industriel/Logistique 408 m² 100 % Loué À vendre Salida, CO 81201 673 056 € (1 648,78 €/m²) Taux de capitalisation 7,20 %



Certaines informations ont été traduites automatiquement.
INFORMATIONS PRINCIPALES SUR L'INVESTISSEMENT
- Foot traffic
- Open work spaces
- Retail/Office Spaces
RÉSUMÉ ANALYTIQUE
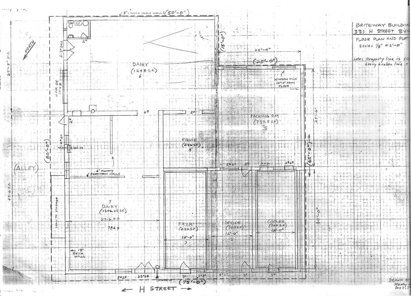
Downtown Salida multi-use commercial with flexible workspaces and expansion potential. The property delivers a practical mix of 4 private offices, 3 light-industrial/shop bays, storage, and a garage, making it ideal for small manufacturers, fabricators, design/build studios, or service trades that want a Main-Street address with true back-of-house function.
Situated on a ~0.13-acre lot (~5,663 SF) in the heart of Salida’s walkable core, the site offers convenient access for customers and vendors alike and the ability to reconfigure interiors to suit single or multi-tenant needs. Future vertical expansion is a compelling upside: Downtown Salida standards commonly contemplate buildings up to ~3 stories, positioning this address as both a turnkey operator space today and a bite-sized infill development tomorrow.
Owner carry is an option depending on terms.
Property Highlights
• C-2 Zoning, C-1 Zoning uses by Right. All retail and service commercial uses permitted in the C-1 District.
• Use mix: 4 offices + 3 shop/industrial bays + storage + garage (great for retail, fabrication, light assembly, or trades)
• Lot size: ~0.13 AC / ~5,663 SF (per public record)
• Downtown location: walkable to Salida’s retail/food/riverfront amenities
• Small-manufacturer ready: drive-in access with practical back-of-house layout
• Value-add path: interior re-tenanting, light modernization, or vertical addition
• 3-Phase power.
Situated on a ~0.13-acre lot (~5,663 SF) in the heart of Salida’s walkable core, the site offers convenient access for customers and vendors alike and the ability to reconfigure interiors to suit single or multi-tenant needs. Future vertical expansion is a compelling upside: Downtown Salida standards commonly contemplate buildings up to ~3 stories, positioning this address as both a turnkey operator space today and a bite-sized infill development tomorrow.
Owner carry is an option depending on terms.
Property Highlights
• C-2 Zoning, C-1 Zoning uses by Right. All retail and service commercial uses permitted in the C-1 District.
• Use mix: 4 offices + 3 shop/industrial bays + storage + garage (great for retail, fabrication, light assembly, or trades)
• Lot size: ~0.13 AC / ~5,663 SF (per public record)
• Downtown location: walkable to Salida’s retail/food/riverfront amenities
• Small-manufacturer ready: drive-in access with practical back-of-house layout
• Value-add path: interior re-tenanting, light modernization, or vertical addition
• 3-Phase power.
INFORMATIONS SUR L’IMMEUBLE
SERVICES PUBLICS
- Gaz - Naturel
- Eau - Ville
- Égout - Ville
- Chauffage - Gaz
1 1
Walk Score®
Très praticable à pied (84)
Bike Score®
Un paradis pour les cyclistes (93)
1 sur 4
VIDÉOS
VISITE EXTÉRIEURE 3D MATTERPORT
VISITE 3D
PHOTOS
STREET VIEW
RUE
CARTE
1 sur 1
Présenté par
331 H Street LLC
Monarch Dairy Building | 331 H St
Vous êtes déjà membre ? Connectez-vous
Hum, une erreur s’est produite lors de l’envoi de votre message. Veuillez réessayer.
Merci ! Votre message a été envoyé.
