Votre e-mail a été envoyé.
Certaines informations ont été traduites automatiquement.
Afficher les loyers en
- Espace
- Surface
- Durée
- Loyer
- Type de bien
- Aménagement
- Disponible
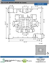
Rare full floor available, 2 large corner bubble offices or conference rooms, 3 additional window offices, 10 interior offices/work/file rooms, kitchen area, very large open area suitable for many additional window offices and/or workstations.
- Le loyer comprend les services publics, les services de l’immeuble et les frais immobiliers.
- Principalement open space
- 2 salles de conférence
- Espace en excellent état
- Climatisation centrale
- Open space
- Entièrement aménagé comme Bureau de services professionnels
- 10 bureaux privés
- 100 postes de travail
- Peut être associé à un ou plusieurs espaces supplémentaires pour obtenir jusqu’à 2 994 m² d’espace adjacent.
- Cuisine
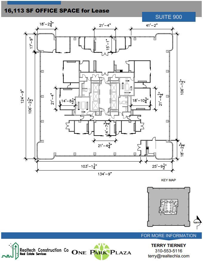
full floor available, large corner bubble office or conference room, 3 additional window offices, conference room, 8 interior offices/work/file rooms, kitchen/lounge, very large open area suitable for many additional window offices and/or work stations
- Le loyer comprend les services publics, les services de l’immeuble et les frais immobiliers.
- Principalement open space
- Peut être associé à un ou plusieurs espaces supplémentaires pour obtenir jusqu’à 2 994 m² d’espace adjacent.
- Partiellement aménagé comme Bureau standard
- Espace en excellent état
Waiting area, receptionist, 4 window offices, 1 large open area/conference room, 1 interior room, kitchen/file room, open area suitable for additional offices or workstations.
- Le loyer comprend les services publics, les services de l’immeuble et les frais immobiliers.
- Principalement open space
- 1 salle de conférence
- Climatisation centrale
- Cuisine
- Entièrement aménagé comme Bureau standard
- 4 bureaux privés
- 20 postes de travail
- Aire de réception
waiting area, business office area, 3 window offices, large corner bubble office or conference room, interior room, storage
- Le loyer comprend les services publics, les services de l’immeuble et les frais immobiliers.
- 4 bureaux privés
- 4 postes de travail
- Entièrement aménagé comme Bureau de services professionnels
- 1 salle de conférence
- Entreposage sécurisé
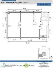
Mostly open space, 3 window offices, kitchen area
- Le loyer comprend les services publics, les services de l’immeuble et les frais immobiliers.
- Principalement open space
- 1 salle de conférence
- Entièrement aménagé comme Bureau standard
- 3 bureaux privés
waiting area, 5 window offices, large corner bubble office or conference room, 3 interior office/rooms
- Le loyer comprend les services publics, les services de l’immeuble et les frais immobiliers.
- 8 bureaux privés
- 3 postes de travail
- Espace d’angle
- Entièrement aménagé comme Bureau standard
- 1 salle de conférence
- Climatisation centrale
- Le loyer comprend les services publics, les services de l’immeuble et les frais immobiliers.
- Entièrement aménagé comme Bureau standard
waiting area, reception, 18 window offices, 2-3 conference rooms, 30 cubicles, large kitchen lounge area, storage, and file room
- Le loyer comprend les services publics, les services de l’immeuble et les frais immobiliers.
- 18 bureaux privés
- 30 postes de travail
- Entreposage sécurisé
- Entièrement aménagé comme Bureau de services professionnels
- 2 salles de conférence
- Aire de réception
- Lumière naturelle
Waiting area, reception/business area, open space, 2 window offices, kitchen
- Le loyer comprend les services publics, les services de l’immeuble et les frais immobiliers.
- Principalement open space
- Climatisation centrale
- Cuisine
- Partiellement aménagé comme Centre d’appels
- 10 postes de travail
- Aire de réception
- Open space
- Le loyer comprend les services publics, les services de l’immeuble et les frais immobiliers.
- 2 bureaux privés
- Entièrement aménagé comme Bureau standard
- 2 postes de travail
| Espace | Surface | Durée | Loyer | Type de bien | Aménagement | Disponible |
| 8e étage, bureau 800 | 490 – 1 497 m² | 5-10 Ans | 259,79 € /m²/an 21,65 € /m²/mois 388 992 € /an 32 416 € /mois | Bureau | Construction achevée | Maintenant |
| 9e étage, bureau 900 | 1 497 m² | 5-10 Ans | 259,79 € /m²/an 21,65 € /m²/mois 388 896 € /an 32 408 € /mois | Bureau | Construction partielle | Maintenant |
| 10e étage, bureau 1009 | 67 – 324 m² | 5-10 Ans | 259,79 € /m²/an 21,65 € /m²/mois 84 161 € /an 7 013 € /mois | Bureau | Construction achevée | Maintenant |
| 11e étage, bureau 1107 | 206 m² | 5-10 Ans | 259,79 € /m²/an 21,65 € /m²/mois 53 508 € /an 4 459 € /mois | Bureau | Construction achevée | Maintenant |
| 14e étage, bureau 1404 | 186 – 395 m² | 5-10 Ans | 265,32 € /m²/an 22,11 € /m²/mois 104 758 € /an 8 730 € /mois | Bureau | Construction achevée | Maintenant |
| 16e étage, bureau 1615 | 230 m² | 5-10 Ans | 270,85 € /m²/an 22,57 € /m²/mois 62 177 € /an 5 181 € /mois | Bureau | Construction achevée | Maintenant |
| 17e étage, bureau 1700 | 186 – 348 m² | 5-10 Ans | 270,85 € /m²/an 22,57 € /m²/mois 94 360 € /an 7 863 € /mois | Bureau | Construction achevée | Maintenant |
| 18e étage, bureau 1800 | 1 093 m² | 5-10 Ans | 270,85 € /m²/an 22,57 € /m²/mois 295 937 € /an 24 661 € /mois | Bureau | Construction achevée | Maintenant |
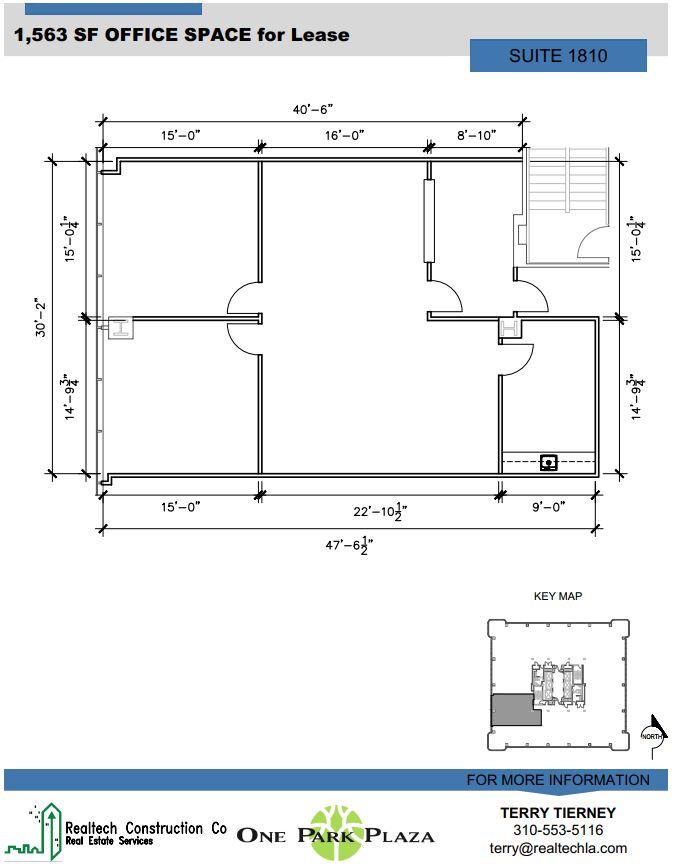
| 18e étage, bureau 1810 | 145 m² | 3-10 Ans | 270,85 € /m²/an 22,57 € /m²/mois 39 329 € /an 3 277 € /mois | Bureau | Construction partielle | Maintenant |
| 20e étage, bureau 2002 | 98 m² | 3-5 Ans | 276,38 € /m²/an 23,03 € /m²/mois 27 165 € /an 2 264 € /mois | Bureau | Construction achevée | Maintenant |
8e étage, bureau 800
| Surface |
| 490 – 1 497 m² |
| Durée |
| 5-10 Ans |
| Loyer |
| 259,79 € /m²/an 21,65 € /m²/mois 388 992 € /an 32 416 € /mois |
| Type de bien |
| Bureau |
| Aménagement |
| Construction achevée |
| Disponible |
| Maintenant |
9e étage, bureau 900
| Surface |
| 1 497 m² |
| Durée |
| 5-10 Ans |
| Loyer |
| 259,79 € /m²/an 21,65 € /m²/mois 388 896 € /an 32 408 € /mois |
| Type de bien |
| Bureau |
| Aménagement |
| Construction partielle |
| Disponible |
| Maintenant |
10e étage, bureau 1009
| Surface |
| 67 – 324 m² |
| Durée |
| 5-10 Ans |
| Loyer |
| 259,79 € /m²/an 21,65 € /m²/mois 84 161 € /an 7 013 € /mois |
| Type de bien |
| Bureau |
| Aménagement |
| Construction achevée |
| Disponible |
| Maintenant |
11e étage, bureau 1107
| Surface |
| 206 m² |
| Durée |
| 5-10 Ans |
| Loyer |
| 259,79 € /m²/an 21,65 € /m²/mois 53 508 € /an 4 459 € /mois |
| Type de bien |
| Bureau |
| Aménagement |
| Construction achevée |
| Disponible |
| Maintenant |
14e étage, bureau 1404
| Surface |
| 186 – 395 m² |
| Durée |
| 5-10 Ans |
| Loyer |
| 265,32 € /m²/an 22,11 € /m²/mois 104 758 € /an 8 730 € /mois |
| Type de bien |
| Bureau |
| Aménagement |
| Construction achevée |
| Disponible |
| Maintenant |
16e étage, bureau 1615
| Surface |
| 230 m² |
| Durée |
| 5-10 Ans |
| Loyer |
| 270,85 € /m²/an 22,57 € /m²/mois 62 177 € /an 5 181 € /mois |
| Type de bien |
| Bureau |
| Aménagement |
| Construction achevée |
| Disponible |
| Maintenant |
17e étage, bureau 1700
| Surface |
| 186 – 348 m² |
| Durée |
| 5-10 Ans |
| Loyer |
| 270,85 € /m²/an 22,57 € /m²/mois 94 360 € /an 7 863 € /mois |
| Type de bien |
| Bureau |
| Aménagement |
| Construction achevée |
| Disponible |
| Maintenant |
18e étage, bureau 1800
| Surface |
| 1 093 m² |
| Durée |
| 5-10 Ans |
| Loyer |
| 270,85 € /m²/an 22,57 € /m²/mois 295 937 € /an 24 661 € /mois |
| Type de bien |
| Bureau |
| Aménagement |
| Construction achevée |
| Disponible |
| Maintenant |
18e étage, bureau 1810
| Surface |
| 145 m² |
| Durée |
| 3-10 Ans |
| Loyer |
| 270,85 € /m²/an 22,57 € /m²/mois 39 329 € /an 3 277 € /mois |
| Type de bien |
| Bureau |
| Aménagement |
| Construction partielle |
| Disponible |
| Maintenant |
20e étage, bureau 2002
| Surface |
| 98 m² |
| Durée |
| 3-5 Ans |
| Loyer |
| 276,38 € /m²/an 23,03 € /m²/mois 27 165 € /an 2 264 € /mois |
| Type de bien |
| Bureau |
| Aménagement |
| Construction achevée |
| Disponible |
| Maintenant |
- Espace
- Surface
- Durée
- Loyer
- Type de bien
- Aménagement
- Disponible
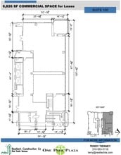
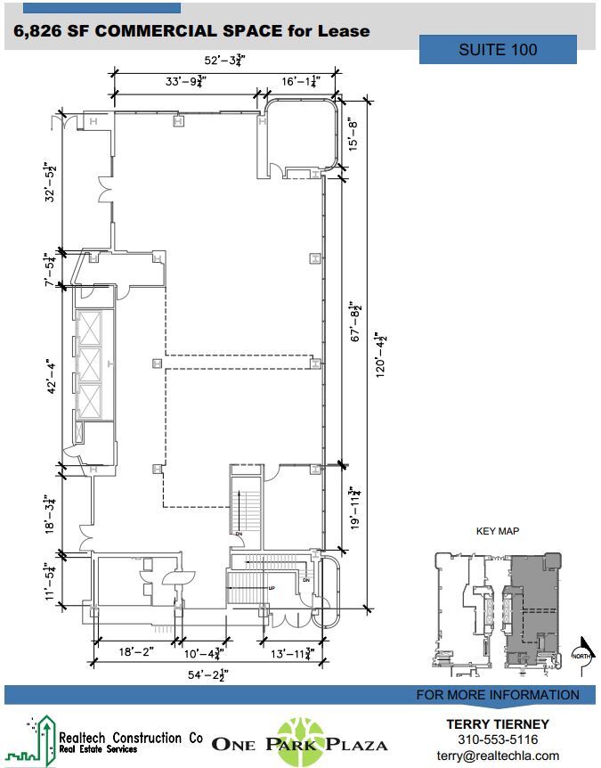
Ground floor retail space along Wilshire and New Hampshire Blvd, basically open space with high, cathedral type ceilings...divisible.
- Le loyer ne comprend pas les services publics, les frais immobiliers ou les services de l’immeuble.
- Espace nécessitant des rénovations
- Hauts plafonds
- Contigu et aligné avec d’autres locaux commerciaux
- Climatisation centrale
Rare full floor available, 2 large corner bubble offices or conference rooms, 3 additional window offices, 10 interior offices/work/file rooms, kitchen area, very large open area suitable for many additional window offices and/or workstations.
- Le loyer comprend les services publics, les services de l’immeuble et les frais immobiliers.
- Principalement open space
- 2 salles de conférence
- Espace en excellent état
- Climatisation centrale
- Open space
- Entièrement aménagé comme Bureau de services professionnels
- 10 bureaux privés
- 100 postes de travail
- Peut être associé à un ou plusieurs espaces supplémentaires pour obtenir jusqu’à 2 994 m² d’espace adjacent.
- Cuisine
full floor available, large corner bubble office or conference room, 3 additional window offices, conference room, 8 interior offices/work/file rooms, kitchen/lounge, very large open area suitable for many additional window offices and/or work stations
- Le loyer comprend les services publics, les services de l’immeuble et les frais immobiliers.
- Principalement open space
- Peut être associé à un ou plusieurs espaces supplémentaires pour obtenir jusqu’à 2 994 m² d’espace adjacent.
- Partiellement aménagé comme Bureau standard
- Espace en excellent état
Waiting area, receptionist, 4 window offices, 1 large open area/conference room, 1 interior room, kitchen/file room, open area suitable for additional offices or workstations.
- Le loyer comprend les services publics, les services de l’immeuble et les frais immobiliers.
- Principalement open space
- 1 salle de conférence
- Climatisation centrale
- Cuisine
- Entièrement aménagé comme Bureau standard
- 4 bureaux privés
- 20 postes de travail
- Aire de réception
waiting area, business office area, 3 window offices, large corner bubble office or conference room, interior room, storage
- Le loyer comprend les services publics, les services de l’immeuble et les frais immobiliers.
- 4 bureaux privés
- 4 postes de travail
- Entièrement aménagé comme Bureau de services professionnels
- 1 salle de conférence
- Entreposage sécurisé
Mostly open space, 3 window offices, kitchen area
- Le loyer comprend les services publics, les services de l’immeuble et les frais immobiliers.
- Principalement open space
- 1 salle de conférence
- Entièrement aménagé comme Bureau standard
- 3 bureaux privés
waiting area, 5 window offices, large corner bubble office or conference room, 3 interior office/rooms
- Le loyer comprend les services publics, les services de l’immeuble et les frais immobiliers.
- 8 bureaux privés
- 3 postes de travail
- Espace d’angle
- Entièrement aménagé comme Bureau standard
- 1 salle de conférence
- Climatisation centrale
- Le loyer comprend les services publics, les services de l’immeuble et les frais immobiliers.
- Entièrement aménagé comme Bureau standard
waiting area, reception, 18 window offices, 2-3 conference rooms, 30 cubicles, large kitchen lounge area, storage, and file room
- Le loyer comprend les services publics, les services de l’immeuble et les frais immobiliers.
- 18 bureaux privés
- 30 postes de travail
- Entreposage sécurisé
- Entièrement aménagé comme Bureau de services professionnels
- 2 salles de conférence
- Aire de réception
- Lumière naturelle
Waiting area, reception/business area, open space, 2 window offices, kitchen
- Le loyer comprend les services publics, les services de l’immeuble et les frais immobiliers.
- Principalement open space
- Climatisation centrale
- Cuisine
- Partiellement aménagé comme Centre d’appels
- 10 postes de travail
- Aire de réception
- Open space
- Le loyer comprend les services publics, les services de l’immeuble et les frais immobiliers.
- 2 bureaux privés
- Entièrement aménagé comme Bureau standard
- 2 postes de travail
| Espace | Surface | Durée | Loyer | Type de bien | Aménagement | Disponible |
| 1er étage, bureau 100 | 279 – 634 m² | Négociable | 386,93 € /m²/an 32,24 € /m²/mois 245 371 € /an 20 448 € /mois | Local commercial | Espace brut | Maintenant |
| 8e étage, bureau 800 | 490 – 1 497 m² | 5-10 Ans | 259,79 € /m²/an 21,65 € /m²/mois 388 992 € /an 32 416 € /mois | Bureau | Construction achevée | Maintenant |
| 9e étage, bureau 900 | 1 497 m² | 5-10 Ans | 259,79 € /m²/an 21,65 € /m²/mois 388 896 € /an 32 408 € /mois | Bureau | Construction partielle | Maintenant |
| 10e étage, bureau 1009 | 67 – 324 m² | 5-10 Ans | 259,79 € /m²/an 21,65 € /m²/mois 84 161 € /an 7 013 € /mois | Bureau | Construction achevée | Maintenant |
| 11e étage, bureau 1107 | 206 m² | 5-10 Ans | 259,79 € /m²/an 21,65 € /m²/mois 53 508 € /an 4 459 € /mois | Bureau | Construction achevée | Maintenant |
| 14e étage, bureau 1404 | 186 – 395 m² | 5-10 Ans | 265,32 € /m²/an 22,11 € /m²/mois 104 758 € /an 8 730 € /mois | Bureau | Construction achevée | Maintenant |
| 16e étage, bureau 1615 | 230 m² | 5-10 Ans | 270,85 € /m²/an 22,57 € /m²/mois 62 177 € /an 5 181 € /mois | Bureau | Construction achevée | Maintenant |
| 17e étage, bureau 1700 | 186 – 348 m² | 5-10 Ans | 270,85 € /m²/an 22,57 € /m²/mois 94 360 € /an 7 863 € /mois | Bureau | Construction achevée | Maintenant |
| 18e étage, bureau 1800 | 1 093 m² | 5-10 Ans | 270,85 € /m²/an 22,57 € /m²/mois 295 937 € /an 24 661 € /mois | Bureau | Construction achevée | Maintenant |
| 18e étage, bureau 1810 | 145 m² | 3-10 Ans | 270,85 € /m²/an 22,57 € /m²/mois 39 329 € /an 3 277 € /mois | Bureau | Construction partielle | Maintenant |
| 20e étage, bureau 2002 | 98 m² | 3-5 Ans | 276,38 € /m²/an 23,03 € /m²/mois 27 165 € /an 2 264 € /mois | Bureau | Construction achevée | Maintenant |
1er étage, bureau 100
| Surface |
| 279 – 634 m² |
| Durée |
| Négociable |
| Loyer |
| 386,93 € /m²/an 32,24 € /m²/mois 245 371 € /an 20 448 € /mois |
| Type de bien |
| Local commercial |
| Aménagement |
| Espace brut |
| Disponible |
| Maintenant |
8e étage, bureau 800
| Surface |
| 490 – 1 497 m² |
| Durée |
| 5-10 Ans |
| Loyer |
| 259,79 € /m²/an 21,65 € /m²/mois 388 992 € /an 32 416 € /mois |
| Type de bien |
| Bureau |
| Aménagement |
| Construction achevée |
| Disponible |
| Maintenant |
9e étage, bureau 900
| Surface |
| 1 497 m² |
| Durée |
| 5-10 Ans |
| Loyer |
| 259,79 € /m²/an 21,65 € /m²/mois 388 896 € /an 32 408 € /mois |
| Type de bien |
| Bureau |
| Aménagement |
| Construction partielle |
| Disponible |
| Maintenant |
10e étage, bureau 1009
| Surface |
| 67 – 324 m² |
| Durée |
| 5-10 Ans |
| Loyer |
| 259,79 € /m²/an 21,65 € /m²/mois 84 161 € /an 7 013 € /mois |
| Type de bien |
| Bureau |
| Aménagement |
| Construction achevée |
| Disponible |
| Maintenant |
11e étage, bureau 1107
| Surface |
| 206 m² |
| Durée |
| 5-10 Ans |
| Loyer |
| 259,79 € /m²/an 21,65 € /m²/mois 53 508 € /an 4 459 € /mois |
| Type de bien |
| Bureau |
| Aménagement |
| Construction achevée |
| Disponible |
| Maintenant |
14e étage, bureau 1404
| Surface |
| 186 – 395 m² |
| Durée |
| 5-10 Ans |
| Loyer |
| 265,32 € /m²/an 22,11 € /m²/mois 104 758 € /an 8 730 € /mois |
| Type de bien |
| Bureau |
| Aménagement |
| Construction achevée |
| Disponible |
| Maintenant |
16e étage, bureau 1615
| Surface |
| 230 m² |
| Durée |
| 5-10 Ans |
| Loyer |
| 270,85 € /m²/an 22,57 € /m²/mois 62 177 € /an 5 181 € /mois |
| Type de bien |
| Bureau |
| Aménagement |
| Construction achevée |
| Disponible |
| Maintenant |
17e étage, bureau 1700
| Surface |
| 186 – 348 m² |
| Durée |
| 5-10 Ans |
| Loyer |
| 270,85 € /m²/an 22,57 € /m²/mois 94 360 € /an 7 863 € /mois |
| Type de bien |
| Bureau |
| Aménagement |
| Construction achevée |
| Disponible |
| Maintenant |
18e étage, bureau 1800
| Surface |
| 1 093 m² |
| Durée |
| 5-10 Ans |
| Loyer |
| 270,85 € /m²/an 22,57 € /m²/mois 295 937 € /an 24 661 € /mois |
| Type de bien |
| Bureau |
| Aménagement |
| Construction achevée |
| Disponible |
| Maintenant |
18e étage, bureau 1810
| Surface |
| 145 m² |
| Durée |
| 3-10 Ans |
| Loyer |
| 270,85 € /m²/an 22,57 € /m²/mois 39 329 € /an 3 277 € /mois |
| Type de bien |
| Bureau |
| Aménagement |
| Construction partielle |
| Disponible |
| Maintenant |
20e étage, bureau 2002
| Surface |
| 98 m² |
| Durée |
| 3-5 Ans |
| Loyer |
| 276,38 € /m²/an 23,03 € /m²/mois 27 165 € /an 2 264 € /mois |
| Type de bien |
| Bureau |
| Aménagement |
| Construction achevée |
| Disponible |
| Maintenant |
1er étage, bureau 100
| Surface | 279 – 634 m² |
| Durée | Négociable |
| Loyer | 386,93 € /m²/an |
| Type de bien | Local commercial |
| Aménagement | Espace brut |
| Disponible | Maintenant |
Ground floor retail space along Wilshire and New Hampshire Blvd, basically open space with high, cathedral type ceilings...divisible.
- Le loyer ne comprend pas les services publics, les frais immobiliers ou les services de l’immeuble.
- Contigu et aligné avec d’autres locaux commerciaux
- Espace nécessitant des rénovations
- Climatisation centrale
- Hauts plafonds
8e étage, bureau 800
| Surface | 490 – 1 497 m² |
| Durée | 5-10 Ans |
| Loyer | 259,79 € /m²/an |
| Type de bien | Bureau |
| Aménagement | Construction achevée |
| Disponible | Maintenant |
Rare full floor available, 2 large corner bubble offices or conference rooms, 3 additional window offices, 10 interior offices/work/file rooms, kitchen area, very large open area suitable for many additional window offices and/or workstations.
- Le loyer comprend les services publics, les services de l’immeuble et les frais immobiliers.
- Entièrement aménagé comme Bureau de services professionnels
- Principalement open space
- 10 bureaux privés
- 2 salles de conférence
- 100 postes de travail
- Espace en excellent état
- Peut être associé à un ou plusieurs espaces supplémentaires pour obtenir jusqu’à 2 994 m² d’espace adjacent.
- Climatisation centrale
- Cuisine
- Open space
9e étage, bureau 900
| Surface | 1 497 m² |
| Durée | 5-10 Ans |
| Loyer | 259,79 € /m²/an |
| Type de bien | Bureau |
| Aménagement | Construction partielle |
| Disponible | Maintenant |
full floor available, large corner bubble office or conference room, 3 additional window offices, conference room, 8 interior offices/work/file rooms, kitchen/lounge, very large open area suitable for many additional window offices and/or work stations
- Le loyer comprend les services publics, les services de l’immeuble et les frais immobiliers.
- Partiellement aménagé comme Bureau standard
- Principalement open space
- Espace en excellent état
- Peut être associé à un ou plusieurs espaces supplémentaires pour obtenir jusqu’à 2 994 m² d’espace adjacent.
10e étage, bureau 1009
| Surface | 67 – 324 m² |
| Durée | 5-10 Ans |
| Loyer | 259,79 € /m²/an |
| Type de bien | Bureau |
| Aménagement | Construction achevée |
| Disponible | Maintenant |
Waiting area, receptionist, 4 window offices, 1 large open area/conference room, 1 interior room, kitchen/file room, open area suitable for additional offices or workstations.
- Le loyer comprend les services publics, les services de l’immeuble et les frais immobiliers.
- Entièrement aménagé comme Bureau standard
- Principalement open space
- 4 bureaux privés
- 1 salle de conférence
- 20 postes de travail
- Climatisation centrale
- Aire de réception
- Cuisine
11e étage, bureau 1107
| Surface | 206 m² |
| Durée | 5-10 Ans |
| Loyer | 259,79 € /m²/an |
| Type de bien | Bureau |
| Aménagement | Construction achevée |
| Disponible | Maintenant |
waiting area, business office area, 3 window offices, large corner bubble office or conference room, interior room, storage
- Le loyer comprend les services publics, les services de l’immeuble et les frais immobiliers.
- Entièrement aménagé comme Bureau de services professionnels
- 4 bureaux privés
- 1 salle de conférence
- 4 postes de travail
- Entreposage sécurisé
14e étage, bureau 1404
| Surface | 186 – 395 m² |
| Durée | 5-10 Ans |
| Loyer | 265,32 € /m²/an |
| Type de bien | Bureau |
| Aménagement | Construction achevée |
| Disponible | Maintenant |
Mostly open space, 3 window offices, kitchen area
- Le loyer comprend les services publics, les services de l’immeuble et les frais immobiliers.
- Entièrement aménagé comme Bureau standard
- Principalement open space
- 3 bureaux privés
- 1 salle de conférence
16e étage, bureau 1615
| Surface | 230 m² |
| Durée | 5-10 Ans |
| Loyer | 270,85 € /m²/an |
| Type de bien | Bureau |
| Aménagement | Construction achevée |
| Disponible | Maintenant |
waiting area, 5 window offices, large corner bubble office or conference room, 3 interior office/rooms
- Le loyer comprend les services publics, les services de l’immeuble et les frais immobiliers.
- Entièrement aménagé comme Bureau standard
- 8 bureaux privés
- 1 salle de conférence
- 3 postes de travail
- Climatisation centrale
- Espace d’angle
17e étage, bureau 1700
| Surface | 186 – 348 m² |
| Durée | 5-10 Ans |
| Loyer | 270,85 € /m²/an |
| Type de bien | Bureau |
| Aménagement | Construction achevée |
| Disponible | Maintenant |
- Le loyer comprend les services publics, les services de l’immeuble et les frais immobiliers.
- Entièrement aménagé comme Bureau standard
18e étage, bureau 1800
| Surface | 1 093 m² |
| Durée | 5-10 Ans |
| Loyer | 270,85 € /m²/an |
| Type de bien | Bureau |
| Aménagement | Construction achevée |
| Disponible | Maintenant |
waiting area, reception, 18 window offices, 2-3 conference rooms, 30 cubicles, large kitchen lounge area, storage, and file room
- Le loyer comprend les services publics, les services de l’immeuble et les frais immobiliers.
- Entièrement aménagé comme Bureau de services professionnels
- 18 bureaux privés
- 2 salles de conférence
- 30 postes de travail
- Aire de réception
- Entreposage sécurisé
- Lumière naturelle
18e étage, bureau 1810
| Surface | 145 m² |
| Durée | 3-10 Ans |
| Loyer | 270,85 € /m²/an |
| Type de bien | Bureau |
| Aménagement | Construction partielle |
| Disponible | Maintenant |
Waiting area, reception/business area, open space, 2 window offices, kitchen
- Le loyer comprend les services publics, les services de l’immeuble et les frais immobiliers.
- Partiellement aménagé comme Centre d’appels
- Principalement open space
- 10 postes de travail
- Climatisation centrale
- Aire de réception
- Cuisine
- Open space
20e étage, bureau 2002
| Surface | 98 m² |
| Durée | 3-5 Ans |
| Loyer | 276,38 € /m²/an |
| Type de bien | Bureau |
| Aménagement | Construction achevée |
| Disponible | Maintenant |
- Le loyer comprend les services publics, les services de l’immeuble et les frais immobiliers.
- Entièrement aménagé comme Bureau standard
- 2 bureaux privés
- 2 postes de travail
Aperçu du bien
Tour de bureaux de classe A de 22 étages et 400 000 pieds carrés dans le Mid-Wilshire avec vue panoramique sur la ville. Dispose d'un parc de jardin de 1 acre à 5 étages au-dessus des rues de la ville. Les équipements comprennent une présence de sécurité surveillée 24 heures sur 24 et une surveillance surveillée 24 heures sur 24. L'accès au bâtiment en dehors des heures d'ouverture est contrôlé. L'accès au réseau à fibre optique haut débit et à l'hébergement de serveurs professionnels via un ISP/centre de données sur site est disponible. Le bâtiment est également connecté à Internet avec plusieurs fournisseurs de services Internet locaux et nationaux. Vous trouverez un restaurant et un café sur place, ainsi qu'un large éventail de restaurants et de boutiques à quelques minutes de marche. La gestion immobilière est sur place. Cet immeuble de bureaux de grande hauteur du Mid-Wilshire situé à Koreatown se trouve à quelques minutes du centre-ville, d'Hollywood et de Beverly Hills. En outre, il bénéficie d'un excellent accès aux autoroutes Santa Monica, Hollywood Freeway et Harbor Freeway et se trouve à un pâté de maisons de la station de métro Vermont.
- Accès 24 h/24
- Ligne d’autobus
- Installations de conférences
- Métro
- Property Manager sur place
- Restaurant
- Système de sécurité
- Terrasse sur le toit
- Sièges extérieurs
Informations sur l’immeuble
Présenté par
One Park Plaza | 3250 Wilshire Blvd
Hum, une erreur s’est produite lors de l’envoi de votre message. Veuillez réessayer.
Merci ! Votre message a été envoyé.



















