Votre e-mail a été envoyé.
BELOW MARKET GROSS RENT - SUBLEASE! 3110 45th St Local d’activités | 232–465 m² | À louer | West Palm Beach, FL 33407



Certaines informations ont été traduites automatiquement.
Informations principales sur la sous-location
- Centrally Located in PB County
- Sublease thru July 2027
- Glass Block Windows
- Under-market Gross Rent
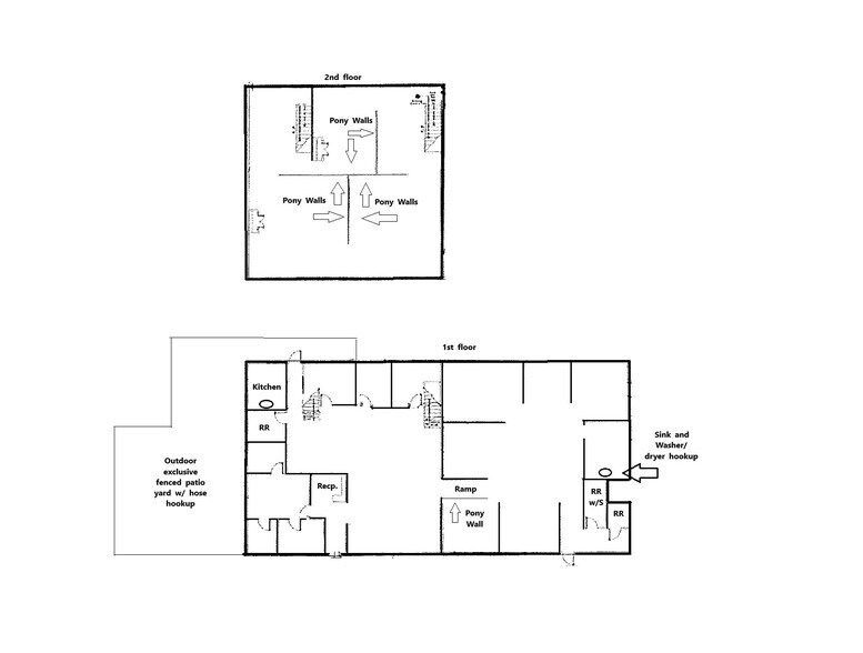
- Exclusive Fenced Outdoor Patio/Yard w/ Hose
- Quiet Setting off Main Road
Caractéristiques
Tous les espaces disponibles(2)
Afficher les loyers en
- Espace
- Surface
- Durée
- Loyer
- Type de bien
- Aménagement
- Disponible
Centrally located just west of I-95 on 45th Street. The building is positioned in a quiet setting behind National Auto Care at 3100 45th Street. Ample reserved surface parking at no additional charge. This is a sublease available through July of 2027, however, the Owner would most likley be willing to extend past that date. The property is zoned within the City of West Palm Beach as Industrial. Please find attached document showing the permitted uses "P" and highlighted. Subject to Owner's approval. Here are a few examples out of many! * Apparel & Accessory Retail Sales Rental Stores * Business and Commercial Machine Sales * Catering, Deli, Bakeries and Commissary uses * Funeral Home * Interior Decorators * Marine, Retail Sales * Martial Arts Studios * Motor Vehicles Parts and Accessories * Music and Dance Studios * Office - Government Administrative * Pet Grooming * Veterinary Clinics and Hospitals * Photocopy Services * Print and Type Setting Services * Public Safety operated by Public Agencies * Radio and Television Broadcasting Studios * Recreation, Indoor * Household Appliance Repairs * Research and Development * Upholstery, Cloth & Canvas Product Fabrication including Awnings * Veterinary Clinics and Hospitals, Animal Shelters * Warehousing and Storage
- Espace en sous-location disponible auprès de l’occupant actuel
- Peut être associé à un ou plusieurs espaces supplémentaires pour obtenir jusqu’à 465 m² d’espace adjacent.
- Toilettes privées
- CVC disponible en-dehors des heures ouvrables
- Il est possible que le loyer annoncé ne comprenne pas certains services publics, services d’immeuble et frais immobiliers.
- Climatisation centrale
- Plafonds suspendus
- Espace d’angle
Centrally located just west of I-95 on 45th Street. The building is positioned in a quiet setting behind National Auto Care at 3100 45th Street. Ample reserved surface parking at no additional charge. This is a sublease available through July of 2027, however, the Owner would most likley be willing to extend past that date. The property is zoned within the City of West Palm Beach as Industrial. Please find attached document showing the permitted uses "P" and highlighted. Subject to Owner's approval. Here are a few examples out of many! * Apparel & Accessory Retail Sales Rental Stores * Business and Commercial Machine Sales * Catering, Deli, Bakeries and Commissary uses * Funeral Home * Interior Decorators * Marine, Retail Sales * Martial Arts Studios * Motor Vehicles Parts and Accessories * Music and Dance Studios * Office - Government Administrative * Pet Grooming * Veterinary Clinics and Hospitals * Photocopy Services * Print and Type Setting Services * Public Safety operated by Public Agencies * Radio and Television Broadcasting Studios * Recreation, Indoor * Household Appliance Repairs * Research and Development * Upholstery, Cloth & Canvas Product Fabrication including Awnings * Veterinary Clinics and Hospitals, Animal Shelters * Warehousing and Storage
- Espace en sous-location disponible auprès de l’occupant actuel
- Peut être associé à un ou plusieurs espaces supplémentaires pour obtenir jusqu’à 465 m² d’espace adjacent.
- Toilettes privées
- CVC disponible en-dehors des heures ouvrables
- Il est possible que le loyer annoncé ne comprenne pas certains services publics, services d’immeuble et frais immobiliers.
- Climatisation centrale
- Plafonds suspendus
- Espace d’angle
| Espace | Surface | Durée | Loyer | Type de bien | Aménagement | Disponible |
| 1er étage – D - North First | 232 m² | Juil. 2027 | 151,48 € /m²/an 12,62 € /m²/mois 35 182 € /an 2 932 € /mois | Local d’activités | Construction achevée | Maintenant |
| 1er étage – D - North Second | 232 m² | Juil. 2027 | 151,48 € /m²/an 12,62 € /m²/mois 35 182 € /an 2 932 € /mois | Local d’activités | Construction achevée | Maintenant |
1er étage – D - North First
| Surface |
| 232 m² |
| Durée |
| Juil. 2027 |
| Loyer |
| 151,48 € /m²/an 12,62 € /m²/mois 35 182 € /an 2 932 € /mois |
| Type de bien |
| Local d’activités |
| Aménagement |
| Construction achevée |
| Disponible |
| Maintenant |
1er étage – D - North Second
| Surface |
| 232 m² |
| Durée |
| Juil. 2027 |
| Loyer |
| 151,48 € /m²/an 12,62 € /m²/mois 35 182 € /an 2 932 € /mois |
| Type de bien |
| Local d’activités |
| Aménagement |
| Construction achevée |
| Disponible |
| Maintenant |
1er étage – D - North First
| Surface | 232 m² |
| Durée | Juil. 2027 |
| Loyer | 151,48 € /m²/an |
| Type de bien | Local d’activités |
| Aménagement | Construction achevée |
| Disponible | Maintenant |
Centrally located just west of I-95 on 45th Street. The building is positioned in a quiet setting behind National Auto Care at 3100 45th Street. Ample reserved surface parking at no additional charge. This is a sublease available through July of 2027, however, the Owner would most likley be willing to extend past that date. The property is zoned within the City of West Palm Beach as Industrial. Please find attached document showing the permitted uses "P" and highlighted. Subject to Owner's approval. Here are a few examples out of many! * Apparel & Accessory Retail Sales Rental Stores * Business and Commercial Machine Sales * Catering, Deli, Bakeries and Commissary uses * Funeral Home * Interior Decorators * Marine, Retail Sales * Martial Arts Studios * Motor Vehicles Parts and Accessories * Music and Dance Studios * Office - Government Administrative * Pet Grooming * Veterinary Clinics and Hospitals * Photocopy Services * Print and Type Setting Services * Public Safety operated by Public Agencies * Radio and Television Broadcasting Studios * Recreation, Indoor * Household Appliance Repairs * Research and Development * Upholstery, Cloth & Canvas Product Fabrication including Awnings * Veterinary Clinics and Hospitals, Animal Shelters * Warehousing and Storage
- Espace en sous-location disponible auprès de l’occupant actuel
- Il est possible que le loyer annoncé ne comprenne pas certains services publics, services d’immeuble et frais immobiliers.
- Peut être associé à un ou plusieurs espaces supplémentaires pour obtenir jusqu’à 465 m² d’espace adjacent.
- Climatisation centrale
- Toilettes privées
- Plafonds suspendus
- CVC disponible en-dehors des heures ouvrables
- Espace d’angle
1er étage – D - North Second
| Surface | 232 m² |
| Durée | Juil. 2027 |
| Loyer | 151,48 € /m²/an |
| Type de bien | Local d’activités |
| Aménagement | Construction achevée |
| Disponible | Maintenant |
Centrally located just west of I-95 on 45th Street. The building is positioned in a quiet setting behind National Auto Care at 3100 45th Street. Ample reserved surface parking at no additional charge. This is a sublease available through July of 2027, however, the Owner would most likley be willing to extend past that date. The property is zoned within the City of West Palm Beach as Industrial. Please find attached document showing the permitted uses "P" and highlighted. Subject to Owner's approval. Here are a few examples out of many! * Apparel & Accessory Retail Sales Rental Stores * Business and Commercial Machine Sales * Catering, Deli, Bakeries and Commissary uses * Funeral Home * Interior Decorators * Marine, Retail Sales * Martial Arts Studios * Motor Vehicles Parts and Accessories * Music and Dance Studios * Office - Government Administrative * Pet Grooming * Veterinary Clinics and Hospitals * Photocopy Services * Print and Type Setting Services * Public Safety operated by Public Agencies * Radio and Television Broadcasting Studios * Recreation, Indoor * Household Appliance Repairs * Research and Development * Upholstery, Cloth & Canvas Product Fabrication including Awnings * Veterinary Clinics and Hospitals, Animal Shelters * Warehousing and Storage
- Espace en sous-location disponible auprès de l’occupant actuel
- Il est possible que le loyer annoncé ne comprenne pas certains services publics, services d’immeuble et frais immobiliers.
- Peut être associé à un ou plusieurs espaces supplémentaires pour obtenir jusqu’à 465 m² d’espace adjacent.
- Climatisation centrale
- Toilettes privées
- Plafonds suspendus
- CVC disponible en-dehors des heures ouvrables
- Espace d’angle
Aperçu du bien
Centrally located just west of I-95 on 45th Street. The property is zoned within the City of West Palm Beach as Industrial. Please find attached document showing the permitted uses "P" and highlighted. Subject to Owner's approval. Here are a few examples out of many! * Apparel & Accessory Retail Sales Rental Stores * Business and Commercial Machine Sales * Catering, Deli, Bakeries and Commissary uses * Funeral Home * Interior Decorators * Marine, Retail Sales * Martial Arts Studios * Motor Vehicles Parts and Accessories * Music and Dance Studios * Office - Government Administrative * Pet Grooming * Veterinary Clinics and Hospitals * Photocopy Services * Print and Type Setting Services * Public Safety operated by Public Agencies * Radio and Television Broadcasting Studios * Recreation, Indoor * Household Appliance Repairs * Research and Development * Upholstery, Cloth & Canvas Product Fabrication including Awnings * Veterinary Clinics and Hospitals, Animal Shelters * Warehousing and Storage
Informations sur l’immeuble
Présenté par
BELOW MARKET GROSS RENT - SUBLEASE! | 3110 45th St
Hum, une erreur s’est produite lors de l’envoi de votre message. Veuillez réessayer.
Merci ! Votre message a été envoyé.



