Votre e-mail a été envoyé.
301 Mission Ave - Oceanside Terraces Local commercial | 138 m² | 1 063 274 € | À vendre | Oceanside, CA 92054



Certaines informations ont été traduites automatiquement.
INFORMATIONS PRINCIPALES SUR L'INVESTISSEMENT
- Prime downtown Oceanside location near major hotels and retailers
- Includes HVAC, grease trap, and restrooms for turnkey operations
- Zoned D-1 with flexible retail and service use potential
- Private outdoor patio and secured employee parking
INFORMATIONS SUR L’IMMEUBLE
| Surface totale de l’immeuble | 4 223 m² | Surface type par étage | 3 716 m² |
| Type de bien | Immeuble residentiel (Lot en copropriété) | Année de construction | 2008 |
| Sous-type de bien | Appartement | Surface du lot | 0,37 ha |
| Classe d’immeuble | B | Ratio de stationnement | 0/1 000 m² |
| Étages | 6 | ||
| Zonage | C - Condominium Commercial de Vente au Détail/Bureau | ||
| Surface totale de l’immeuble | 4 223 m² |
| Type de bien | Immeuble residentiel (Lot en copropriété) |
| Sous-type de bien | Appartement |
| Classe d’immeuble | B |
| Étages | 6 |
| Surface type par étage | 3 716 m² |
| Année de construction | 2008 |
| Surface du lot | 0,37 ha |
| Ratio de stationnement | 0/1 000 m² |
| Zonage | C - Condominium Commercial de Vente au Détail/Bureau |
CARACTÉRISTIQUES
- Détecteur de fumée
CARACTÉRISTIQUES DU LOT
- Climatisation
- Bureaux
CARACTÉRISTIQUES DU SITE
- Centre de fitness
- Salles de conférence
- Ascenseur
- Entretien sur site
1 LOT DISPONIBLE
Lot 101
| Surface du lot | 138 m² | Type de vente | Propriétaire occupant |
| Prix | 1 063 274 € | Nb de places de stationnement | 2 |
| Prix par m² | 7 707,06 € | Référence cadastrale/ID de parcelle | 147-271-15-01 |
| Usage du lot en coprop. | Local commercial |
| Surface du lot | 138 m² |
| Prix | 1 063 274 € |
| Prix par m² | 7 707,06 € |
| Usage du lot en coprop. | Local commercial |
| Type de vente | Propriétaire occupant |
| Nb de places de stationnement | 2 |
| Référence cadastrale/ID de parcelle | 147-271-15-01 |
DESCRIPTION
The property features a private outdoor patio, secured employee parking, and built-in infrastructure including HVAC, a grease trap, and restrooms—making it ideal for food service, boutique retail, or experiential concepts.
NOTES SUR LA VENTE
Located in the heart of Oceanside’s vibrant downtown, Suite 101 at 301 Mission Ave offers a rare opportunity to own a highly visible retail condo in one of Southern California’s most dynamic coastal markets. This 1,485 SF ground-floor unit is ideally positioned to capture foot traffic from nearby retailers, hotels, and entertainment venues, including Regal Theater, Mission Pacific, and the Oceanside Transit Center. The property features a private outdoor patio, secured employee parking, and built-in infrastructure including HVAC, a grease trap, and restrooms—making it ideal for food service, boutique retail, or experiential concepts.
Zoned D-1 within the Downtown District, the space benefits from flexible use allowances and proximity to major anchors such as CVS, Springhill Suites, and Wyndham Oceanside Pier. Oceanside’s demographic strength, with over 175,000 residents and a strong mix of young professionals, families, and military personnel from nearby Camp Pendleton, supports a thriving retail and service economy. The area’s median income and employment base further reinforce the long-term value of this investment.
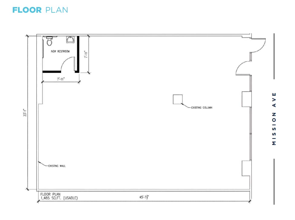
Floor Plan
LOT INFORMATIONS SUR LA COMBINAISON
| DESCRIPTION | NB DE LOTS | MOY. LOYER/MOIS | m² |
|---|---|---|---|
| 3+2 | 44 | - | - |
Présenté par
301 Mission Ave - Oceanside Terraces
Hum, une erreur s’est produite lors de l’envoi de votre message. Veuillez réessayer.
Merci ! Votre message a été envoyé.


