Votre e-mail a été envoyé.
Certaines informations ont été traduites automatiquement.
Informations principales
- Le bâtiment est certifié LEED Platinum.
- Exposition au lobby de l'ascenseur.
- Located in Houston’s Galleria with walkable amenities
- Le parking est de 3,40 places/1000 places de parking. Le parking non réservé coûte 70,00 $/mois et le parking réservé est de 125,00 $/mois.
- Vue imprenable sur Greenway, le centre-ville et le Waterwall.
Tous les espaces disponibles(7)
Afficher les loyers en
- Espace
- Surface
- Durée
- Loyer
- Type de bien
- Aménagement
- Disponible
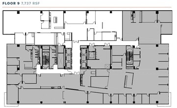
Efficient layout, available now
- Le loyer ne comprend pas les services publics, les frais immobiliers ou les services de l’immeuble.
- Principalement open space
- Entièrement aménagé comme Bureau standard
Space has elevator lobby exposure, unobstructed views of Greenway and Downtown, 9'6" ceiling height, floor to ceiling glass and up to eight column-free corner offices per floor. There are 30' x 45' bays for optimal planning. Parking is 3.4 spaces/1000 RSF leased. Unreserved spaces are $70.00 per month. Reserved spaces are $125.00 per month.
- Le loyer ne comprend pas les services publics, les frais immobiliers ou les services de l’immeuble.
- Principalement open space
- Peut être associé à un ou plusieurs espaces supplémentaires pour obtenir jusqu’à 1 579 m² d’espace adjacent.
- Entièrement aménagé comme Bureau standard
- Plafonds finis: 2,90 mètres
Space has elevator lobby exposure, unobstructed views of Greenway and Downtown, 9'6" ceiling height, floor to ceiling glass and up to eight column-free corner offices per floor. There are 30' x 45' bays for optimal planning. Parking is 3.4 spaces/1000 RSF leased. Unreserved spaces are $70.00 per month. Reserved spaces are $125.00 per month.
- Le loyer ne comprend pas les services publics, les frais immobiliers ou les services de l’immeuble.
- Principalement open space
- Peut être associé à un ou plusieurs espaces supplémentaires pour obtenir jusqu’à 1 579 m² d’espace adjacent.
- Entièrement aménagé comme Bureau standard
- Plafonds finis: 2,90 mètres
Space has elevator lobby exposure, unobstructed views of Greenway and Downtown, 9'6" ceiling height, floor to ceiling glass and up to eight column-free corner offices per floor. There are 30' x 45' bays for optimal planning. Parking is 3.4 spaces/1000 RSF leased. Unreserved spaces are $70.00 per month. Reserved spaces are $125.00 per month.
- Le loyer ne comprend pas les services publics, les frais immobiliers ou les services de l’immeuble.
- Principalement open space
- Peut être associé à un ou plusieurs espaces supplémentaires pour obtenir jusqu’à 1 579 m² d’espace adjacent.
- Entièrement aménagé comme Bureau standard
- Plafonds finis: 2,90 mètres
Space has elevator lobby exposure, unobstructed views of Greenway and Downtown, 9'6" ceiling height, floor to ceiling glass and up to eight column-free corner offices per floor. There are 30' x 45' bays for optimal planning. Parking is 3.4 spaces/1000 RSF leased. Unreserved spaces are $70.00 per month. Reserved spaces are $125.00 per month.
- Le loyer ne comprend pas les services publics, les frais immobiliers ou les services de l’immeuble.
- Principalement open space
- Entièrement aménagé comme Bureau standard
- Plafonds finis: 2,90 mètres
Divisible, column-free corners
- Entièrement aménagé comme Bureau standard
- Disposition open space
Divisible, panoramic views
- Entièrement aménagé comme Bureau standard
- Plan d’étage avec bureaux fermés
| Espace | Surface | Durée | Loyer | Type de bien | Aménagement | Disponible |
| 9e étage | 719 m² | 3-5 Ans | Sur demande Sur demande Sur demande Sur demande | Bureau | Construction achevée | Maintenant |
| 12e étage | 803 m² | 1-10 Ans | Sur demande Sur demande Sur demande Sur demande | Bureau | Construction achevée | Maintenant |
| 12e étage | 341 m² | 1-10 Ans | Sur demande Sur demande Sur demande Sur demande | Bureau | Construction achevée | Maintenant |
| 12e étage | 435 m² | 1-10 Ans | Sur demande Sur demande Sur demande Sur demande | Bureau | Construction achevée | Maintenant |
| 13e étage | 232 m² | 1-10 Ans | Sur demande Sur demande Sur demande Sur demande | Bureau | Construction achevée | Maintenant |
| 14e étage | 2 369 m² | Négociable | Sur demande Sur demande Sur demande Sur demande | Bureau | Construction achevée | Maintenant |
| 15e étage | 2 369 m² | Négociable | Sur demande Sur demande Sur demande Sur demande | Bureau | Construction achevée | Maintenant |
9e étage
| Surface |
| 719 m² |
| Durée |
| 3-5 Ans |
| Loyer |
| Sur demande Sur demande Sur demande Sur demande |
| Type de bien |
| Bureau |
| Aménagement |
| Construction achevée |
| Disponible |
| Maintenant |
12e étage
| Surface |
| 803 m² |
| Durée |
| 1-10 Ans |
| Loyer |
| Sur demande Sur demande Sur demande Sur demande |
| Type de bien |
| Bureau |
| Aménagement |
| Construction achevée |
| Disponible |
| Maintenant |
12e étage
| Surface |
| 341 m² |
| Durée |
| 1-10 Ans |
| Loyer |
| Sur demande Sur demande Sur demande Sur demande |
| Type de bien |
| Bureau |
| Aménagement |
| Construction achevée |
| Disponible |
| Maintenant |
12e étage
| Surface |
| 435 m² |
| Durée |
| 1-10 Ans |
| Loyer |
| Sur demande Sur demande Sur demande Sur demande |
| Type de bien |
| Bureau |
| Aménagement |
| Construction achevée |
| Disponible |
| Maintenant |
13e étage
| Surface |
| 232 m² |
| Durée |
| 1-10 Ans |
| Loyer |
| Sur demande Sur demande Sur demande Sur demande |
| Type de bien |
| Bureau |
| Aménagement |
| Construction achevée |
| Disponible |
| Maintenant |
14e étage
| Surface |
| 2 369 m² |
| Durée |
| Négociable |
| Loyer |
| Sur demande Sur demande Sur demande Sur demande |
| Type de bien |
| Bureau |
| Aménagement |
| Construction achevée |
| Disponible |
| Maintenant |
15e étage
| Surface |
| 2 369 m² |
| Durée |
| Négociable |
| Loyer |
| Sur demande Sur demande Sur demande Sur demande |
| Type de bien |
| Bureau |
| Aménagement |
| Construction achevée |
| Disponible |
| Maintenant |
9e étage
| Surface | 719 m² |
| Durée | 3-5 Ans |
| Loyer | Sur demande |
| Type de bien | Bureau |
| Aménagement | Construction achevée |
| Disponible | Maintenant |
Efficient layout, available now
- Le loyer ne comprend pas les services publics, les frais immobiliers ou les services de l’immeuble.
- Entièrement aménagé comme Bureau standard
- Principalement open space
12e étage
| Surface | 803 m² |
| Durée | 1-10 Ans |
| Loyer | Sur demande |
| Type de bien | Bureau |
| Aménagement | Construction achevée |
| Disponible | Maintenant |
Space has elevator lobby exposure, unobstructed views of Greenway and Downtown, 9'6" ceiling height, floor to ceiling glass and up to eight column-free corner offices per floor. There are 30' x 45' bays for optimal planning. Parking is 3.4 spaces/1000 RSF leased. Unreserved spaces are $70.00 per month. Reserved spaces are $125.00 per month.
- Le loyer ne comprend pas les services publics, les frais immobiliers ou les services de l’immeuble.
- Entièrement aménagé comme Bureau standard
- Principalement open space
- Plafonds finis: 2,90 mètres
- Peut être associé à un ou plusieurs espaces supplémentaires pour obtenir jusqu’à 1 579 m² d’espace adjacent.
12e étage
| Surface | 341 m² |
| Durée | 1-10 Ans |
| Loyer | Sur demande |
| Type de bien | Bureau |
| Aménagement | Construction achevée |
| Disponible | Maintenant |
Space has elevator lobby exposure, unobstructed views of Greenway and Downtown, 9'6" ceiling height, floor to ceiling glass and up to eight column-free corner offices per floor. There are 30' x 45' bays for optimal planning. Parking is 3.4 spaces/1000 RSF leased. Unreserved spaces are $70.00 per month. Reserved spaces are $125.00 per month.
- Le loyer ne comprend pas les services publics, les frais immobiliers ou les services de l’immeuble.
- Entièrement aménagé comme Bureau standard
- Principalement open space
- Plafonds finis: 2,90 mètres
- Peut être associé à un ou plusieurs espaces supplémentaires pour obtenir jusqu’à 1 579 m² d’espace adjacent.
12e étage
| Surface | 435 m² |
| Durée | 1-10 Ans |
| Loyer | Sur demande |
| Type de bien | Bureau |
| Aménagement | Construction achevée |
| Disponible | Maintenant |
Space has elevator lobby exposure, unobstructed views of Greenway and Downtown, 9'6" ceiling height, floor to ceiling glass and up to eight column-free corner offices per floor. There are 30' x 45' bays for optimal planning. Parking is 3.4 spaces/1000 RSF leased. Unreserved spaces are $70.00 per month. Reserved spaces are $125.00 per month.
- Le loyer ne comprend pas les services publics, les frais immobiliers ou les services de l’immeuble.
- Entièrement aménagé comme Bureau standard
- Principalement open space
- Plafonds finis: 2,90 mètres
- Peut être associé à un ou plusieurs espaces supplémentaires pour obtenir jusqu’à 1 579 m² d’espace adjacent.
13e étage
| Surface | 232 m² |
| Durée | 1-10 Ans |
| Loyer | Sur demande |
| Type de bien | Bureau |
| Aménagement | Construction achevée |
| Disponible | Maintenant |
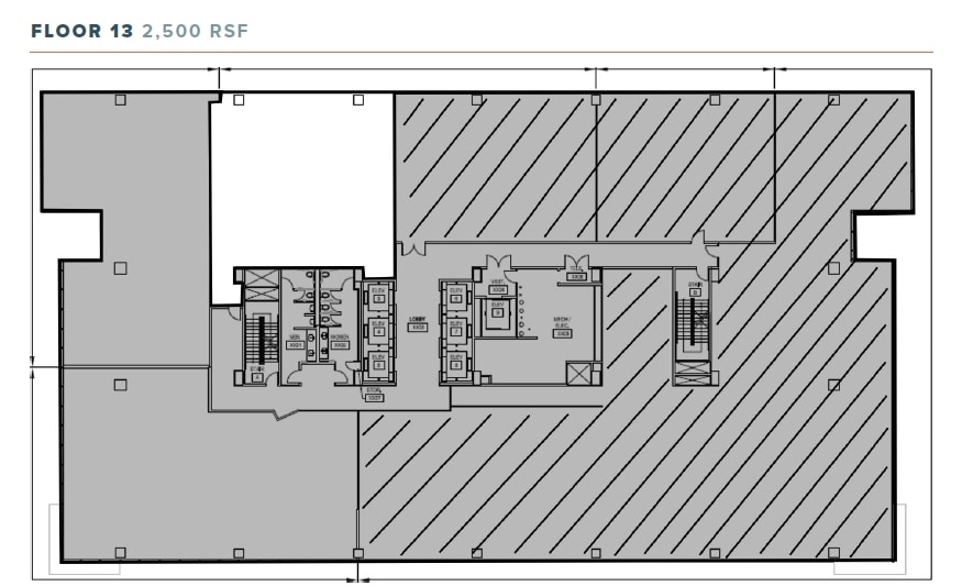
Space has elevator lobby exposure, unobstructed views of Greenway and Downtown, 9'6" ceiling height, floor to ceiling glass and up to eight column-free corner offices per floor. There are 30' x 45' bays for optimal planning. Parking is 3.4 spaces/1000 RSF leased. Unreserved spaces are $70.00 per month. Reserved spaces are $125.00 per month.
- Le loyer ne comprend pas les services publics, les frais immobiliers ou les services de l’immeuble.
- Entièrement aménagé comme Bureau standard
- Principalement open space
- Plafonds finis: 2,90 mètres
14e étage
| Surface | 2 369 m² |
| Durée | Négociable |
| Loyer | Sur demande |
| Type de bien | Bureau |
| Aménagement | Construction achevée |
| Disponible | Maintenant |
Divisible, column-free corners
- Entièrement aménagé comme Bureau standard
- Disposition open space
15e étage
| Surface | 2 369 m² |
| Durée | Négociable |
| Loyer | Sur demande |
| Type de bien | Bureau |
| Aménagement | Construction achevée |
| Disponible | Maintenant |
Divisible, panoramic views
- Entièrement aménagé comme Bureau standard
- Plan d’étage avec bureaux fermés
Aperçu du bien
La propriété a été construite en 2013 et est certifiée LEED Platine. Le bâtiment comprend un centre de conférence, une connexion Wi-Fi, un service de sécurité 24 heures sur 24, 7 jours sur 7, un accès par carte, un générateur pour la sécurité du bâtiment et l'utilisation des locataires, ainsi que des services d'entretien sur place. Des panneaux de signalisation sont disponibles. Il est situé à l'angle nord-est de Post Oak Boulevard et Hidalgo avec une façade sur la 610 West Loop. 6 points d'entrée et de sortie depuis Westpark, l'autoroute 59 et l'autoroute 610.
- Accès 24 h/24
- Accès contrôlé
- Installations de conférences
- Food court
- Service de restauration
- Lumière naturelle
- Agents de sécurité sur place
Informations sur l’immeuble
Durabilité
Durabilité
Certification LEED Établi par l’U.S. Green Building Council (USGBC, Conseil américain de l’immeuble durable), le programme de certification LEED (Leadership in Energy and Environmental Design) est axé sur la conception, la construction, l’exploitation et la maintenance d’immeubles, de maisons et de quartiers écologiques. Sa vocation est d’aider les propriétaires et les exploitants à adopter des pratiques écoresponsables et à utiliser les ressources de façon efficace. La certification LEED est un symbole mondialement reconnu de réalisation et de leadership en matière de développement durable. Pour obtenir la certification LEED, un projet doit obtenir des points en respectant des conditions préalables et un barème de crédits qui tiennent compte des émissions de carbone, de l’énergie, de l’eau, des déchets, du transport, des matériaux, de la santé et de la qualité de l’environnement intérieur. Les projets passent par un processus de vérification et d’évaluation et reçoivent un score correspondant à un niveau de certification LEED : Platine (80 points et plus) Or (60 à 79 points) Argent (50 à 59 points) Certifié (40 à 49 points)
Présenté par
3009 Post Oak Blvd
Hum, une erreur s’est produite lors de l’envoi de votre message. Veuillez réessayer.
Merci ! Votre message a été envoyé.


















