Votre e-mail a été envoyé.
Certaines informations ont été traduites automatiquement.
Informations principales
- Renovated interiors with maintenance-free siding.
- Located near Route 202 and US Business 30.
- Competitive lease rate with abundant parking.
- Flexible TC zoning for office or medical use.
- Surrounded by restaurants, banks, and retail.
Tous les espace disponibles(1)
Afficher les loyers en
- Espace
- Surface
- Durée
- Loyer
- Type de bien
- Aménagement
- Disponible
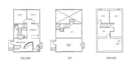
This 2,350 SF office condominium is located within the Exton Office Court, a well-positioned business community in the heart of Exton, PA. Zoned for Town Center Mixed Use (TC), the property accommodates a wide range of professional and medical office uses, offering flexibility for diverse business needs. The building features recent interior renovations, creating a modern and functional workspace complemented by an open, spacious layout. The property benefits from new maintenance-free siding and abundant on-site parking, ensuring convenience for employees and visitors. Its location along North Pottstown Pike provides excellent visibility and accessibility, with direct proximity to major routes including US Business 30 and Route 202. The surrounding area offers a robust mix of retail, dining, and hospitality options, including Whole Foods, Target, Panera, and numerous national and local brands, enhancing convenience for tenants and clients alike. Situated in a thriving commercial corridor, this office space combines accessibility, functionality, and a strong local business environment, making it an attractive option for companies seeking a well-connected and professionally maintained location.
- Loyer annoncé plus part proportionnelle des coûts de la consommation électrique
- Principalement open space
- 3 bureaux privés
- Aire de réception
- Entièrement aménagé comme Bureau standard
- Convient pour 6 à 19 personnes
- 1 salle de conférence
- Ample on-site parking for staff and visitors.
| Espace | Surface | Durée | Loyer | Type de bien | Aménagement | Disponible |
| 1er étage, bureau 120 | 218 m² | Négociable | 156,07 € /m²/an 13,01 € /m²/mois 34 073 € /an 2 839 € /mois | Bureau | Construction achevée | Maintenant |
1er étage, bureau 120
| Surface |
| 218 m² |
| Durée |
| Négociable |
| Loyer |
| 156,07 € /m²/an 13,01 € /m²/mois 34 073 € /an 2 839 € /mois |
| Type de bien |
| Bureau |
| Aménagement |
| Construction achevée |
| Disponible |
| Maintenant |
1er étage, bureau 120
| Surface | 218 m² |
| Durée | Négociable |
| Loyer | 156,07 € /m²/an |
| Type de bien | Bureau |
| Aménagement | Construction achevée |
| Disponible | Maintenant |
This 2,350 SF office condominium is located within the Exton Office Court, a well-positioned business community in the heart of Exton, PA. Zoned for Town Center Mixed Use (TC), the property accommodates a wide range of professional and medical office uses, offering flexibility for diverse business needs. The building features recent interior renovations, creating a modern and functional workspace complemented by an open, spacious layout. The property benefits from new maintenance-free siding and abundant on-site parking, ensuring convenience for employees and visitors. Its location along North Pottstown Pike provides excellent visibility and accessibility, with direct proximity to major routes including US Business 30 and Route 202. The surrounding area offers a robust mix of retail, dining, and hospitality options, including Whole Foods, Target, Panera, and numerous national and local brands, enhancing convenience for tenants and clients alike. Situated in a thriving commercial corridor, this office space combines accessibility, functionality, and a strong local business environment, making it an attractive option for companies seeking a well-connected and professionally maintained location.
- Loyer annoncé plus part proportionnelle des coûts de la consommation électrique
- Entièrement aménagé comme Bureau standard
- Principalement open space
- Convient pour 6 à 19 personnes
- 3 bureaux privés
- 1 salle de conférence
- Aire de réception
- Ample on-site parking for staff and visitors.
Aperçu du bien
The property is a 2,350 SF office condominium located at 300 N Pottstown Pike, Suite 240, Exton, PA, within the Exton Office Court development. It is zoned for Town Center Mixed Use (TC), allowing for a variety of office and medical uses. The building has undergone recent interior renovations and features maintenance-free siding. The site offers on-site parking and is positioned near major transportation routes including US Business 30 and Route 202. The surrounding area includes retail centers, restaurants, banks, and hotels, providing convenient access to services and amenities.
- Puits de lumière
- Espace d’entreposage
- Hauts plafonds
- Climatisation
Informations sur l’immeuble
Occupants
- Étage
- Nom de l’occupant
- Secteur d’activité
- 1er
- Advocates Outreach, Inc.
- -
- 1er
- Cellucci Foran Insurance, Inc.
- -
- 1er
- Dr. John R. DiMedio
- -
- 1er
- First Choice Real Estate Services, L.L.C.
- -
- 1er
- Law Office of Jamie R. Hall
- -
- 1er
- Pagnotta Engineering, Inc.
- -
- 1er
- Pastperfect Museum Software, Inc
- Information
- 1er
- Premiere Assoc. Group LLC
- -
- 1er
- State Farm Insurance
- Finance et assurances
- 1er
- Systech Design
- Grossiste
Présenté par
Unit 120 | 300 N Pottstown Pike
Hum, une erreur s’est produite lors de l’envoi de votre message. Veuillez réessayer.
Merci ! Votre message a été envoyé.





