Votre e-mail a été envoyé.
30 Windsormere Way Bureau | 227 m² | À louer | Oviedo, FL 32765



Certaines informations ont été traduites automatiquement.
Tous les espace disponibles(1)
Afficher les loyers en
- Espace
- Surface
- Durée
- Loyer
- Type de bien
- Aménagement
- Disponible
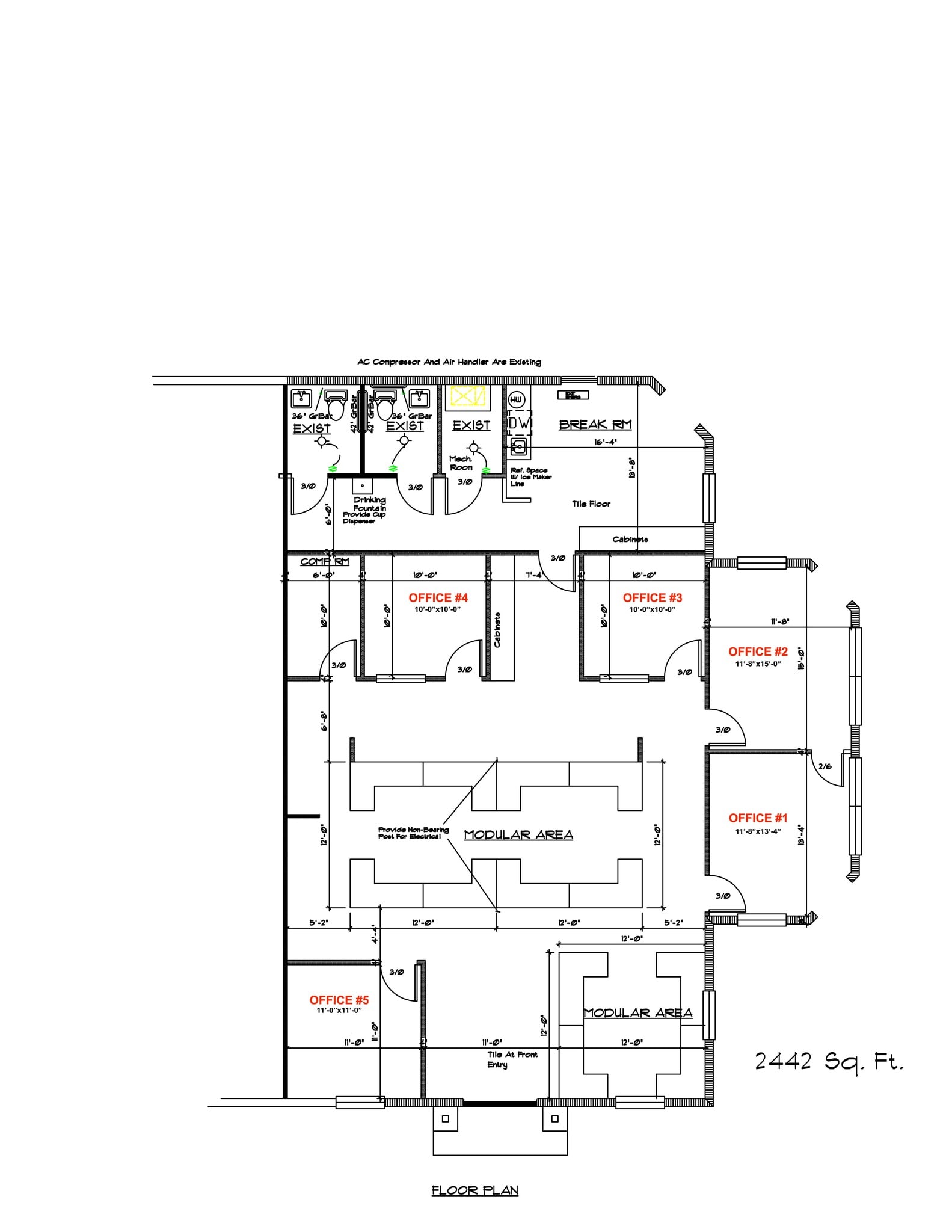
Suite 300 is a well-configured 2,442 SF professional office suite located within an established medical and professional office park in Oviedo. Previously occupied by a landscape architecture firm, the space features a flexible and functional layout that includes five private offices, a large open bullpen area, a dedicated conference room wired for a ceiling-mounted projector, a full break room with cabinetry and natural light, and a built-out IT/server room with structured cabling and dedicated power. The suite also offers two ADA-compliant restrooms, storage areas, and abundant natural light throughout. Its efficient floor plan provides a welcoming entry that flows into open workspace, while private offices are positioned along the perimeter for quiet use and practical separation. This configuration is ideal for professional service firms such as real estate, title, insurance, financial, legal, consulting, design, engineering, and other office-based companies seeking a turnkey, move-in-ready environment. Conveniently located minutes from Oviedo Medical Center with easy access to SR-417, Mitchell Hammock Road, and Alafaya Trail, the suite is situated within a quiet, well-maintained office park surrounded by established professional tenants.
- Il est possible que le loyer annoncé ne comprenne pas certains services publics, services d’immeuble et frais immobiliers.
- Principalement open space
- 1 salle de conférence
- Espace en excellent état
- Aire de réception
- Toilettes privées
- Système de sécurité
- Entreposage sécurisé
- Éclairage d’urgence
- Détecteur de fumée
- Private offices & Bullpen Areas
- Conference room wired for ceiling projector
- Full break room/ Kitchen
- Entièrement aménagé comme Bureau standard
- 4 bureaux privés
- 2 postes de travail
- Climatisation centrale
- Salle d’impression/photocopie
- Entièrement moquetté
- Espace d’angle
- Lumière naturelle
- Open space
- Accessible fauteuils roulants
- Ample on-site parking
- Dedicated IT / Server room
- Two ADA-compliant restrooms
| Espace | Surface | Durée | Loyer | Type de bien | Aménagement | Disponible |
| 1er étage, bureau 300 | 227 m² | Négociable | 229,51 € /m²/an 19,13 € /m²/mois 52 070 € /an 4 339 € /mois | Bureau | Construction achevée | Maintenant |
1er étage, bureau 300
| Surface |
| 227 m² |
| Durée |
| Négociable |
| Loyer |
| 229,51 € /m²/an 19,13 € /m²/mois 52 070 € /an 4 339 € /mois |
| Type de bien |
| Bureau |
| Aménagement |
| Construction achevée |
| Disponible |
| Maintenant |
1er étage, bureau 300
| Surface | 227 m² |
| Durée | Négociable |
| Loyer | 229,51 € /m²/an |
| Type de bien | Bureau |
| Aménagement | Construction achevée |
| Disponible | Maintenant |
Suite 300 is a well-configured 2,442 SF professional office suite located within an established medical and professional office park in Oviedo. Previously occupied by a landscape architecture firm, the space features a flexible and functional layout that includes five private offices, a large open bullpen area, a dedicated conference room wired for a ceiling-mounted projector, a full break room with cabinetry and natural light, and a built-out IT/server room with structured cabling and dedicated power. The suite also offers two ADA-compliant restrooms, storage areas, and abundant natural light throughout. Its efficient floor plan provides a welcoming entry that flows into open workspace, while private offices are positioned along the perimeter for quiet use and practical separation. This configuration is ideal for professional service firms such as real estate, title, insurance, financial, legal, consulting, design, engineering, and other office-based companies seeking a turnkey, move-in-ready environment. Conveniently located minutes from Oviedo Medical Center with easy access to SR-417, Mitchell Hammock Road, and Alafaya Trail, the suite is situated within a quiet, well-maintained office park surrounded by established professional tenants.
- Il est possible que le loyer annoncé ne comprenne pas certains services publics, services d’immeuble et frais immobiliers.
- Entièrement aménagé comme Bureau standard
- Principalement open space
- 4 bureaux privés
- 1 salle de conférence
- 2 postes de travail
- Espace en excellent état
- Climatisation centrale
- Aire de réception
- Salle d’impression/photocopie
- Toilettes privées
- Entièrement moquetté
- Système de sécurité
- Espace d’angle
- Entreposage sécurisé
- Lumière naturelle
- Éclairage d’urgence
- Open space
- Détecteur de fumée
- Accessible fauteuils roulants
- Private offices & Bullpen Areas
- Ample on-site parking
- Conference room wired for ceiling projector
- Dedicated IT / Server room
- Full break room/ Kitchen
- Two ADA-compliant restrooms
Caractéristiques
- Signalisation
Informations sur l’immeuble
Occupants
- Étage
- Nom de l’occupant
- Secteur d’activité
- 1er
- Dycus Family Medicine Pa
- Santé et assistance sociale
- 1er
- Metabolic Center For Wellness
- Santé et assistance sociale
Présenté par
ZIMMER LAND COMPANY
30 Windsormere Way
Hum, une erreur s’est produite lors de l’envoi de votre message. Veuillez réessayer.
Merci ! Votre message a été envoyé.



