Votre e-mail a été envoyé.
Certaines informations ont été traduites automatiquement.
Informations principales
- Second-Generation Medical Office Space
- High Traffic Corridor
- Turn Key
Tous les espace disponibles(1)
Afficher les loyers en
- Espace
- Surface
- Durée
- Loyer
- Type de bien
- Aménagement
- Disponible
This premier second-generation medical office space at 3 Washington Circle NW offers a rare opportunity for healthcare providers to establish or expand their presence in one of Washington, DC’s most prestigious and high-traffic medical corridors. Located in the heart of Foggy Bottom, directly across from George Washington University Hospital and steps from George Washington University, this 3,134-square-foot suite is fully built out and thoughtfully designed to support a wide range of medical specialties and outpatient services. The existing configuration includes multiple exam rooms, private physician offices, a welcoming reception area, and ample administrative space—providing a true turnkey solution that significantly reduces build-out costs and move-in delays. Strategically positioned on a high-visibility circle and easily accessible via the Foggy Bottom-GWU Metro Station, numerous Metrobus lines, and major commuter routes, this location offers exceptional connectivity for both patients and staff. The building is ADA-compliant, elevator-served, and includes on-site parking, enhancing convenience and accessibility. Surrounded by a dense network of healthcare institutions, academic facilities, and professional offices, 3 Washington Circle is ideally suited for general practitioners, specialists, and group practices seeking proximity to a built-in referral base and collaborative opportunities.
- Le loyer comprend les services publics, les services de l’immeuble et les frais immobiliers.
- Principalement open space
- 6 bureaux privés
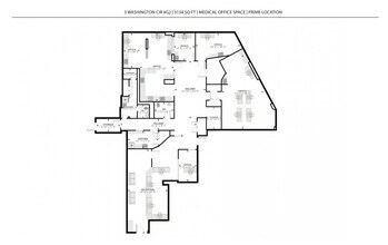
- Entièrement aménagé comme Cabinet médical standard
- Convient pour 8 à 26 personnes
- Espace en excellent état
| Espace | Surface | Durée | Loyer | Type de bien | Aménagement | Disponible |
| 1er étage, bureau G2 | 291 m² | 3-10 Ans | 267,16 € /m²/an 22,26 € /m²/mois 77 787 € /an 6 482 € /mois | Bureaux/Médical | Construction achevée | Maintenant |
1er étage, bureau G2
| Surface |
| 291 m² |
| Durée |
| 3-10 Ans |
| Loyer |
| 267,16 € /m²/an 22,26 € /m²/mois 77 787 € /an 6 482 € /mois |
| Type de bien |
| Bureaux/Médical |
| Aménagement |
| Construction achevée |
| Disponible |
| Maintenant |
1er étage, bureau G2
| Surface | 291 m² |
| Durée | 3-10 Ans |
| Loyer | 267,16 € /m²/an |
| Type de bien | Bureaux/Médical |
| Aménagement | Construction achevée |
| Disponible | Maintenant |
This premier second-generation medical office space at 3 Washington Circle NW offers a rare opportunity for healthcare providers to establish or expand their presence in one of Washington, DC’s most prestigious and high-traffic medical corridors. Located in the heart of Foggy Bottom, directly across from George Washington University Hospital and steps from George Washington University, this 3,134-square-foot suite is fully built out and thoughtfully designed to support a wide range of medical specialties and outpatient services. The existing configuration includes multiple exam rooms, private physician offices, a welcoming reception area, and ample administrative space—providing a true turnkey solution that significantly reduces build-out costs and move-in delays. Strategically positioned on a high-visibility circle and easily accessible via the Foggy Bottom-GWU Metro Station, numerous Metrobus lines, and major commuter routes, this location offers exceptional connectivity for both patients and staff. The building is ADA-compliant, elevator-served, and includes on-site parking, enhancing convenience and accessibility. Surrounded by a dense network of healthcare institutions, academic facilities, and professional offices, 3 Washington Circle is ideally suited for general practitioners, specialists, and group practices seeking proximity to a built-in referral base and collaborative opportunities.
- Le loyer comprend les services publics, les services de l’immeuble et les frais immobiliers.
- Entièrement aménagé comme Cabinet médical standard
- Principalement open space
- Convient pour 8 à 26 personnes
- 6 bureaux privés
- Espace en excellent état
Aperçu du bien
Now available for immediate occupancy, this premier second-generation medical office space at 3 Washington Circle NW offers a rare opportunity for healthcare providers to establish or expand their presence in one of Washington, DC’s most prestigious and high-traffic medical corridors. Located in the heart of Foggy Bottom, directly across from George Washington University Hospital and steps from George Washington University, this 3,134-square-foot suite is fully built out and thoughtfully designed to support a wide range of medical specialties and outpatient services. The existing configuration includes multiple exam rooms, private physician offices, a welcoming reception area, and ample administrative space—providing a true turnkey solution that significantly reduces build-out costs and move-in delays. Strategically positioned on a high-visibility circle and easily accessible via the Foggy Bottom-GWU Metro Station, numerous Metrobus lines, and major commuter routes, this location offers exceptional connectivity for both patients and staff. The building is ADA-compliant, elevator-served, and includes on-site parking, enhancing convenience and accessibility. Surrounded by a dense network of healthcare institutions, academic facilities, and professional offices, 3 Washington Circle is ideally suited for general practitioners, specialists, and group practices seeking proximity to a built-in referral base and collaborative opportunities. With its central location, outstanding amenities, and professional infrastructure, this medical office space combines prestige, functionality, and practicality—all within walking distance to top-tier dining, retail, and lodging. Don’t miss the chance to secure a highly desirable address in one of DC’s most dynamic and medically significant neighborhoods.
- Accès 24 h/24
- Concierge
- Cour
- Accessible fauteuils roulants
- Chauffage central
- Climatisation
Informations sur l’immeuble
Occupants
- Étage
- Nom de l’occupant
- Secteur d’activité
- 1er
- Alliance Physical Therapy
- Santé et assistance sociale
- 2e
- Center-Vulvovaginal Disorders
- Santé et assistance sociale
- 2e
- Eye Physicians And Surgeons At Washington Circle
- Santé et assistance sociale
- 2e
- Frog Point Therapy
- Santé et assistance sociale
- 3e
- K Street Dental
- Santé et assistance sociale
- 2e
- Nerve Bone & Joint Institute
- Santé et assistance sociale
- 3e
- Orbach Orthodontics
- Santé et assistance sociale
- 4e
- Summit Ortrhopedics Therapy
- Santé et assistance sociale
- 1er
- Washington Metro Dental
- Santé et assistance sociale
- 1er
- Yousefi Chiro Care
- -
Présenté par
3 Washington Cir NW
Hum, une erreur s’est produite lors de l’envoi de votre message. Veuillez réessayer.
Merci ! Votre message a été envoyé.






