Connectez-vous/S’inscrire
Votre e-mail a été envoyé.
3-7 Stuckhardt Rd Local commercial 591 m² À vendre Trotwood, OH 45426 280 631 € (474,95 €/m²) Taux de capitalisation 13,92 %



Certaines informations ont été traduites automatiquement.
INFORMATIONS PRINCIPALES SUR L'INVESTISSEMENT
- Brand New Roof Added
- Building in an up and coming area with lots of residential growth
- Brand New Parking Lot
- Building located right off of a main street with heavy traffic
RÉSUMÉ ANALYTIQUE
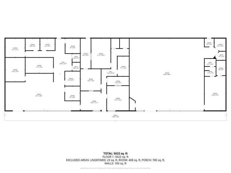
This 6,360 sq. ft. commercial building offers endless potential for office, retail, or mixed-use operations. One side is fully finished and move-in ready, while the other provides an open layout perfect for renovation or build-out. Located just off E. Main Street, the property features high visibility, ample parking, and flexible zoning. The building has a brand new roof, new outside lighting, and a brand new parking lot. Ideal for owner-users or investors looking to expand their portfolio in a growing business corridor.
BILAN FINANCIER (PRO FORMA - 2025) |
ANNUEL | ANNUEL PAR m² |
|---|---|---|
| Revenu de location brut |
65 901 €
|
111,53 €
|
| Autres revenus |
-
|
-
|
| Perte due à la vacance |
16 475 €
|
27,88 €
|
| Revenu brut effectif |
49 426 €
|
83,65 €
|
| Taxes |
-
|
-
|
| Frais d’exploitation |
-
|
-
|
| Total des frais |
10 362 €
|
17,54 €
|
| Résultat net d’exploitation |
39 064 €
|
66,11 €
|
BILAN FINANCIER (PRO FORMA - 2025)
| Revenu de location brut | |
|---|---|
| Annuel | 65 901 € |
| Annuel par m² | 111,53 € |
| Autres revenus | |
|---|---|
| Annuel | - |
| Annuel par m² | - |
| Perte due à la vacance | |
|---|---|
| Annuel | 16 475 € |
| Annuel par m² | 27,88 € |
| Revenu brut effectif | |
|---|---|
| Annuel | 49 426 € |
| Annuel par m² | 83,65 € |
| Taxes | |
|---|---|
| Annuel | - |
| Annuel par m² | - |
| Frais d’exploitation | |
|---|---|
| Annuel | - |
| Annuel par m² | - |
| Total des frais | |
|---|---|
| Annuel | 10 362 € |
| Annuel par m² | 17,54 € |
| Résultat net d’exploitation | |
|---|---|
| Annuel | 39 064 € |
| Annuel par m² | 66,11 € |
INFORMATIONS SUR L’IMMEUBLE
Type de vente
Investissement
Condition de vente
Bien à vacance élevée
Type de bien
Local commercial
Sous-type de bien
Surface de l’immeuble
591 m²
Classe d’immeuble
C
Année de construction
1970
Prix
280 631 €
Prix par m²
474,95 €
Taux de capitalisation
13,92 %
RNE
39 064 €
Occupation
Multi
Hauteur du bâtiment
1 étage
Coefficient d’occupation des sols de l’immeuble
0,27
Surface du lot
0,22 ha
Zonage
GB - GB - General Business — allows a variety of office, retail, and service uses including professional offices, salons, restaurants, etc..
Stationnement
27 places (45,7 places par 1 000 m² loué)
Façade
32 m sur Stuckhardt Rd.
CARACTÉRISTIQUES
- Ligne d’autobus
- Système de sécurité
- Éclairage d’appoint
1 1
TAXES FONCIÈRES
| Numéro de parcelle | H33-00101-0030 | Évaluation des aménagements | 24 493 € (2024) |
| Évaluation du terrain | 10 887 € (2024) | Évaluation totale | 35 380 € (2024) |
TAXES FONCIÈRES
Numéro de parcelle
H33-00101-0030
Évaluation du terrain
10 887 € (2024)
Évaluation des aménagements
24 493 € (2024)
Évaluation totale
35 380 € (2024)
1 sur 40
VIDÉOS
VISITE EXTÉRIEURE 3D MATTERPORT
VISITE 3D
PHOTOS
STREET VIEW
RUE
CARTE
1 sur 1
Présenté par
3-7 Stuckhardt Rd
Vous êtes déjà membre ? Connectez-vous
Hum, une erreur s’est produite lors de l’envoi de votre message. Veuillez réessayer.
Merci ! Votre message a été envoyé.
