Votre e-mail a été envoyé.
Lease or Build to Suit for F & B Tenant 2959 Central Ave Terrain commercial | À louer | 0,02 ha | Saint Petersburg, FL 33713


Certaines informations ont été traduites automatiquement.
INFORMATIONS PRINCIPALES
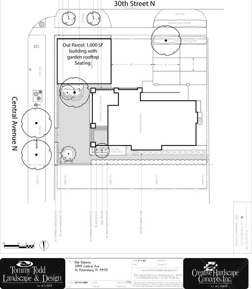
- Corner Lot Transformation: A 3,000 SF parking lot at Central Ave & 30th St will be reconfigured to host a new 1,000 SF with rooftop seating.
- On-Site Parking: The site will offer approximately 5 new parking spaces, plus 9 existing spaces in front of the restored Craftsman House.
LOT DISPONIBLE
Afficher les loyers en
| Loyer |
|
Surface du lot | 0,02 ha |
| Durée du bail | Négociable |
| Loyer | |
| Durée du bail | Négociable |
| Surface du lot | 0,02 ha |
This property is located on the Northeast corner of Central Avenue and 30th Street. It's a 3,000 SF parking lot that will be demolished and reconfigured to make way for an approximately 1,000 SF building with a roof garden overlooking Central Avenue and the New Courtyard. Perfect Location for High-end coffee, juice, and smoothie bar, “Hybrid” Concepts, Wellness and Functional Foods, Non-Alcoholic Beverages, Functional Beverages. This is part of the Historic Restoration of the Craftsman House and will include a new 1,225 SF sidewalk cafe/courtyard that incorporates the large Craftsman House Porch. The new corner building will be on the existing 3,000 SF parking lot, built right next to the sidewalk. This is a prime location in the Grand Central District, adjacent to the Kenwood Historic District, an enclave for the artists and the arts. The entire development is on 14,500 SF.
APERÇU DU BIEN
This piece is on the North East corner of Central Avenue and 30th Street. It's a parking lot that will be demolished and reconfigured to make way for an approximately 1,000 SF building with a rooftop garden for seating. Perfect for a Micro Coffee/Espresso Bar, Juice Bar/Smoothie/Açaí Bowls, Specialty Dessert/Ice Cream Shop, to name a few ideas. This is part of the Historic Restoration of the Craftsman House and will include a new 1,225 SF sidewalk cafe/courtyard that incorporates the 327 SF Craftsman House Porch. The new corner building is on the existing 3,000 SF parking lot and have five parking spaces on site in addition to the nine parking spaces in front of the Craftsman House restoration project.
INFORMATIONS SUR L’IMMEUBLE
| Espace total disponible | 0,02 ha | Sous-type de bien | Terrain commercial |
| Type de bien | Terrain | Usage proposé | Local commercial |
| Espace total disponible | 0,02 ha |
| Type de bien | Terrain |
| Sous-type de bien | Terrain commercial |
| Usage proposé | Local commercial |
Présenté par
Impact Realty
Lease or Build to Suit for F & B Tenant | 2959 Central Ave
Hum, une erreur s’est produite lors de l’envoi de votre message. Veuillez réessayer.
Merci ! Votre message a été envoyé.
