Votre e-mail a été envoyé.
Medical Office 2786 N Decatur Rd Bureaux/Médical | 65 m² | À louer | Decatur, GA 30033



Certaines informations ont été traduites automatiquement.
INFORMATIONS PRINCIPALES
- Medical Area
- Across from Emory Decatur Hospital
- 1 Minute drive to Whole Foods, Shops and Restaurants.
- Minutes away from CHOA, Emory and the VA
TOUS LES ESPACE DISPONIBLES(1)
Afficher les loyers en
- ESPACE
- SURFACE
- DURÉE
- LOYER
- TYPE DE BIEN
- ÉTAT
- DISPONIBLE
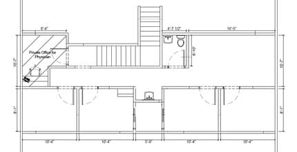
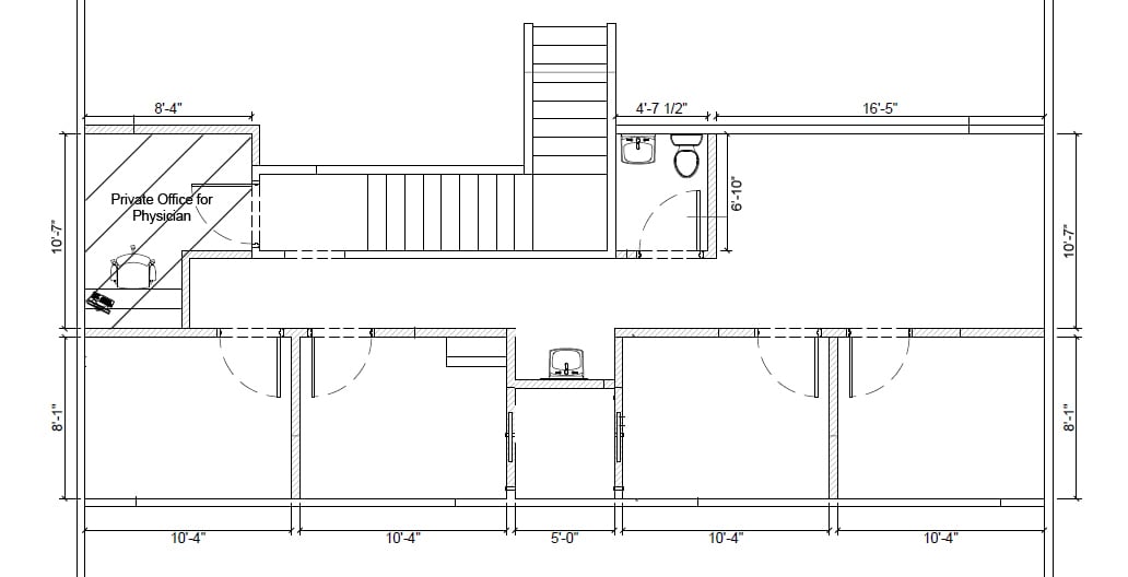
FOR LEASE: RARE MEDICAL OFFICE SPACE IN HIGH-DEMAND DECATUR AREA Prime Location | Directly Across from Emory Decatur Hospital. This exceptional 700 SF medical office space is a 2nd floor space of a physician's medical office that is not in use, and is perfect and move in ready for a small medical/wellness/healthcare business. Renovated in 2018, the 2nd floor consists of 4 exam rooms, private bathroom and open area, with Central Heat/Air, and its own backdoor private entrance. Lease includes all maintenance, utilities, wifi and janitorial services. High Visibility & Traffic – Located on a well-traveled corridor. Prime Accessibility – Just minutes from I-85/285, Emory University, and CHOA’s North Druid Hills campus. Modern Interiors – Spacious areas, private offices, exam rooms, and restrooms. Abundant Parking – Ample on-site parking for staff and visitors Thriving Business Hub – Surrounded by medical, dental, and professional service providers. 24Hr Access
- Le loyer comprend les services publics, les services de l’immeuble et les frais immobiliers.
- Espace en excellent état
- Connectivité Wi-Fi
- Vidéosurveillance
- CVC disponible en-dehors des heures ouvrables
- Entièrement aménagé comme Espace de santé
- Ventilation et chauffage centraux
- Système de sécurité
- Éclairage encastré
| Espace | Surface | Durée | Loyer | Type de bien | État | Disponible |
| 2e étage, bureau 230 | 65 m² | Négociable | 256,57 € /m²/an 21,38 € /m²/mois 16 685 € /an 1 390 € /mois | Bureaux/Médical | Construction achevée | Maintenant |
2e étage, bureau 230
| Surface |
| 65 m² |
| Durée |
| Négociable |
| Loyer |
| 256,57 € /m²/an 21,38 € /m²/mois 16 685 € /an 1 390 € /mois |
| Type de bien |
| Bureaux/Médical |
| État |
| Construction achevée |
| Disponible |
| Maintenant |
2e étage, bureau 230
| Surface | 65 m² |
| Durée | Négociable |
| Loyer | 256,57 € /m²/an |
| Type de bien | Bureaux/Médical |
| État | Construction achevée |
| Disponible | Maintenant |
FOR LEASE: RARE MEDICAL OFFICE SPACE IN HIGH-DEMAND DECATUR AREA Prime Location | Directly Across from Emory Decatur Hospital. This exceptional 700 SF medical office space is a 2nd floor space of a physician's medical office that is not in use, and is perfect and move in ready for a small medical/wellness/healthcare business. Renovated in 2018, the 2nd floor consists of 4 exam rooms, private bathroom and open area, with Central Heat/Air, and its own backdoor private entrance. Lease includes all maintenance, utilities, wifi and janitorial services. High Visibility & Traffic – Located on a well-traveled corridor. Prime Accessibility – Just minutes from I-85/285, Emory University, and CHOA’s North Druid Hills campus. Modern Interiors – Spacious areas, private offices, exam rooms, and restrooms. Abundant Parking – Ample on-site parking for staff and visitors Thriving Business Hub – Surrounded by medical, dental, and professional service providers. 24Hr Access
- Le loyer comprend les services publics, les services de l’immeuble et les frais immobiliers.
- Entièrement aménagé comme Espace de santé
- Espace en excellent état
- Ventilation et chauffage centraux
- Connectivité Wi-Fi
- Système de sécurité
- Vidéosurveillance
- Éclairage encastré
- CVC disponible en-dehors des heures ouvrables
APERÇU DU BIEN
The Dekalb Oaks office condos are located in an office park at approximately 2784 and 2786 N Decatur Road, Decatur, GA 30033. The complex is an established business park with multiple office and medical suites, governed by a Homeowners Association (HOA). It is conveniently located between Dekalb Industrial Way and Winn Way, a few doors down from a CVS pharmacy, and across the street from the Emory Decatur Hospital area. The location offers high visibility from North Decatur Road and ample free parking for visitors and tenants.
INFORMATIONS SUR L’IMMEUBLE
OCCUPANTS
- ÉTAGE
- NOM DE L’OCCUPANT
- SECTEUR D’ACTIVITÉ
- 1er
- Accelerated Learning Inc.
- Services éducatifs
- 1er
- Belkin and White
- Services professionnels, scientifiques et techniques
- 1er
- Chicory Wealth
- Finance et assurances
- 1er
- Joseph M Winter Attorney
- Services professionnels, scientifiques et techniques
- 2e
- Medical Acupuncture Nutrition
- Santé et assistance sociale
- 1er
- Peters Rubin & Chitfield
- Services professionnels, scientifiques et techniques
- 2e
- R Stephen Roberts Pc
- Services professionnels, scientifiques et techniques
Présenté par
Jay Gandhi
Medical Office | 2786 N Decatur Rd
Hum, une erreur s’est produite lors de l’envoi de votre message. Veuillez réessayer.
Merci ! Votre message a été envoyé.




