Connectez-vous/S’inscrire
Votre e-mail a été envoyé.
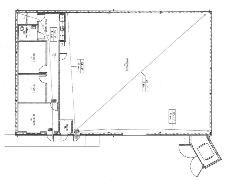
273 Rostan Ct Industriel/Logistique 424 m² À vendre Royse City, TX 75189 535 713 € (1 262,06 €/m²)



Certaines informations ont été traduites automatiquement.
INFORMATIONS PRINCIPALES SUR L'INVESTISSEMENT
- New Buildings
- High Roof
- Sewer
- Flex space - Great For Service Business
- Great Location
RÉSUMÉ ANALYTIQUE
For Sale As Is Shell - Building On the right
About 4569 Sqft
Owner Financing Available
Framing on inside is already in place
Flex space
call or text for info 214-869-4674
**FOR SALE: BRAND NEW FLEX WAREHOUSE IN FAST-GROWING ROYSE CITY, TX**
Owner financing Available
Unlock a rare investment or owner-user opportunity with this brand-new flex warehouse located in the rapidly growing Royse City submarket, part of the booming Dallas-Fort Worth metroplex. Situated at **273 Rostan Ct**, this pristine industrial property combines the versatility of flex space with modern construction, ample parking, and strategic location — ideal for light industrial users, distributors, contractors, or businesses looking for a headquarters facility.
### ? PROPERTY HIGHLIGHTS
* **4,950± SF Total Space**
* **Brand New Construction **
* **Clear Height: 16 FT**
* **Grade-Level Drive-In Doors**
* **4:1 Parking Ratio**
* **Zoned for Commercial-Industrial Use**
* **Metal Construction with Steel Framing**
* **Situated on 0.52 Acres**
* **Fully Fenced Lot with Gated Access**
* **Easy Access to I-30 & TX-66**
* **Located in a Business-Friendly, Low-Tax Environment**
---
### ??? BUILDING & SITE DETAILS
This steel-frame, metal-clad warehouse offers high utility for a variety of commercial uses. The property includes **4,950 square feet** of interior space with flexible layout potential, ideal for build-to-suit office or showroom space. It features **ample natural light**, **insulated walls**, and efficient clear-span design for uninterrupted workflow.
Key building specifications:
* **Typical Floor Size:** 4,950 SF
* **Construction Type:** Metal Building System
* **Ceiling Height:** 16 FT
* **Loading:** 2 Grade-Level Doors
* **Power:** Heavy 3-Phase (Buyer to verify)
* **HVAC:** Ready for install in designated office area
* **Utilities:** Water, Sewer, Electric, Lighting
---
### ?? PARKING & ACCESS
The warehouse sits on a **0.52-acre lot**, providing a generous **4:1 parking ratio**, rare for this size class. The property features:
* **10+ Striped Surface Parking Spaces**
* **Paved Lot with Driveway Access**
* **Fenced Perimeter with Entry Gate**
* **Truck Circulation Room**
Its corner-lot location offers excellent truck maneuverability and potential for secure outdoor storage or expansion (buyer to verify with city zoning).
---
### ?? LOCATION BENEFITS
Royse City is one of the fastest-growing cities in North Texas, strategically located between Rockwall and Greenville along the **I-30 Corridor**. This location benefits from:
* **5 Minutes to I-30**
* **40 Minutes to Downtown Dallas**
* **Access to a Growing Labor Pool**
* **Close to Major Distribution Hubs**
Positioned in a business-friendly environment with low property taxes and no city income tax, this site provides both affordability and long-term upside.
---
### ?? INVESTMENT POTENTIAL
This property is perfect for:
* **Owner-Users** looking to control their workspace while building equity
* **Investors** seeking long-term cash flow from quality industrial tenants
* **Contractors or Builders** wanting a home base for field ops and equipment
* **Distributors or E-commerce Fulfillment** centers that require efficient logistics
It can also be leased out for steady income in a high-demand area where flex/warehouse inventory is limited.
---
---
### ?? CONTACT INFORMATION
- Call or text 214-869-4674
---
### TAKEAWAY
Whether you're an investor eyeing passive income or a business owner ready to plant roots in one of Texas’ most promising regions, **255 Rostan Ct** is the blank-slate flex space you’ve been looking for. With high visibility, modern amenities, and outstanding accessibility, this warehouse checks all the boxes for efficiency, growth, and long-term value.
**Schedule a tour today — don’t miss out on this brand-new industrial opportunity in Royse City!**
About 4569 Sqft
Owner Financing Available
Framing on inside is already in place
Flex space
call or text for info 214-869-4674
**FOR SALE: BRAND NEW FLEX WAREHOUSE IN FAST-GROWING ROYSE CITY, TX**
Owner financing Available
Unlock a rare investment or owner-user opportunity with this brand-new flex warehouse located in the rapidly growing Royse City submarket, part of the booming Dallas-Fort Worth metroplex. Situated at **273 Rostan Ct**, this pristine industrial property combines the versatility of flex space with modern construction, ample parking, and strategic location — ideal for light industrial users, distributors, contractors, or businesses looking for a headquarters facility.
### ? PROPERTY HIGHLIGHTS
* **4,950± SF Total Space**
* **Brand New Construction **
* **Clear Height: 16 FT**
* **Grade-Level Drive-In Doors**
* **4:1 Parking Ratio**
* **Zoned for Commercial-Industrial Use**
* **Metal Construction with Steel Framing**
* **Situated on 0.52 Acres**
* **Fully Fenced Lot with Gated Access**
* **Easy Access to I-30 & TX-66**
* **Located in a Business-Friendly, Low-Tax Environment**
---
### ??? BUILDING & SITE DETAILS
This steel-frame, metal-clad warehouse offers high utility for a variety of commercial uses. The property includes **4,950 square feet** of interior space with flexible layout potential, ideal for build-to-suit office or showroom space. It features **ample natural light**, **insulated walls**, and efficient clear-span design for uninterrupted workflow.
Key building specifications:
* **Typical Floor Size:** 4,950 SF
* **Construction Type:** Metal Building System
* **Ceiling Height:** 16 FT
* **Loading:** 2 Grade-Level Doors
* **Power:** Heavy 3-Phase (Buyer to verify)
* **HVAC:** Ready for install in designated office area
* **Utilities:** Water, Sewer, Electric, Lighting
---
### ?? PARKING & ACCESS
The warehouse sits on a **0.52-acre lot**, providing a generous **4:1 parking ratio**, rare for this size class. The property features:
* **10+ Striped Surface Parking Spaces**
* **Paved Lot with Driveway Access**
* **Fenced Perimeter with Entry Gate**
* **Truck Circulation Room**
Its corner-lot location offers excellent truck maneuverability and potential for secure outdoor storage or expansion (buyer to verify with city zoning).
---
### ?? LOCATION BENEFITS
Royse City is one of the fastest-growing cities in North Texas, strategically located between Rockwall and Greenville along the **I-30 Corridor**. This location benefits from:
* **5 Minutes to I-30**
* **40 Minutes to Downtown Dallas**
* **Access to a Growing Labor Pool**
* **Close to Major Distribution Hubs**
Positioned in a business-friendly environment with low property taxes and no city income tax, this site provides both affordability and long-term upside.
---
### ?? INVESTMENT POTENTIAL
This property is perfect for:
* **Owner-Users** looking to control their workspace while building equity
* **Investors** seeking long-term cash flow from quality industrial tenants
* **Contractors or Builders** wanting a home base for field ops and equipment
* **Distributors or E-commerce Fulfillment** centers that require efficient logistics
It can also be leased out for steady income in a high-demand area where flex/warehouse inventory is limited.
---
---
### ?? CONTACT INFORMATION
- Call or text 214-869-4674
---
### TAKEAWAY
Whether you're an investor eyeing passive income or a business owner ready to plant roots in one of Texas’ most promising regions, **255 Rostan Ct** is the blank-slate flex space you’ve been looking for. With high visibility, modern amenities, and outstanding accessibility, this warehouse checks all the boxes for efficiency, growth, and long-term value.
**Schedule a tour today — don’t miss out on this brand-new industrial opportunity in Royse City!**
INFORMATIONS SUR L’IMMEUBLE
CARACTÉRISTIQUES
- Réception
- Espace d’entreposage
- Climatisation
SERVICES PUBLICS
- Éclairage
- Gaz
- Eau
- Égout
- Chauffage
1 1
TAXES FONCIÈRES
| Numéro de parcelle | 65343 | Évaluation des aménagements | 99 103 € |
| Évaluation du terrain | 115 296 € | Évaluation totale | 214 399 € |
TAXES FONCIÈRES
Numéro de parcelle
65343
Évaluation du terrain
115 296 €
Évaluation des aménagements
99 103 €
Évaluation totale
214 399 €
1 sur 14
VIDÉOS
VISITE EXTÉRIEURE 3D MATTERPORT
VISITE 3D
PHOTOS
STREET VIEW
RUE
CARTE
1 sur 1
Présenté par
Pather Properties Llc
273 Rostan Ct
Vous êtes déjà membre ? Connectez-vous
Hum, une erreur s’est produite lors de l’envoi de votre message. Veuillez réessayer.
Merci ! Votre message a été envoyé.
