Votre e-mail a été envoyé.
Colonial Office Center 2728 Colonial Ave SW Bureau | 11–356 m² | À louer | Roanoke, VA 24015



Certaines informations ont été traduites automatiquement.
INFORMATIONS PRINCIPALES
- Emplacement de choix juste à côté de l'Interstate 581
- Entre le centre commercial Towers et le VA Western College
TOUS LES ESPACES DISPONIBLES(10)
Afficher les loyers en
- ESPACE
- SURFACE
- DURÉE
- LOYER
- TYPE DE BIEN
- ÉTAT
- DISPONIBLE
Suite 103 is 540 square feet of usable space and 594 square feet of rentable space. This is one large open room that measures 30' x 18'. To this space we can add an additional room that is 10' x 10' and another additional room that is 12' x 10'.
- Le loyer comprend les services publics, les services de l’immeuble et les frais immobiliers.
- Disposition open space
- Entièrement aménagé comme Bureau standard
- Espace en excellent état
This space is 481 square feet of usable space and 504 square feet of rentable space. There is a reception room and a large office area.
- Le loyer comprend les services publics, les services de l’immeuble et les frais immobiliers.
- Espace en excellent état
This is a one room office that measures 12' x 10'. It is 120 square feet of usable space and 132 square feet of rentable space. The rent is $17.95 per square foot or $197.45 per month. This office does not have any window space.
- Le loyer comprend les services publics, les services de l’immeuble et les frais immobiliers.
- Disposition open space
- Entièrement aménagé comme Bureau standard
- Espace en excellent état
Excellent space just as you walk in the main entrance of the building. See the attached floor plan. Nice large windows on the front of the space. 3 private offices and open central core.
- Le loyer comprend les services publics, les services de l’immeuble et les frais immobiliers.
- Location Right Off Of Building Entrance
- Disposition open space
This is a nice one room office that measures 14' x 10'. The usable square footage is 140 square feet and the rentable square footage is 154 square feet after the common area factor.
- Le loyer comprend les services publics, les services de l’immeuble et les frais immobiliers.
- Disposition open space
- Location de services complets avec services publics et conciergerie
- Entièrement aménagé comme Bureau standard
- Espace en excellent état
- Location de services complets avec services publics et conciergerie
This space is a one room office that measures 12' x 10'. There is a 10% common area factor at Colonial so the rent is based on 120 usable square feet and 132 square feet of rentable space.
- Le loyer comprend les services publics, les services de l’immeuble et les frais immobiliers.
- Disposition open space
- Espace en excellent état
- Entièrement aménagé comme Bureau standard
- 1 bureau privé
This is a large one room office at Colonial Office Center. The space is 260 square feet of usable space and 296 square feet of rentable space.
- Le loyer comprend les services publics, les services de l’immeuble et les frais immobiliers.
- Disposition open space
- Grande salle ouverte
- Entièrement aménagé comme Bureau standard
- Espace en excellent état
- Grande salle ouverte
This is a nice two room suite. The usable square footage is 304 square feet. The rentable square footage is 335 square feet. The monthly rent is $445.27
- Le loyer comprend les services publics, les services de l’immeuble et les frais immobiliers.
This space is located on the front of the building with a great window. Reception area, conference area and 1 private office. A great small office space located just off of I-581. This space is 437 square feet of usable space and 481 square feet of rentable space.
- Le loyer comprend les services publics, les services de l’immeuble et les frais immobiliers.
- Large Windows
- Principalement open space
This is a two room suite with amazing windows. The space is 442 square feet of usable space and 486 square feet of rentable space. Rent is $727 per month and all utilities and janitor service is included. The layout is a reception area and a large office area that is 23' x 12'.
- Le loyer comprend les services publics, les services de l’immeuble et les frais immobiliers.
- Principalement open space
- Espace vitré exceptionnel
- Entièrement aménagé comme Bureau de services professionnels
- Espace en excellent état
| Espace | Surface | Durée | Loyer | Type de bien | État | Disponible |
| 1er étage, bureau 103 | 50 – 71 m² | 1-10 Ans | 137,85 € /m²/an 11,49 € /m²/mois 9 733 € /an 811,07 € /mois | Bureau | Construction achevée | Maintenant |
| 1er étage, bureau 104 & 106 | 43 m² | 1 Année | 147,07 € /m²/an 12,26 € /m²/mois 6 258 € /an 521,47 € /mois | Bureau | - | Maintenant |
| 1er étage, bureau 115 | 11 m² | 1-10 Ans | 165,51 € /m²/an 13,79 € /m²/mois 1 845 € /an 153,76 € /mois | Bureau | Construction achevée | Maintenant |
| 1er étage, bureau 12 | 73 m² | 1 Année | 147,07 € /m²/an 12,26 € /m²/mois 10 794 € /an 899,48 € /mois | Bureau | - | 30 jours |
| 1er étage, bureau 120 | 13 m² | 1-10 Ans | 165,51 € /m²/an 13,79 € /m²/mois 2 153 € /an 179,39 € /mois | Bureau | Construction achevée | Maintenant |
| 1er étage, bureau 121 | 11 m² | 1-10 Ans | 165,51 € /m²/an 13,79 € /m²/mois 1 845 € /an 153,76 € /mois | Bureau | Construction achevée | Maintenant |
| 1er étage, bureau 123 | 24 m² | 1-10 Ans | 165,51 € /m²/an 13,79 € /m²/mois 3 998 € /an 333,15 € /mois | Bureau | Construction achevée | Maintenant |
| 1er étage, bureau 15 | 28 m² | 1-10 Ans | 147,07 € /m²/an 12,26 € /m²/mois 4 154 € /an 346,13 € /mois | Bureau | - | Maintenant |
| 1er étage, bureau 2 | 41 m² | 1-10 Ans | 165,51 € /m²/an 13,79 € /m²/mois 6 719 € /an 559,95 € /mois | Bureau | - | 30 jours |
| 1er étage, bureau 20 | 41 m² | 1-10 Ans | 165,51 € /m²/an 13,79 € /m²/mois 6 796 € /an 566,35 € /mois | Bureau | Construction achevée | Maintenant |
1er étage, bureau 103
| Surface |
| 50 – 71 m² |
| Durée |
| 1-10 Ans |
| Loyer |
| 137,85 € /m²/an 11,49 € /m²/mois 9 733 € /an 811,07 € /mois |
| Type de bien |
| Bureau |
| État |
| Construction achevée |
| Disponible |
| Maintenant |
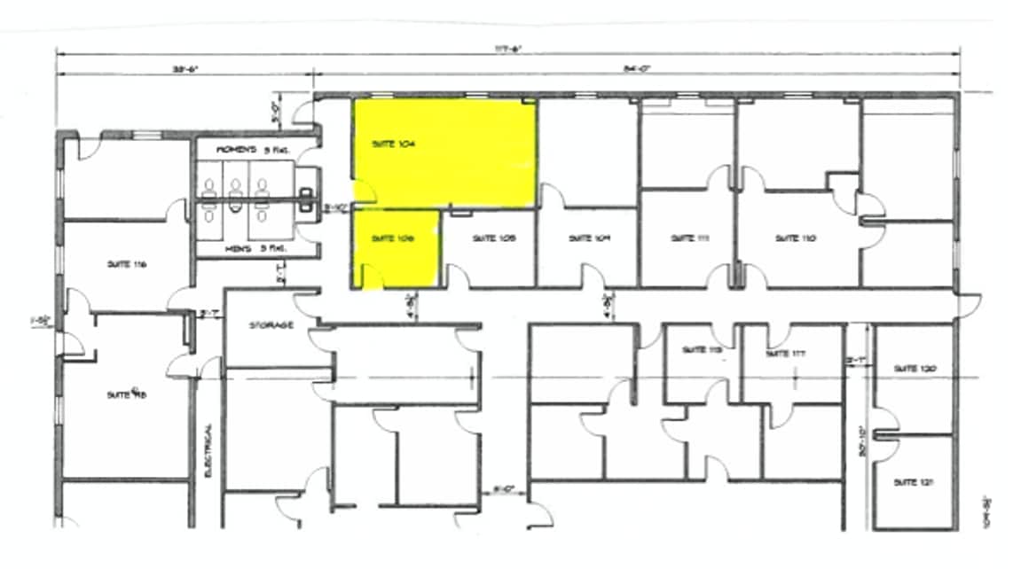
1er étage, bureau 104 & 106
| Surface |
| 43 m² |
| Durée |
| 1 Année |
| Loyer |
| 147,07 € /m²/an 12,26 € /m²/mois 6 258 € /an 521,47 € /mois |
| Type de bien |
| Bureau |
| État |
| - |
| Disponible |
| Maintenant |
1er étage, bureau 115
| Surface |
| 11 m² |
| Durée |
| 1-10 Ans |
| Loyer |
| 165,51 € /m²/an 13,79 € /m²/mois 1 845 € /an 153,76 € /mois |
| Type de bien |
| Bureau |
| État |
| Construction achevée |
| Disponible |
| Maintenant |
1er étage, bureau 12
| Surface |
| 73 m² |
| Durée |
| 1 Année |
| Loyer |
| 147,07 € /m²/an 12,26 € /m²/mois 10 794 € /an 899,48 € /mois |
| Type de bien |
| Bureau |
| État |
| - |
| Disponible |
| 30 jours |
1er étage, bureau 120
| Surface |
| 13 m² |
| Durée |
| 1-10 Ans |
| Loyer |
| 165,51 € /m²/an 13,79 € /m²/mois 2 153 € /an 179,39 € /mois |
| Type de bien |
| Bureau |
| État |
| Construction achevée |
| Disponible |
| Maintenant |
1er étage, bureau 121
| Surface |
| 11 m² |
| Durée |
| 1-10 Ans |
| Loyer |
| 165,51 € /m²/an 13,79 € /m²/mois 1 845 € /an 153,76 € /mois |
| Type de bien |
| Bureau |
| État |
| Construction achevée |
| Disponible |
| Maintenant |
1er étage, bureau 123
| Surface |
| 24 m² |
| Durée |
| 1-10 Ans |
| Loyer |
| 165,51 € /m²/an 13,79 € /m²/mois 3 998 € /an 333,15 € /mois |
| Type de bien |
| Bureau |
| État |
| Construction achevée |
| Disponible |
| Maintenant |
1er étage, bureau 15
| Surface |
| 28 m² |
| Durée |
| 1-10 Ans |
| Loyer |
| 147,07 € /m²/an 12,26 € /m²/mois 4 154 € /an 346,13 € /mois |
| Type de bien |
| Bureau |
| État |
| - |
| Disponible |
| Maintenant |
1er étage, bureau 2
| Surface |
| 41 m² |
| Durée |
| 1-10 Ans |
| Loyer |
| 165,51 € /m²/an 13,79 € /m²/mois 6 719 € /an 559,95 € /mois |
| Type de bien |
| Bureau |
| État |
| - |
| Disponible |
| 30 jours |
1er étage, bureau 20
| Surface |
| 41 m² |
| Durée |
| 1-10 Ans |
| Loyer |
| 165,51 € /m²/an 13,79 € /m²/mois 6 796 € /an 566,35 € /mois |
| Type de bien |
| Bureau |
| État |
| Construction achevée |
| Disponible |
| Maintenant |
1er étage, bureau 103
| Surface | 50 – 71 m² |
| Durée | 1-10 Ans |
| Loyer | 137,85 € /m²/an |
| Type de bien | Bureau |
| État | Construction achevée |
| Disponible | Maintenant |
Suite 103 is 540 square feet of usable space and 594 square feet of rentable space. This is one large open room that measures 30' x 18'. To this space we can add an additional room that is 10' x 10' and another additional room that is 12' x 10'.
- Le loyer comprend les services publics, les services de l’immeuble et les frais immobiliers.
- Entièrement aménagé comme Bureau standard
- Disposition open space
- Espace en excellent état
1er étage, bureau 104 & 106
| Surface | 43 m² |
| Durée | 1 Année |
| Loyer | 147,07 € /m²/an |
| Type de bien | Bureau |
| État | - |
| Disponible | Maintenant |
This space is 481 square feet of usable space and 504 square feet of rentable space. There is a reception room and a large office area.
- Le loyer comprend les services publics, les services de l’immeuble et les frais immobiliers.
- Espace en excellent état
1er étage, bureau 115
| Surface | 11 m² |
| Durée | 1-10 Ans |
| Loyer | 165,51 € /m²/an |
| Type de bien | Bureau |
| État | Construction achevée |
| Disponible | Maintenant |
This is a one room office that measures 12' x 10'. It is 120 square feet of usable space and 132 square feet of rentable space. The rent is $17.95 per square foot or $197.45 per month. This office does not have any window space.
- Le loyer comprend les services publics, les services de l’immeuble et les frais immobiliers.
- Entièrement aménagé comme Bureau standard
- Disposition open space
- Espace en excellent état
1er étage, bureau 12
| Surface | 73 m² |
| Durée | 1 Année |
| Loyer | 147,07 € /m²/an |
| Type de bien | Bureau |
| État | - |
| Disponible | 30 jours |
Excellent space just as you walk in the main entrance of the building. See the attached floor plan. Nice large windows on the front of the space. 3 private offices and open central core.
- Le loyer comprend les services publics, les services de l’immeuble et les frais immobiliers.
- Disposition open space
- Location Right Off Of Building Entrance
1er étage, bureau 120
| Surface | 13 m² |
| Durée | 1-10 Ans |
| Loyer | 165,51 € /m²/an |
| Type de bien | Bureau |
| État | Construction achevée |
| Disponible | Maintenant |
This is a nice one room office that measures 14' x 10'. The usable square footage is 140 square feet and the rentable square footage is 154 square feet after the common area factor.
- Le loyer comprend les services publics, les services de l’immeuble et les frais immobiliers.
- Entièrement aménagé comme Bureau standard
- Disposition open space
- Espace en excellent état
- Location de services complets avec services publics et conciergerie
- Location de services complets avec services publics et conciergerie
1er étage, bureau 121
| Surface | 11 m² |
| Durée | 1-10 Ans |
| Loyer | 165,51 € /m²/an |
| Type de bien | Bureau |
| État | Construction achevée |
| Disponible | Maintenant |
This space is a one room office that measures 12' x 10'. There is a 10% common area factor at Colonial so the rent is based on 120 usable square feet and 132 square feet of rentable space.
- Le loyer comprend les services publics, les services de l’immeuble et les frais immobiliers.
- Entièrement aménagé comme Bureau standard
- Disposition open space
- 1 bureau privé
- Espace en excellent état
1er étage, bureau 123
| Surface | 24 m² |
| Durée | 1-10 Ans |
| Loyer | 165,51 € /m²/an |
| Type de bien | Bureau |
| État | Construction achevée |
| Disponible | Maintenant |
This is a large one room office at Colonial Office Center. The space is 260 square feet of usable space and 296 square feet of rentable space.
- Le loyer comprend les services publics, les services de l’immeuble et les frais immobiliers.
- Entièrement aménagé comme Bureau standard
- Disposition open space
- Espace en excellent état
- Grande salle ouverte
- Grande salle ouverte
1er étage, bureau 15
| Surface | 28 m² |
| Durée | 1-10 Ans |
| Loyer | 147,07 € /m²/an |
| Type de bien | Bureau |
| État | - |
| Disponible | Maintenant |
This is a nice two room suite. The usable square footage is 304 square feet. The rentable square footage is 335 square feet. The monthly rent is $445.27
- Le loyer comprend les services publics, les services de l’immeuble et les frais immobiliers.
1er étage, bureau 2
| Surface | 41 m² |
| Durée | 1-10 Ans |
| Loyer | 165,51 € /m²/an |
| Type de bien | Bureau |
| État | - |
| Disponible | 30 jours |
This space is located on the front of the building with a great window. Reception area, conference area and 1 private office. A great small office space located just off of I-581. This space is 437 square feet of usable space and 481 square feet of rentable space.
- Le loyer comprend les services publics, les services de l’immeuble et les frais immobiliers.
- Principalement open space
- Large Windows
1er étage, bureau 20
| Surface | 41 m² |
| Durée | 1-10 Ans |
| Loyer | 165,51 € /m²/an |
| Type de bien | Bureau |
| État | Construction achevée |
| Disponible | Maintenant |
This is a two room suite with amazing windows. The space is 442 square feet of usable space and 486 square feet of rentable space. Rent is $727 per month and all utilities and janitor service is included. The layout is a reception area and a large office area that is 23' x 12'.
- Le loyer comprend les services publics, les services de l’immeuble et les frais immobiliers.
- Entièrement aménagé comme Bureau de services professionnels
- Principalement open space
- Espace en excellent état
- Espace vitré exceptionnel
APERÇU DU BIEN
Situé sur Colonial Avenue, juste à côté de la sortie Colonial de l'Interstate 581 entre le centre commercial Towers et le Virginia Western College. Ce bâtiment offre à vos clients la commodité qu'il est difficile de trouver dans les bureaux. Le taux de location est de 15,95$ à 17,95$ le pied carré sur la base des pieds carrés louables et cela comprend les services publics et les services de conciergerie. Un facteur de superficie commune de 10 % est ajouté à la superficie utilisable pour déterminer la superficie louable.
- Ligne d’autobus
INFORMATIONS SUR L’IMMEUBLE
Présenté par
Colonial Office Center | 2728 Colonial Ave SW
Hum, une erreur s’est produite lors de l’envoi de votre message. Veuillez réessayer.
Merci ! Votre message a été envoyé.








