Votre e-mail a été envoyé.
Certaines informations ont été traduites automatiquement.
Informations principales
- Le Crystal Building propose des espaces de bureaux privés modernes et rénovés (500 à 1 500 pieds carrés) aux tarifs de location les plus abordables de Manhattan.
- Tous les bureaux bénéficient d'une lumière naturelle abondante orientée au nord ou au sud avec jusqu'à sept suites de bureaux et deux salles de bains communes à chaque étage.
- Rejoignez un bâtiment presque entièrement occupé avec un mélange dynamique de locataires de mode, de technologie, d'organisations à but non lucratif, d'architecture, d'ingénierie et d'autres secteurs industriels.
- Situé sur la 38e rue entre la 7e et la 8e Avenue : à distance de marche de Penn Station, de Port Authority, de Bryant Park, de Hudson Yards et des principales lignes de métro.
- Les bureaux sont équipés d'une connexion Internet par fibre optique avec Verizon et Pilot et comprennent l'accès à un garde-manger et à une salle de conférence communs.
- Une tarification transparente et un processus de location numérique rapide. Durée de location flexible d'un à cinq ans avec possibilité d'agrandissement du bâtiment.
Tous les espace disponibles(1)
Afficher les loyers en
- Espace
- Surface
- Durée
- Loyer
- Type de bien
- Aménagement
- Disponible
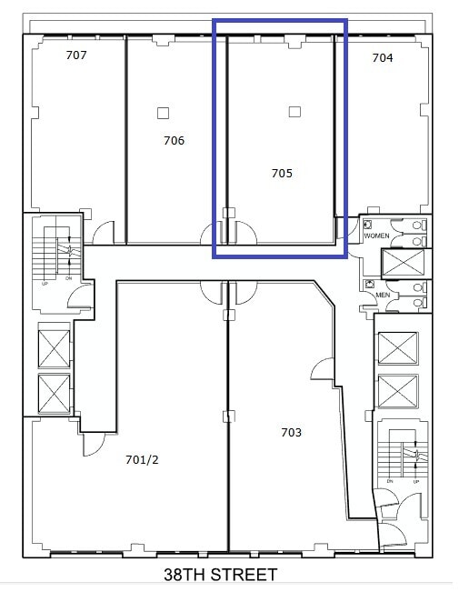
Features an open rectangle floorplan, wood floors and LED lighting. South facing natural light facing the rear of the building. Available for office or showroom use in a vibrant and nearly fully-occupied building in the garment district. 24/7 access in a well-maintained, quiet building ideal for small business, designers and fashion showrooms. Seven offices per floor with two shared bathrooms. Includes access to the building pantry and a shared conference room on the 11th floor for internal and external meetings.
- Il est possible que le loyer annoncé ne comprenne pas certains services publics, services d’immeuble et frais immobiliers.
- Principalement open space
- Partiellement aménagé comme Bureau standard
| Espace | Surface | Durée | Loyer | Type de bien | Aménagement | Disponible |
| 5e étage, bureau 507 | 90 m² | 1-10 Ans | 313,23 € /m²/an 26,10 € /m²/mois 28 168 € /an 2 347 € /mois | Bureau | Construction partielle | Maintenant |
5e étage, bureau 507
| Surface |
| 90 m² |
| Durée |
| 1-10 Ans |
| Loyer |
| 313,23 € /m²/an 26,10 € /m²/mois 28 168 € /an 2 347 € /mois |
| Type de bien |
| Bureau |
| Aménagement |
| Construction partielle |
| Disponible |
| Maintenant |
5e étage, bureau 507
| Surface | 90 m² |
| Durée | 1-10 Ans |
| Loyer | 313,23 € /m²/an |
| Type de bien | Bureau |
| Aménagement | Construction partielle |
| Disponible | Maintenant |
Features an open rectangle floorplan, wood floors and LED lighting. South facing natural light facing the rear of the building. Available for office or showroom use in a vibrant and nearly fully-occupied building in the garment district. 24/7 access in a well-maintained, quiet building ideal for small business, designers and fashion showrooms. Seven offices per floor with two shared bathrooms. Includes access to the building pantry and a shared conference room on the 11th floor for internal and external meetings.
- Il est possible que le loyer annoncé ne comprenne pas certains services publics, services d’immeuble et frais immobiliers.
- Partiellement aménagé comme Bureau standard
- Principalement open space
Aperçu du bien
Le Crystal Building est un immeuble de bureaux de 17 étages situé au cœur du quartier vestimentaire de New York, sur la 38e rue. Cette propriété bien entretenue propose des espaces de bureaux modernes et rénovés aux prix les plus abordables de la région. Les locataires bénéficient d'une distance de marche pratique de Penn Station, de l'autorité portuaire, de Bryant Park, de Hudson Yards et des principales lignes de métro. Tous les bureaux offrent une lumière naturelle orientée au nord ou au sud, un éclairage LED, des sols en béton poli et un accès à un garde-manger commun et à une salle de conférence disponibles pour les réunions internes et externes. Il y a jusqu'à sept suites de bureaux par étage avec deux salles de bains communes. Le Crystal Building offre aux locataires la possibilité de rejoindre un bâtiment presque entièrement occupé avec un mélange dynamique de locataires de mode, de technologie, d'organisations à but non lucratif, d'architecture, d'ingénierie et d'autres secteurs industriels. Bryant Park, ses restaurants réputés et ses divertissements de renommée mondiale ne sont qu'à quelques minutes. Aucuns frais pour les demandes directes. La totalité de la commission est versée à un courtier externe.
- Accès 24 h/24
- Métro
- Système de sécurité
- Internet par fibre optique
Informations sur l’immeuble
Présenté par
The Crystal Building | 262 W 38th St
Hum, une erreur s’est produite lors de l’envoi de votre message. Veuillez réessayer.
Merci ! Votre message a été envoyé.






