Votre e-mail a été envoyé.
Certaines informations ont été traduites automatiquement.
Informations principales sur le parc
- Prime location minutes from FLL Airport and Port Everglades, and excellent highway access to I-95, I-595, and US-1
- Flexible configurations for office, retail, and warehouse ne
- Fully fenced, paved yard with bonus shade structure. Secure property with grade-level loading and ample parking.
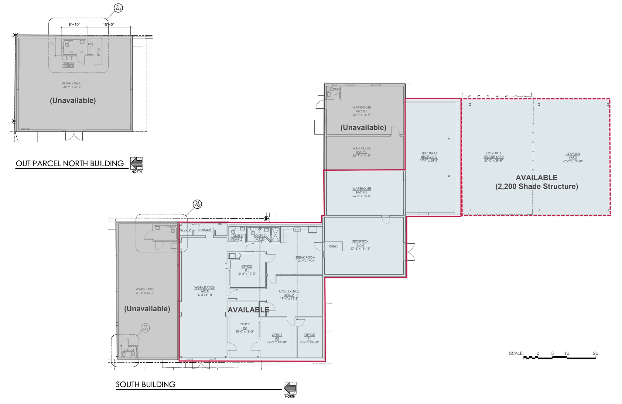
- South building: 3,800 SF office, 550 SF warehouse, +2,200 SF shade structure (bonus space)
- 6 drive-in loading doors, 14' clear ceilings, heavy 3-phase power.
Faits sur le parc
Caractéristiques
- Terrain d’angle
- Terrain clôturé
Tous les espace disponibles(1)
Afficher les loyers en
- Espace
- Surface
- Durée
- Loyer
- Type de bien
- Aménagement
- Disponible
4,350 SF of office/warehouse and yard space available for lease. South building: 3,800 SF office, 550 SF warehouse, +2,200 SF shade structure (bonus space), 6 drive-in loading doors, 14' clear ceiling height, Heavy 3-phase power, 12 surface parking spaces (1.33/1,000 SF ratio), Zoned for industrial use; ideal for light distribution or service operations.
- Il est possible que le loyer annoncé ne comprenne pas certains services publics, services d’immeuble et frais immobiliers.
- 6 accès plain-pied
- Comprend 353 m² d’espace de bureau dédié
| Espace | Surface | Durée | Loyer | Type de bien | Aménagement | Disponible |
| 1er étage | 404 m² | Négociable | 229,51 € /m²/an 19,13 € /m²/mois 92 753 € /an 7 729 € /mois | Local d’activités | - | Maintenant |
2600 SW 3rd Ave - 1er étage
2600 SW 3rd Ave - 1er étage
| Surface | 404 m² |
| Durée | Négociable |
| Loyer | 229,51 € /m²/an |
| Type de bien | Local d’activités |
| Aménagement | - |
| Disponible | Maintenant |
4,350 SF of office/warehouse and yard space available for lease. South building: 3,800 SF office, 550 SF warehouse, +2,200 SF shade structure (bonus space), 6 drive-in loading doors, 14' clear ceiling height, Heavy 3-phase power, 12 surface parking spaces (1.33/1,000 SF ratio), Zoned for industrial use; ideal for light distribution or service operations.
- Il est possible que le loyer annoncé ne comprenne pas certains services publics, services d’immeuble et frais immobiliers.
- Comprend 353 m² d’espace de bureau dédié
- 6 accès plain-pied
Vue d’ensemble du parc
Lee & Associates presents a versatile flex building located at 2600 SW 3rd Avenue in Fort Lauderdale just minutes from Port Everglades and Hollywood International airport. The property offers 4,350 square feet of office and industrial space ideal for a range of businesses seeking to be in the heart of Fort Lauderdale. The south building includes 3,800 SF of office with 550 SF warehouse, and an additional 2,200 SF of bonus shade structure. Strategically located in the Croissant Park Blvd section of Fort Lauderdale, this property offers convenient access to major transportation corridors, including Interstate 95, Port Everglades, and Fort Lauderdale-Hollywood International Airport, all within minutes. With a Walk Score of 66 and public transit nearby, the location is ideal for distribution, service-oriented, or light manufacturing businesses seeking proximity to dense residential and commercial hubs within Southeast Broward County.
Présenté par
South Building | Fort Lauderdale, FL 33315
Hum, une erreur s’est produite lors de l’envoi de votre message. Veuillez réessayer.
Merci ! Votre message a été envoyé.






