Votre e-mail a été envoyé.
Certaines informations ont été traduites automatiquement.
Informations principales sur le parc
- San Jose's best value: Position your business alongside the world's leading companies with flexible lease terms on move-in ready spaces.
- Maximum brand visibility: Showcase your company with prominent signage along North First Street, one of Silicon Valley's primary thoroughfares.
- All the amenities: Open-air workspace, lively game room, on-site cafe Flower Flour, and private KINETIC fitness center engage top talent.
- On-site conveniences: EV charging, bike racks, auto detailing, dry cleaning & laundry, and e-waste pickup.
- Industry-leading financial stability: Lease with confidence from a well-capitalized landlord with investment-grade financial strength.
- Prime location: Easy access to 101, 237, 87 and 880 freeways, across from Component Drive light-rail station, less than 1 mile to San Jose airport.
Faits sur le parc
| Espace total disponible | 5 111 m² | Type de parc | Parc de bureaux |
| Max. Contigu | 1 697 m² |
| Espace total disponible | 5 111 m² |
| Max. Contigu | 1 697 m² |
| Type de parc | Parc de bureaux |
Tous les espaces disponibles(9)
Afficher les loyers en
- Espace
- Surface
- Durée
- Loyer
- Type de bien
- Aménagement
- Disponible
office space for lease!
- Le loyer comprend les services publics, les services de l’immeuble et les frais immobiliers.
- Principalement open space
- 2 bureaux privés
- Plafonds finis: 3,05 mètres
- Toilettes privées
- Entièrement aménagé comme Bureau standard
- Convient pour 13 à 42 personnes
- 2 postes de travail
- Espace en excellent état
- Natural Lighting
- Le loyer comprend les services publics, les services de l’immeuble et les frais immobiliers.
- Principalement open space
- Espace en excellent état
- Entièrement aménagé comme Bureau standard
- Convient pour 17 à 53 personnes
- Peut être associé à un ou plusieurs espaces supplémentaires pour obtenir jusqu’à 1 697 m² d’espace adjacent.
- Le loyer comprend les services publics, les services de l’immeuble et les frais immobiliers.
- Principalement open space
- Espace en excellent état
- Entièrement aménagé comme Bureau standard
- Convient pour 7 à 22 personnes
- Peut être associé à un ou plusieurs espaces supplémentaires pour obtenir jusqu’à 1 697 m² d’espace adjacent.
- Le loyer comprend les services publics, les services de l’immeuble et les frais immobiliers.
- Principalement open space
- Espace en excellent état
- Entièrement aménagé comme Bureau standard
- Convient pour 12 à 37 personnes
- Peut être associé à un ou plusieurs espaces supplémentaires pour obtenir jusqu’à 1 697 m² d’espace adjacent.
- Le loyer comprend les services publics, les services de l’immeuble et les frais immobiliers.
- Principalement open space
- Espace en excellent état
- Entièrement aménagé comme Bureau standard
- Convient pour 12 à 36 personnes
- Peut être associé à un ou plusieurs espaces supplémentaires pour obtenir jusqu’à 1 697 m² d’espace adjacent.
| Espace | Surface | Durée | Loyer | Type de bien | Aménagement | Disponible |
| 1er étage, bureau 100 | 482 m² | Négociable | 435,16 € /m²/an 36,26 € /m²/mois 209 536 € /an 17 461 € /mois | Bureau | Construction achevée | Maintenant |
| 2e étage, bureau 200 | 614 m² | Négociable | 435,16 € /m²/an 36,26 € /m²/mois 267 347 € /an 22 279 € /mois | Bureau | Construction achevée | 01/06/2026 |
| 2e étage, bureau 210 | 249 m² | Négociable | 435,16 € /m²/an 36,26 € /m²/mois 108 143 € /an 9 012 € /mois | Bureau | Construction achevée | 01/06/2026 |
| 2e étage, bureau 220 | 425 m² | Négociable | 435,16 € /m²/an 36,26 € /m²/mois 185 036 € /an 15 420 € /mois | Bureau | Construction achevée | 01/06/2026 |
| 2e étage, bureau 230 | 409 m² | Négociable | 435,16 € /m²/an 36,26 € /m²/mois 178 123 € /an 14 844 € /mois | Bureau | Construction achevée | 01/06/2026 |
2590 N 1st St - 1er étage – Bureau 100
2590 N 1st St - 2e étage – Bureau 200
2590 N 1st St - 2e étage – Bureau 210
2590 N 1st St - 2e étage – Bureau 220
2590 N 1st St - 2e étage – Bureau 230
- Espace
- Surface
- Durée
- Loyer
- Type de bien
- Aménagement
- Disponible
2 private offices, 1 IT closet (with supplement 24/7 HVAC, Open workspace area
- Le loyer comprend les services publics, les services de l’immeuble et les frais immobiliers.
- Principalement open space
- 2 bureaux privés
- Entièrement aménagé comme Bureau standard
- Convient pour 3 à 10 personnes
- Espace en excellent état
• Private Offices • 2 Conference Rooms • Reception Area • Break Room • Server Room • Storage Room • Open Workspace • Ask Rate of $4.00/SF includes $0.25/SF for Flex Furniture
- Le loyer comprend les services publics, les services de l’immeuble et les frais immobiliers.
- Convient pour 12 à 36 personnes
| Espace | Surface | Durée | Loyer | Type de bien | Aménagement | Disponible |
| 2e étage, bureau 230 | 111 m² | Négociable | 435,16 € /m²/an 36,26 € /m²/mois 48 109 € /an 4 009 € /mois | Bureau | Construction achevée | Maintenant |
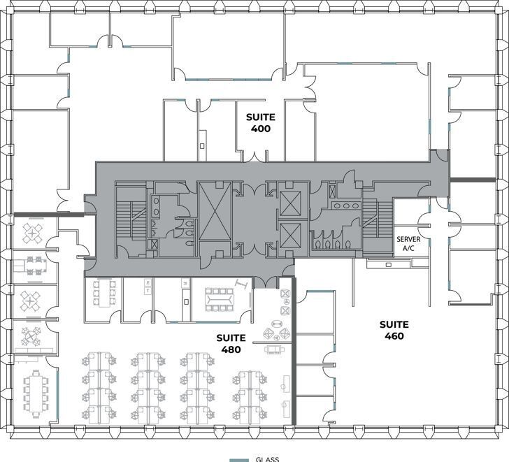
| 4e étage, bureau 480 | 417 m² | Négociable | 435,16 € /m²/an 36,26 € /m²/mois 181 317 € /an 15 110 € /mois | Bureau | - | Maintenant |
2580 N 1st St - 2e étage – Bureau 230
2580 N 1st St - 4e étage – Bureau 480
- Espace
- Surface
- Durée
- Loyer
- Type de bien
- Aménagement
- Disponible
22,282 square foot office space with a mostly open floor plan and a mix of private offices and conference rooms.
- Le loyer comprend les services publics, les services de l’immeuble et les frais immobiliers.
- Principalement open space
- 24 bureaux privés
- Espace en excellent état
- Conference Room
- Entièrement aménagé comme Bureau standard
- Convient pour 56 à 179 personnes
- Plafonds finis: 3,66 mètres
- Toilettes privées
| Espace | Surface | Durée | Loyer | Type de bien | Aménagement | Disponible |
| 4e étage, bureau 400 | 2 070 m² | Négociable | 435,16 € /m²/an 36,26 € /m²/mois 900 805 € /an 75 067 € /mois | Bureau | Construction achevée | Maintenant |
2540 N 1st St - 4e étage – Bureau 400
- Espace
- Surface
- Durée
- Loyer
- Type de bien
- Aménagement
- Disponible
Double entry doors 1 reception / lobby 1 conference room 1 IT closet 4 private offices 1 break room Open workspace
- Le loyer comprend les services publics, les services de l’immeuble et les frais immobiliers.
- Convient pour 10 à 29 personnes
| Espace | Surface | Durée | Loyer | Type de bien | Aménagement | Disponible |
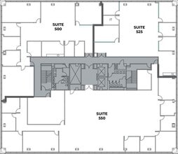
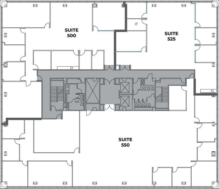
| 5e étage, bureau 525 | 335 m² | Négociable | 435,16 € /m²/an 36,26 € /m²/mois 145 862 € /an 12 155 € /mois | Bureau | - | Maintenant |
2550 N 1st St - 5e étage – Bureau 525
2590 N 1st St - 1er étage – Bureau 100
| Surface | 482 m² |
| Durée | Négociable |
| Loyer | 435,16 € /m²/an |
| Type de bien | Bureau |
| Aménagement | Construction achevée |
| Disponible | Maintenant |
office space for lease!
- Le loyer comprend les services publics, les services de l’immeuble et les frais immobiliers.
- Entièrement aménagé comme Bureau standard
- Principalement open space
- Convient pour 13 à 42 personnes
- 2 bureaux privés
- 2 postes de travail
- Plafonds finis: 3,05 mètres
- Espace en excellent état
- Toilettes privées
- Natural Lighting
2590 N 1st St - 2e étage – Bureau 200
| Surface | 614 m² |
| Durée | Négociable |
| Loyer | 435,16 € /m²/an |
| Type de bien | Bureau |
| Aménagement | Construction achevée |
| Disponible | 01/06/2026 |
- Le loyer comprend les services publics, les services de l’immeuble et les frais immobiliers.
- Entièrement aménagé comme Bureau standard
- Principalement open space
- Convient pour 17 à 53 personnes
- Espace en excellent état
- Peut être associé à un ou plusieurs espaces supplémentaires pour obtenir jusqu’à 1 697 m² d’espace adjacent.
2590 N 1st St - 2e étage – Bureau 210
| Surface | 249 m² |
| Durée | Négociable |
| Loyer | 435,16 € /m²/an |
| Type de bien | Bureau |
| Aménagement | Construction achevée |
| Disponible | 01/06/2026 |
- Le loyer comprend les services publics, les services de l’immeuble et les frais immobiliers.
- Entièrement aménagé comme Bureau standard
- Principalement open space
- Convient pour 7 à 22 personnes
- Espace en excellent état
- Peut être associé à un ou plusieurs espaces supplémentaires pour obtenir jusqu’à 1 697 m² d’espace adjacent.
2590 N 1st St - 2e étage – Bureau 220
| Surface | 425 m² |
| Durée | Négociable |
| Loyer | 435,16 € /m²/an |
| Type de bien | Bureau |
| Aménagement | Construction achevée |
| Disponible | 01/06/2026 |
- Le loyer comprend les services publics, les services de l’immeuble et les frais immobiliers.
- Entièrement aménagé comme Bureau standard
- Principalement open space
- Convient pour 12 à 37 personnes
- Espace en excellent état
- Peut être associé à un ou plusieurs espaces supplémentaires pour obtenir jusqu’à 1 697 m² d’espace adjacent.
2590 N 1st St - 2e étage – Bureau 230
| Surface | 409 m² |
| Durée | Négociable |
| Loyer | 435,16 € /m²/an |
| Type de bien | Bureau |
| Aménagement | Construction achevée |
| Disponible | 01/06/2026 |
- Le loyer comprend les services publics, les services de l’immeuble et les frais immobiliers.
- Entièrement aménagé comme Bureau standard
- Principalement open space
- Convient pour 12 à 36 personnes
- Espace en excellent état
- Peut être associé à un ou plusieurs espaces supplémentaires pour obtenir jusqu’à 1 697 m² d’espace adjacent.
2580 N 1st St - 2e étage – Bureau 230
| Surface | 111 m² |
| Durée | Négociable |
| Loyer | 435,16 € /m²/an |
| Type de bien | Bureau |
| Aménagement | Construction achevée |
| Disponible | Maintenant |
2 private offices, 1 IT closet (with supplement 24/7 HVAC, Open workspace area
- Le loyer comprend les services publics, les services de l’immeuble et les frais immobiliers.
- Entièrement aménagé comme Bureau standard
- Principalement open space
- Convient pour 3 à 10 personnes
- 2 bureaux privés
- Espace en excellent état
2580 N 1st St - 4e étage – Bureau 480
| Surface | 417 m² |
| Durée | Négociable |
| Loyer | 435,16 € /m²/an |
| Type de bien | Bureau |
| Aménagement | - |
| Disponible | Maintenant |
• Private Offices • 2 Conference Rooms • Reception Area • Break Room • Server Room • Storage Room • Open Workspace • Ask Rate of $4.00/SF includes $0.25/SF for Flex Furniture
- Le loyer comprend les services publics, les services de l’immeuble et les frais immobiliers.
- Convient pour 12 à 36 personnes
2540 N 1st St - 4e étage – Bureau 400
| Surface | 2 070 m² |
| Durée | Négociable |
| Loyer | 435,16 € /m²/an |
| Type de bien | Bureau |
| Aménagement | Construction achevée |
| Disponible | Maintenant |
22,282 square foot office space with a mostly open floor plan and a mix of private offices and conference rooms.
- Le loyer comprend les services publics, les services de l’immeuble et les frais immobiliers.
- Entièrement aménagé comme Bureau standard
- Principalement open space
- Convient pour 56 à 179 personnes
- 24 bureaux privés
- Plafonds finis: 3,66 mètres
- Espace en excellent état
- Toilettes privées
- Conference Room
2550 N 1st St - 5e étage – Bureau 525
| Surface | 335 m² |
| Durée | Négociable |
| Loyer | 435,16 € /m²/an |
| Type de bien | Bureau |
| Aménagement | - |
| Disponible | Maintenant |
Double entry doors 1 reception / lobby 1 conference room 1 IT closet 4 private offices 1 break room Open workspace
- Le loyer comprend les services publics, les services de l’immeuble et les frais immobiliers.
- Convient pour 10 à 29 personnes
Sélectionner des occupants à ce bien
- Étage
- Nom de l’occupant
- Secteur d’activité
- Multi
- AON Corporation
- Services professionnels, scientifiques et techniques
- 1er
- Barrett Business Service Inc
- Services professionnels, scientifiques et techniques
- 3e
- CargoSmart.ai
- Services professionnels, scientifiques et techniques
- 1er
- Casto Travel Inc.
- Services professionnels, scientifiques et techniques
- 2e
- Hair Club
- Services professionnels, scientifiques et techniques
- 4e
- Hisense(Silicon Valley)
- Manufacture
- Multi
- LG Display America, Inc.
- Services professionnels, scientifiques et techniques
- 3e
- Violin Memory
- Services professionnels, scientifiques et techniques
- 4e
- Yageo America
- Manufacture
Vue d’ensemble du parc
Silicon Valley Center is a six-building campus at the gateway of talent-rich North San Jose where a complete collection of engaging amenities, unparalleled transportation access, and exceptional value help companies scale their success. Engage your team with all the lifestyle-enhancing features top talent loves, from open-air workspace and the new on-site cafe Flower Flour to a lively game room and private fitness center. Maximize the impact of a Silicon Valley location with prominent signage that enhances your brand’s visibility along North First Street, with exposure to talent and clients along one of the area’s primary north-south thoroughfares. Irvine Company's industry-leading partnership and financial stability makes it easy to lease with confidence, knowing your workplace experience will get even better over the life of your lease. A central location alongside the world’s leading companies plus flexible lease terms and move-in ready workspaces make Silicon Valley Center an unmatched opportunity.
Durabilité
Durabilité
Certification LEED Établi par l’U.S. Green Building Council (USGBC, Conseil américain de l’immeuble durable), le programme de certification LEED (Leadership in Energy and Environmental Design) est axé sur la conception, la construction, l’exploitation et la maintenance d’immeubles, de maisons et de quartiers écologiques. Sa vocation est d’aider les propriétaires et les exploitants à adopter des pratiques écoresponsables et à utiliser les ressources de façon efficace. La certification LEED est un symbole mondialement reconnu de réalisation et de leadership en matière de développement durable. Pour obtenir la certification LEED, un projet doit obtenir des points en respectant des conditions préalables et un barème de crédits qui tiennent compte des émissions de carbone, de l’énergie, de l’eau, des déchets, du transport, des matériaux, de la santé et de la qualité de l’environnement intérieur. Les projets passent par un processus de vérification et d’évaluation et reçoivent un score correspondant à un niveau de certification LEED : Platine (80 points et plus) Or (60 à 79 points) Argent (50 à 59 points) Certifié (40 à 49 points)
Présenté par
Société non fournie
Silicon Valley Center | San Jose, CA 95131
Hum, une erreur s’est produite lors de l’envoi de votre message. Veuillez réessayer.
Merci ! Votre message a été envoyé.



















