Votre e-mail a été envoyé.
Prudential NW Building 25228-25230 104th Ave Bureau | 93–348 m² | À louer | Kent, WA 98030



Certaines informations ont été traduites automatiquement.
Tous les espaces disponibles(2)
Afficher les loyers en
- Espace
- Surface
- Durée
- Loyer
- Type de bien
- État
- Disponible
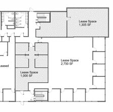
The (5,100 SF) main floor, has been divided into three spaces of (1,000 SF / 2,750 SF / 1,300 SF)
- Il est possible que le loyer annoncé ne comprenne pas certains services publics, services d’immeuble et frais immobiliers.
- Convient pour 3 à 6 personnes
- Plafonds finis: 2,74 mètres
- Climatisation centrale
- Entièrement moquetté
- Plafonds suspendus
- Accessible fauteuils roulants
- Entièrement aménagé comme Bureau standard
- 4 bureaux privés
- Espace en excellent état
- Aire de réception
- Hauts plafonds
- Sous-sol
The (5,100 SF) main floor, has been divided into three spaces of (1,000 SF / 2,750 SF / 1,300 SF)
- Il est possible que le loyer annoncé ne comprenne pas certains services publics, services d’immeuble et frais immobiliers.
- Principalement open space
- 8 bureaux privés
- Climatisation centrale
- Vidéosurveillance
- Open space
- Partiellement aménagé comme Bureau standard
- Convient pour 8 à 20 personnes
- Plafonds finis: 2,74 mètres
- Entièrement moquetté
- CVC disponible en-dehors des heures ouvrables
| Espace | Surface | Durée | Loyer | Type de bien | État | Disponible |
| 1er étage, bureau 100A | 93 m² | 3-5 Ans | 252,77 € /m²/an 21,06 € /m²/mois 23 483 € /an 1 957 € /mois | Bureau | Construction achevée | Maintenant |
| 1er étage, bureau 100B | 255 m² | 3-5 Ans | 252,77 € /m²/an 21,06 € /m²/mois 64 577 € /an 5 381 € /mois | Bureau | Construction partielle | Maintenant |
1er étage, bureau 100A
| Surface |
| 93 m² |
| Durée |
| 3-5 Ans |
| Loyer |
| 252,77 € /m²/an 21,06 € /m²/mois 23 483 € /an 1 957 € /mois |
| Type de bien |
| Bureau |
| État |
| Construction achevée |
| Disponible |
| Maintenant |
1er étage, bureau 100B
| Surface |
| 255 m² |
| Durée |
| 3-5 Ans |
| Loyer |
| 252,77 € /m²/an 21,06 € /m²/mois 64 577 € /an 5 381 € /mois |
| Type de bien |
| Bureau |
| État |
| Construction partielle |
| Disponible |
| Maintenant |
1er étage, bureau 100A
| Surface | 93 m² |
| Durée | 3-5 Ans |
| Loyer | 252,77 € /m²/an |
| Type de bien | Bureau |
| État | Construction achevée |
| Disponible | Maintenant |
The (5,100 SF) main floor, has been divided into three spaces of (1,000 SF / 2,750 SF / 1,300 SF)
- Il est possible que le loyer annoncé ne comprenne pas certains services publics, services d’immeuble et frais immobiliers.
- Entièrement aménagé comme Bureau standard
- Convient pour 3 à 6 personnes
- 4 bureaux privés
- Plafonds finis: 2,74 mètres
- Espace en excellent état
- Climatisation centrale
- Aire de réception
- Entièrement moquetté
- Hauts plafonds
- Plafonds suspendus
- Sous-sol
- Accessible fauteuils roulants
1er étage, bureau 100B
| Surface | 255 m² |
| Durée | 3-5 Ans |
| Loyer | 252,77 € /m²/an |
| Type de bien | Bureau |
| État | Construction partielle |
| Disponible | Maintenant |
The (5,100 SF) main floor, has been divided into three spaces of (1,000 SF / 2,750 SF / 1,300 SF)
- Il est possible que le loyer annoncé ne comprenne pas certains services publics, services d’immeuble et frais immobiliers.
- Partiellement aménagé comme Bureau standard
- Principalement open space
- Convient pour 8 à 20 personnes
- 8 bureaux privés
- Plafonds finis: 2,74 mètres
- Climatisation centrale
- Entièrement moquetté
- Vidéosurveillance
- CVC disponible en-dehors des heures ouvrables
- Open space
Aperçu du bien
Le rez-de-chaussée classé (5 100 pieds carrés) peut être subdivisé en un étage (995 pieds carrés) et un étage (4 100 pieds carrés). Ce bâtiment dispose également d'un sous-sol supplémentaire (2 200 pieds carrés) en cas de besoin. L'espace du sous-sol peut être séparé du rez-de-chaussée.
- Signalisation
- Hauts plafonds
- Faux plafond
- Climatisation
Informations sur l’immeuble
Présenté par
PSI Capital LLC
Prudential NW Building | 25228-25230 104th Ave
Hum, une erreur s’est produite lors de l’envoi de votre message. Veuillez réessayer.
Merci ! Votre message a été envoyé.



