Votre e-mail a été envoyé.
250 Curry Hollow Rd Industriel/Logistique | 544–1 896 m² | À louer | Pittsburgh, PA 15236



Certaines informations ont été traduites automatiquement.
Informations principales
- 1.5 acres partially stabilized laydown yard/outdoor storage space
- Strong area for manufacturing and industrial development
- Excellent highway access to Route 51 and Route 88
Caractéristiques
Tous les espace disponibles(1)
Afficher les loyers en
- Espace
- Surface
- Durée
- Loyer
- Type de bien
- Aménagement
- Disponible
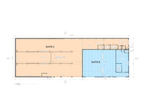
20,501 SF crane served light industrial space and approximately 1.5 acre partially stabilized laydown yard/outdoor storage space available for lease. Property is fenced, gated, and controlled by tenant. Building offers 22’ x 26’ column spacing; 15’ clear height in Suite B (5,859 SF); Suite C (14,642 SF) has 20.5’ under beam clear height and 22’ clear to ceiling deck. Five (5) drive-in doors of varying sizes; one (1) 5-ton traveling crane; floor drains in the warehouse area; Suite C has a new, recently replaced roof and Suite B has a roof in excellent shape.
- Comprend 160 m² d’espace de bureau dédié
- Crane served industrial space
- Floor drains in warehouse space
- 5 accès plain-pied
- 5 drive-in doors (varying sizes)
| Espace | Surface | Durée | Loyer | Type de bien | Aménagement | Disponible |
| 1er étage | 544 – 1 896 m² | Négociable | Sur demande Sur demande Sur demande Sur demande | Industriel/Logistique | - | 30 jours |
1er étage
| Surface |
| 544 – 1 896 m² |
| Durée |
| Négociable |
| Loyer |
| Sur demande Sur demande Sur demande Sur demande |
| Type de bien |
| Industriel/Logistique |
| Aménagement |
| - |
| Disponible |
| 30 jours |
1er étage
| Surface | 544 – 1 896 m² |
| Durée | Négociable |
| Loyer | Sur demande |
| Type de bien | Industriel/Logistique |
| Aménagement | - |
| Disponible | 30 jours |
20,501 SF crane served light industrial space and approximately 1.5 acre partially stabilized laydown yard/outdoor storage space available for lease. Property is fenced, gated, and controlled by tenant. Building offers 22’ x 26’ column spacing; 15’ clear height in Suite B (5,859 SF); Suite C (14,642 SF) has 20.5’ under beam clear height and 22’ clear to ceiling deck. Five (5) drive-in doors of varying sizes; one (1) 5-ton traveling crane; floor drains in the warehouse area; Suite C has a new, recently replaced roof and Suite B has a roof in excellent shape.
- Comprend 160 m² d’espace de bureau dédié
- 5 accès plain-pied
- Crane served industrial space
- 5 drive-in doors (varying sizes)
- Floor drains in warehouse space
Aperçu du bien
Crane served functional industrial shop space with secured, outside storage/laydown yard located in Pleasant Hills Borough, Allegheny County. The site offers excellent access to Route 51, Route 88, and the Allegheny County Airport.
Faits sur l’installation entrepôt
Présenté par
250 Curry Hollow Rd
Hum, une erreur s’est produite lors de l’envoi de votre message. Veuillez réessayer.
Merci ! Votre message a été envoyé.



