Connectez-vous/S’inscrire
Votre e-mail a été envoyé.
Certaines informations ont été traduites automatiquement.
Informations principales
- Nouveaux plans de développement à usage mixte pour 18 condominiums de plus de 4 723 pieds carrés de commerces de détail
- 22 places de stationnement commerciales exclusives
- Restaurant et magasin de détail disponibles
- L'achèvement est prévu pour le 2e trimestre 2025
Tous les espaces disponibles(3)
Afficher les loyers en
- Espace
- Surface
- Durée
- Loyer
- Type de bien
- Aménagement
- Disponible
- Entièrement aménagé comme un espace de restaurant ou café
- Contigu et aligné avec d’autres locaux commerciaux
- Entièrement aménagé comme Local commercial standard
- Contigu et aligné avec d’autres locaux commerciaux
- Entièrement aménagé comme Local commercial standard
- Contigu et aligné avec d’autres locaux commerciaux
| Espace | Surface | Durée | Loyer | Type de bien | Aménagement | Disponible |
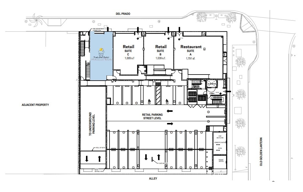
| 1er étage, bureau A | 166 m² | Négociable | Sur demande Sur demande Sur demande Sur demande | Local commercial | Construction achevée | 01/05/2026 |
| 1er étage, bureau B | 97 m² | Négociable | Sur demande Sur demande Sur demande Sur demande | Local commercial | Construction achevée | 01/05/2026 |
| 1er étage, bureau C | 94 m² | Négociable | Sur demande Sur demande Sur demande Sur demande | Local commercial | Construction achevée | 01/05/2026 |
1er étage, bureau A
| Surface |
| 166 m² |
| Durée |
| Négociable |
| Loyer |
| Sur demande Sur demande Sur demande Sur demande |
| Type de bien |
| Local commercial |
| Aménagement |
| Construction achevée |
| Disponible |
| 01/05/2026 |
1er étage, bureau B
| Surface |
| 97 m² |
| Durée |
| Négociable |
| Loyer |
| Sur demande Sur demande Sur demande Sur demande |
| Type de bien |
| Local commercial |
| Aménagement |
| Construction achevée |
| Disponible |
| 01/05/2026 |
1er étage, bureau C
| Surface |
| 94 m² |
| Durée |
| Négociable |
| Loyer |
| Sur demande Sur demande Sur demande Sur demande |
| Type de bien |
| Local commercial |
| Aménagement |
| Construction achevée |
| Disponible |
| 01/05/2026 |
1 sur 1
Vidéos
Visite extérieure 3D Matterport
Visite 3D
Photos
Street view
Rue
Carte
1er étage, bureau A
| Surface | 166 m² |
| Durée | Négociable |
| Loyer | Sur demande |
| Type de bien | Local commercial |
| Aménagement | Construction achevée |
| Disponible | 01/05/2026 |
- Entièrement aménagé comme un espace de restaurant ou café
- Contigu et aligné avec d’autres locaux commerciaux
1 sur 1
Vidéos
Visite extérieure 3D Matterport
Visite 3D
Photos
Street view
Rue
Carte
1er étage, bureau B
| Surface | 97 m² |
| Durée | Négociable |
| Loyer | Sur demande |
| Type de bien | Local commercial |
| Aménagement | Construction achevée |
| Disponible | 01/05/2026 |
- Entièrement aménagé comme Local commercial standard
- Contigu et aligné avec d’autres locaux commerciaux
1 sur 1
Vidéos
Visite extérieure 3D Matterport
Visite 3D
Photos
Street view
Rue
Carte
1er étage, bureau C
| Surface | 94 m² |
| Durée | Négociable |
| Loyer | Sur demande |
| Type de bien | Local commercial |
| Aménagement | Construction achevée |
| Disponible | 01/05/2026 |
- Entièrement aménagé comme Local commercial standard
- Contigu et aligné avec d’autres locaux commerciaux
Informations sur l’immeuble
| Espace total disponible | 357 m² | Style d’appartement | De faible hauteur |
| Nb de lots | 18 | Surface de l’immeuble | 2 787 m² |
| Type de bien | Immeuble residentiel | Année de construction | 2026 |
| Sous-type de bien | Appartement | Statut de la construction | En construction |
| Espace total disponible | 357 m² |
| Nb de lots | 18 |
| Type de bien | Immeuble residentiel |
| Sous-type de bien | Appartement |
| Style d’appartement | De faible hauteur |
| Surface de l’immeuble | 2 787 m² |
| Année de construction | 2026 |
| Statut de la construction | En construction |
À propos du bien
Nouveau développement à usage mixte pour 18 condominiums au-dessus de 4 723 pieds carrés de commerces de détail.
1 1
Fairly walkable
50/100
Exceptionally drivable
100/100
Limited public transit
30/100
Fairly bikeable
50/100
Principaux commerces à proximité
1 sur 2
Vidéos
Visite extérieure 3D Matterport
Visite 3D
Photos
Street view
Rue
Carte
1 sur 1
Présenté par
Del Prado Place | 24722 Del Prado
Vous êtes déjà membre ? Connectez-vous
Hum, une erreur s’est produite lors de l’envoi de votre message. Veuillez réessayer.
Merci ! Votre message a été envoyé.



