Votre e-mail a été envoyé.
Certaines informations ont été traduites automatiquement.
Informations principales sur le parc
- Strategic location near I-880 for easy regional access
- 200± amps of power available (confirmation required)
- Multiple suite configurations to suit diverse operational requirements
- Call listing brokers for more information
Faits sur le parc
| Espace total disponible | 3 226 m² | Type de parc | Parc industriel |
| Espace total disponible | 3 226 m² |
| Type de parc | Parc industriel |
Tous les espaces disponibles(13)
Afficher les loyers en
- Espace
- Surface
- Durée
- Loyer
- Type de bien
- Aménagement
- Disponible
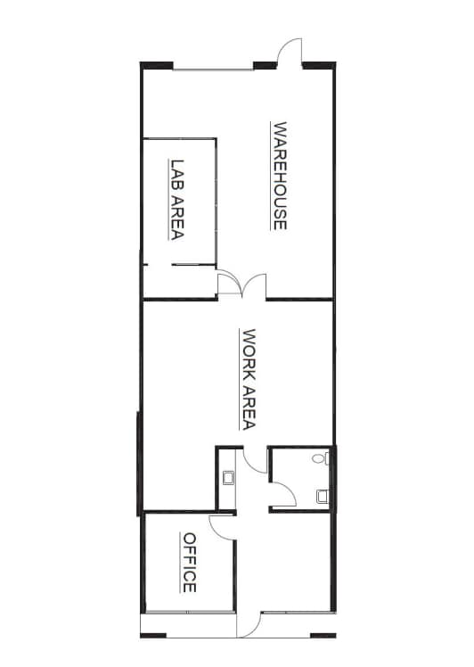
8 private offices, breakroom, open office
- Comprend 618 m² d’espace de bureau dédié
- Toilettes privées
- 1 salle de conférence
- Espaces de bureaux entièrement climatisés
- Puissance de 200 ± ampères (veuillez confirmer)
- Contact listing brokers for pricing
- 3 bureaux privés
- Laboratoire
- Bâtiment entièrement équipé de gicleurs
- Entrepôt isolé
- Stationnement 3/1 000 ± pieds carrés
1 private office, reception area, open area
- 1 accès plain-pied
- Laboratoire
- Contact listing brokers for pricing
- Aire de réception
- Lab
2 private offices, reception area
- Comprend 41 m² d’espace de bureau dédié
- Toilettes privées
- Aire de réception
- Contact listing brokers for pricing
| Espace | Surface | Durée | Loyer | Type de bien | Aménagement | Disponible |
| 1er étage – 106 | 650 m² | Négociable | Sur demande Sur demande Sur demande Sur demande | Industriel/Logistique | Construction achevée | 30 jours |
| 1er étage – 110 | 163 m² | Négociable | Sur demande Sur demande Sur demande Sur demande | Industriel/Logistique | Construction partielle | Maintenant |
| 1er étage – 209 | 163 m² | Négociable | Sur demande Sur demande Sur demande Sur demande | Industriel/Logistique | Construction achevée | Maintenant |
23595 Cabot Blvd - 1er étage – 106
23595 Cabot Blvd - 1er étage – 110
23595 Cabot Blvd - 1er étage – 209
- Espace
- Surface
- Durée
- Loyer
- Type de bien
- Aménagement
- Disponible
1 private office, reception, open area
- Comprend 36 m² d’espace de bureau dédié
- Contact listing brokers for pricing
- Aire de réception
| Espace | Surface | Durée | Loyer | Type de bien | Aménagement | Disponible |
| 1er étage – 214 | 182 m² | Négociable | Sur demande Sur demande Sur demande Sur demande | Local d’activités | Construction achevée | Maintenant |
23575 Cabot Blvd - 1er étage – 214
- Espace
- Surface
- Durée
- Loyer
- Type de bien
- Aménagement
- Disponible
1 private office, conference room, reception area
- 876 accès plain-pied
- Contact listing brokers for pricing
- Aire de réception
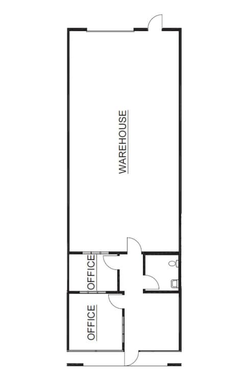
5 private offices, breakroom, 2 drive-in doors
- Comprend 177 m² d’espace de bureau dédié
- Bureaux cloisonnés
- 2 accès plain-pied
- Contact listing brokers for pricing
1 private office, reception area
- Comprend 29 m² d’espace de bureau dédié
- Aire de réception
- Bureaux cloisonnés
- Contact listing brokers for pricing
| Espace | Surface | Durée | Loyer | Type de bien | Aménagement | Disponible |
| 1er étage – 301/302 | 325 m² | Négociable | Sur demande Sur demande Sur demande Sur demande | Industriel/Logistique | - | Maintenant |
| 1er étage – 315/316 | 295 m² | Négociable | Sur demande Sur demande Sur demande Sur demande | Industriel/Logistique | Construction achevée | Maintenant |
| 1er étage – 319 | 118 m² | Négociable | Sur demande Sur demande Sur demande Sur demande | Industriel/Logistique | Construction achevée | Maintenant |
23785 Cabot Blvd - 1er étage – 301/302
23785 Cabot Blvd - 1er étage – 315/316
23785 Cabot Blvd - 1er étage – 319
- Espace
- Surface
- Durée
- Loyer
- Type de bien
- Aménagement
- Disponible
3 private offices, reception area.
- Comprend 30 m² d’espace de bureau dédié
- Toilettes privées
- Contact listing brokers for pricing
- Aire de réception
- Natural Lighting
3 private offices, reception area
- Comprend 94 m² d’espace de bureau dédié
- Toilettes privées
- Contact listing brokers for pricing
- Aire de réception
- Natural Lighting
2 private offices, reception area.
- Comprend 30 m² d’espace de bureau dédié
- Toilettes privées
- Contact listing brokers for pricing
- Aire de réception
- Natural Lighting
Open office area.
- Comprend 30 m² d’espace de bureau dédié
- Contact listing brokers for pricing
- 2 bureaux privés, zone de réception, disponibles en avril
1 private office, reception area, available April 1st
- Comprend 33 m² d’espace de bureau dédié
- Bâtiment entièrement équipé de gicleurs
- Puissance de 200 ± ampères (veuillez confirmer)
- Stationnement 3/1 000 ± pieds carrés
- Aire de réception
- Entrepôt isolé
- Chargement par niveau de classe
- Contact listing brokers for pricing
1 private office, reception area, available April 1st
- Comprend 33 m² d’espace de bureau dédié
- Bâtiment entièrement équipé de gicleurs
- Entrepôt isolé
- Stationnement 3/1 000 ± pieds carrés
- Aire de réception
- Puissance de 200 ± ampères (veuillez confirmer)
- Chargement par niveau de classe
- Contact listing brokers for pricing
| Espace | Surface | Durée | Loyer | Type de bien | Aménagement | Disponible |
| 1er étage – 407 | 363 m² | Négociable | Sur demande Sur demande Sur demande Sur demande | Local d’activités | Construction achevée | Maintenant |
| 1er étage – 408 | 313 m² | Négociable | Sur demande Sur demande Sur demande Sur demande | Local d’activités | Construction achevée | Maintenant |
| 1er étage – 409 | 179 m² | Négociable | Sur demande Sur demande Sur demande Sur demande | Local d’activités | Construction achevée | Maintenant |
| 1er étage – 410 | 151 m² | Négociable | Sur demande Sur demande Sur demande Sur demande | Local d’activités | Construction achevée | Maintenant |
| 1er étage – 412 | 163 m² | Négociable | Sur demande Sur demande Sur demande Sur demande | Local d’activités | Construction achevée | Maintenant |
| 1er étage – 413 | 163 m² | Négociable | Sur demande Sur demande Sur demande Sur demande | Local d’activités | Construction achevée | Maintenant |
3777 Depot Rd - 1er étage – 407
3777 Depot Rd - 1er étage – 408
3777 Depot Rd - 1er étage – 409
3777 Depot Rd - 1er étage – 410
3777 Depot Rd - 1er étage – 412
3777 Depot Rd - 1er étage – 413
23595 Cabot Blvd - 1er étage – 106
| Surface | 650 m² |
| Durée | Négociable |
| Loyer | Sur demande |
| Type de bien | Industriel/Logistique |
| Aménagement | Construction achevée |
| Disponible | 30 jours |
8 private offices, breakroom, open office
- Comprend 618 m² d’espace de bureau dédié
- 3 bureaux privés
- Toilettes privées
- Laboratoire
- 1 salle de conférence
- Bâtiment entièrement équipé de gicleurs
- Espaces de bureaux entièrement climatisés
- Entrepôt isolé
- Puissance de 200 ± ampères (veuillez confirmer)
- Stationnement 3/1 000 ± pieds carrés
- Contact listing brokers for pricing
23595 Cabot Blvd - 1er étage – 110
| Surface | 163 m² |
| Durée | Négociable |
| Loyer | Sur demande |
| Type de bien | Industriel/Logistique |
| Aménagement | Construction partielle |
| Disponible | Maintenant |
1 private office, reception area, open area
- 1 accès plain-pied
- Aire de réception
- Laboratoire
- Lab
- Contact listing brokers for pricing
23595 Cabot Blvd - 1er étage – 209
| Surface | 163 m² |
| Durée | Négociable |
| Loyer | Sur demande |
| Type de bien | Industriel/Logistique |
| Aménagement | Construction achevée |
| Disponible | Maintenant |
2 private offices, reception area
- Comprend 41 m² d’espace de bureau dédié
- Aire de réception
- Toilettes privées
- Contact listing brokers for pricing
23575 Cabot Blvd - 1er étage – 214
| Surface | 182 m² |
| Durée | Négociable |
| Loyer | Sur demande |
| Type de bien | Local d’activités |
| Aménagement | Construction achevée |
| Disponible | Maintenant |
1 private office, reception, open area
- Comprend 36 m² d’espace de bureau dédié
- Aire de réception
- Contact listing brokers for pricing
23785 Cabot Blvd - 1er étage – 301/302
| Surface | 325 m² |
| Durée | Négociable |
| Loyer | Sur demande |
| Type de bien | Industriel/Logistique |
| Aménagement | - |
| Disponible | Maintenant |
1 private office, conference room, reception area
- 876 accès plain-pied
- Aire de réception
- Contact listing brokers for pricing
23785 Cabot Blvd - 1er étage – 315/316
| Surface | 295 m² |
| Durée | Négociable |
| Loyer | Sur demande |
| Type de bien | Industriel/Logistique |
| Aménagement | Construction achevée |
| Disponible | Maintenant |
5 private offices, breakroom, 2 drive-in doors
- Comprend 177 m² d’espace de bureau dédié
- 2 accès plain-pied
- Bureaux cloisonnés
- Contact listing brokers for pricing
23785 Cabot Blvd - 1er étage – 319
| Surface | 118 m² |
| Durée | Négociable |
| Loyer | Sur demande |
| Type de bien | Industriel/Logistique |
| Aménagement | Construction achevée |
| Disponible | Maintenant |
1 private office, reception area
- Comprend 29 m² d’espace de bureau dédié
- Bureaux cloisonnés
- Aire de réception
- Contact listing brokers for pricing
3777 Depot Rd - 1er étage – 407
| Surface | 363 m² |
| Durée | Négociable |
| Loyer | Sur demande |
| Type de bien | Local d’activités |
| Aménagement | Construction achevée |
| Disponible | Maintenant |
3 private offices, reception area.
- Comprend 30 m² d’espace de bureau dédié
- Aire de réception
- Toilettes privées
- Natural Lighting
- Contact listing brokers for pricing
3777 Depot Rd - 1er étage – 408
| Surface | 313 m² |
| Durée | Négociable |
| Loyer | Sur demande |
| Type de bien | Local d’activités |
| Aménagement | Construction achevée |
| Disponible | Maintenant |
3 private offices, reception area
- Comprend 94 m² d’espace de bureau dédié
- Aire de réception
- Toilettes privées
- Natural Lighting
- Contact listing brokers for pricing
3777 Depot Rd - 1er étage – 409
| Surface | 179 m² |
| Durée | Négociable |
| Loyer | Sur demande |
| Type de bien | Local d’activités |
| Aménagement | Construction achevée |
| Disponible | Maintenant |
2 private offices, reception area.
- Comprend 30 m² d’espace de bureau dédié
- Aire de réception
- Toilettes privées
- Natural Lighting
- Contact listing brokers for pricing
3777 Depot Rd - 1er étage – 410
| Surface | 151 m² |
| Durée | Négociable |
| Loyer | Sur demande |
| Type de bien | Local d’activités |
| Aménagement | Construction achevée |
| Disponible | Maintenant |
Open office area.
- Comprend 30 m² d’espace de bureau dédié
- 2 bureaux privés, zone de réception, disponibles en avril
- Contact listing brokers for pricing
3777 Depot Rd - 1er étage – 412
| Surface | 163 m² |
| Durée | Négociable |
| Loyer | Sur demande |
| Type de bien | Local d’activités |
| Aménagement | Construction achevée |
| Disponible | Maintenant |
1 private office, reception area, available April 1st
- Comprend 33 m² d’espace de bureau dédié
- Aire de réception
- Bâtiment entièrement équipé de gicleurs
- Entrepôt isolé
- Puissance de 200 ± ampères (veuillez confirmer)
- Chargement par niveau de classe
- Stationnement 3/1 000 ± pieds carrés
- Contact listing brokers for pricing
3777 Depot Rd - 1er étage – 413
| Surface | 163 m² |
| Durée | Négociable |
| Loyer | Sur demande |
| Type de bien | Local d’activités |
| Aménagement | Construction achevée |
| Disponible | Maintenant |
1 private office, reception area, available April 1st
- Comprend 33 m² d’espace de bureau dédié
- Aire de réception
- Bâtiment entièrement équipé de gicleurs
- Puissance de 200 ± ampères (veuillez confirmer)
- Entrepôt isolé
- Chargement par niveau de classe
- Stationnement 3/1 000 ± pieds carrés
- Contact listing brokers for pricing
Vue d’ensemble du parc
Cabot Business Park is a well-designed industrial and flex property located in the thriving Hayward submarket, offering a versatile environment for businesses seeking both office and warehouse functionality. The park features multiple suites with varying office buildouts, accommodating a wide range of operational needs. Each building is fully sprinklered and includes insulated warehouse space, ensuring safety and energy efficiency. Office areas are fully air-conditioned, providing a comfortable work environment for administrative and customer-facing functions. Grade-level loading enhances accessibility for shipping and receiving, while ample parking at a ratio of 3 spaces per 1,000 SF supports employee and visitor convenience. The park is equipped with 200± amps of power (to be confirmed), meeting the demands of modern industrial users. Tenants benefit from an on-site café and the ability to expand within the business park as their operations grow. Located near major transportation routes, including I-880, the property offers excellent connectivity to the Bay Area’s key commercial hubs.
Présenté par
Cabot Business Park | Hayward, CA 94545
Hum, une erreur s’est produite lors de l’envoi de votre message. Veuillez réessayer.
Merci ! Votre message a été envoyé.






























