Connectez-vous/S’inscrire
Votre e-mail a été envoyé.
Deer Valley West I 23619 N 35th Dr Industriel/Logistique | 2 430 m² | À louer | Glendale, AZ 85310



Certaines informations ont été traduites automatiquement.
CARACTÉRISTIQUES
Hauteur libre
6,10 m
Accès plain-pied
2
Portes de quai de chargement extérieures
2
Niveleurs
2
Places de stationnement standard
52
TOUS LES ESPACE DISPONIBLES(1)
Afficher les loyers en
- ESPACE
- SURFACE
- DURÉE
- LOYER
- TYPE DE BIEN
- ÉTAT
- DISPONIBLE
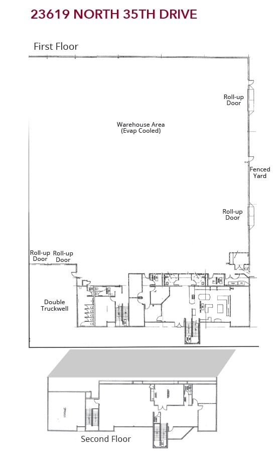
±26,152 SF Building available sitting on a ±59,998 SF Lot sporting 2 docks, 2 grade level doors, 20' clear height, and 800A/3PH/277-480V Power. The property is Zoned CP/BP Phoenix and includes Fire Sprinklers and ±4,778 SF of Office.
- Le loyer ne comprend pas les services publics, les frais immobiliers ou les services de l’immeuble.
- 2 accès plain-pied
- 2 quais de chargement
- ±26,152 SF Sitting on a ±59,998 SF Lot
- 800A/3PH/277-480V electric
- Comprend 444 m² d’espace de bureau dédié
- Espace en excellent état
- Toilettes privées
- 2 docks & 2 grade level doors
- Clear Height: 20’
| Espace | Surface | Durée | Loyer | Type de bien | État | Disponible |
| 1er étage | 2 430 m² | Négociable | 139,31 € /m²/an 11,61 € /m²/mois 338 463 € /an 28 205 € /mois | Industriel/Logistique | Construction partielle | Maintenant |
1er étage
| Surface |
| 2 430 m² |
| Durée |
| Négociable |
| Loyer |
| 139,31 € /m²/an 11,61 € /m²/mois 338 463 € /an 28 205 € /mois |
| Type de bien |
| Industriel/Logistique |
| État |
| Construction partielle |
| Disponible |
| Maintenant |
1 sur 9
VIDÉOS
VISITE EXTÉRIEURE 3D MATTERPORT
VISITE 3D
PHOTOS
STREET VIEW
RUE
CARTE
1er étage
| Surface | 2 430 m² |
| Durée | Négociable |
| Loyer | 139,31 € /m²/an |
| Type de bien | Industriel/Logistique |
| État | Construction partielle |
| Disponible | Maintenant |
±26,152 SF Building available sitting on a ±59,998 SF Lot sporting 2 docks, 2 grade level doors, 20' clear height, and 800A/3PH/277-480V Power. The property is Zoned CP/BP Phoenix and includes Fire Sprinklers and ±4,778 SF of Office.
- Le loyer ne comprend pas les services publics, les frais immobiliers ou les services de l’immeuble.
- Comprend 444 m² d’espace de bureau dédié
- 2 accès plain-pied
- Espace en excellent état
- 2 quais de chargement
- Toilettes privées
- ±26,152 SF Sitting on a ±59,998 SF Lot
- 2 docks & 2 grade level doors
- 800A/3PH/277-480V electric
- Clear Height: 20’
FAITS SUR L’INSTALLATION ENTREPÔT
Surface de l’immeuble
2 430 m²
Surface du lot
0,56 ha
Année de construction/rénovation
1991/2010
Développement et livraisons
Maçonnerie
Alimentation électrique
Ampères: 800 Volts: 277-480 Phase: 3
Zonage
CP/BP - Business Park
OCCUPANTS
- ÉTAGE
- NOM DE L’OCCUPANT
- SECTEUR D’ACTIVITÉ
- 1er
- Goodall Wood Creations
- Manufacture
1 1
1 sur 13
VIDÉOS
VISITE EXTÉRIEURE 3D MATTERPORT
VISITE 3D
PHOTOS
STREET VIEW
RUE
CARTE
1 sur 1
Présenté par
Deer Valley West I | 23619 N 35th Dr
Vous êtes déjà membre ? Connectez-vous
Hum, une erreur s’est produite lors de l’envoi de votre message. Veuillez réessayer.
Merci ! Votre message a été envoyé.



