Votre e-mail a été envoyé.
Certaines informations ont été traduites automatiquement.
INFORMATIONS PRINCIPALES
- 8,010± SF Modern Industrial Space For Lease At Grandview Business Park
- Office Area Reception, 6 Offices, 2 ADA Restrooms & Break Room
- Just 1.7 Miles From I-79 & 6.1 Miles From I-90
- 5,287± SF Warehouse Features 16' Ceilings, Shop Office, Shop Restroom, Overhead Door & Truck Dock
- Zoned I-1, Light Industrial - Floor Plan & 3D Tour Available
CARACTÉRISTIQUES
TOUS LES ESPACE DISPONIBLES(1)
Afficher les loyers en
- ESPACE
- SURFACE
- DURÉE
- LOYER
- TYPE DE BIEN
- ÉTAT
- DISPONIBLE
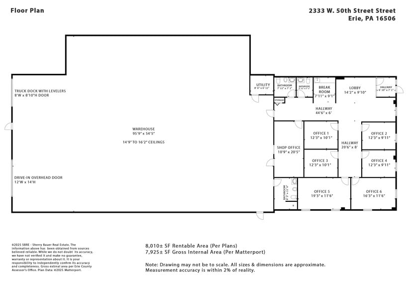
8,010± SF modern industrial space for lease at Grandview Business Park. 5,287± SF warehouse features 14'9" to 16'2" ceilings, 12'x14' drive-in overhead door, raised truck dock with leveler (8'W x 8'10"H overhead door), shop office, shop restroom, 200 amp, 3-phase power & more. 2,723± SF office area with reception, 6 private offices - 4 including windows for natural light, break room & two ADA restrooms. Located just 1.7 miles to I-79 & 6.1 miles to I-90. Zoned I-1 Light Industrial. Offered at $12.95/SF/YR-NNN. NNN estimated at $2.14/SF/YR based on 2025. Floor plan and 3D tour available. Contact broker for additional information or to schedule a tour.
- Le loyer ne comprend pas les services publics, les frais immobiliers ou les services de l’immeuble.
- 1 accès plain-pied
- 1 quai de chargement
- 5,287±SF Warehouse With Truck Dock & Drive-In Door
- 2,723± SF Office Area Lobby/Reception & 6 Offices
- Floor Plan & 3D Tour Available - Zoned Lt. Ind.
- Comprend 253 m² d’espace de bureau dédié
- Espace en excellent état
- 8,010±SF Modern Industrial Space For Lease
- 16' Ceilings, Shop Office & Shop Restroom
- Break Room & 2 Restrooms
| Espace | Surface | Durée | Loyer | Type de bien | État | Disponible |
| 1er étage – 2333 W. 50th Street | 744 m² | Négociable | 120,46 € /m²/an 10,04 € /m²/mois 89 643 € /an 7 470 € /mois | Industriel/Logistique | Construction achevée | Maintenant |
1er étage – 2333 W. 50th Street
| Surface |
| 744 m² |
| Durée |
| Négociable |
| Loyer |
| 120,46 € /m²/an 10,04 € /m²/mois 89 643 € /an 7 470 € /mois |
| Type de bien |
| Industriel/Logistique |
| État |
| Construction achevée |
| Disponible |
| Maintenant |
1er étage – 2333 W. 50th Street
| Surface | 744 m² |
| Durée | Négociable |
| Loyer | 120,46 € /m²/an |
| Type de bien | Industriel/Logistique |
| État | Construction achevée |
| Disponible | Maintenant |
8,010± SF modern industrial space for lease at Grandview Business Park. 5,287± SF warehouse features 14'9" to 16'2" ceilings, 12'x14' drive-in overhead door, raised truck dock with leveler (8'W x 8'10"H overhead door), shop office, shop restroom, 200 amp, 3-phase power & more. 2,723± SF office area with reception, 6 private offices - 4 including windows for natural light, break room & two ADA restrooms. Located just 1.7 miles to I-79 & 6.1 miles to I-90. Zoned I-1 Light Industrial. Offered at $12.95/SF/YR-NNN. NNN estimated at $2.14/SF/YR based on 2025. Floor plan and 3D tour available. Contact broker for additional information or to schedule a tour.
- Le loyer ne comprend pas les services publics, les frais immobiliers ou les services de l’immeuble.
- Comprend 253 m² d’espace de bureau dédié
- 1 accès plain-pied
- Espace en excellent état
- 1 quai de chargement
- 8,010±SF Modern Industrial Space For Lease
- 5,287±SF Warehouse With Truck Dock & Drive-In Door
- 16' Ceilings, Shop Office & Shop Restroom
- 2,723± SF Office Area Lobby/Reception & 6 Offices
- Break Room & 2 Restrooms
- Floor Plan & 3D Tour Available - Zoned Lt. Ind.
APERÇU DU BIEN
8,010± SF modern industrial space for lease at Grandview Business Park. 5,287± SF warehouse features 14'9" to 16'2" ceilings, 12'x14' drive-in overhead door, raised truck dock with leveler (8'W x 8'10"H overhead door), shop office, shop restroom, 200 amp, 3-phase power & more. 2,723± SF office area with reception, 6 private offices - 4 including windows for natural light, break room & two ADA restrooms. Located just 1.7 miles to I-79 & 6.1 miles to I-90. Zoned I-1 Light Industrial. Offered at $12.95/SF/YR-NNN. Floor plan and 3D tour available. Offered at $12.95/SF/YR-NNN. NNN estimated at $2.14/SF/YR based on 2025. Contact broker for additional information or to schedule a tour.
FAITS SUR L’INSTALLATION ENTREPÔT
OCCUPANTS
- NOM DE L’OCCUPANT
- SECTEUR D’ACTIVITÉ
- Kaman Industrial
- Manufacture
- Service Coordination Unlimited
- Services
Présenté par
2333-2335 W 50th St
Hum, une erreur s’est produite lors de l’envoi de votre message. Veuillez réessayer.
Merci ! Votre message a été envoyé.






