Votre e-mail a été envoyé.
Certaines informations ont été traduites automatiquement.
Informations principales sur le parc
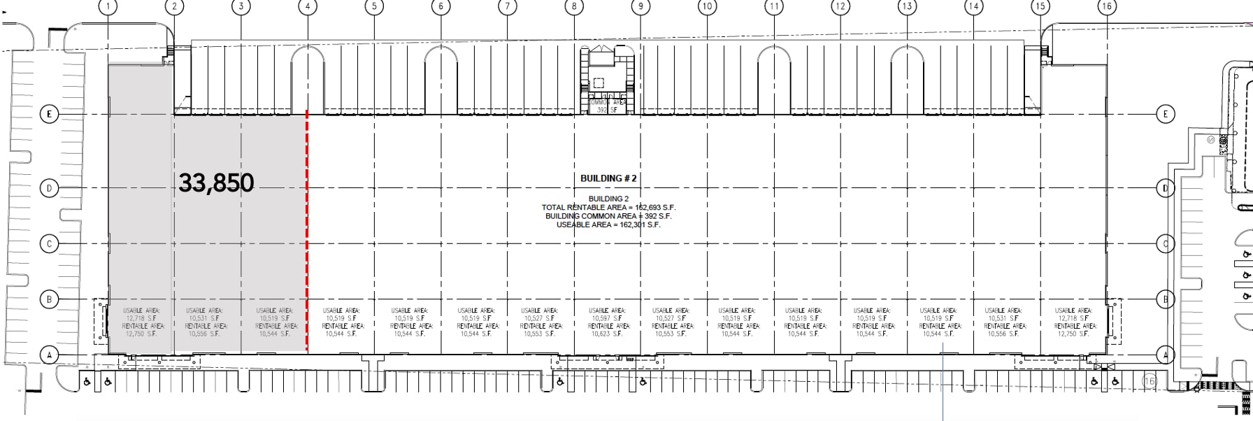
- Taille totale du bâtiment de ± 155 350 pieds carrés ; ± 44 119 pieds carrés disponibles (unité 110) et ± 27 357 (unité 100)
- Espace d'exposition avec un ratio de stationnement de 1,2/1000
- Emplacement à forte exposition avec un trafic important
- Emplacement principal et principal dans la ville de Doral
- Lampes économes en énergie T-5
Faits sur le parc
Caractéristiques
- Accès 24 h/24
- Ligne d’autobus
- Terrain d’angle
- Signalisation
- Intersection avec signalisation
- CVC contrôlé par l’occupant
- Climatisation
Tous les espaces disponibles(2)
Afficher les loyers en
- Espace
- Surface
- Durée
- Loyer
- Type de bien
- Aménagement
- Disponible
Corner unit in a 32' Clear Building. 6 Dock Doors, 1 Oversize Ramp. Office roughly 10%.
- Le loyer ne comprend pas les services publics, les frais immobiliers ou les services de l’immeuble.
- 1 accès plain-pied
- 6 quais de chargement
- Comprend 279 m² d’espace de bureau dédié
- Espace en excellent état
| Espace | Surface | Durée | Loyer | Type de bien | Aménagement | Disponible |
| 1er étage | 3 145 m² | 3-10 Ans | Sur demande Sur demande Sur demande Sur demande | Industriel/Logistique | Construction achevée | 01/09/2026 |
10660 NW 25th St - 1er étage
- Espace
- Surface
- Durée
- Loyer
- Type de bien
- Aménagement
- Disponible
- Le loyer ne comprend pas les services publics, les frais immobiliers ou les services de l’immeuble.
- Espace en excellent état
- Comprend 101 m² d’espace de bureau dédié
- 3 quais de chargement
| Espace | Surface | Durée | Loyer | Type de bien | Aménagement | Disponible |
| 1er étage – 100A | 779 m² | 3-10 Ans | 221,10 € /m²/an 18,43 € /m²/mois 172 153 € /an 14 346 € /mois | Industriel/Logistique | Meublé et équipé | 01/06/2026 |
2301 NW 107th Ave - 1er étage – 100A
10660 NW 25th St - 1er étage
| Surface | 3 145 m² |
| Durée | 3-10 Ans |
| Loyer | Sur demande |
| Type de bien | Industriel/Logistique |
| Aménagement | Construction achevée |
| Disponible | 01/09/2026 |
Corner unit in a 32' Clear Building. 6 Dock Doors, 1 Oversize Ramp. Office roughly 10%.
- Le loyer ne comprend pas les services publics, les frais immobiliers ou les services de l’immeuble.
- Comprend 279 m² d’espace de bureau dédié
- 1 accès plain-pied
- Espace en excellent état
- 6 quais de chargement
2301 NW 107th Ave - 1er étage – 100A
| Surface | 779 m² |
| Durée | 3-10 Ans |
| Loyer | 221,10 € /m²/an |
| Type de bien | Industriel/Logistique |
| Aménagement | Meublé et équipé |
| Disponible | 01/06/2026 |
- Le loyer ne comprend pas les services publics, les frais immobiliers ou les services de l’immeuble.
- Comprend 101 m² d’espace de bureau dédié
- Espace en excellent état
- 3 quais de chargement
Sélectionner des occupants à ce bien
- Étage
- Nom de l’occupant
- Secteur d’activité
- Inconnu
- Noatum Logistics
- -
- 1er
- U.S Customs
- Administration publique
Vue d’ensemble du parc
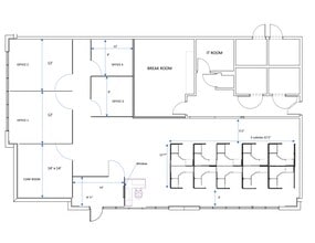
MIAMI CENTRAL COMMONS EST UN DÉVELOPPEMENT DE POINTE DISPONIBLE (unités 110 et 100). • Emplacement principal au cœur de Doral, l'une des villes les plus dynamiques de Floride • Lieu à forte exposition • Bâtiment ultramoderne • Accessibilité et connectivité stratégiques au cœur du sous-marché ouest de l'aéroport de Miami • Situé dans un point de distribution avantageux pour desservir le comté de Miami-Dade et les comtés voisins ; site magnétique de la zone franche (FTZ) • UNITÉ 110 (DISPONIBLE) : Espace haut de gamme pour les trophées offrant une salle d'exposition intégrée de ± 7 235 pieds carrés, des bureaux de direction de ± 3 255 pieds carrés, un entrepôt de ± 32 951 pieds carrés et des bureaux d'entrepôt de ± 678 pieds carrés
Présenté par
Miami Central Commons | Doral, FL 33172
Hum, une erreur s’est produite lors de l’envoi de votre message. Veuillez réessayer.
Merci ! Votre message a été envoyé.





