Connectez-vous/S’inscrire
Votre e-mail a été envoyé.
Executive Place Offices 2285 Executive Dr Bureaux/Médical | 122–1 224 m² | À louer | Lexington, KY 40505



Certaines informations ont été traduites automatiquement.
INFORMATIONS PRINCIPALES
- Situé à proximité, le Hamburg Pavilion, le nouveau développement le plus innovant de Lexington, propose une multitude de commodités, notamment des boutiques et des restaurants.
- Situé près de l'intersection de Winchester Road et de l'I-75
- Atrium de deux étages situé à l'entrée, accueilli par du granit poli et du marbre dans le hall
TOUS LES ESPACES DISPONIBLES(3)
Afficher les loyers en
- ESPACE
- SURFACE
- DURÉE
- LOYER
- TYPE DE BIEN
- ÉTAT
- DISPONIBLE
$3,100/month
- Le loyer comprend les services publics, les services de l’immeuble et les frais immobiliers.
- Plan d’étage avec bureaux fermés
- 2 salles de conférence
- Entièrement aménagé comme Bureau standard
- Convient pour 5 à 15 personnes
- Espace en excellent état
- Le loyer comprend les services publics, les services de l’immeuble et les frais immobiliers.
- Plan d’étage avec bureaux fermés
- 2 salles de conférence
- Entièrement aménagé comme Bureau standard
- Convient pour 25 à 80 personnes
- Espace en excellent état
- Entièrement aménagé comme Bureau standard
- 2 bureaux privés
- Espace en excellent état
- Convient pour 4 à 11 personnes
- 1 salle de conférence
| Espace | Surface | Durée | Loyer | Type de bien | État | Disponible |
| 1er étage, bureau 110 | 173 m² | 5 Ans | 185,30 € /m²/an 15,44 € /m²/mois 32 106 € /an 2 675 € /mois | Bureaux/Médical | Construction achevée | Maintenant |
| 2e étage, bureau 2nd Floor | 929 m² | 5 Ans | 169,51 € /m²/an 14,13 € /m²/mois 157 479 € /an 13 123 € /mois | Bureaux/Médical | Construction achevée | Maintenant |
| 3e étage, bureau 330 | 122 m² | 5 Ans | Sur demande Sur demande Sur demande Sur demande | Bureaux/Médical | Construction achevée | Maintenant |
1er étage, bureau 110
| Surface |
| 173 m² |
| Durée |
| 5 Ans |
| Loyer |
| 185,30 € /m²/an 15,44 € /m²/mois 32 106 € /an 2 675 € /mois |
| Type de bien |
| Bureaux/Médical |
| État |
| Construction achevée |
| Disponible |
| Maintenant |
2e étage, bureau 2nd Floor
| Surface |
| 929 m² |
| Durée |
| 5 Ans |
| Loyer |
| 169,51 € /m²/an 14,13 € /m²/mois 157 479 € /an 13 123 € /mois |
| Type de bien |
| Bureaux/Médical |
| État |
| Construction achevée |
| Disponible |
| Maintenant |
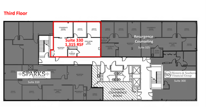
3e étage, bureau 330
| Surface |
| 122 m² |
| Durée |
| 5 Ans |
| Loyer |
| Sur demande Sur demande Sur demande Sur demande |
| Type de bien |
| Bureaux/Médical |
| État |
| Construction achevée |
| Disponible |
| Maintenant |
1 sur 2
VIDÉOS
VISITE EXTÉRIEURE 3D MATTERPORT
VISITE 3D
PHOTOS
STREET VIEW
RUE
CARTE
1er étage, bureau 110
| Surface | 173 m² |
| Durée | 5 Ans |
| Loyer | 185,30 € /m²/an |
| Type de bien | Bureaux/Médical |
| État | Construction achevée |
| Disponible | Maintenant |
$3,100/month
- Le loyer comprend les services publics, les services de l’immeuble et les frais immobiliers.
- Entièrement aménagé comme Bureau standard
- Plan d’étage avec bureaux fermés
- Convient pour 5 à 15 personnes
- 2 salles de conférence
- Espace en excellent état
1 sur 1
VIDÉOS
VISITE EXTÉRIEURE 3D MATTERPORT
VISITE 3D
PHOTOS
STREET VIEW
RUE
CARTE
2e étage, bureau 2nd Floor
| Surface | 929 m² |
| Durée | 5 Ans |
| Loyer | 169,51 € /m²/an |
| Type de bien | Bureaux/Médical |
| État | Construction achevée |
| Disponible | Maintenant |
- Le loyer comprend les services publics, les services de l’immeuble et les frais immobiliers.
- Entièrement aménagé comme Bureau standard
- Plan d’étage avec bureaux fermés
- Convient pour 25 à 80 personnes
- 2 salles de conférence
- Espace en excellent état
1 sur 1
VIDÉOS
VISITE EXTÉRIEURE 3D MATTERPORT
VISITE 3D
PHOTOS
STREET VIEW
RUE
CARTE
3e étage, bureau 330
| Surface | 122 m² |
| Durée | 5 Ans |
| Loyer | Sur demande |
| Type de bien | Bureaux/Médical |
| État | Construction achevée |
| Disponible | Maintenant |
- Entièrement aménagé comme Bureau standard
- Convient pour 4 à 11 personnes
- 2 bureaux privés
- 1 salle de conférence
- Espace en excellent état
APERÇU DU BIEN
NAI Isaac est heureuse de présenter des opportunités de location à Executive Place à Lexington. Executive Place est un immeuble de bureaux de quatre étages de plus ou -38 367 pieds carrés offrant des espaces de bureaux de haute qualité. Il est situé dans l'est du comté de Fayette, à proximité de l'échangeur I-75/I-64, du pavillon de Hambourg et du centre-ville de Lexington.
INFORMATIONS SUR L’IMMEUBLE
Type d’immeuble
Bureau
Année de construction
1990
Hauteur du bâtiment
4 étages
Surface de l’immeuble
3 792 m²
Classe d’immeuble
B
Surface type par étage
929 m²
Stationnement
150 places de stationnement extérieur
OCCUPANTS
- ÉTAGE
- NOM DE L’OCCUPANT
- SECTEUR D’ACTIVITÉ
- 4e
- Aerotek Inc
- Services professionnels, scientifiques et techniques
- 1er
- Blumine Health
- -
- 3e
- Sparks Financial Group
- Finance et assurances
- 3e
- Western & Southern Life
- Finance et assurances
1 1
1 sur 7
VIDÉOS
VISITE EXTÉRIEURE 3D MATTERPORT
VISITE 3D
PHOTOS
STREET VIEW
RUE
CARTE
1 sur 1
Présenté par
Executive Place Offices | 2285 Executive Dr
Vous êtes déjà membre ? Connectez-vous
Hum, une erreur s’est produite lors de l’envoi de votre message. Veuillez réessayer.
Merci ! Votre message a été envoyé.








