Votre e-mail a été envoyé.
Certaines informations ont été traduites automatiquement.
Informations principales
- Immeuble industriel à locataires multiples
- Portes d'expédition au niveau du quai
- Hauteur libre de 18 pieds
- Proche de toutes les commodités et des transports en commun
Caractéristiques
Tous les espaces disponibles(2)
Afficher les loyers en
- Espace
- Surface
- Durée
- Loyer
- Type de bien
- État
- Disponible
- Le loyer ne comprend pas les services publics, les frais immobiliers ou les services de l’immeuble.
- 1 quai de chargement
- Peut être associé à un ou plusieurs espaces supplémentaires pour obtenir jusqu’à 694 m² d’espace adjacent.
Ideal location for a small business requiring office space and dock level shipping. The space has 3 washrooms and a kitchen area. Easy access to Highways and public transportation. One block from Fairview Shopping Mall. Large parking area. Located in the heart of the Pointe-Claire Industrial Park. This offering does not constitute a promise or offer to sell or lease that could bind the property owner, but an invitation to submit such a promise or an offer. The information contained herein has been obtained from sources deemed reliable, interested parties should complete a due diligence inspection. This information may change and the property may be withdrawn from the market without notice.
- Le loyer ne comprend pas les services publics, les frais immobiliers ou les services de l’immeuble.
- Espace en excellent état
- 1 quai de chargement
- Lumière naturelle
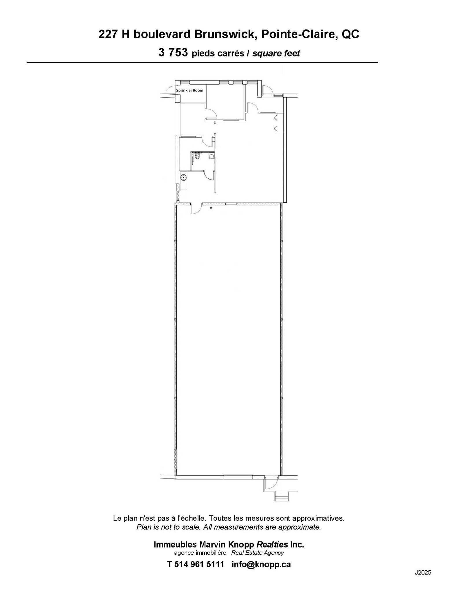
- 3 toilettes et un coin cuisine
- Espace lumineux avec de nombreuses fenêtres
- Comprend 71 m² d’espace de bureau dédié
- Peut être associé à un ou plusieurs espaces supplémentaires pour obtenir jusqu’à 694 m² d’espace adjacent.
- Système de chauffage central
- 760 pieds carrés d'espace de bureau
- 1 porte d'expédition au niveau du quai
| Espace | Surface | Durée | Loyer | Type de bien | État | Disponible |
| 1er étage – H | 349 m² | Négociable | Sur demande Sur demande Sur demande Sur demande | Industriel/Logistique | - | 01/05/2026 |
| 1er étage – K | 345 m² | 1-10 Ans | 81,82 € /m²/an 6,82 € /m²/mois 28 231 € /an 2 353 € /mois | Industriel/Logistique | Construction partielle | Maintenant |
1er étage – H
| Surface |
| 349 m² |
| Durée |
| Négociable |
| Loyer |
| Sur demande Sur demande Sur demande Sur demande |
| Type de bien |
| Industriel/Logistique |
| État |
| - |
| Disponible |
| 01/05/2026 |
1er étage – K
| Surface |
| 345 m² |
| Durée |
| 1-10 Ans |
| Loyer |
| 81,82 € /m²/an 6,82 € /m²/mois 28 231 € /an 2 353 € /mois |
| Type de bien |
| Industriel/Logistique |
| État |
| Construction partielle |
| Disponible |
| Maintenant |
1er étage – H
| Surface | 349 m² |
| Durée | Négociable |
| Loyer | Sur demande |
| Type de bien | Industriel/Logistique |
| État | - |
| Disponible | 01/05/2026 |
- Le loyer ne comprend pas les services publics, les frais immobiliers ou les services de l’immeuble.
- Peut être associé à un ou plusieurs espaces supplémentaires pour obtenir jusqu’à 694 m² d’espace adjacent.
- 1 quai de chargement
1er étage – K
| Surface | 345 m² |
| Durée | 1-10 Ans |
| Loyer | 81,82 € /m²/an |
| Type de bien | Industriel/Logistique |
| État | Construction partielle |
| Disponible | Maintenant |
Ideal location for a small business requiring office space and dock level shipping. The space has 3 washrooms and a kitchen area. Easy access to Highways and public transportation. One block from Fairview Shopping Mall. Large parking area. Located in the heart of the Pointe-Claire Industrial Park. This offering does not constitute a promise or offer to sell or lease that could bind the property owner, but an invitation to submit such a promise or an offer. The information contained herein has been obtained from sources deemed reliable, interested parties should complete a due diligence inspection. This information may change and the property may be withdrawn from the market without notice.
- Le loyer ne comprend pas les services publics, les frais immobiliers ou les services de l’immeuble.
- Comprend 71 m² d’espace de bureau dédié
- Espace en excellent état
- Peut être associé à un ou plusieurs espaces supplémentaires pour obtenir jusqu’à 694 m² d’espace adjacent.
- 1 quai de chargement
- Système de chauffage central
- Lumière naturelle
- 760 pieds carrés d'espace de bureau
- 3 toilettes et un coin cuisine
- 1 porte d'expédition au niveau du quai
- Espace lumineux avec de nombreuses fenêtres
Aperçu du bien
Emplacement idéal pour une petite entreprise nécessitant des bureaux et une expédition au niveau du quai. Accès facile aux autoroutes et aux transports en commun. À un pâté de maisons du centre commercial Fairview. Grand parking. Situé au cœur du parc industriel de Pointe-Claire.
Faits sur l’installation entrepôt
Présenté par
227 Boul Brunswick
Hum, une erreur s’est produite lors de l’envoi de votre message. Veuillez réessayer.
Merci ! Votre message a été envoyé.









