Votre e-mail a été envoyé.
22606-22610 Northline Rd Local commercial | 139–446 m² | À louer | Taylor, MI 48180



Certaines informations ont été traduites automatiquement.
INFORMATIONS PRINCIPALES
- Disposition polyvalente adaptée à divers usages commerciaux ou de vente au détail
- Des intérieurs personnalisables pour répondre aux besoins spécifiques de l'entreprise
- Grand parking sur place pour les clients et les employés
- Plan d'étage efficace pour rationaliser les opérations et la présentation des produits
DISPONIBILITÉ DE L’ESPACE (1)
Afficher le tarif en
- ESPACE
- SURFACE
- DURÉE
- LOYER
- TYPE DE LOYER
| Espace | Surface | Durée | Loyer | Type de loyer | ||
| 1er étage | 139 – 446 m² | Négociable | Sur demande Sur demande Sur demande Sur demande | Triple net (NNN) |
1er étage
Check out this exciting leasing opportunity at 22610 Northline Rd, located in the heart of Taylor, MI. With its strategic location, this property is the perfect choice for businesses looking to establish and expand their presence within Taylor. Reach out to our team for further information and arrange a showing.
- Le loyer ne comprend pas les services publics, les frais immobiliers ou les services de l’immeuble.
- Entièrement aménagé comme Local commercial standard
- Espace en extrémité très recherché
- Ventilation et chauffage centraux
- Toilettes privées
- Idéal pour les utilisateurs du commerce de détail, de l'alimentation, du bureau ou des services.
Types de loyers
Le montant et le type de loyer que l’occupant (locataire) est tenu de payer au propriétaire (bailleur) sur la durée du bail sont négociés avant la signature du bail par les deux parties. Le type de loyer varie selon les services fournis. Par exemple, le prix d’un loyer triple net est habituellement inférieur à celui d’un bail à service complet puisque l’occupant est tenu d’assumer des dépenses supplémentaires par rapport au loyer de base. Contacter le broker chargé de l’annonce pour bien comprendre les coûts associés ou les dépenses supplémentaires pour chaque type de loyer.
1. Service complet: Un loyer qui comprend des services d’immeuble standards normaux fournis par le propriétaire dans le cadre d’une location annuelle de base.
2. Double net (NN): L’occupant paie seulement deux des frais de l’immeuble. Le propriétaire et l’occupant déterminent ces frais spécifiques avant la signature du bail.
3. Triple net (NNN): Un bail selon lequel l’occupant est responsable de tous les frais liés à sa part proportionnelle d’occupation de l’immeuble.
4. Brut modifié: Le brut modifié est un type général de bail dans lequel l’occupant est en général responsable de sa part proportionnelle d’une ou de plusieurs dépenses. C’est le propriétaire qui paie les frais restants. Consultez la liste ci-dessous pour connaître les structures de loyers bruts modifiés les plus courantes : 4. Plus services publics: Un type de bail brut modifié, où l’occupant est responsable à hauteur de sa part proportionnelle des services publics en plus du loyer. 4. Plus nettoyage: Un type de bail brut modifié, où l’occupant est responsable à hauteur de sa part proportionnelle du nettoyage en plus du loyer. 4. Plus électricité: Un type de bail brut modifié, où l’occupant est responsable à hauteur de sa part proportionnelle du coût de la consommation électrique en plus du loyer. 4. Plus électricité et nettoyage: Un type de bail brut modifié, où l’occupant est responsable à hauteur de sa part proportionnelle du coût de la consommation électrique et du nettoyage en plus du loyer. 4. Plus services publics et charges: Un type de bail brut modifié où l’occupant est responsable à hauteur de sa part proportionnelle des services publics et du coût de nettoyage en plus du loyer. 4. Bail industriel brut: Un type de bail brut modifié dans lequel l’occupant paie un ou plusieurs des frais en plus du loyer. Le propriétaire et l’occupant déterminent ces frais spécifiques avant la signature du bail.
5. Électricité à la charge de l’occupant: Le propriétaire paie pour tous les services et l’occupant est responsable de sa propre utilisation de l’éclairage et des prises électriques dans l’espace qu’il occupe.
6. Négociable ou sur demande: Cette option est utilisée lorsque le contact de location n’indique pas le type de loyer ou de service.
7. À déterminer: À déterminer : utilisé pour les immeubles dont le type de services ou de loyer n’est pas connu, souvent quand l’immeuble n’est pas encore construit.
SÉLECTIONNER DES OCCUPANTS À 22606-22610 NORTHLINE RD, TAYLOR, MI 48180
- Family Video
INFORMATIONS SUR L’IMMEUBLE
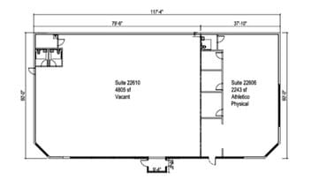
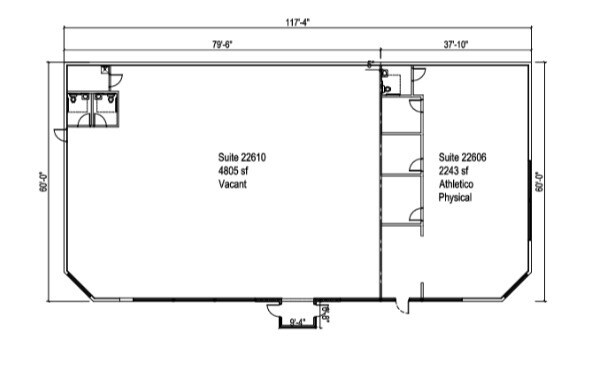
| Espace total disponible | 446 m² | Surface commerciale utile | 655 m² |
| Min. Divisible | 139 m² | Année de construction | 2000 |
| Type de bien | Local commercial | Ratio de stationnement | 0,49/1 000 m² |
| Espace total disponible | 446 m² |
| Min. Divisible | 139 m² |
| Type de bien | Local commercial |
| Surface commerciale utile | 655 m² |
| Année de construction | 2000 |
| Ratio de stationnement | 0,49/1 000 m² |
À PROPOS DU BIEN
Découvrez le potentiel du 22606-22610 Northline Rd., une opportunité de location de premier ordre pour les entreprises de détail ou commerciales à Taylor. Cette propriété bien aménagée offre un aménagement polyvalent, de grandes vitrines et un vaste espace de stationnement, garantissant une visibilité et une commodité accrues pour les clients. Son emplacement stratégique crée un environnement optimal pour attirer un trafic piétonnier régulier et améliorer la visibilité de la marque. Doté d'équipements modernes, d'intérieurs personnalisables et d'un extérieur professionnel, l'espace offre un environnement accueillant et dynamique adapté à une variété d'utilisations commerciales ou commerciales. La disposition flexible permet une planification des étages et une présentation des produits efficaces, ce qui en fait une solution idéale pour les entreprises à la recherche d'un espace visible et adaptable pour engager leur public cible.
- Enseigne sur pylône
- Intersection avec signalisation
PRINCIPAUX COMMERCES À PROXIMITÉ
Présenté par
22606-22610 Northline Rd
Hum, une erreur s’est produite lors de l’envoi de votre message. Veuillez réessayer.
Merci ! Votre message a été envoyé.



